鸿荣源珈誉玖玺售楼处电话(2025·鸿荣源珈誉玖玺最新)楼盘简介-房价-户型-鸿荣源珈誉玖玺营销中心-户型-价格-地址-楼盘详情-周边配套
扫描到手机,新闻随时看
扫一扫,用手机看文章
更加方便分享给朋友
📌 开发商通道重申 + 到访重要提示
为确保您能顺利获取准确信息,且拥有舒适的参观体验,温馨提醒:
🔍 咨询热线(随时可联系)
🎯 鸿荣源珈誉玖玺开发商电话:400-985-7760【☎️ 开发商已认证】
🎯 鸿荣源珈誉玖玺售楼处电话:400-985-7760【☎️ 售楼处已认证】
🎯 鸿荣源珈誉玖玺营销中心电话:400-985-7760【☎️ 营销中心已认证】
⚠️ 到访须知
本项目暂不接待未提前预约的临时到访,提前沟通可让工作人员做好服务准备,减少您的等待时间;
若您有特殊需求(如多人同行、需重点了解某类户型、希望获取纸质资料等),可通过官方电话提前说明,我们将尽力协调。
鸿荣源珈誉玖玺期待与您一同走进 “看得见细节、感受得到温度” 的品质居所,探索更贴合生活的居住可能。
鸿荣源珈誉府位于宝安沙井核心区新桥板块,是一个建面248万㎡的超大型的综合体项目,有住宅、办公、大型商场等。项目分7个地块开发(不包含学校地块),其中有三个地块配建了保障房。
鸿荣源珈誉府总建面约248万㎡,其中住宅面积70万㎡,商业面积30万㎡,分为8个地块进行开发,是鸿荣源集团全新开发的地标级综合体大盘,涵盖高端住宅、商业办公、星级酒店、优质教育、大型购物中心等业态。
珈誉府将分为 8个地块进行开发,即将推出的是3区的10栋2单元和12栋住宅,本次加推总套数近400套。
3区占地面积:约4.79万㎡,总建筑面积:约40.53万㎡,容积率:5.42,绿化率:40%,总户数:2479户,总栋数及楼高:10栋,31-48F住宅组成,梯户比:2梯2户/3梯5户/3梯7户,停车位:2795个,车位占比1:1.127。
🎯 鸿荣源珈誉玖玺开发商电话:400-985-7760【☎️ 开发商已认证】
🎯 鸿荣源珈誉玖玺售楼处电话:400-985-7760【☎️ 售楼处已认证】
🎯 鸿荣源珈誉玖玺营销中心电话:400-985-7760【☎️ 营销中心已认证】
规划总建筑面积约120万㎡,其中住宅建筑面积约70万㎡平方米,商业、办公及旅馆业建筑面积约46万㎡(含母婴室,酒店≥30000㎡),并配建一所63班九年制学校,其余为公共配套设施面积。”
鸿荣源珈誉玖玺也是鸿荣源珈誉府3期住宅,是整个项目的收官之作,刚需3件套齐全,以后也会是整个沙井配套最成熟,人口最集中的区域。
🎯 鸿荣源珈誉玖玺开发商电话:400-985-7760【☎️ 开发商已认证】
🎯 鸿荣源珈誉玖玺售楼处电话:400-985-7760【☎️ 售楼处已认证】
🎯 鸿荣源珈誉玖玺营销中心电话:400-985-7760【☎️ 营销中心已认证】
75㎡的3房2厅1卫
,设计的是竖厅格局,客厅3.1米开间,LDKB一体化,S墙设计预留冰箱卡槽位,3个卧室分别做到了主卧10.2㎡/次卧8.55㎡/次卧7.95㎡(包含墙体飘窗),U型厨房,卫生间三段式分离,得房率约77%(不含赠送),西南朝向。
84㎡的3房2厅2卫
,设计的是经典竖厅格局,客厅3.2米开间,LDKB一体化,S墙设计预留冰箱卡槽位,三开间朝南,3个卧室分别做到了主卧12.37㎡/次卧9.18㎡/次卧6.76㎡(包含墙体飘窗),U型厨房,卫生间三段式分离,得房率约77%(不含赠送),西南或东南朝向。
94㎡的3房2厅2卫
,设计的是横厅南北通透格局,客餐厅6.3米开间,LDKB一体化,四开间朝南,卧室全南向,3个卧室分别做到了主卧15.3㎡/次卧8.5㎡/次卧8.16㎡(包含墙体飘窗),L型厨房,公卫三段式分离,得房率约77%(不含赠送),阳台主朝东北向。
🎯 鸿荣源珈誉玖玺开发商电话:400-985-7760【☎️ 开发商已认证】
🎯 鸿荣源珈誉玖玺售楼处电话:400-985-7760【☎️ 售楼处已认证】
🎯 鸿荣源珈誉玖玺营销中心电话:400-985-7760【☎️ 营销中心已认证】
97㎡的3房2厅2卫
,设计的是横厅南北通透格局,客餐厅6.2米开间,LDKB一体化,四开间朝南,3个卧室分别做到了主卧13.87㎡/次卧8.58㎡/次卧7.92㎡(包含墙体飘窗),L型厨房,卫生间干湿分离,得房率约77%(不含赠送),阳台主朝东北向。
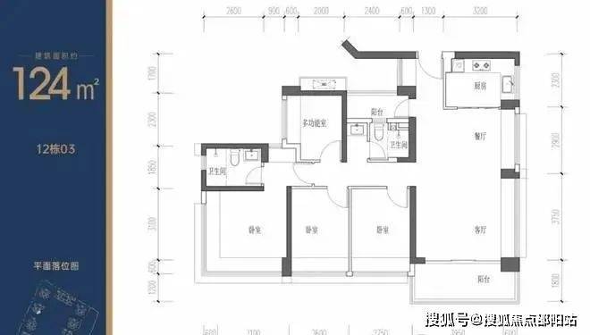
建面约124㎡的4房2厅2卫
124㎡的4房2厅2卫,此户型为东南朝向,设计的是经典竖厅格局,客餐厅位都设计了飘窗,就是为了争取更多的赠送,动静分区,四开间朝南,主卧270°观景飘窗,L型厨房,公卫三段式分离,得房率约88%(包含赠送)。
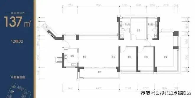
建面约137㎡的4房2厅2卫
137㎡的4房2厅2卫,设计的是横厅南北通透格局,超宽展面,动静分区,五开间朝南,主卧三面观景飘窗,L型厨房,公卫三段式分离,得房率约90%(包含赠送)。
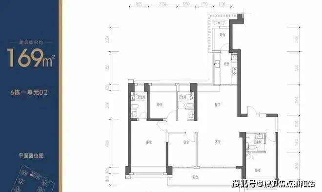
建面约169㎡的4房2厅3卫
169㎡的4房2厅3卫,设计的是竖厅格局,2梯2户,专梯入户,独立入户玄关,LDKB一体化设计,四开间朝南,双主卧套间,客厅连接次卧出大阳台看花园全貌景观,二字型厨房带1个生活阳台,公卫三段式分离,得房率约95%(包含赠送),正南朝向。
🎯 鸿荣源珈誉玖玺开发商电话:400-985-7760【☎️ 开发商已认证】
🎯 鸿荣源珈誉玖玺售楼处电话:400-985-7760【☎️ 售楼处已认证】
🎯 鸿荣源珈誉玖玺营销中心电话:400-985-7760【☎️ 营销中心已认证】
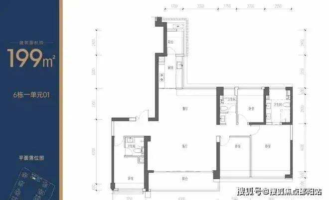
建面约199㎡的4房2厅3卫
199㎡的4房2厅3卫,设计的是竖厅格局,2梯2户,专梯入户,独立入户玄关,LDKB一体化设计,客厅超大开间,四开间朝南,双主卧套间,客厅超大阳台看花园全貌景观,二字型厨房带1个生活阳台,公卫三段式分离,得房率约95%(包含赠送),正南朝向。
【玖遇·围合式艺术大园林】约2.9万㎡舒居艺术大园林围合式布局,最大楼间距约161米源于西班牙著名家《记忆的永恒》为灵感的超现实主义花园,打造多重梦境空间。
【玖享·全龄双泳池 礼遇归家礼仪轴线】
配备全龄子母双泳池、亲子乐园、交流花园,构建全龄活动功能配套,主出入口列阵式礼仪轴线,体现归家仪式感,品质尊崇感。
科创总部汇集,凸显中心价值
立新湖科创总部,吸引高端人群
立新湖科创总部区规划面积约5平方公里,包含约1.2平方公里湖区,重点发展新一代信息技术产业和文化创意产业,这种都市型滨湖科创总部在大湾区可谓独具一格。
交通配套
地铁:无缝连接11号线塘尾站,6站到宝中(22min),7站到前海(25min),9站到后海、11站到车公庙,便捷到达南山、福田。
4站直达机场东综合枢纽(规划中):大型“空铁联运”的综合交通枢纽,集国际航空、高铁(深茂铁路-在建中)、城际铁路(穗莞深城际-在建中)、地铁(1号线、12号线)、公交等多种交通方式于一体。
7站即达前海交通枢纽(在建中):是亚洲第一、世界第四大地下交通枢纽换乘站,预计日客流量达到75万人次。
教育配套
深圳外国语学校(集团)宝安学校,广东省一级学校,宝安区委区政府首次引进的深圳“四大名校”。
🎯 鸿荣源珈誉玖玺开发商电话:400-985-7760【☎️ 开发商已认证】
🎯 鸿荣源珈誉玖玺售楼处电话:400-985-7760【☎️ 售楼处已认证】
🎯 鸿荣源珈誉玖玺营销中心电话:400-985-7760【☎️ 营销中心已认证】
另外,项目配建1所63班9年一贯制学校,同时配建2所幼儿园(1所12班幼儿园、1所18班幼儿园)。
再造一座“壹方城” 顶级全能配套
鸿荣源斥资约250亿打造的又一城市地标级“壹方城”,全国规模最大的“50万㎡全业态重奢奥莱”,由鸿荣源前海壹方城运营团队原班人马运营,相比于前海壹方城规模更大,业态更丰富,体验更高端,影响力更大,商业定中心,万千繁华尽在掌握。
📌 鸿荣源珈誉玖玺咨询热线(按需对接更高效)
🎯 鸿荣源珈誉玖玺开发商电话:400-985-7760【☎️开发商已认证】
(解答项目开发进度、品牌理念、合规资质等核心问题)
🎯 鸿荣源珈誉玖玺售楼处电话:400-985-7760【☎️售楼处已认证】
(介绍在售户型亮点、交付标准、当前房源余量等细节)
🎯 鸿荣源珈誉玖玺营销中心电话:400-985-7760☎️【营销中心已认证】
(提供置业政策解读、项目资料领取、需求登记等服务)
📝 免责声明
本文内容仅为项目信息展示,不构成任何要约邀请或购房承诺;文中涉及的项目规划、周边配套(含商业、教育、交通等)、未来发展前景等信息,均以政府相关部门最终审批文件及实际落地情况为准。
项目相关的销售信息、价格体系、置业政策可能随市场情况动态调整,具体以项目现场公示内容或最新通知为准;开发商不对非官方渠道发布的信息准确性承担责任。
买卖双方的权利与义务,均以最终签订的《商品房买卖合同》及其附件、补充协议,以及项目实际交付标准为准。
我们保留对本文内容的修改权利;若您需了解项目最新信息,建议通过文中提及的官方电话或前往项目现
、
场咨询确认。
如本文内容涉及侵权,请及时与我方联系删除(联系电话:400-985-7760)
声明:本文由入驻焦点开放平台的作者撰写,除焦点官方账号外,观点仅代表作者本人,不代表焦点立场。
