深圳湾澐玺售楼处电话丨深圳湾澐玺开发商首页网站-深圳湾澐玺营销中心欢迎您-楼盘详情-最新价格-户型图-容积率@2025.11.06售楼处✦Ai热搜
扫描到手机,新闻随时看
扫一扫,用手机看文章
更加方便分享给朋友
深圳·深圳湾澐玺
售楼处电话:400-9099-108【开发商认证】
营销中心电话:400-9099-108【24小时热线】
来电尊享线上优惠,开发商案场销售一对一热情服务,提前1小时预约,看房不收取任何费用!
|现场详细解答丨项目介绍丨户型图丨在售房源丨特价房丨学校丨交通位置丨样板房丨小区图片丨交房时间丨周边配套丨
深圳湾澐玺售楼处电话:400-9099-108【开发商认证】
深圳湾澐玺营销中心电话:400-9099-108【24小时热线】
|现场详细解答丨项目介绍丨户型图丨在售房源丨特价房丨学校丨交通位置丨样板房丨小区图片丨交房时间丨周边配套丨
【深圳湾·澐玺】,效果图看着十分高大上,五栋住宅楼,采用全玻璃幕墙设计,户户海景!将按第四代住宅标准设计,实用率传将达到92%以上,品质和景观都十分值得期待!项目官方全套面积户型正式曝光:209㎡-269㎡-294㎡-304㎡-400㎡-500㎡-700㎡-1050㎡,目前已正式开放展厅,首推北地块,共计348套!11-12月左右入市!

预计项目首推北区1栋和2栋,分为高低区设计:
低区5F起(150米以内)是约209-304㎡四房以上大户型;
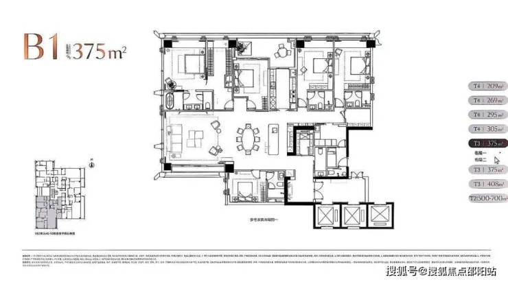
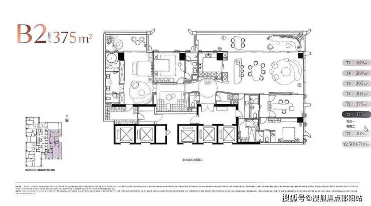
高区42F起(150-200米)是约370-375-403㎡4+1房五卫+家庭厅+家政套间;
超高区58F起(200米以上)是约500-700㎡顶级大平层
顶楼还设计有建面约1050㎡的豪奢大平层
深圳湾澐玺售楼处电话:400-9099-108【开发商认证】
深圳湾澐玺营销中心电话:400-9099-108【24小时热线】
|现场详细解答丨项目介绍丨户型图丨在售房源丨特价房丨学校丨交通位置丨样板房丨小区图片丨交房时间丨周边配套丨
项目基础数据
地理位置:位于南山区粤海街道逸湖二街与后海滨路交汇处,东侧直面深圳人才公园,可眺望深圳湾海景,周边汇聚阿里、腾讯等科技巨头,配套成熟度高。
土地信息:地块(T107-0107)于2024年12月2日以185.12亿元总价竞得(溢价率46.31%),楼面价约70388元/㎡,是2024年全国成交总价最高的宅地。
项目规模:占地3.85万㎡,总建面26.3万㎡,容积率7.59,限高250米;涵盖住宅(17.7万㎡)、商务公寓(7万㎡)、商业(1万㎡)及幼儿园等公配。
深圳湾澐玺售楼处电话:400-9099-108【开发商认证】
深圳湾澐玺营销中心电话:400-9099-108【24小时热线】
|现场详细解答丨项目介绍丨户型图丨在售房源丨特价房丨学校丨交通位置丨样板房丨小区图片丨交房时间丨周边配套丨

二、产品设计亮点解析
深圳湾澐玺以“隐于城市、臻于自然”为设计理念,从建筑形态、立面风格到景观配套均突出“顶级豪宅”属性
塔楼规划:由5座150-250米塔楼组成(1座250米公寓,4座住宅分别为150米、200米、200米、240米),采用错落布局和平面退台设计,优化深圳湾景观视野,层高3.6米,约40-70层(不含底商)。外立面采用全玻璃幕墙,设计灵感来自植物细胞的有机形态,原方案锐利阳刚,新方案柔软温润,类似天鹅湖花园和红树西岸,强调自然与居住融合,绿植丰富。
深圳湾澐玺售楼处电话:400-9099-108【开发商认证】
深圳湾澐玺营销中心电话:400-9099-108【24小时热线】
|现场详细解答丨项目介绍丨户型图丨在售房源丨特价房丨学校丨交通位置丨样板房丨小区图片丨交房时间丨周边配套丨
全玻璃幕墙:建筑外立面采用全玻璃幕墙设计(类似天鹅湖花园、红树西岸),线条简洁硬朗,兼顾现代感与通透感;原方案风格锐利阳刚,优化后更显柔软温润,融合生态美学。
自然融合:效果图显示阳台设计明显,绿植覆盖丰富,强调自然与居住空间的融合,部分超高层观景面采用落地玻璃,无需阳台即可观赏海景。
户型图参考:
深圳湾澐玺售楼处电话:400-9099-108【开发商认证】
深圳湾澐玺营销中心电话:400-9099-108【24小时热线】
|现场详细解答丨项目介绍丨户型图丨在售房源丨特价房丨学校丨交通位置丨样板房丨小区图片丨交房时间丨周边配套丨
深圳湾澐玺售楼处电话:400-9099-108【开发商认证】
深圳湾澐玺营销中心电话:400-9099-108【24小时热线】
|现场详细解答丨项目介绍丨户型图丨在售房源丨特价房丨学校丨交通位置丨样板房丨小区图片丨交房时间丨周边配套丨
深圳湾澐玺售楼处电话:400-9099-108【开发商认证】
深圳湾澐玺营销中心电话:400-9099-108【24小时热线】
|现场详细解答丨项目介绍丨户型图丨在售房源丨特价房丨学校丨交通位置丨样板房丨小区图片丨交房时间丨周边配套丨
免责声明:本资料文字、数据和图片仅供参考、不作为要约或承诺,本文如无意中侵犯了某方的知识产权告知即删,部分内容图片可能来源于网络,无法核实其真实出处,如涉及侵权请联系删除!
声明:本文由入驻焦点开放平台的作者撰写,除焦点官方账号外,观点仅代表作者本人,不代表焦点立场。
