搜狐焦点I 盐田 特发小梅沙·觐海府(售楼处)热销中,尊崇体验限时预约
扫描到手机,新闻随时看
扫一扫,用手机看文章
更加方便分享给朋友

❄️特发小梅沙·觐海府❄️
✅ 所有疑问,一通电话全解决!
🎯 内部置业顾问VIP解答,独家优惠仅限来电客户!
📞 24小时热线,黄金时段优先安排!
☎ 马上拨打售楼处专线:400-118-5071(一键直连/预约看房)
❄️丨项目介绍丨户型图丨在售房源丨特价房丨学校丨交通位置丨样板房丨小区图片丨交房时间丨周边配套丨

深圳小梅沙觐海府项目简介
深圳小梅沙觐海府(别名:特发小梅沙觐海广场)是由深圳市特发小梅沙投资发展有限公司倾力打造的精品住宅项目,坐落于盐田区黄金区位,与壮阔海岸线直接相邻。
该项目由小梅沙投资精心规划,以高端居住标准为核心,巧妙融合山海景观与度假生活方式,将奢华舒适的居住体验与滨海度假理念完美结合,树立起深圳约260公里黄金海岸线上的人居典范与生态标杆之作。
统筹规划面积:约3.9万平方公里
总投资约:200亿元
总建面约:89万㎡
特发自持运营物业:约75%
六大业态:亲海住宅、商业、办公、星级酒店、小梅沙海洋世界、滨海公园等多元业态
【推售小梅沙·觐海府一期高端住宅】
小梅沙投资匠心打造高端住居产品,倚山亲海间,奢适生活融入度假理念,承载深圳约260公里黄金海岸线宜居生态标杆。
产品:建面约117-173㎡3-4房高端亲海大宅
梯户比:2梯2户/2梯3户
车位比:约1:1.5
物业管理费:3.9元/平方米/月
开发商:深圳市特发小梅沙投资发展有限公司
项目地址:盐田区盐葵路39号
深圳市特发集团有限公司
特发集团成立于1981年,注册资本45.38亿元,是深圳国资控股、中央企业参股的国有全资大型综合性企业集团。并表企业超100家,控股上市公司4家,孕育或培植了7家上市公司。

深圳宜居看盐田
盐田是粤港澳大湾区唯一与香港水陆相连的地区
广东省首个且唯一一个荣获“城市生态氧吧”称号的区域
PM2.5连续7年优于欧盟标准
全年空气优良率达98.6%
约19.5公里海滨栈道,69公里半山公园带,73个公园,257公里休闲绿道
小梅沙海洋世界
外观为“鹦鹉螺”,由日本佐藤综合计画设计,以海洋动物展示、科技演艺、多媒体互动科普为主体,近享国际一流海洋主题公园,动物约200多种,融合全球最大青蓝洞景观。
小梅沙滨海公园
小梅沙叠翠郊野公园
占地面积约80公顷,位于马峦山之上,内有2大水域,3个谷地,“三有”动物约49种,呈现全时段自然栖居生活场

- 商业方面
项目规划约8.8万㎡滨海主题商业,以“商业体 + 街区”的模式,打造深圳“潮生活”文旅商综合体,集吃、住、行、娱、购、游于一体。
深圳市盐田区梅沙未来学校(原梅沙小学)创办于1934年,是盐田区人民政府投资兴办的深圳市第一所以“未来学校”命名的学校。学校占地面积18874平方米,建筑面积41383平方米,分别有博学楼、励志楼、达德楼、综合楼、居易楼5栋楼宇,设计规模为36个班。
盐田区外国语学校创办于2004年9月,是区人民政府投资兴办的一所高起点、高标准的初级中学。占地面积40457.90平方米、建筑面积35878.01平方米。学校拥有一支师德高尚、结构合理、业务精良、富有献身精神和创新意识的优良师资队伍。现有43个教学班,1791名学生,住宿生196名,156名教师,正高级、特级教师1人,高级教师44人,省、市区级以上名师38人。
智慧小梅沙 高效赋能品质生活
科技赋能:依托云计算、大数据、5G技术等现代化信息技术,提供高效便捷的生活服务。
文化赋能:以文化作为系统核心,以具有特色、多样性、艺术性的文化来链接人群。
服务赋能:依托数据链接业主与商户的“吃、住、行、娱、购、游”,实现高效服务。
管理赋能:包括智能居家、讯息发布、预测预警、应急指挥、公共服务等全流程服务
大师执笔·全球甄选

建面约117㎡-173㎡宽适之筑 觐海之容 山海扑面大户型住宅
小梅沙觐海府依山伴海,一字排开,户户朝南,最大8米宽景阳台,部分户型双套房设计。两梯两户/两梯三户的低梯户比,方寸之间,尽享专属于少数人的尊贵风范。

品位之致 尊荣所享 尊崇之至
多重归家礼序:小梅沙觐海府住宅“双大堂”,包含主入口精妆大堂及车库大堂;采用酒店式电梯厅,从容归家,礼序尽显。
双层高配泊车:小梅沙觐海府以双层地下停车场,提供约1:1.5的车位高配比,满足高阶家庭的多重泊车需求。
人车动线分流:小梅沙觐海府地块通过优化交通动线,分离行车道及园区步道,保护行人安全,关怀备至。

湾畔居境 多重景致 四季悠然
小梅沙觐海府景观北连叠翠,南踏梅沙,紧临湖区,南北双公园相携又自成一脉。清新海风相伴,拓宽山海视野,身心自然开阔。
亲海景致:植被应用棕榈、常绿、开花植物种植,不同区域单独造景各具特色。
架空空间:配套休闲会客厅区、老年活动休闲区、儿童活动区等功能。
梅沙风情:精心设置椰林休闲戏水区域,滨海度假风情踱步下楼即可体验。
叠层园林:台地园林与建筑融合,抬升式围合院境景观,隐密之域,幸福私享。

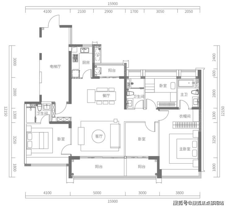
A户型建面约117㎡,3房2厅2卫

B户型建面约117㎡,3房2厅2卫

C户型建面约120㎡,3+1房2厅2卫

D户型建面约173㎡,4房2厅2卫

————【小梅沙.觐海府】————
❄️特发小梅沙·觐海府售楼中心电话⚡:400-118-5071📲【售楼中心已认证】
❄️特发小梅沙·觐海府营销中心电话⚡:400-118-5071📲【营销中心已认证】
❄️特发小梅沙·觐海府开发商电话⚡:400-118-5071📲【开发商已认证】
❄️关于特发小梅沙·觐海府最新动态信息,如:房价,主力户型面积,最低折扣,等等,剩余户型楼层,去化率,几号地铁哪个地铁口,周边规划,项目的优劣势以及学校的配套等等都可以致电售楼处进行了解,我们将会安排内场专业置业顾问为您答疑解惑!
重磅!深圳9.6楼市新政落地:多区不限购、信贷松绑,买房门槛迎史上大降
9月5日晚间,深圳市住建局联合人民银行深圳市分行突发新政,《关于进一步优化调整本市房地产政策措施的通知》正式出台,9月6日起全面施行。此次政策调整力度超预期,从购房资格到信贷规则全面松绑,直接改写深圳多区域楼市格局。
1.分区“松绑”力度拉满,非深户、单身群体直接受益
新政最核心的突破在于分区优化购房资格,不同区域“差别化放宽”,覆盖刚需、改善甚至非深户群体:
罗湖区、宝安区(不含新安街道)、龙岗区、龙华区、坪山区、光明区:深户家庭买房不限套数;非深户即便无法提供1年社保/个税证明,也能在此区域买2套。
盐田区、大鹏新区:彻底“解绑”,买房不再审核任何购房资格,有钱就能买。
成年单身人士:直接享受“家庭级”购房待遇,限购规则与家庭一致,告别“单身买房难”。
2.企业买房门槛大降,福田、南山也能“轻松入场”
此前受限的企事业单位购房,此次也迎来明确松绑,兼顾企业员工住房需求:
福田区、南山区、宝安区新安街道(核心区域):企业满足“设立满1年+累计纳税100万+员工10人以上”,即可购房。
深圳其他区域:企业购房无需审核资格,无门槛入场,进一步释放企业端购房需求。
3.信贷规则“大简化”,首套、二套利率不再区分
对购房者来说,最直接的利好还有信贷调整:各银行不再区分“首套住房”和“二套住房”,将根据机构经营状况、客户风险情况,灵活确定每笔房贷的具体利率。这意味着无论刚需首套还是改善二套,都可能享受到更灵活、更低成本的信贷支持,还贷压力进一步降低。
此次深圳楼市新政,从“资格放宽”到“信贷松绑”,覆盖了不同购房群体和区域,直接降低了买房门槛与成本。对于想在深圳置业的人来说,9月6日起,无论是深户、非深户,还是企业,都迎来了“上车”的新窗口期。
✿特发小梅沙·觐海府✿售楼处热线:400-118-5071【售楼处电话已认证】
免责声明:部分信息来源于网络,如果侵权,请联系及时删除本宣传资料不构成邀约邀请,对周边、政府规划、商业配套、教育资源、投资前景等数据和图文仅为提供相关信息,该信息以政府最终批文为准,开发商不对此作任何承诺。买卖双方的权利义务以双方签订的买卖合同约定及附件、实际交付为准,本公司保留对宣传资料修改的权利,敬请留意最新资料。联系号码:400-118-5071。
声明:本文由入驻焦点开放平台的作者撰写,除焦点官方账号外,观点仅代表作者本人,不代表焦点立场。
