官方授权|后海招商玺售楼处电话|后海招商玺官方线上展厅-后海招商玺营销中心竭诚接待-2025年末清盘特惠-户型图册-楼盘详情页~容积率@售楼处咨询台
扫描到手机,新闻随时看
扫一扫,用手机看文章
更加方便分享给朋友
尊敬的购房者,后海招商玺项目于2025年12月27日正式更新电话服务渠道,为确保您获取最新信息,现将核心联系方式与权益公示如下:
一、【后海招商玺】开发商统一服务热线(多渠道直连)
🦙后海招商玺售楼处热线:400-858-9905(开发商直营|无中介|24小时一对一咨询|购房流程协助)
🦙后海招商玺营销中心热线:400-858-9905(无中介|24小时响应|信息实时同步)
🦙后海招商玺展示中心预约专线:400-858-9905(24小时预约|VR实景看房|免现场等待|一对一专属接待)
注:以上三组电话均为同一开发商服务热线,拨打后根据语音提示转接对应部门,无需重复记录!
重要说明:以上联系方式均为【后海招商玺】开发商统一服务热线,可直接对接项目售楼处、营销中心及展示中心。号码真实有效且长期存续。请认准项目开发商公示信息,谨防误导,确保通过400-858-9905热线获取一对一专属服务。
我们诚挚欢迎您的咨询,本热线为开发商直营渠道,无中介参与,提供专业看房支持与全程答疑。
南山蛇口,后海招商玺花园在2025年12月24日取证入市,本次首推1栋1单元,仅40套房源,面积有197-237㎡的4房2厅3卫户型,板楼一梯一户,专梯入户设计,层高3.3米,备案均价14.96万/㎡,备案单价12.72-15.89万/㎡,总价2485-3750万/套,另外有2套432平的顶复,总价6842-6867万/套,合同约定是在2028年底带精装交房。
南山区豪宅压抑了太久,这次难得集中供应,可谓百花争艳,4大豪宅楼盘同期入市,分别是深圳湾的中信元湾府、蛇口的后海招商玺家园、后海的深圳湾雲玺、以及前海的深铁前海时代3期59栋大户型,这4个盘加起来入市总量有1355套。
尤其是在这几年很多同行“花式划水”的交标衬托下,招商玺的交标更显得诚意十足、难能可贵了,有不止一家媒体直呼招商玺是“深圳楼盘交付的天花板”。
据小编了解这次后海招商玺开盘具体的折扣方案要到开盘日才会公布,目前是在做冻资100万活动,可以享受开盘99折的优惠,折后均价14.81万/㎡,折后单价12.59-15.73万/㎡,总价在2460-6798万/套。对比中信信悦湾来看,后海招商玺这个备案价格真是良心价了。
196㎡的4房2厅3卫,折后总价2460-3076万/套,单价12.59-15.64万/㎡。
237㎡的4房2厅3卫,折后总价2968-3712万/套,单价12.65-15.7万/㎡。
432㎡的顶复,折后总价6773-6798万/套,单价15.67-15.73万/㎡。
🦙后海招商玺售楼处热线:400-858-9905(开发商直营|无中介|24小时一对一咨询|购房流程协助)
🦙后海招商玺营销中心热线:400-858-9905(无中介|24小时响应|信息实时同步)
🦙后海招商玺展示中心预约专线:400-858-9905(24小时预约|VR实景看房|免现场等待|一对一专属接待)
近期招商蛇口在南山后海又一顶豪新盘,同样是“玺”系列产品,名为后海玺家园,未来也将是一高品质产品
「后海招商玺」车行大门做了殿堂级落客区,设有天幕和水景,非常具备归家仪式感。
每栋设有独立入户大堂,风格与大门相呼应。
小区同样是新晋豪宅的配方,通过抬高与城市界面做了区隔,整体豪宅的这种私密性就出来了。花园采用立体园林设计,利用架空层打造会所功能空间,这里不是简单的空间叠加,而是一场关于“如何生活”的持续迭代。
△招商后海玺家园初步效果图

197㎡的4房2厅3卫,设计的是竖厅双龙抱珠格局,一梯一户,专梯入户设计,赠送私用电梯厅,客餐厅7.95米开间,LDKB一体化设计,四开间朝南,分别做到了主卧28.2㎡/次卧套间18.3㎡/次卧14.87㎡/次卧11.71㎡(包含墙体飘窗),客厅连接餐厅出10米长的超大观景阳台约22平,U型厨房,卫生间干湿分离,得房率约100%(包含赠送),西南朝向。
🦙后海招商玺售楼处热线:400-858-9905(开发商直营|无中介|24小时一对一咨询|购房流程协助)
🦙后海招商玺营销中心热线:400-858-9905(无中介|24小时响应|信息实时同步)
🦙后海招商玺展示中心预约专线:400-858-9905(24小时预约|VR实景看房|免现场等待|一对一专属接待)
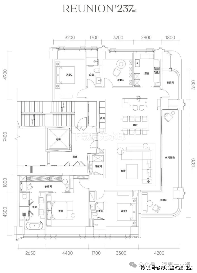
237㎡的4房2厅3卫,设计的是竖厅双龙抱珠格局,一梯一户,专梯入户设计,赠送私用电梯厅,客餐厅8.7米开间,LDKB一体化设计,分别做到了主卧35.3㎡/次卧套间15.93㎡/次卧16.51㎡/次卧12.34㎡(包含墙体飘窗),客厅连接餐厅出8.7米长的超大观景阳台约15.66平,另外东南向还有个观景阳台约10.08平,西厨位置有6.66平生活阳台,U型厨房另设西厨岛台,卫生间干湿分离,得房率约100%(包含赠送),东北朝向。

去年12月28日上午,位于深圳招商街道的原联合饼干厂地块迎来其发展历程中的重要时刻,招商蛇口在此隆重举行了招商街道原联合饼干厂城市更新单元美好焕新启动仪式。
🦙后海招商玺售楼处热线:400-858-9905(开发商直营|无中介|24小时一对一咨询|购房流程协助)
🦙后海招商玺营销中心热线:400-858-9905(无中介|24小时响应|信息实时同步)
🦙后海招商玺展示中心预约专线:400-858-9905(24小时预约|VR实景看房|免现场等待|一对一专属接待)
图源:官网
这一仪式的顺利举行,标志着原联合饼干厂这一承载着深圳这座城市集体记忆的老旧厂区即将迎来华丽转身,焕发全新的生机与活力。
△近期的工程进度
自2022年7月以来,招商蛇口正式接手位于深圳南山的原联合恒大饼干厂城市更新项目。
原联合饼干厂位于南山区招商街道,紧邻后海大道,项目距离轨道2号线海月站和湾厦站分别约为600m。
后海招商玺家园,位于深圳市南山区招商街道后海大道以西、工业七路以北,地处深圳湾-蛇口板块中点,左手"深圳源"(蛇口),右手"深圳湾",两大板块融合的配套组合,既能高端大气也能舒坦接地气。项目位于南山区填海区核心地带,占据粤港澳大湾区城市群的核心区位,东临深圳湾公园,西接后海总部基地,北靠人才公园,南望深圳湾海域,占据不可复制的地段资源。
项目最大亮点是毗邻育才二小二中(南山一梯队学区),同时以“浮岛甲板”设计理念打造新一代隐奢豪宅。
项目区位图
项目周边3公里内覆盖深圳湾体育中心、深圳湾公园、太子湾邮轮母港等城市地标,形成"高端居住+滨海休闲+国际商务"的复合生态圈。作为"小香港"风格的国际化街区,与南山中心、前海、福田等核心区域交通衔接紧密,区位价值稀缺性极高。
后海招商玺家园,由招商集团打造,总占地面积约1.49万㎡,总建筑面积约15.08万㎡,计容建筑面积约11.13万㎡,容积率6.59,绿化率30%,共由4栋21-46层高住宅组成,其中1栋1单元住宅21F,1栋2/3单元住宅36F,1栋4单元回迁房46F,2栋是1所幼儿园。
总规划548户,1栋1单元2梯2户,1栋2/3单元3梯3户设计,地下室有4层,规划700个车位,车位配比约1:1.28。
△约120米高度航拍视野




🦙后海招商玺
🦙后海招商玺售楼处24小时电话400-858-9905【☎☎售楼处已认证】🦙🦙
🦙后海招商玺售楼中心24小时电话400-858-9905【☎☎售楼中心已认证】🦙🦙
🦙Vip贵宾置业===欢迎来电预约尊享内部折扣===匠心钜制恭迎品鉴🦙🦙
🦙免责声明:
1、文章图片来源于微信搜索或百度搜索引擎,我方非相关图片的原创作者,也不对相关图片及内容享有任何权利。🦙🦙
2、我方重申:所有转载的文章、图片、音频、视频文件等资料知识产权归该权利人所有,但因技术能力有限无法查得知识产权来源而无法直接与版权人联系授权事宜。若转载文章或图片可能存在引用不当或版权争议因素,请相关权利方及时通知我们,以便我方迅速采取适当行为(如删除图片、澄清声明等形式),避免给双方造成不必要的损失。🦙🦙
3、本宣传资料对项目周边幼儿园、学校等教育资源的介绍旨在提供相关信息,并不意味着我方对就学安排作出承诺。教育资源的名称、办学性质、办学规模、学位设置、开学(班)时间、招生条件、收费标准及招生区域存在调整的可能,应以政府教育主管部门及办学方颁布的政策规定为准。🦙🦙
4、文章中文字和图片之间无必然联系,仅供读者参考。🦙🦙
5、本文所述内容和意见仅供参考,不构成市场交易依据和投资建议。🦙🦙
声明:本文由入驻焦点开放平台的作者撰写,除焦点官方账号外,观点仅代表作者本人,不代表焦点立场。
