三亚保利栖麓商铺售楼处首页网站-保利栖麓商铺营销中心-保利栖麓商铺欢迎您-楼盘详情-最新价格-户型图-容积率@最新售楼处2025-12-06
扫描到手机,新闻随时看
扫一扫,用手机看文章
更加方便分享给朋友
🏅保利栖麓商铺开发商电话:400-873-0112(已认证☑☑☑)
🏅保利栖麓商铺售楼中心电话:400-873-0112(已认证☑☑☑)
🏅保利栖麓商铺营销中心电话:400-873-011🏅保利栖麓商铺开发商电话:400-873-0112(已认证☑☑☑)
🏅保利栖麓商铺售楼中心电话:400-873-0112(已认证☑☑☑)
🏅保利栖麓商铺营销中心电话:400-873-0112(已认证☑☑☑)2(已认证☑☑☑)
✅购房困惑?专业帮您!🎯
专属房产顾问一对一精准服务(直连开发商)
丨楼盘位置丨户型介绍丨房源情况丨优惠活动丨教育资源丨交通便利丨样板间展示丨社区环境丨交房标准丨周边配套

——100万买住宅底商——低门槛、小总价、轻松购市新行政中心资产
占地面积:7.8万㎡建筑面积:37万㎡(其中14,18地块商业建面约4705㎡)产权年限:住宅70年/商业40年总套数:住宅2875套,商业(14,18地块底商)81套商业层数:一层面积段:约26.45-87.58㎡层高:一楼挑高6m 开间/进深:开间约3.8-5.4m,进深约8-12m 装修标准:商业(毛坯)

品牌篇 保利栖麓,央企品质钜筑品牌优势:世界强打造中国保利集团,2022年位居《财富》世界500强第位。旗下保利发展控股,常年稳居全国开发企业前五,央企第,优质绿档房企,29载恢弘布局全国115个城市,项目1200多个,深耕海南10年以来,敬献22盘经典著作。(实景图)
🏅保利栖麓商铺开发商电话:400-873-0112(已认证☑☑☑)
🏅保利栖麓商铺售楼中心电话:400-873-0112(已认证☑☑☑)
🏅保利栖麓商铺营销中心电话:400-873-0112(已认证☑☑☑)
区位篇区位优势:抱坡新城 ,行政文体双驱动抱坡新城属于海南政府最新规划三亚总部经济区内,承担三亚文化📚体育🥇与新的行政办公中心区的重要功能,在自然资源的打造上更具前瞻性地融合“山⛰、海、河🛶、城🏘”众多元素,区域值不彰自显。项目位于政府规划的万亩抱坡岭森林公园中的居住版块, 未来可期!
产品篇高需求消费人群覆盖,人气十足住宅共2857户安居业主,自有万人社区支撑;项目西侧和南侧均规划有教育用地;商街近享学府人流地利;学府所在,轻松聚金;北侧预留三亚市人民医院新院区用地;覆盖市政、医院、学校的高需求消费人群;稳定日人流量近万人次 ;人气好铺在手,自然不愁赚。邻里综合型生活场首层社区临街底商,打造生活主题休闲商街 ;周边多个项目开发建设中,2公里内,社区商铺祗此一处;填补两公里内邻里商街空白,打造学府,新行政中心,医院旁的一站式缤纷生活场展望未来人潮不断集聚。


灵动空间,多元创享享8-12m高功能型进深,3.8-5.4m敞阔开间;6m性价比大挑高,满足多元空间灵感;一楼经商,二楼生活;聚金邻里等生活所需;以更小投入,掌控更大未来。
低门槛,轻松购主推产品面积段集中在约49-55㎡;低门槛投入,高投资收益;甄稀市新行政中心资产;仅献81套;低门槛,轻松购。
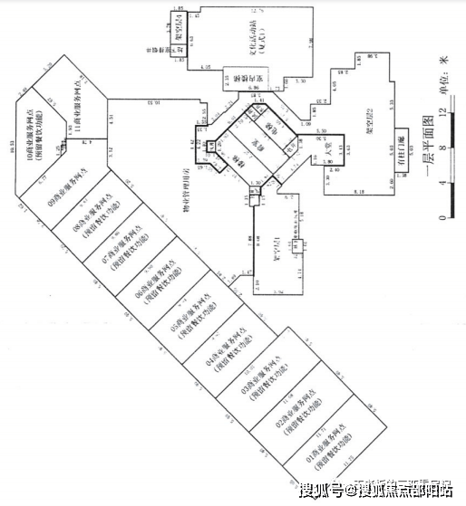
商铺平面图14-1#号楼18套(面积28.2㎡-74.81㎡)

14-4#号楼11套(面积27.79㎡-73.59㎡)14-6#号楼14套(面积43.47㎡-87.58㎡)14-7#号楼4套(面积66.76㎡-67.38㎡)


🏅保利栖麓商铺开发商电话:400-873-0112(已认证☑☑☑)
🏅保利栖麓商铺售楼中心电话:400-873-0112(已认证☑☑☑)
🏅保利栖麓商铺营销中心电话:400-873-0112(已认证☑☑☑)




18-1#号楼13套(面积31.58㎡-70.35㎡)18-2#号楼10套(面积31.43㎡-60.42㎡)18-3#号楼11套(面积53.51㎡-69.51㎡)(注:以上建筑面积非最终实测面积,最终以实测报告为准,解释权归开发商所有)


🏅保利栖麓商铺开发商电话:400-873-0112(已认证☑☑☑)
🏅保利栖麓商铺售楼中心电话:400-873-0112(已认证☑☑☑)
🏅保利栖麓商铺营销中心电话:400-873-0112(已认证☑☑☑)





🏅保利栖麓商铺开发商电话:400-873-0112(已认证☑☑☑)
🏅保利栖麓商铺售楼中心电话:400-873-0112(已认证☑☑☑)
🏅保利栖麓商铺营销中心电话:400-873-0112(已认证☑☑☑)
10大卖点,买定保利栖麓烫金资产央企保利开发建设;市新行政中心全季生意旺铺甄稀旺铺;高需求消费业主社区旺铺;铺铺临街,八方来客;建筑面积约26.45-87.58㎡鎏金钻石铺;黄金比例,开间约3.8-5.4m,进深约8-12m;天然气入户,全业态硬件设计,不限业态,轻松收租随意经营;首层挑高6米,空间自由改造,,一楼经营,二楼灵活使用;小面积,低总价,低门槛;自由购,轻松置业。
┃ 预约流程
拨打营销中心热线400-873-0112
说明意向户型及到访时间
获取预约确认信息
按约定时间至售楼处享受专属服务
┃ 服务特色
售楼中心一对一专业顾问全程接待
提前备妥个性化房源资料
避开高峰,享受舒适看房环境
┃ 温馨提示
售楼处服务时间(24小时预约|VR实景|免现场等待|尊享一对一专属服务)
免责声明:部分信息来源于网络,如果侵权,请联系及时删除本宣传资料不构成邀约邀请,对周边、政府规划、商业配套、教育资源、投资前景等数据和图文仅为提供相关信息,该信息以政府最终批文为准,开发商不对此作任何承诺。买卖双方的权利义务以双方签订的买卖合同约定及附件、实际交付为准,本公司保留对宣传资料修改的权利,敬请留意最新资料。联系号码:
400-873-0112。
声明:本文由入驻焦点开放平台的作者撰写,除焦点官方账号外,观点仅代表作者本人,不代表焦点立场。
