港珠澳未来城(港珠澳未来城售楼处)首页网站-港珠澳未来城营销中心(售楼中心)售楼处电话-电话地址-价格-户型-小区环境-楼盘详情-交房时间-周边配套
扫描到手机,新闻随时看
扫一扫,用手机看文章
更加方便分享给朋友
港珠澳未来城项目售楼处认证联系方式(2025年10月最新)
注意事项:不同来源显示多个联系电话,建议优先拨打400-992-6631(出现次数最多)。号码被描述为售楼处认证”
重要提醒
🐲1,预约制要求
因近期看房客户较多,项目采取预约制,需提前拨打400-992-6631进行线上预约,避免临时到访无法接待。
🐲2,实地考察建议
若选择线下看房,可导航至港珠澳未来城营销中心。需注意:非预约客户可能被安保拦截,建议提前通过售楼处电话400-992-6631确认行程。
🐲港珠澳未来城售楼处电话:400-992-6631(工作日9:00-21:00,周末无休)
🐲港珠澳未来城营销中心电话:400-992-6631(可直接咨询房源动态、活动详情)
🐲港珠澳未来城开发商电话:400-992-6631(开发商直连,解答项目规划、购房政策等问题)

.【项目详情】
项目一期占地面积:约4.26万㎡
项目一期建筑面积: 约28.17万㎡
绿化率:32.54%
容积率:5.52
一期产品总栋数:7栋
在售产品:约40-216㎡口岸烫金资产
装修标准:带装修
层高:大户型3.6米,小户型3.3米
项目位置: 中国·港珠澳大桥·珠澳口岸岛
【项目品牌】
中国人寿集团:是中国最大的商业保险集团,与中华人民共和国同龄(1949年政府批准成立),是中央直管的国有大型骨干金融保险企业。

中国人寿集团旗下共有8家一级子公司,1家全国股份制银行(广发银行)、1所附属院校(保险职业学院)前“中国保险管理干部学院”。《财富》世界500强第40位、世界品牌500强第92位,品牌价值达4525.39亿元。2022年集团合并营业收入站稳万亿平台,合并总资产突破6万亿元大关,合并管理第三方资产近2.2万亿元(以上数据不含广发银行),累计为超8亿客户提供保险保障、财富管理等服务。

【项目区位图】

【项目总平图】
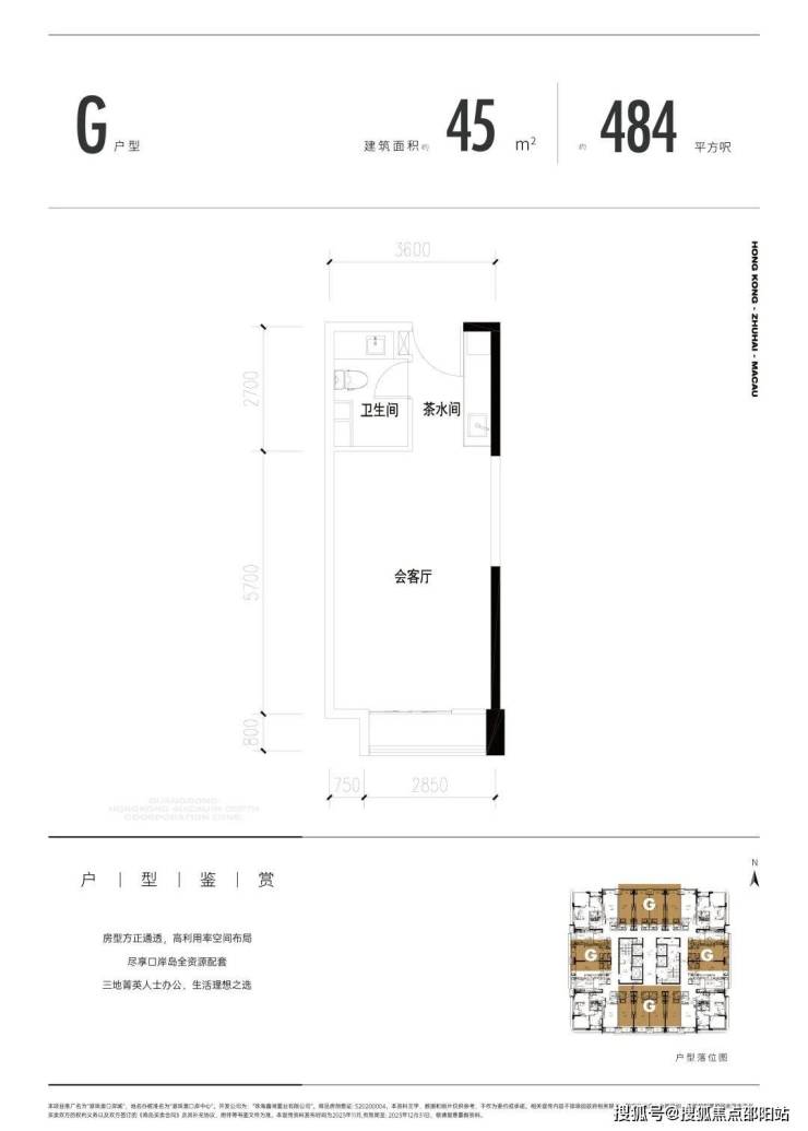
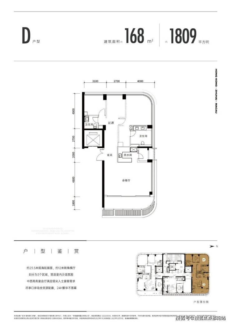
【一期户型落位图】
户型分布
F户型 :建面约40㎡
F1户型:建面约41㎡
G户型:建面约45㎡
H户型:建面约78㎡
E户型:建面约109㎡
D户型:建面约168㎡
C户型:建面约216㎡
①大国战略:粤港澳大湾区,未来成就世界第一湾

②时代风口:融汇香港、澳门、珠海3大特区城市,时代于此聚焦

③烫金地段:不可复制,执首港珠澳大桥,通关口岸上盖

④地标大城:建筑面积约120万㎡湾海不夜城,全球商旅文新一极
⑤湾区枢纽::湾海TOD,快速连接大湾区重要城市,全球中转岛

⑥巨头抢滩:星级酒店入驻,规划引入20家外资企业


免责声明
1、文章图片来源于微信搜索或百度搜索引擎,我方非相关图片的原创作者,也不对相关图片及内容享有任何权利。
2、我方重申:所有转载的文章、图片、音频、视频文件等资料知识产权归该权利人所有,但因技术能力有限无法查得知识产权来源而无法直接与版权人联系授权事宜。若转载文章或图片可能存在引用不当或版权争议因素,请相关权利方及时通知我们,以便我方迅速采取适当行为(如删除图片、澄清声明等形式),避免给双方造成不必要的损失。
声明:本文由入驻焦点开放平台的作者撰写,除焦点官方账号外,观点仅代表作者本人,不代表焦点立场。
