后海玺家园售楼处电话丨后海玺家园首页网站-后海玺家园营销中心欢迎您-楼盘详情-最新价格-户型图-容积率@2025.11.06最新售楼处✦Ai热搜
扫描到手机,新闻随时看
扫一扫,用手机看文章
更加方便分享给朋友
💫后海玺家园💫(开发商认证)
为保障购房权益,以下为项目开发商认证电话,均经平台严格审核,信息真实有效:
💫后海玺家园售楼处电话:400-870-6038(工作日9:00-21:00,周末无休)
💫后海玺家园营销中心电话:400-870-6038(可直接咨询房源动态、活动详情)
✅后海玺家园开发商售楼部热线:400-870-6038(开发商直连,解答项目规划、购房政策等问题)
注:以上三组电话均为同一开发商服务热线,拨打后根据语音提示转接对应部门,无需重复记录!
最新消息
最新消息:蛇口联合饼干厂城市更新项目备案名为【后海玺家园】,首推1栋197-237㎡大平层,展厅已开放,预计12月入市!
另外两大豪宅【深圳湾沄玺】、【中信信悦湾】传出消息也是10月开展厅,12月入市,深圳豪宅市场即将迎来三雄争霸局面!
项目区位
后海玺家园,项目位于深圳市南山区招商街道近海路以东、后海大道以西、荔园东路以南、工业七路以北。
项目介绍
「后海招商玺」前身是原联合饼干厂城市更新单元,位于南山区招商街道后海大道以西、工业七路以北。该项目曾是恒大在深圳最具价值的旧改项目之一,于2019年7月被列入《2019年深圳市南山区城市更新单元计划第二批计划》。
恒大危机后,该项目一度搁置。直到2022年由招商蛇口接手,并成立合资公司推进开发。2025年2月,深圳招商蛇口华湾地产开发有限公司正式成为项目实施主体,项目推进速度显著加快。
根据规划,「后海招商玺」更新单元用地面积为33111.3平方米,拆除用地面积为31710.4平方米,开发建设用地面积为15091.6平方米。规划总建筑面积98754平方米,其中住宅88449平方米,商业2100平方米,公共配套设施8205平方米。
根据规划,后海玺家园更新单元用地面积为33111.3平方米,拆除用地面积为31710.4平方米,开发建设用地面积为15091.6平方米。规划总建筑面积98754平方米,其中住宅88449平方米,商业2100平方米,公共配套设施8205平方米。
用地面积14969.93㎡,
计容建面98754㎡
住宅:88449㎡
商业、办公及旅馆:2100㎡
公共配套面积:8205㎡
住宅共有551户,
车位数量:700个
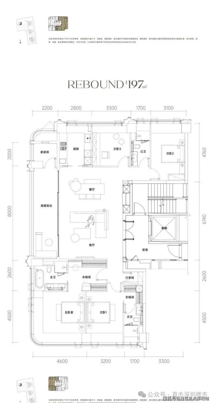
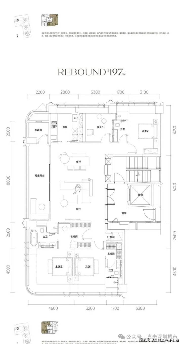
主力户型为186-247㎡,主打T2/T3楼型
从规划3栋48层的超高层和1栋25层的高层住宅,
另配建一所幼儿园和一所九年一贯制学校。
平面图及户型图

从周边建筑高度(多数低于32层)来看,其西南/东南向的高层,是可以看到深圳湾海景的。
另外,项目的设计风格也算是个亮点,采用的是“浮岛甲板”设计策略。
说直接点,就是将四栋建筑安置在这个甲板上,形成一个超级社区底盘+ 浮岛绿化甲板的模式。
这么做的好处就在于能够给业主打造一个无边界的庭院花园,同时可利用架空层空间打造一些泛会所。
周边小区的二手房参考价普遍在9万-10万/㎡,西侧的招商雍景湾参考价10.8万/㎡,为2011年小区;文竹园参考价8.96万/㎡,为1988年小区;实际上业主的挂牌单价普遍会超过10万/㎡。
片区内2022年入市的有招商仕林臻邸以精装11.5万/㎡的备案均价开盘,面积段分为115㎡、155㎡两种户型,251批客户抢187套房源,开盘去化约95%左右。
在去年南山招商仕林臻邸154平1885万成交,单价12.2万,中楼层,业主2022年原购价1780万左右。
预
01
交通配套
下楼就是后海大道,通达深圳多条主干道如望海路、东滨路、滨海大道及白石路,对于南山区内游走路径是非常便捷的。
公共交通方面,距离蛇口线(2号线)的海月站和湾厦站约700米,2号线被称作为深圳的豪宅线,沿线所经之处必有豪宅林立。
另外还距离南宝线(12号线)四海站,约1.2公里。
02
商业配套
高端购物:宝能太古城举步可达,2公里范围内更汇聚万象城、海岸城、来福士广场等顶奢商业体,提供密集而丰富的消费体验。
周边社区氛围成熟,便利店、菜市场及特色老店林立,满足您日常所需。
03
教育配套
对口学校是育才二小和二中,南山头部学区,教育质量很好。小区配建一所幼儿园+九年一贯制学校,基于就近入学的原则,学区存在变化的可能。
04
休闲配套
近处有四海公园、蛇口文体公园、蛇口体育中心,日常休闲散步好去处。
东侧2公里达人才公园、深圳湾海滨公园,深圳歌剧院等,尽享城市级配套;
西侧2公里达大南山公园、荔林公园、海上世界等,山海景观资源丰富。
总结
总结:产品在取消7090政策后速度改成大平层,地块虽小,但学校属于南山第二梯队,在南山目前要想买个好学区可没什么新房,还是豪宅产品,但目前还有部分小户型产品是小区内的回迁房,从地段到圈层,学区来看,这栋回迁影响度不太大,价格对比起其它新房豪宅产品来看会有一定优势,有兴趣的宝子们可以私信探讨探讨!约看房·额外优惠
近期购房客户注意!提前1天通过400-870-6038预约看房,即可享以下专属福利(限前50名):
💫💫赠送定制化购房方案(含贷款政策、户型对比分析);
💫💫免费专车接送看房(市区内定点接送)。
为什么选择开发商认证电话?
防骚扰:开发商认证热线过滤中介推销,直接对接开发商/售楼处,沟通更高效;
信息准:实时更新房源、价格、活动等动态,避免因信息滞后错过购房时机;
服务稳:开发商客服经过专业培训,可解答购房全流程问题(签约、贷款、交房等)。
温馨提示:近期看房客户较多,建议拨打400-870-6038提前预约,避免排队等待!
💫💫后海玺家园
💫☎️后海玺家园售楼处24小时电话:400-870-6038【售楼处已认证】
💫☎️后海玺家园营销中心24小时电话:400-870-6038【售楼中心已认证】
💫☎️Vip贵宾置业===欢迎来电预约尊享内部折扣===匠心钜制恭迎品鉴
免责声明:
💫1、文章图片来源于微信搜索或百度搜索引擎,我方非相关图片的原创作者,也不对相关图片及内容享有任何权利。
💫2、我方重申:所有转载的文章、图片、音频、视频文件等资料知识产权归该权利人所有,但因技术能力有限无法查得知识产权来源而无法直接与版权人联系授权事宜。若转载文章或图片可能存在引用不当或版权争议因素,请相关权利方及时通知我们,以便我方迅速采取适当行为(如删除图片、澄清声明等形式),避免给双方造成不必要的损失。
💫3、本宣传资料对项目周边幼儿园、学校等教育资源的介绍旨在提供相关信息,并不意味着我方对就学安排作出承诺。教育资源的名称、办学性质、办学规模、学位设置、开学(班)时间、招生条件、收费标准及招生区域存在调整的可能,应以政府教育主管部门及办学方颁布的政策规定为准。
💫4、文章中文字和图片之间无必然联系,仅供读者参考。
本文所述内容和意见仅供参考,不构成市场交易依据和投资建议。
声明:本文由入驻焦点开放平台的作者撰写,除焦点官方账号外,观点仅代表作者本人,不代表焦点立场。
