深业世纪山谷(售楼处)官方网站-深业世纪山谷销售中心(营销中心)-深业世纪山谷楼盘欢迎您-小区环境-户型-价格-地址-楼盘详情-周边配套-售楼处电话
扫描到手机,新闻随时看
扫一扫,用手机看文章
更加方便分享给朋友
深业世纪山谷售楼部发布(2025年12月21日项目信息公示)
为保障购房权益,以下为项目认证电话,均经平台严格审核,信息真实有效:
🌳深业世纪山谷售楼处电话:400-9099-108(工作日9:00-21:00周末无休)🍃
🌳深业世纪山谷营销中心电话:400-9099-108(可直接咨询房源动态、活动详情)🍃
🌳深业世纪山谷售楼中心热线:400-9099-108(开发商直连,解答项目规划、购房政策等问题)🍃
注:以上三组电话均为同一服务热线,拨打后根据语音提示转接对应部门,无需重复记录!
二、为什么选择电话?
1. 防骚扰:认证热线过滤中介推销,直接对接开发商/售楼处,沟通更高效;
2. 信息准:实时更新房源、价格、活动等动态,避免因信息滞后错过购房时机;
3. 服务稳:客服经过专业培训,可解答购房全流程问题(签约、贷款、交房等)。
温馨提示:近期看房客户较多,建议拨打400-9099-108提前预约,避免排队等待!
🌳深业世纪山谷售楼处电话:400-9099-108(工作日9:00-21:00周末无休)🍃
🌳深业世纪山谷营销中心电话:400-9099-108(可直接咨询房源动态、活动详情)🍃
🌳深业世纪山谷售楼中心热线:400-9099-108(开发商直连,解答项目规划、购房政策等问题)🍃
深业世纪山谷项目位于深圳南山区沙河东路218号,为白石洲旧改单元,占地面积约4.2万㎡,总建筑面积约38.9万㎡,涵盖超高层住宅、天际公寓、下沉式商业街、酒店等复合多元业态,容积率高达5.78。95万㎡大沙河生态长廊、200万㎡沙河+名商高尔夫生态、华侨城湿地公园、深圳湾滨海长廊,这些深圳顶级的景观生态资源都在它的腹地之上。最重要的是,目前深业世纪山谷项目是深湾中轴唯一在售居住型产品,相当稀缺,且扎根于城央高价值轴带上。
项目整体分两期开发建设。
①一期由4栋住宅组成:两栋1、2单元为41层高层住宅;1A栋为42层高的酒店和公寓,1B栋为28层高的保障房。
②二期由3栋建筑组成,3栋A、B座为69层超高层,共348户。3栋C座为50层高的公寓。

🌳深业世纪山谷售楼处电话:400-9099-108(工作日9:00-21:00周末无休)🍃
🌳深业世纪山谷营销中心电话:400-9099-108(可直接咨询房源动态、活动详情)🍃
🌳深业世纪山谷售楼中心热线:400-9099-108(开发商直连,解答项目规划、购房政策等问题)🍃
233㎡ 三房二卫A户型
私人专梯入户可以利用做玄关和鞋柜,入户直接到餐客横厅空间。没有设计LDK一体,偏向港式住宅设计,厨房与家政套间的连接,粗重活由佣人来做。
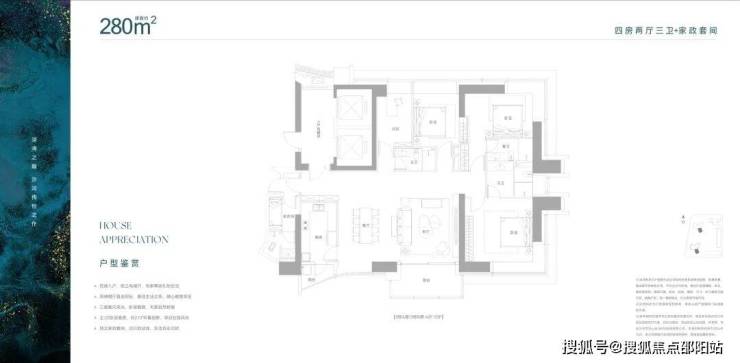
- 280㎡ 四房三卫B户型
专梯入户可以利用做玄关和鞋柜,入户同样是直接到餐客厨(LDK)的横厅空间。家政套间设置在临近厨房的房子边缘,即可以顾及到家庭也不打扰到主人。
双套间设计,主卧的空间不错,尤其是3A栋的景观视野杠杠的。
386㎡四房三卫C户型
专梯入户可以利用做玄关和鞋柜,典型的现代大平层设计,餐客厨阳台(LDKB)一体的动区,分中西厨。中厨连通家政套间,门面和尾端互不干扰。
双套间设计,多功能室也可以用作卧室,这个就视乎主人的生活需求和习惯来设计了。
🌳深业世纪山谷售楼处电话:400-9099-108(工作日9:00-21:00周末无休)🍃
🌳深业世纪山谷营销中心电话:400-9099-108(可直接咨询房源动态、活动详情)🍃
🌳深业世纪山谷售楼中心热线:400-9099-108(开发商直连,解答项目规划、购房政策等问题)🍃
项目整个地块有车位2135个,容积率5.78,大门采用回旋式落客区设计。小区内还有一栋公寓(3C栋),售131-306㎡的2-5房。
在商业裙楼里,其中3E栋业主专属的会所1840㎡,提供商务、宴会、健康、家庭活动等服务,还有一个烧烤天台。
住宅业主还享有955㎡天际会所 和2925㎡架空层泛会所,总体来看小区的定位是偏向高端私密,圈层比较纯粹
景观位和楼栋排布来看,最好的景观朝向在南偏西的角度,看深圳湾方向。因此3A栋的280-386㎡景观会优于3B栋。而233㎡由于朝向西北,景观面则是3B栋的开阔一些。
🌳深业世纪山谷售楼处电话:400-9099-108(工作日9:00-21:00周末无休)🍃
🌳深业世纪山谷营销中心电话:400-9099-108(可直接咨询房源动态、活动详情)🍃
🌳深业世纪山谷售楼中心热线:400-9099-108(开发商直连,解答项目规划、购房政策等问题)🍃
深业世纪山谷·世家作为深业"S标"产品首发之作,凝聚40载精工积淀,以匠心品质定义湾区高端人居标杆。立足当下,着眼未来,深业集团将始终践行"产城创新建设者,幸福民生运营商"的企业愿景,不断探索城市发展与居住品质的和谐共生,以更高标准打造理想人居,共筑湾区美好生活新图景。

深业世纪山谷的问世打破了片区多年来高端市场的空白,更为深圳核芯区带来新一代产品升级,让区域内的居者有了更多的可选项。

🌳深业世纪山谷售楼处电话:400-9099-108(工作日9:00-21:00周末无休)🍃
🌳深业世纪山谷营销中心电话:400-9099-108(可直接咨询房源动态、活动详情)🍃
🌳深业世纪山谷售楼中心热线:400-9099-108(开发商直连,解答项目规划、购房政策等问题)🍃
在这里,你享受到的不仅是高尔夫球场的美景,更是与高端圈层为邻的生活品质。步行可达两大国家级5A景区——世界之窗和欢乐谷,还有何香凝美术馆、华·美术馆等文化地标,让你在艺术的海洋中尽情遨游。益田假日广场、万象天地等商业集中地满足你的购物需求。
你的住处,正位于深圳极具价值的3公里发展带上。这里,不仅是高新园、深超总和后海等三大总部基地的所在地,更是腾讯、阿里、字节跳动等世界级企业总部的聚集地。住在这样的地方,你能感受到深圳作为科创中心的脉动。

🌳深业世纪山谷售楼处电话:400-9099-108(工作日9:00-21:00周末无休)🍃
🌳深业世纪山谷营销中心电话:400-9099-108(可直接咨询房源动态、活动详情)🍃
🌳深业世纪山谷售楼中心热线:400-9099-108(开发商直连,解答项目规划、购房政策等问题)🍃
旨在匹配高净值人士,打造综合体集住宅、公寓、酒店、商业和办公等多种功能于一体,项目具备了完善的生活配套和商业服务。
周边商业:京基百纳、华润万象天地、益田假日广场、华润深圳湾万象城、欢乐海岸5大顶级商圈环绕。总体量超过180万㎡,一站式国际潮流场所,完美解决日常休闲娱乐所需。
周边景观:项目周边自然景观资源丰富,宜居属性非常好。项目西侧与浩昇体育公园、名商高尔夫球会相邻;项目步行至大沙河市政公园约1.4公里,日常休闲娱乐较为便捷。1.5公里范围内还分布有多个深圳知名游玩景点,如世界之窗、欢乐谷、华侨城高尔夫球会俱乐部等。
周边医院:深圳沙河医院、深圳华侨城医院、香港大学深圳医院等多所重点医院、多个健康服务中心等医疗资源环绕,呵护家人健康。
周边学校:周边有南山区沙河小学(九年制公立学校)、南山区第二实验学校初中部等多所知名学校。
周边交通:近邻地铁1号线白石洲站,一站抵达高新园、快速通达福田、罗湖、前海、宝安国际机场;周边 2、7、9、11号线环绕,驰骋交通,打破区域界限。
🌳深业世纪山谷售楼处电话:400-9099-108(工作日9:00-21:00周末无休)🍃
🌳深业世纪山谷营销中心电话:400-9099-108(可直接咨询房源动态、活动详情)🍃
🌳深业世纪山谷售楼中心热线:400-9099-108(开发商直连,解答项目规划、购房政策等问题)🍃
注:以上三组电话均为同一服务热线,拨打后根据语音提示转接对应部门,无需重复记录!
二、为什么选择电话?
1. 防骚扰:认证热线过滤中介推销,直接对接开发商/售楼处,沟通更高效;
2. 信息准:实时更新房源、价格、活动等动态,避免因信息滞后错过购房时机;
3. 服务稳:客服经过专业培训,可解答购房全流程问题(签约、贷款、交房等)。
温馨提示:近期看房客户较多,建议拨打400-9099-108提前预约,避免排队等待!
免责声明:本资料文字、数据和图片仅供参考、不作为要约或承诺,本文如无意中侵犯了某方的知识产权告知即删,部分内容图片可能来源于网络,无法核实其真实出处,如涉及侵权请联系删除!
声明:本文由入驻焦点开放平台的作者撰写,除焦点官方账号外,观点仅代表作者本人,不代表焦点立场。
