华发院子售楼处24小时热线_珠海华发院子欢迎您|楼盘详情/小区环境/户型
扫描到手机,新闻随时看
扫一扫,用手机看文章
更加方便分享给朋友
珠海华发院子
售楼处24小时电话:400-0500-152
楼盘介绍丨专属顾问丨线上营销中心
珠海华发院子售楼处电话:400-0500-152【24小时电话】楼盘项目全面介绍:含开盘消息、交房时间、楼盘详情、房价、户型、详情、得房率、售楼处地址、首页网站、销售中心、楼盘地址、户型图、交通、备案价、项目配套、营销中心、开发商、周边配套等详情咨询——华发院子是继华发山庄之后,华发升级迭代的新中式别墅产品。项目位于珠海西部中心城区,北靠又一城、南望黄杨河!小区整体三面环水,享水郡省级湿地公园天然大氧吧。联袂名家共同打造,融合了传统中国元素及岭南特色文化,打造出来极具品质的标杆新中式院墅。


▲ 360大独栋别墅
珠海以其历史与摩登交融的独特魅力,吸引越来越多国内外人才定居在此,关于理想生活的想象,关于家宅的设计也有了更多的可能性。近期,设计师李玮珉为珠海华发院子打造的两套别墅正是珠海精致与格调生活的最佳诠释。
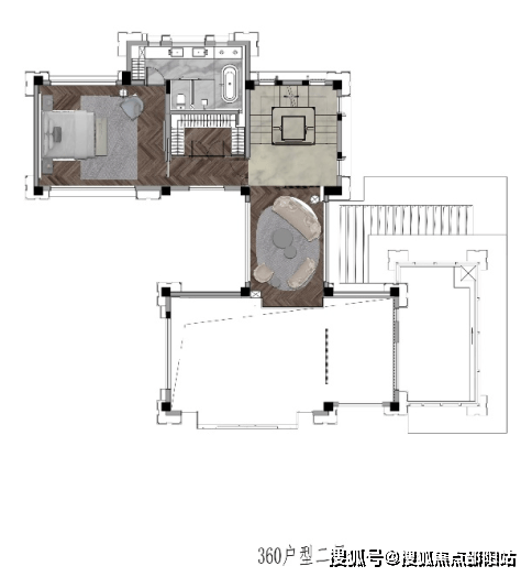
当走进华发院子366户型的时候能感受到行云流水的空间美学。它纯粹凝练的色调,独特的元素设计,构成了既当代写意,又具传统气韵的氛围,如智者般安静沉稳。

▲ 360户型图
△366户型的约1300m²后院实景
华发院子项目用地面积达到近10万平方米,气魄健壮,情韵飞动,大有“星垂平野阔,月涌大江流”式的“伟丈夫”气度。
纵向上,位于项目中间的“一街”构成了和谐的中轴,作为贯穿整个项目的核心景观,浓缩岭南园林景色,提供了壮丽独特的沉浸式游园体验;左右两侧院子产品分布排列。与中轴并列的另外“两街”,通过横向的巷子连接,围成了一条绕着项目核心区的环形“静街”,丰富巷道景观结构,增添归家路线的趣味性,让整个项目在壮伟之余也有曲径通幽的柔和之美。
横向上,以中轴的街道为分割线,左右两侧各有五条巷道,种以“四季主题”的岭南花果,命名为探花、闻莺、弄丹、念珠、木盈、秋实、暗香等,四季缤纷,打造“乱花渐欲迷人眼”的林荫小道。
▲珠海华发院子街坊、巷道实景图
项目地点位于中国广州珠海斗门区黄杨河畔,三面环水,自然景观优渥。它包合18栋大户型独栋别墅,53栋中户型独栋别墅以及65栋小户型双拼别墅。本项目旨在不同文化语境中,寻找相同的意象,融合出新的东方美学范本。将江南气韵融入岭南风骨,用集大成式的屋角飞槽、水石庭院,将岭南“桃源”种植在湾区土壤之上。华发水那花园别墅从主入口开始,经过大门、巷道、中心园林、水巷、归家庭院等多重空间谧境,直至黄杨河湿地公园。它不仅是对岭南文化的复兴也是兼收并蓄东方精袖生活的回归,将在世界湾,实现美好岛居梦想。







户型品鉴
140㎡双拼户型设计空间动向流畅,空间功能分布简明,以原木和暖色调表达温馨,烘托内外连贯的美学逻辑;以纯粹造境,捕捉多彩生活点滴,打造一种从视觉享受及至实用功能的构筑魅力;营造温和归属感,也柔软居者的精神内在。
通过客餐厅挑空区穿透和开放的处理方式,形成垂直空间的交流互动。各功能空间分明,动向流畅又紧密相连,丰富空间的同时也使空间更有趣。而客餐厅挑高的天花和大面积的落地窗为空间创造了更好的通风、采光同时也更好的将外景引入室内,开阔场域视觉,营造优雅环境,诠释艺术与生活的诗意……


211独栋户型居住度假社交别墅,区别传统度假别墅,强调社交艺术属性。
庭院式客餐厅,高挑客厅,舒适的暖调,优雅的钢琴,配合大面积庭院,打造自然温馨的生活。卧室270度转角观景窗,结合庭院生命之树,感受庭院四季的变化。星级酒店套房+品茗庭院,独立衣帽间,同时结合主卫景观露台,充分体验度假属性。顶层庭院露台。屋顶花园结合火塘休闲和吧台区,打造TOP级观景社交体验。
车库,天空灯膜结合线条灯带打造未来场景,可开和展示柜,彰显主人爱好的同时,也保证空间干净。入户结合独立只能系统,云石灯点缀,展现生活品质。门厅艺术装置火生花,归家体验到温暖的火焰,火生花串联整个空间,体现空间艺术品味。观光透明电梯与艺术楼梯结合,释放采光天井。镜面石材结合楼梯,楼梯自然形成一件艺术品。


大独栋户型以浅灰色调铺底,空间纯粹凝练,如智者般安静沉稳,设计细节中体现至臻品质,致广大而尽精微。如山水写意般晕染空间,重“气”与“韵”。点线面精准的比例划分,加上中性色调的融合,材质细腻质感的加持,使空间气质展现武夷,赋予居住者更丰富的,多层次的居住体验。
客餐厅温润的炉火潜入细致优雅的白色大理石中,现代又蕴藏古典气息的格珊将建筑气质与室内风格相融合,光影斑驳陆离间突显空间层次,也让空间环境的主次,轻重变得更加明晰。西厨中岛处略带反光的天花,将空间幻化。两层挑高的客餐厅空间透过通高落地玻璃帷幕与景观庭院链接,将景观雅苑震撼的呈现出来,疏林如画,倍添韵致。二楼活动间飘台的巧妙设计也让空间同样能够享有这份景致。
主卧120度环绕景致,依山傍水。除主卧占据三楼整层空间,拥有主卧自用书房及休闲露台外,其余的卧室也均为套间,体现了户型的尊贵感。
顶层结合户外活动空间设置大面积屋顶花园,设有天台BBQ及户外休闲区,能将一线黄杨河景一览无遗,拥入怀中。




珠海华发院子
售楼处24小时电话:400-0500-152
楼盘介绍丨专属顾问丨线上营销中心
珠海华发院子售楼处电话:400-0500-152【24小时电话】楼盘项目全面介绍:含开盘消息、交房时间、楼盘详情、房价、户型、详情、得房率、售楼处地址、首页网站、销售中心、楼盘地址、户型图、交通、备案价、项目配套、营销中心、开发商、周边配套等详情咨询
免责声明:部分信息来源于网络,如果侵权,请联系及时删除,联系电话:400-0500-152
近日,广东省政府印发广州、深圳、珠江口西岸、汕潮揭、湛茂五大都市圈发展规划。
深圳都市圈由深圳、东莞、惠州全域和深汕特别合作区组成,都市圈面积约16273平方公里,是全国人口和经济要素高度聚集、城镇体系和功能较为完善的城镇密集区,区域创新能力居全国前列,内部人员往来密切,形成了较为完善的产业分工体系,路网密度全国领先,要素高效流动格局基本形成。
《深圳都市圈发展规划》(以下简称《规划》)按照《国家发展改革委关于培育发展现代化都市圈的指导意见》《广东省国民经济和社会发展第十四个五年规划和2035年远景目标纲要》要求编制,是协调深圳都市圈各城市经济发展、社会民生、要素协同等一体布局的重要依据,是指导深圳都市圈各层次规划的重要纲领性文件。
《规划》要求,到2030年,深圳都市圈综合经济实力跃上新的大台阶,优势互补的区域发展格局基本形成,一体化合作机制基本建立,国际化水平显著提升,初步建成具有较高国际知名度的国际化大都市圈。展望到2035年,深圳都市圈基本实现社会主义现代化目标,区域协调发展格局更加完善,跨界区域城乡协同发展达到较高水平,产业体系、生态环境、基础设施、公共服务实现全面融合发展,建成具有中国气派、世界水平的创新型、国际化、现代化都市圈。
《规划》以同城化高质量发展为方向,以创新体制机制为抓手,着力推动基础设施一体高效、产业专业化分工协作、统一市场建设、公共服务共建共享、生态环境共保共治、城乡融合发展,加快构建以深圳为主中心、东莞和惠州为副中心、深汕特别合作区为增长极的“一主两副一极”功能区,推动形成由深莞穗发展轴、深莞惠河发展轴、深惠汕发展轴、与珠江口西岸都市圈协同发展轴为支撑的“四轴”区域空间发展体系。
《规划》坚持省级统筹、市县落实的工作机制,要求健全完善都市圈建设推进协调机制,建立区域间成本共担利益共享机制,推动落实都市圈一体化发展重大事项。坚持以规划确定项目、以项目落实规划,要求加强要素保障,强化重大项目管理,组织实施一批关系都市圈长远发展的重大项目。坚持动态管理,鼓励社会参与,要求加强对规划实施情况的监测评估,扩大都市圈建设中的公众参与,提升规划实施效能。

在粤港澳大湾区东部,中国改革开放以来的第一个经济特区创造了令人瞩目的“深圳速度”。以深圳为主中心的都市圈,被贴上了这些显眼的标签:
有钱——地区生产总值约4.9万亿元,分别约占全国和广东省的4.05%、37.96%,人均GDP达14.3万元,经济密度约3亿元/平方公里。
创新——华为、腾讯、OPPO、vivo、TCL等一批具有全球竞争力的企业云集于此,2022年都市圈专利申请量达478638件,专利授权量达348968件。
开放——2022年外贸进出口、外商直接投资额分别约占全国的8.7%、5.8%。
进入新发展阶段,粤港澳大湾区建设加速推进,新一轮科技革命和产业变革蓄势待发,为这里带来了新机遇、拓展了新空间、注入了新动能。
12月20日,广东省政府网站发布《规划》,提出要努力将深圳都市圈建设成为粤港澳大湾区核心增长极、高质量发展先锋典范、开放包容的世界窗口。
根据《规划》,深圳都市圈由深圳、东莞、惠州全域和深汕特别合作区组成,土地面积约16273平方公里,2022年常住人口3415万人,《规划》有关任务举措涵盖河源市和汕尾市部分区域。
广东省发展和改革委员会主任艾学峰指出,深圳都市圈地跨珠三角地区东岸(深莞惠)、沿海经济带支点(汕尾)及北部生态发展区(河源),都市圈内经济交往频密、人缘相近、文化相融,但都市圈内各市发展水平悬殊,深圳、东莞两市发展空间不足。
为此,《规划》从推进基础设施互联互通、携手打造科技创新产业体系、协作发展海洋经济、构建区域开放新格局、共建公共服务优质生活圈、加强生态环境共保共治、推进城乡融合发展、创新体制机制与规划实施保障等方面着手,提出要增强深圳中心城市核心竞争力和辐射带动能力,加快提升东莞、惠州副中心发展能级,高水平建设深汕特别合作区增长极,形成“一主两副一极四轴”的都市圈总体发展布局,实现中心引领、轴带支撑、协同联动。
艾学峰表示,《规划》的出台,将有利于进一步拓展深圳市发展空间,推进深圳建设更具改革开放引领作用的经济特区、更高水平的国家自主创新示范区以及科技和产业创新中心、更具辐射力带动力的全国经济中心城市、更具影响力的现代化国际化城市和更高质量的民生幸福城市,打造国际性综合交通枢纽;有利于加强深圳、东莞、惠州三市基础设施建设协调,建立区域产业、职能的分工协作机制,形成中心集聚、轴线拓展的集约发展态势;有利于河源、汕尾激发发展的内生动力,加快融入粤港澳大湾区,为全省“特区带动老区、发达地区带动欠发达地区”作出探索和试验。
深圳都市圈有多大?深圳都市圈有哪些周边城市入圈成功?深圳都市圈的发展定位是什么?最新最全最干货的深圳都市圈知识点一文全get↓
问:深圳都市圈有多大?
答:深圳都市圈位于粤港澳大湾区东部,由深圳、东莞、惠州全域和深汕特别合作区组成,土地面积约16273平方公里,规划有关任务举措涵盖河源市和汕尾市部分区域。
问:深圳都市圈有多少人?
答:2022年,深圳都市圈范围内常住人口3415万人。
问:深圳都市圈现有经济水平如何?
答:经济发展水平领先。深圳都市圈是全国人口和经济要素高度聚集、城镇体系和功能较为完善的城镇密集区。2022年都市圈地区生产总值约4.9万亿元,分别约占全国和广东省的4.05%、37.96%,人均GDP达14.3万元,经济密度约3亿元/平方公里。
问:深圳都市圈的发展目标是什么?
答:粤港澳大湾区核心增长极、高质量发展先锋典范、开放包容的世界窗口。到2030年,深圳都市圈综合经济实力跃上新的大台阶,优势互补的区域发展格局基本形成,一体化合作机制基本建立,国际化水平显著提升,初步建成具有较高国际知名度的国际化大都市圈。
——都市圈集约化发展格局基本建立。深圳核心引擎和辐射带动作用进一步增强,东莞、惠州整体发展能级进一步提升,依托交通要道、向外放射的发展轴带基本成型,形成以中心城市为引领、发展轴带为支撑、各城市协调联动的区域发展格局。
——都市圈高质量发展能级显著提升。区域高质量发展产业体系更加完备,创新动力活力明显增强,联合申报国家级省级科研项目数量显著增加,深圳都市圈研发投入强度达5%以上,都市圈发展质量、效益和可持续发展能力大幅提升。
——都市圈一体化联动更加有效。协同发展体制机制基本健全,统一开放的市场体系基本建立,基础设施互联互通基本实现,常住人口城镇化率超93%,1小时通勤圈总体形成。
——都市圈国际化开放水平明显提高。国际交往和合作水平不断提升,与港澳务实合作深入推进,与国际接轨的通行规则基本建立,国际化营商环境显著改善,基本形成全方位开放新格局。
——宜居宜业宜游优质生活圈加速形成。生态环境共保共治水平显著提升,低碳高效的能源支撑体系基本建成,民生服务共建共享水平明显提高,全面实现政务服务跨城通办。
展望到2035年,深圳都市圈基本实现社会主义现代化目标,区域协调发展格局更加完善,跨界区域城乡协同发展达到较高水平,产业体系、生态环境、基础设施、公共服务实现全面融合发展,建成具有中国气派、世界水平的创新型、国际化、现代化都市圈。
问:深圳都市圈总体布局是什么?
答:增强深圳中心城市核心竞争力和辐射带动能力,加快提升东莞、惠州副中心发展能级,高水平建设深汕特别合作区增长极,形成“一主两副一极四轴”的都市圈总体发展布局,实现中心引领、轴带支撑、协同联动。
深圳主中心:促进都市核心区扩容提质,提升城市综合承载力,强化资源要素配置能力,引领带动都市圈一体化发展。全力建设中国特色社会主义先行示范区,强化全国性经济中心城市功能,加快建设以深圳为主阵地的大湾区综合性国家科学中心,培育壮大战略性新兴产业,发展现代服务业,构建具有国际竞争力的现代产业体系。打造国际性综合交通枢纽,建设以海港、空港为枢纽,高铁、城轨、高速公路为骨架,高效衔接国际国内的综合立体交通运输体系。提升现代化国际化城市水平,对标创建国际消费中心城市建设,打造前海深港现代服务业合作区、河套深港科技创新合作区深圳园区、沙头角深港国际消费合作区等重大平台,加快构建与国际接轨的开放型经济新体制。
东莞副中心:立足“科技创新+先进制造”的城市定位,持续增强高质量发展动能,全面提升综合实力,增强经济发展活力和韧性,加快建设大湾区综合性国家科学中心先行启动区,打造中心城区、松山湖、滨海湾新区“三位一体”都市核心区,推动松山湖科学城、滨海湾新区、水乡功能区、银瓶合作创新区四大战略平台建设,打造具有全球影响力的创新高地、联接国内国际双循环的重要节点城市、以科技创新为引领的先进制造之都。
惠州副中心:全面提升城市综合竞争力,加快创新型城市建设,培育壮大石化、能源、新材料、高端电子信息、生命科学等支柱产业,建设世界级绿色石化产业高地,打造粤港澳大湾区(广东)清洁能源中心,推进大亚湾经开区、仲恺高新区、中韩(惠州)产业园、环大亚湾新区、潼湖生态智慧区、惠州新材料产业园、稔平半岛能源科技岛等重大平台建设,打造广东高质量发展新增长极,建设更加幸福国内一流城市。
深汕特别合作区增长极:创新建设区域协调发展合作范例,高水平推进深汕特别合作区规划建设,完善深汕特别合作区城市功能,发展战略性新兴产业和先进制造业,集聚和传递粤港澳大湾区经济能级,努力把合作区打造为重大产业项目承载地、新引进重大项目目的地和区域高质量发展孵化器、驱动器。
深莞穗发展轴:以深圳为核心,依托广深港高铁、穗莞深城际、广深铁路以及广深、莞深高速公路等交通通道,打造联通深莞穗的中部创新发展轴。推进“广州―深圳―香港―澳门”科技创新走廊规划实施,加快深圳光明科学城、河套深港科技创新合作区深圳园区、燕罗先进制造业园区、九龙山先进制造业园区、东莞松山湖科学城、滨海湾新区、水乡新城等科技创新平台建设,构建布局合理、开放互通的区域创新体系。
深莞惠河发展轴:以深圳为龙头,依托赣深高铁、深惠城际、京九铁路、长深高速公路等交通通道,联通东莞、惠州、河源,构建东北部产业发展轴。发展电子信息、高端装备制造、新材料等主导产业,打造深莞惠科技产业走廊。加快深圳坂雪岗科技城、大运深港国际科教城、新桥东先进制造业园区、深圳国际低碳城、深圳国际生物谷、深圳国际食品谷、东莞银瓶合作创新区、东莞东部工业园、惠州潼湖生态智慧区、广东(仲恺)人工智能产业园、惠城高新科技产业园、博罗智能装备产业园、深河产业园、深河科技园等开发建设,研究建设深河特别合作区。提升东江流域水资源供给保障水平,筑牢都市圈北部生态屏障。
深惠汕发展轴:加快建设深汕铁路、深圳外环高速支线、惠州稔平环岛高速公路,联通惠州、汕尾,打通深圳面向粤东沿海的交通通道,构建东部沿海发展轴。高水平建设深汕特别合作区,积极推进重要城市节点联动发展,加快推进环大亚湾新区、惠州新材料产业园、大亚湾石化产业园区、大亚湾新兴产业园、深圳(汕尾)产业园、汕尾高新区等重要产业节点建设。以大鹏湾、大亚湾、巽寮湾、双月湾、深汕湾、小漠湾、红海湾等优质山海资源为依托,打造世界级滨海生态旅游度假区。
与珠江口西岸都市圈协同发展轴:依托深中通道、深珠城际(伶仃洋通道)、深圳至南宁高铁,加强与中山、珠海、江门等珠江口西岸城市合作,打造跨江发展轴。联通“澳门―珠海”发展极点,加强与横琴粤澳深度合作区开放合作。强化前海片区与东莞滨海湾新区、中山翠亨新区联动发展,建设深圳―中山产业拓展走廊,推进粤港澳大湾区珠江口一体化高质量发展试点,着力打造环珠江口“黄金内湾”。
问:深圳都市圈有哪些轨道重点项目?
答:
一、“三横五纵”铁路格局
三横:莞惠城际,深惠城际大鹏支线、塘厦至龙岗城际和中南虎城际,深大城际、深惠城际龙岗至前海段、深汕高铁和汕汕铁路。
五纵:穗莞深城际、深莞增城际、广深中轴城际(原常平至龙华城际)、深惠城际龙岗至惠州段、广深铁路。
二、城际铁路
加快穗莞深城际南延线、深惠城际、深大城际、深惠城际大鹏支线、莞惠城际小金口至惠州北段等项目规划建设,推动广深中轴城际(原常平至龙华城际)、深莞增城际、塘厦至龙岗城际、深珠城际等前期研究,谋划推动港深西部铁路(洪水桥―前海)、深圳东部地区与深圳第二机场(惠州平潭机场)的快速轨道交通、深莞惠三市跨市市域快线或市域(郊)铁路的规划研究。
三、高铁
东向积极推进深汕高铁建设,增强深圳核心区与深汕特别合作区的快速联系。北向开展广州至深圳高铁新通道前期研究。西向加快建设深圳至江门铁路,推动深珠城际高铁通道功能研究。
问:深圳都市圈有哪些高水平实验室?
答:依托鹏城实验室、深圳湾实验室、人工智能与数字经济广东省实验室(深圳)、松山湖材料实验室、先进能源科学与技术广东省实验室等实验室,创建以高水平实验室为引领的实验室集群。加强省部共建国家重点实验室。聚焦信息科学、生命科学、材料科学、深海科技等领域,开展多学科交叉前沿研究。
问:深圳都市圈有哪些跨区域产业组团?
答:河套―西丽湖―光明―松山湖创新产业组团;前海片区―滨海湾新区―翠亨新区临港临空经济组团;坂田―观澜―塘厦―凤岗―平湖电子信息产业组团;坪地―清溪―新圩绿色低碳产业组团;潼湖―银瓶创新区装备制造产业组团;龙岗―坪山―大亚湾―惠阳高端制造产业组团;坪山―龙岗―大鹏―惠城―博罗―龙门健康产业组团。
问:深圳都市圈有哪些高水平对外开放门户?
答:深圳都市圈开放型经济发展水平持续保持国内领先,2022年外贸进出口、外商直接投资额分别约占全国的8.7%、5.8%。初步建成河套深港科技创新合作区深圳园区、滨海湾新区、中韩(惠州)产业园等一批高水平对外开放门户。
问:深圳都市圈如何破解住房难题?
答:共建共享跨市域安居住房。优化都市圈保障性住房规划布局,推动建立跨市域保障性住房建设合作机制。支持在东莞、惠州临深片区、深汕特别合作区等区域沿轨道交通建设大型安居社区,推动跨市保障性住房建设与市政配套设施协同发展,探索跨市域保障性住房建设与产业发展相结合,探索在临深片区共建人才社区,推动产城融合和职住平衡。
来源:广东省人民政府网、南方+、深圳特区报
声明:本文由入驻焦点开放平台的作者撰写,除焦点官方账号外,观点仅代表作者本人,不代表焦点立场。
