龙岸·君粼售楼处(龙岸·君粼) 首页网站-龙岸·君粼营销中心欢迎您-楼盘详情•最新价格-户型图-容积率@2025.12.1售楼处AI热搜
扫描到手机,新闻随时看
扫一扫,用手机看文章
更加方便分享给朋友
【龙岸·君粼购房必藏】预约咨询热线 现场详细解答丨项目介绍丨户型图丨在售房源丨特价房丨学校丨交通位置丨样板房丨小区图片丨交房时间丨周边配套丨
一、以下是销售部核心联系方式(认证)
为保障购房权益,以下为项目认证电话,均经平台严格审核,信息真实有效:
☎☎龙岸·君粼售楼处电话: 400-818-3129☎(工作日9:00以后周末无休)💬
☎☎龙岸·君粼营销中心电话:400-818-3129☎(可直接咨询房源动态、活动详情)💬
☎☎龙岸·君粼开发商售楼部热线:400-818-3129☎(开发商直连,解答项目规划、购房政策等问题)💬
注:以上三组电话均为同一服务热线,拨打后根据语音提示转接对应部门,无需重复记录!
二、为什么选择电话?
1. 防骚扰:认证热线过滤中介推销,直接对接开发商/售楼处,沟通更高效;
2. 信息准:实时更新房源、价格、活动等动态,避免因信息滞后错过购房时机;
3. 服务稳:客服经过专业培训,可解答购房全流程问题(签约、贷款、交房等)。
温馨提示:近期看房客户较多,建议拨打400-818-3129提前预约,避免排队等待!

龙岸君粼,位于龙华民治布龙公路南侧梅观高速公路东侧,紧邻地铁10号线光雅园站约200米,项目共分为三期开发,主要以临湖别墅、半山叠墅、高层住宅和风情商业街多种业态组成的低密度湖山别墅与叠墅的住区,花园拥有5300㎡的龙栖湖景观和滨水木栈道环绕内湖
基础资料
开发商:金光华地产
地址:深圳市龙华区民治街道雅园路与华南路交汇处
占地:9.9万㎡
建面:28万㎡
产权:70年(07-77年)
总户数:2125户
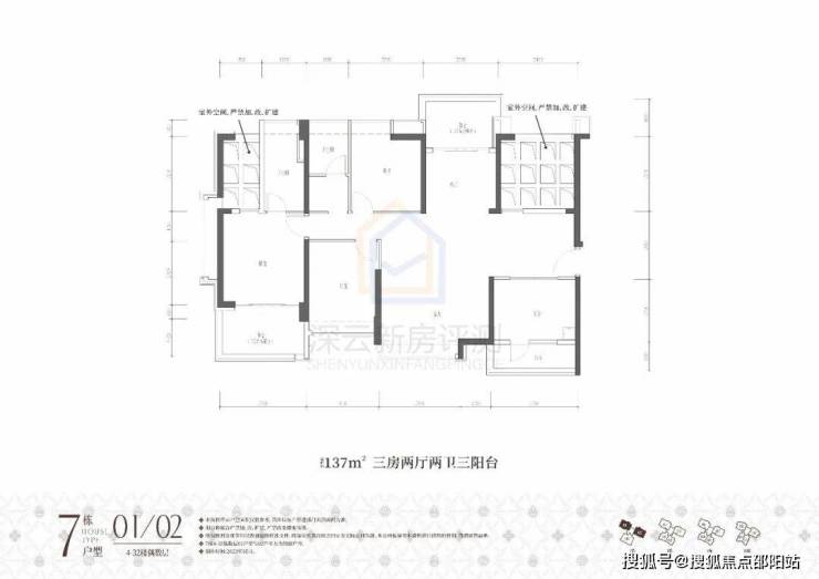
面积:86㎡3房1卫,109-118㎡4房2卫,136-137㎡4+1房2卫176-5房2卫
车位比:1955个1.0.9
梯户比:2梯3户
交楼标准:毛坯
物业公司:金光华物业
物业管理费:4.95元/㎡
容积率:1.99
绿化:60%
交楼时间:现楼
建筑类型:住宅
层高:3米
使用率:118%
楼层高:30-32层
栋数:7栋高层+49栋别墅
水电:民水民电
学校:华南实验学校
开发商实力
【28载城市运营·匠铸金光华圳央墅区】
金光华集团,立足于中国深圳,致力于成为粤港澳湾区高品质城市综合运营商。
2023年厚积薄发,巅峰再续,金光华依托区域的商户资源,建造多个低密豪宅项目,以溪山·君樾、龙岸·君粼项目为蓝本,联动片区内金光华储备用地形成大区域开发,构筑总建面逾150万㎡的全新人居版图——金光华圳央墅区。
难得的产业配套,龙岸所毗邻的深国际华南物流园、坂雪岗科技城-华为基地、梅林-彩田新一代信息科技总部基地与对望的星河WORLD双子塔,筑起全球万亿级数字经济圈。

难得的山湖资源,民治水库、民乐水库、雅宝水库、南坑水库4大自然生态湖泊环绕龙岸周围,还有塘朗山和银湖山两大邻居“靠山”,生态山湖,他处难寻。
【立体枢纽加速度·让大人物从容转瞬圳央】
“湾区级交通网格”:深圳北站—五和双枢纽,一小时大湾区各城从容出行,畅达全国
“地铁网格黄金交叉点”:深圳地铁10号线光雅园,南通福田、北接坂田、西联北站
交通方面:项目距离10号线光雅园站步行约350米左右,算是地铁口物业,在该站乘坐地铁北行一站可在五和站换乘地铁5号线,往南行3站即可进福田市区,轨道交通较为便捷,通勤南山及福田市区时效短。
教育方面:潜龙学校附属龙岸幼儿园 | 万科双语学校(私立) | 华南实验学校(小、初中部),书香雅趣,品味质感人生;有53个班,现有2547名学生,2020年中考最高分586分,龙华排名第5,属于龙华名校区。
商圈方面:项目自带社区商业,主要以社区铺位为主,周边8号仓奥特莱市购物中心、光雅园站两站即达建面约8万㎡的Cocopark等大型购物商场。
医疗方面:市第二人民医院 | 新华医院(在建三甲) | 深圳第二儿童医院(在建三甲)。
双CBD人文:红山展览馆、演艺馆、图书馆、美术馆 | 福田深圳音乐厅、图书馆、市少年宫、博物馆等。

生态方面:项目所处位置即是深圳的“中心湖区“,沿着项目周边的4大自然生态湖泊环伺周围,包含民治水库、民乐水库、雅宝水库、南坑水库。不仅是深圳最稠密的湖区所在地,更拥有塘朗山和银湖山两大山林资源。
宽阔的不仅是约2.0超低容积率,更是步步皆植被,生态进家园的约60%绿化率。

以时代之匠心,致敬世界湾区之辉煌
龙岸君粼,首批推出的别墅建筑面积约为206-258㎡,总价在2220-4200万之间,这是一手现楼别墅,以其低密的特质彰显稀贵价值。
“世家新范 墅以德传”,这不仅是龙岸君粼所传递的精神愿景,更是其矢志不渝的初心——为深圳人打造一处可以世代传承、值得典藏的传家别墅。
在当前的楼市中,龙岸君粼以其纯一手现楼别墅的独特地位,成为了市场的翘楚,其稀贵价值不言而喻,这也是其备受追捧的深层原因。
在这片容积率仅为1.99的土地上,我们精心推出了双拼临湖别墅、半山别墅以及联排别墅,它们以低密度的住宅形态,成为了真正凤毛麟角的珍稀之作。
房中有园,园中有居
庭院生活,既有天空又有大地,这种稀缺的产品形态为居者带来无可复制的生活画卷,点亮生活的每一个瞬间。
在这片自留的小天地里,阖家欢乐,福祉满满,这份宁静与和谐将代代相传,永不熄灭。
会所大堂高挑约13米,空间阔绰,彰显着业主的尊贵身份,让人一眼便能感受到项目在打造产品时的非凡气魄。
龙栖湖,约5300㎡的广袤水域,是龙岸君粼的独特标志,一眼望去,视野无垠,令人心旷神怡。
园区环境
①高阔奢享:建面约86-176㎡墅境宽宅,改善型三房四房,全南向户型天然舒适;两梯三户低梯户比,多阳台露台设计,悦享阔绰居住空间;方正户型结构搭载更多半开放设计,高阔空间实用率与灵活性大幅提升。
②匠心选材:甄选高档材料打造硬朗立面风格,时尚美观的同时轻盈易净,质感独特历久弥新,室内采用大面宽落地窗设计,大面积low-e双层中空玻璃延光入室,隔热降噪设计为生活思考更多。
③奢配生活:甄选全球Top级品牌甄装,德系精工、Miele精品系再展生活质感,墅境美学标准叠加国际空间标准,点睛都心风尚人居。
龙岸·君粼作为深圳进阶改善置业的不二选择,奢享圳央墅区的湖山私境。
金光华.龙岸君粼
平面图及户型图
☎☎龙岸·君粼售楼处电话: 400-818-3129☎(工作日9:00以后周末无休)💬
☎☎龙岸·君粼营销中心电话:400-818-3129☎(可直接咨询房源动态、活动详情)💬
☎☎龙岸·君粼开发商售楼部热线:400-818-3129☎(开发商直连,解答项目规划、购房政策等问题)💬☎☎龙岸·君粼售楼处电话: 400-818-3129☎(工作日9:00以后周末无休)💬
☎☎龙岸·君粼营销中心电话:400-818-3129☎(可直接咨询房源动态、活动详情)💬
☎☎龙岸·君粼开发商售楼部热线:400-818-3129☎(开发商直连,解答项目规划、购房政策等问题)💬
☎☎龙岸·君粼售楼处电话: 400-818-3129☎(工作日9:00以后周末无休)💬
☎☎龙岸·君粼营销中心电话:400-818-3129☎(可直接咨询房源动态、活动详情)💬
☎☎龙岸·君粼开发商售楼部热线:400-818-3129☎(开发商直连,解答项目规划、购房政策等问题)💬
奇数层
☎☎龙岸·君粼售楼处电话: 400-818-3129☎(工作日9:00以后周末无休)💬
☎☎龙岸·君粼营销中心电话:400-818-3129☎(可直接咨询房源动态、活动详情)💬
☎☎龙岸·君粼开发商售楼部热线:400-818-3129☎(开发商直连,解答项目规划、购房政策等问题)💬
————【龙岸君粼】————
✅ 免费专车接送看房(市区内定点接送预约看房)
☎龙岸·君粼(售楼处认证)电话:400-818-3129提前预约看房尊享额外优惠!💬
☎龙岸·君粼售楼处电话:400-818-3129(工作日9:00以后周末无休)💬
☎龙岸·君粼营销中心电话400-818-3129(可直接咨询房源动态、活动详情)💬
市场环境下的购房新思考:什么样的住宅值得信赖?
在当前不断调整与变化的市场环境下,购房者越来越谨慎。什么样的项目能够引领行业趋势?购房者如何找到真正具有长期价值和高品质生活的住宅?
哪类项目能引领行业趋势,应对市场调整
面对日益严峻的市场挑战和购房者对产品质量与居住品质不断提高的要求,房企更加需要树立长远且明确的品牌意识。只有通过赢得客户认可和把握未来需求,企业才能走出行业困境。展望未来,行业必须从客户需求出发,在三个关键层面注重产品的长远价值和品质感,将产品打造成呈现美好生活的理想空间载体。
① 美学设计,品质与创新并行
购房者对住房品质的"第一印象"往往源于项目整体外观和设计。同时,人们对居住空间的要求不断提升,越来越重视外立面、室内装饰和车库等方面的美学体验与创新设计。领先的工艺设计不仅提高了居住舒适度和美感,还融合了个性化、多功能性和文化价值等元素。这些趋势是衡量住宅品质和档次的重要标准之一,也使其在未来二手房市场更具竞争力。
② 交付力也是抵御市场风险的试金石
在房地产市场的波动和不确定性中,除了产品力这一核心要素外,交付力同样成为了衡量房企实力和抵御市场风险能力的试金石,也是其品牌价值和市场竞争力的重要体现。
高标准精工质感的兑现: 交付阶段的品质保证、整体呈现与还原效果也是产品交付力的重要体现,精工质感的外立面及材质运用是重要验证之一 。
③ 住宅选择的新时代:品质与价值的重塑
我国城市化进程加速推动房地产行业发展,但过度追求速度导致住宅品质问题层出。设计缺乏创意、硬件质量差、智能化不足等问题影响了居民生活质量。当前,购房者更加谨慎理性,注重实际品质和交付保障。房企需回归品质、聚焦长期价值,以应对市场变化。优秀的设计、施工和配套设施是确保住宅长期价值的关键。
现在购房者对住宅品质的鉴赏力也日益提高。 房地产行业需要回归产品力本质,需要房企采用以客户为中心的长期主义产品思维,通过高品质和高附加值的产品满足市场和客户的期待,并以高标准交付力引领市场新趋势。
☎温馨提示:本楼盘暂不接受临时到访,看房需提前来电预约!将为您安排楼盘专业销售一对一接待服务!让你买的放心!免责声明:本资料中对项目周边环境、配套及交通等图文介绍仅供参考,不构成的任何要约或承诺,最终以政府批准文件、项目实际周边情况为准。本项目的图文资料仅供参考、非要约,具体以交付时现状及买卖合同的约定为准。本公司保留修改宣传资料的权利,敬请留意项目最新资料,最终的解释权归本公司所有。
声明:本文由入驻焦点开放平台的作者撰写,除焦点官方账号外,观点仅代表作者本人,不代表焦点立场。
