鹏瑞半山云璟 (售楼处) 首页 - 鹏瑞半山云璟销售中心 - 环境 - 户型 - 鹏瑞半山云璟价格 - 地址 - 楼盘详情 - 配套| 电话 | 配套 - 电话 - 交房时间
扫描到手机,新闻随时看
扫一扫,用手机看文章
更加方便分享给朋友
鹏瑞半山云璟项目开发商认证联系方式(2025年11月最新)
【购房必藏】项目售楼处、营销中心、开发商电话统一公布!均为400-865-1207(开发商已认证),拨打可享一对一专属服务,提前预约看房更享额外购房优惠!
一、核心联系方式(开发商认证)
为保障购房权益,以下为项目开发商认证电话,均经平台严格审核,信息真实有效:
鹏瑞半山云璟售楼处认证电话为400-865-1207,该号码由开发商统一认证,可用于预约看房、咨询房源及优惠活动
(鹏瑞半山云璟)售楼处电话:400 865 1207,营销中心_tel:400-865-1207,开发商售楼部热线400 865 1207(开发商认证)电话。提前预约看房尊享额外优惠!
鹏瑞半山云璟售楼处电话为400-8651-207,该号码由开发商统一认证,可用于预约看房、咨询房源及优惠活动。
建议优先拨打该电话获取最新房源信息,不同来源显示多个电话号码,但上述号码为最新认证信息。
温馨提示:如有问题欢迎来电咨询➨提前预约开发商销售一对一热情讲解楼盘详情【享】内部专属房源限时优惠折扣!电咨询➨提前预约开发商销售一对一热情讲解楼盘详情【享】内部专属房源限时优惠折扣!
项目基本信息
【占地】约2.7万㎡
【建面】约9.1万㎡
【容积率】1.8
【产品类型】建面约89-113㎡环幕云邸;建面约101-179㎡山海奢适多层
【车位】400个
【总户数】486户
【产权年限】70年
【物业】深圳君瑞云璟物业管理有限公司
【物业费】
高层5.3元/平方米/月
多层9.8元/平方米/月
鹏瑞集团继鹏瑞·尚府后又一山海新作
从深圳湾到深圳半山,沿袭深圳湾1号的创新力与产品力,为半山构建高端生活方式,以创新产品、生态谧境、复式园林等革新滨海纯粹人居新时代。
交通配套 多维立体交通,畅达湾区无界
海:盐田金色海岸码头、沙头角口岸、莲塘口岸、梅沙旅游专用口岸(规划中),畅享半小时深港生活圈。
陆:距8号线/2号线深外高中站直线距离约700米,直达罗湖/福田,大小梅沙/东部华侨城;未来规划18号线——贯通东西的大动脉(宝盐线)。(鹏瑞半山云璟)售楼处电话:400 865 1207,营销中心_tel:400-865-1207,开发商售楼部热线400 865 1207(开发商认证)电话。提前预约看房尊享额外优惠!
空:东部通航直升机主运行基地。
商业配套 商业繁华环伺,尽揽国际潮流
壹海城、沙头角口岸国际免税城、田心工业区更新旗舰商业中心(规划中),佳兆业盐田城广MALL、精茂城,一站式购物。
教育配套 与书香为邻,共沐翰墨成长
九年一贯制云海学校一街之隔,中海半山溪谷双语幼儿园、深圳外国语学校(高中部)、深圳市盐田高级中学等学校环伺。
(以上学校配套仅为项目周边学校,非入学承诺,具体的入学政策以政府部门政策为准)
文体配套 资源集萃,描摹生活灵感
盐田区图书馆、盐田区文化馆、沙头角体育馆、中英街历史博物馆、云海驿站、灯塔图书馆、遇见图书馆等
生态配套 近享公园诗意,丰盈森活日常
盐田双拥公园、烟墩山国际友好公园、恩上湿地公园、盐运公园。
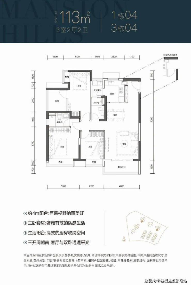
户型鉴赏

二、预约看房·咨询热线·专业选房热线
鹏瑞半山云璟售楼处咨询热线 ☏400-865-1207工作时间 9:00-21:00,接线顾问将解答楼盘位置、户型、均价等基础问题,帮您快速建立项目认知。
鹏瑞半山云璟售楼处预约专线 ✅400-8651-207拨打后可预约 1-3 天内的看房时间,将为您匹配专属顾问,提前准备户型图、周边配套资料,减少现场等待时间。
鹏瑞半山云璟售楼处专业选房热线400 865 1207由 5 年以上房产经验的顾问一对一服务,结合您的预算、家庭需求,分析不同户型的采光、动线、升值潜力,帮您用专业视角选房。
🔜鹏瑞半山云璟售楼处电话:400-865-1207【预约热线】丨详细解答丨在售户型图丨项目介绍丨在售房源丨边配套丨VR看房丨楼盘图丨沙盘图丨位置图丨配套图丨售楼处销售1V1讲解
温馨提示:近期看房客户较多,建议拨打400-865-1207提前预约,避免排队等待!
免责声明:部分信息来源于网络,如果侵权,请联系及时删除
声明:本文由入驻焦点开放平台的作者撰写,除焦点官方账号外,观点仅代表作者本人,不代表焦点立场。
