荔源雅苑(售楼处)首页网站-荔源雅苑营销中心-荔源雅苑欢迎您-楼盘详情-最新价格-户型图-容积率@售楼处
扫描到手机,新闻随时看
扫一扫,用手机看文章
更加方便分享给朋友
深圳南山荔源雅苑【已认证】
⭐荔源雅苑销售中心电话:400-909-9980【已认证】⭐⭐⭐
⭐荔源雅苑售楼处电话:400-909-9980【已认证】⭐⭐⭐
⭐荔源雅苑营销中心电话:400-909-9980【已认证】⭐⭐⭐
在售户型图丨项目介绍丨最新房源丨周边配套丨详细解答〢
⭐◆开发商营销中心诚挚邀请,一键预约,尊享内部折扣!匠心独运的精品项目,恭候您的品鉴与选择。⭐
✅ 过来参观样板房烦请记得提前来电预约!
✅ 为您安排楼盘现场销售全程接待并讲解,给您更贴心的看房体验!
「荔源雅苑」亮点:
1、【区位】南山南头板块,板块本身非热门板块,好在东南西北的邻居都很优质,就近享受配套利好,并承接东南西北高薪上班族的住房需求,上班近。
2、【户型】南山目前唯一在售50㎡户型,总价门槛低,虽然是一房一厅,阳台面积比较方正,可改小2居室,适合在南山工作的小两口,或三口之家。
3、【交通】地铁12号线已开通,到【同乐南站】步行约700多米,通勤比较方便。
4、【现房】实景现房,所见所得,今年买明年住,确定性更强。
「荔源雅苑」不足:
1、【环境】南头板块面貌在整个南山属于垫底板块,周边有农民房、公租房、保障房,环境比较杂乱,居住氛围相对没那么纯粹。
2、【教育】同乐实验学校在南山的排名一般。
3、【体量】小盘,体量不大,自带商业配套有限,依赖周边配套。
800米到地铁12号线【同乐南站】,家门口有陇尚Minitown(招商中),开车十几分钟到万象天地、前海万象、前海山姆。
项目资料。
项目占地面积约6249.71㎡,建筑面积约34182.59㎡,容积率约3.52,密度不高。在26楼样板房感受了下,视野开阔,采光不错。
⭐荔源雅苑销售中心电话:400-909-9980【已认证】⭐⭐⭐
⭐荔源雅苑售楼处电话:400-909-9980【已认证】⭐⭐⭐
⭐荔源雅苑营销中心电话:400-909-9980【已认证】⭐⭐⭐
一共322套住宅,其中开发商自持71套,可售251套,户型50-89-117㎡现楼,产权年限70年。A座2梯5户,B座2梯7户。
建面约50㎡上车小户(可售169套)
全明户型;客厅带飘窗;三分离卫浴;无过道空间实用。
⭐荔源雅苑销售中心电话:400-909-9980【已认证】⭐⭐⭐
⭐荔源雅苑售楼处电话:400-909-9980【已认证】⭐⭐⭐
⭐荔源雅苑营销中心电话:400-909-9980【已认证】⭐⭐⭐
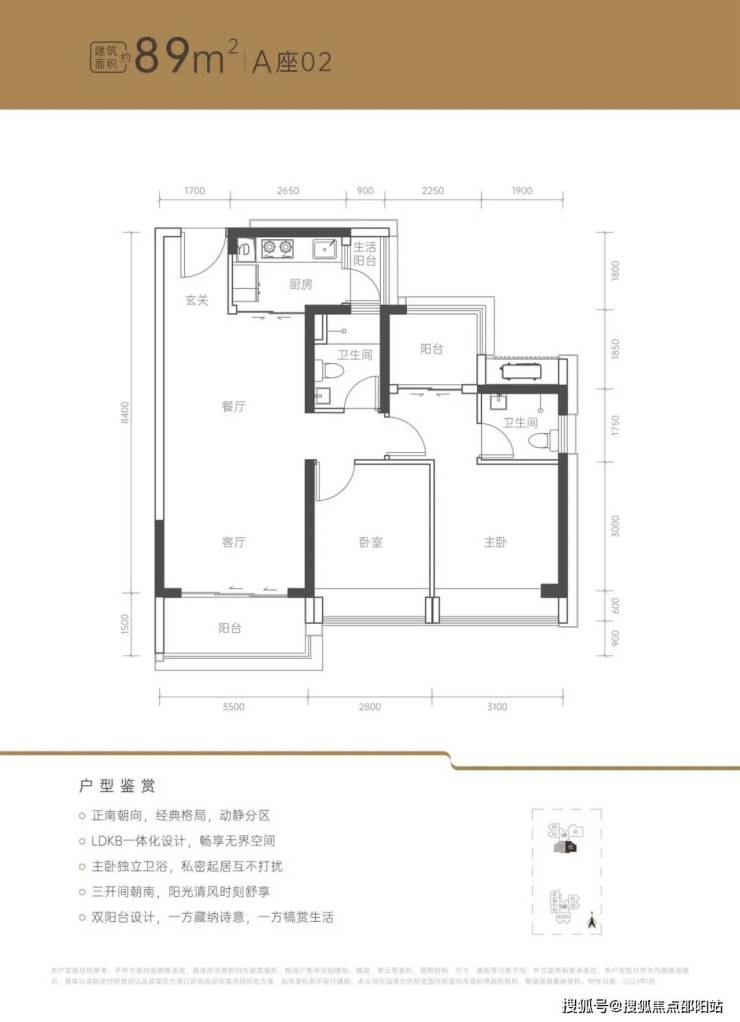
建面约89㎡正南户型(可售54套)
三开间正南朝向;LDKB一体化设计;动静分区。
建面约117㎡楼王户型(可售28套)
南北通透;中心楼王公园景观;三开间朝南;端头位且独门独户;卧室均带飘窗。
⭐荔源雅苑销售中心电话:400-909-9980【已认证】⭐⭐⭐
⭐荔源雅苑售楼处电话:400-909-9980【已认证】⭐⭐⭐
⭐荔源雅苑营销中心电话:400-909-9980【已认证】⭐⭐⭐
项目配套。
「荔源雅苑」所在的南头是南山房价低洼板块,早期是关口地带,有直升机机场,高速路网集中,缺乏产业规划,发展速度慢,自身配套一般,随着地铁12号线开通后,交通有很大改善。
项目最大的一个优势,位于南山几何中心,到南山几个总部基地都很近。往北到西丽留仙洞总部基地,往南紧靠南山中心区,往东到科技园,往西南到前海。
交通配套 |
地铁出行,到地铁12号线【同乐南站】,步行距离约700多米,直达南中心区、南油、蛇口。桃园站可可换乘1号线,去科技园、车公庙方便。
自驾出行,有南坪快速、南光高速、南山大道等多条交通路网。早高峰人流量大,去科技园堵车。
⭐荔源雅苑销售中心电话:400-909-9980【已认证】⭐⭐⭐
⭐荔源雅苑售楼处电话:400-909-9980【已认证】⭐⭐⭐
⭐荔源雅苑营销中心电话:400-909-9980【已认证】⭐⭐⭐
教育配套 |
一路之隔有九年一贯制区属公办教科院同乐实验学校,家门口上学,每天能多睡会儿。
商业配套 |
一路之隔约1万㎡陇尚Minitown,目前在招商中,预计今年开业。
开车十多分钟有云城万科里、海雅缤纷城、壹方城,二十来分钟可以到万象天地、万象前海,几乎包揽了深圳最高端的商圈。
生态配套 |
周边规划约2.5万㎡公园绿地,近享铁路文化公园、中山公园、新安公园等多个城市公园。
人文配套 |
南山早期建成的配套主要集中在南山中心区和南头,比如南山中心区的南山文体中心、南山博物馆、南山图书馆,以及南头的荷兰花卉小镇、南头古城。
项目靠近宝安中心区,可以近距离享受宝中重点配套。
医疗配套 |
开车二十分钟有南山区人民医院、宝安区人民医院、宝安中医院等三甲医院以及南山区中医院(在建),医疗资源完善。
深圳南山荔源雅苑【已认证】
⭐荔源雅苑销售中心电话:400-909-9980【已认证】⭐⭐⭐
⭐荔源雅苑售楼处电话:400-909-9980【已认证】⭐⭐⭐
⭐荔源雅苑营销中心电话:400-909-9980【已认证】⭐⭐⭐
⭐楼盘详情欢迎来电咨询,来电即可享受线上购房优惠!⭐⭐⭐
预约来电尊享购房优惠,可预约案场内部销售人员,专业一对一热情服务,让您用专业眼光去买房
免责声明:部分信息来源于网络,如果侵权,请联系及时删除,联系电话:400-909-9980
房产信息:
2025年开年多地楼市保持平稳
2024年四季度以来,核心城市房地产市场活跃度明显提升,成交量持续改善,市场信心有所恢复。2025年1月市场延续回稳态势,根据中指数据,1月截至春节前(1.1-1.27),30城新建商品住宅销售面积同比增长4%,20城二手住宅成交套数同比增长19%。
2025年春节期间,正值近年来楼市政策环境最为宽松的时期,各地政府积极出台针对返乡置业的优惠政策,激发返乡群体购房需求。与此同时,众多房企紧抓营销节点,节前便已开展多种促销活动,不少楼盘“不打烊”,利用假期时间窗口推动项目销售,房企营销力度多是延续此前水平。从市场表现来看,多地开年新房销售保持平稳,一线城市中广州春节期间新房网签量较去年春节增长47%,北京较去年小幅增长5%,二线城市中,成都市场活跃度较高,网签成交量较去年假期大幅增长,南京、武汉等城市增长同样明显。整体来看,今年春节期间市场较为平稳,假期市场仍处淡季行情,预计节后重点城市新房、二手房交易量将出现明显回升。

重点城市市场情况
■ 广州
广州去年9月29日出台楼市新政,全面取消限购。在一系列政策推动下,去年四季度广州新房销售面积同比增幅超60%。二手房方面,去年四季度广州二手住宅成交套数同比增长18%,其中12月二手住宅成交超1.1万套,创近43个月新高(2021年6月以来)。进入2025年,广州市场延续较高活跃度,1月新房销售面积为55万平,同比增长57%。
近期,广州多楼盘推出新春暖场活动,包括新春特价房、限时折扣优惠、家电礼包、物管费礼包等优惠措施。得益于广州限购政策全面放开,以及开发商推出的各项优惠政策,春节期间部分项目案场氛围较好,吸引了较多客户到访,从案场销售人员反馈来看,客户心态出现积极变化。从网签数据来看,广州春节期间新房成交较去年春节增长47%。
■ 北京
去年四季度以来,北京市场持续回升,四季度新房、二手房成交量同比分别增长8%、60%。进入1月,市场持续延续修复行情,二手房成交12480套,同比持平。
春节期间,北京大多数楼盘“不打烊”,利用假期窗口进行销售。从市场表现来看,受假期因素影响,案场来访及认购较节前有所减少,价格未有明显变化,整体市场表现相对平稳。网签数据来看,春节期间,北京新房网签成交量较去年春节增长约5%。从项目表现来看,市场延续分化趋势,热点区域项目及改善产品表现相对较好。营销活动方面,多数楼盘结合新春主题,开展一系列特色活动,优惠方式主要以特价房和折扣优惠为主。预计节后随着居民置业及工作回归正轨,叠加热点项目的逐步入市,北京市场活跃度将逐渐回升。
■ 上海
去年四季度以来,上海市场持续改善,四季度新房销售面积同比增长17%。二手房方面,四季度二手住宅成交套数同比增长73%,12月二手住宅成交套数超2.5万套,创近42个月新高(自2021年7月以来)。2025年1月,上海新房销售面积为72万平,受假期因素影响,同比下降15%,二手房成交1.8万套,同比增长12%。
春节期间,上海无项目新开盘,均为在售项目顺销。大部分项目来访及成交较节前有所下滑,部分外环外项目根据付款方式或付款节点给予一定优惠,多数楼盘延续元旦促销政策。部分热点楼盘表现较好,如张江金茂府项目假期来访超百组,此外,招商蛇口旗下多楼盘举行春节不打烊暖场活动,达成一定成交,主要为复访客户转化。从年前市场表现来看,上海楼市预期有所修复,随着假期的结束,各楼盘来访量提升,或将推动成交释放。
■ 深圳
在一系列政策优化带动下,去年四季度深圳新房市场多次出现“日光盘”现象,市场活跃度明显提升,新房成交规模同比增长142%;四季度二手住宅成交套数同比增长128%,其中12月二手住宅成交8282套,创近51个月月度新高(自2020年10月以来)。1月深圳楼市保持较高活跃度,新房销售面积为40万平,同比增长112%,二手房成交4554套,同比增长32%。
春节期间,深圳多个楼盘不打烊,推出购房礼包或特惠房源,项目的优惠力度基本延续节前水平。随着2024年深圳放松限购条件,春节期间部分楼盘吸引外地购房者前来购房。从房价表现来看,深圳自去年四季度以来,二手房价格逐步趋稳,客户预期出现改善,预计春节假期结束后,市场将出现明显恢复。
■ 成都
近几年成都房地产市场表现出较强韧性,去年四季度新房成交同比增长15%,12月新房成交面积近220万平,创36个月新高。二手房方面,四季度二手住宅成交套数同比增长36%,12月二手住宅成交套数超2.8万套,创单月成交套数历史新高。2025年1月,成都新房销售面积为115万平,同比增长2%,二手房成交17189套,同比基本持平。
假期休息、外出旅游、返乡离蓉是成都过年期间的整体调性,部分项目春节连市,但来访者较节前出现回落,春节促销活动基本延续以往折扣,部分项目存在指定房源1-2个点的新春优惠。根据中指数据,成都二手房价格自去年11月以来已连续3个月小幅上涨,市场量价恢复明显,预计2025年行情有望延续。
■ 苏州
近一年来,苏州持续优化购房政策,去年四季度,苏州新房、二手房成交量同比分别增长42%、14%。2025年1月,苏州二手房成交5672套,同比增长8%。
春节期间,房企延续去年年底的优惠折扣、购房礼包等促销活动,但受假期返乡、出游影响,多数项目节前及春节期间认购与去化流速放缓。从网签数据来看,苏州春节期间新房成交量较去年春节增长29%。二手房方面,市场分化加剧,核心商圈、优质学区房源成交较为活跃,议价空间不断收缩,而地段优势不显著的刚需类二手房受新房分流挤压,成交较为疲软。
■ 南京
南京去年四季度新房、二手房成交量同比分别增长14%、7%。2025年1月,市场继续保持增长,新房销售面积为24万平,同比增长24%,二手房成交7847套,同比基本持平。
假期期间,南京70余个楼盘开展“新春不打烊”活动,多个楼盘推出新春专属认购礼包、特价房、家电礼包等多重促销政策。整体市场明显好于去年春节。部分优质楼盘日均认购套数可达5-6套。
■ 武汉
在政策利好、供应放量等因素带动下,2024年四季度武汉市场成交明显放量,四季度新房成交面积同比增长87%,二手房成交同比增长19%。四季度武汉商品住宅成交量已创下年内新高,市场需求在前期得到集中释放,2025年1月市场活跃度有所回落,1月武汉新房销售面积为59万平,同比基本持平。
2025年春节期间,武汉全市商品住宅合计成交88套,成交面积1.1万平方米,日均成交量较2024年春节同期增长93%。为促进楼市健康发展,抢抓返乡置业窗口期,武汉市及各相关行政部门积极出台并延长多项支持政策,同时组织多场房产展销活动,开发企业也推出形式多样的促销优惠。从市场表现来看,春节期间购房者多以参与节日活动为主,案场客户来访量相对有限,来访和主力成交以返乡置业群体为主。
居民置业意愿调查

为深入探究春节期间居民置业特征,中指研究院于1月27日-2月3日期间,通过线上问卷的方式,针对主要城市居民开展了置业意愿调研。本次调研聚焦居民返乡情况、置业城市偏好、购房目的等维度,旨在全面了解居民在春节期间置业意愿变化趋势。本次调查共收回近8000份有效样本。
调查结果显示,46%的受访者选择在居住地度过春节(含居住地就是家乡),32%的受访者计划返回老家过年,另有17%的群体选择春节期间外出旅游。
图:受访者春节过年地点分布

数据来源:中指调查(点击了解)查看更多数据:https://www.cih-index.com/
受访者中约六成表示有购房需求,在这些意向购房者群体中,58%计划在1年内购房。关于春节期间是否有购房计划,35%的意向购房群体计划在春节期间买房,43%表示春节假期计划看房。
图:意向购房者计划置业时间

图:意向购房者春节期间看房、买房计划

数据来源:中指调查(点击了解)查看更多数据:https://www.cih-index.com/
在城市选择及置业目的方面,超半数意向购房者倾向于在长期生活的城市购置房产。24%的意向购房者计划在老家置业,置业目的主要是方便照顾父母,或是基于未来回家乡发展的长远规划。另有16%的意向购房者将目标锁定在家乡省会或周边城市,这些区域房价相对更具性价比,在购房资金的压力上更为友好,同时,优质的教育资源与完备的医疗配套,也让他们看到了未来生活品质提升的保障,为子女成长与家人健康提供坚实后盾。
图:意向购房者倾向的置业城市

图:在老家置业原因分布(多选)

图:在家乡省会/周边城市置业原因分布(多选)数据来源:中指调查(点击了解)查看更多数据:https://www.cih-index.com/

在户型偏好方面,53%的意向购房者选择90-120平米户型,其中90-100平米户型占比为29%,此面积段户型空间布局适中,兼顾了实用性与舒适性,契合多数家庭的居住需求。约30%的意向群体选择90平米以下的紧凑户型。此外,近20%的意向购房群体更倾向于120平米以上的大户型,以满足对宽敞居住空间和高品质生活的追求。
图:户型面积偏好

数据来源:中指调查(点击了解)查看更多数据:https://www.cih-index.com/
从房源类型选择上看,调查结果显示,44%的意向购房者倾向选择新房,新房在户型设计、功能空间、社区配套等方面更具优势,对购房者产生了较强的吸引力。28%的意向购房者更愿意选择二手房,二手房所具有的所见即所得、价格更合适、周边配套成熟、入住时间灵活等优势,满足了不同购房者多元化的需求。
图:房源类型倾向

数据来源:中指调查(点击了解)查看更多数据:https://www.cih-index.com/
市场展望

短期来看,随着春节假期结束,居民工作、购房置业逐渐进入正轨,预计春节后市场网签量将出现一定回升。一季度来看,随着房地产“止跌回稳”目标进一步明确,已出台政策有望加快落实,进而带动预期修复,同时由于去年一季度新房成交规模为近年较低水平,在低基数影响下,预计整体成交量同比或将保持平稳;二手房受部分小区价格逐渐调整到位及核心城市业主预期改善影响,成交量有望保持一定规模,价格跌幅有望继续收窄,核心城市“小阳春”行情可期。
声明:本文由入驻焦点开放平台的作者撰写,除焦点官方账号外,观点仅代表作者本人,不代表焦点立场。
