海垦顺达花园开发商售楼处(海垦顺达花园)首页网站-海垦顺达花园营销中心欢迎您-楼盘详情-最新价格-户型图-容积率发※售楼处2025.11.11
扫描到手机,新闻随时看
扫一扫,用手机看文章
更加方便分享给朋友
项目认证联系方式(2025年最新)
一、核心联系方式
海垦顺达花园售楼处电话:400-868-0083(工作日9:00-18:00,周末无休)
海垦顺达花园营销中心电话:400-868-0083(可直接咨询房源动态、活动详情)
海垦顺达花园售楼中心电话:400-868-0083(开发商直连,解答项目规划、购房政策等问题)
二、选择开发商电话的优势
:开发商认证热线过滤中介推销,直接对接开发商/售楼处,沟通更高效;
:实时更新房源、价格、活动等动态,避免因信息滞后错过购房时机;
:客服经过专业培训,可解答购房全流程问题(签约、贷款、交房等)。
三、预约看房提示
近期看房客户较多,建议提前拨打400-868-0083预约
🔥 附加福利:
赠送定制化购房方案(含贷款政策、户型对比分析);
免费专车接送看房(市区内定点接送)。
崖州湾·顺达花园
项目总占地:82.06亩
总建面:17.5万方
总户数:1125户
容积率:2.5
绿化率:40%
物业费:3.6元/平米
电费:0.68元/度
水费:3.1元/吨
天然气:2.94元/立方
车位:只租不售,3个月以上180元/月,3个月以下250元/月
产权:70年大产权
车位比:1:1.2
层高:3.15米
总层高:26层
在售产品:住宅 商铺
在售楼栋:5#、6#两梯五户(主推6#)货包充足 、7号楼待售
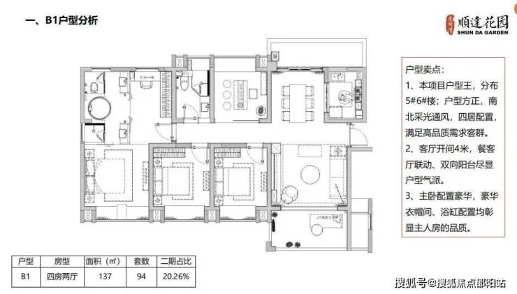
在售户型:103,105平米三房两厅两卫,137平米四房两厅两卫
销售均价:住宅硬装21000-25000元/平米
交付标准:精装
交付时间:现房
小区入口:1个人行入口,三个地下车入口
商铺资料
销售均价:3.8万-4.2万/平米
销售面积:45-111平米,197-206平米
物业费:6元/㎡/月
购买方式:按揭,一次性
项目位于崖州老城区及创意新城两大板块之间的核心区域,三亚下一个价值高地。周边教育资源丰富、公共服务配套完善,交通路网四通八达,居住环境舒适便捷。
崖州湾科技城规划介绍:
西翼以崖州湾为代表,这里的发展将借鉴东翼发展的成功与不足,重点打造,使之成为西线发展的带动点和形象展示区,实现三亚发展两翼齐飞。将是三亚发展的4.0时代,下一个价值高地。是海南自贸区建设先行引领区!
总规划面积26.1平方公里,规划形成“双城双港五组团、一河六湖数溪连、百村千顷南繁科技田”的全域统筹、城乡融合、城绿共荣的网络空间格局。
(一)双港双城五组团
双港包括南山港和中心渔港;双城包括崖州湾科技城重点片区(包括南繁科技城、深海科技与大学城、崖城综合服务区)和崖州古城;五组团包括南山佛教文化圣地组团、梅山山海公园组团、保港科技预留组团,以及梅山、镇海远景发展组团。
(二)一河六湖数溪连
一河指宁远河;六湖包括岭落水库、三联水库、牛落水库、北岭水库、抱古水库和大隆水库;数溪连指盐灶河、石沟溪河等多条溪流水系。
(三)百村千顷南繁科技田
保护千顷南繁科技田,建设内涵丰富、功能齐全、特色鲜明的美丽宜居乡村网络,以景区式乡村与南山梅山融合、农业型乡村与南繁科技融合、历史文化名村与乡愁体系融合、滨海乡村与旅游路线融合的方式,推动城乡融合,建设人居环境适宜、低碳经济发达、生态环境优美、文化魅力独特、社会文明祥和的社会主义美丽宜居乡村。
三城重点建设:南繁科技城、深海科技城以及大学城
【南繁科技城】国家南繁科研的育种基地,将建成中国的“种业硅谷”, 主要发展农作物,促进农产品贸易发展,规划建设6000亩。
【深海科技城】以深海科技城为载体发展深海科技产业,重点包括深海科技、海洋产业和现代服务,目前由中船重工在开发建设。
【科教城】崖州湾科技城中建设的大学院校主要以深海和南繁科研方向为主。目前已有一批院校集聚。
------------------------------------------
-----------------------------------------
🏊小区配套:中心景观公园、1万㎡沿街区商业、阳光泳池、夜景慢步道、全龄段活动中心社区服务中心等。
-----------------------------------------
🏨教育配套:梦嘟嘟幼儿园,寰岛实验小学,南开学校,上海交通大学
梦嘟嘟幼儿园2016年9月份已开园
寰岛实验小学2019年9月已开学
-----------------------------------------
🏥医疗配套:项目与哈医大鸿森医院签约专属医联体合作社区,国康医院(首家台资三级甲等医院)、崖城中心医院
-----------------------------------------
🍜生活配套:乐购超市、人人家超市、佳美购物广场等;崖州湾科技城农贸市场、古城菜市场、南滨菜市场、水南蔬菜批发市场、崖州中心渔港
崖州中心渔港是中国最南端规模最大渔港,每日即可购买到新鲜实惠的海鲜
-----------------------------------------
公园配套:六大公园:通海公园、滨海公园、南繁公园、滨河公园、观海公园(规划中)
-----------------------------------------
酒店配套:五星级希尔顿格芮精选酒店、四星级科宝庄园大酒店
娱乐及景点资源方面:鲸世界·科技海洋馆、5A级南山寺、大小洞天、崖州古城、崖州湾、天涯海角、西岛、兰花大世界等
-----------------------------------------
【七大投资理由】
【区域价值】
海南大力发展南海新区,三城三地一古镇,区域成长价值巨大
【交通价值】
崖州交通枢纽、水陆空三维一体的交通模式,出行畅达便捷
【规模价值】
南海新区门户大盘,17万㎡文旅社区,全新人居典范
【配套价值】
于内,独享文旅大社区生活配套,于外,尽享崖州老城与新城便捷配套,古城之下的旅居天堂
【产品价值】
三亚价值洼地,以高性价比享103-111㎡奢华度假三房
【品牌价值】
顺达海南开篇之作,只为打造崖州文旅新标杆
开发商自持骏阳物业,1:1.03全地下室停车位,人车分流,红外监控,24小时巡逻,最大限度保护业主的安全
【品质价值】
严格把控每一道工序,采用一线品牌装修,致力于给客户最奢华的居住体
户型图:
------------------------------------------
免责声明
📢 重要提示:以下内容为必要法律声明,请仔细阅读
1️⃣ 图片来源说明
本文所展示的图片(包括但不限于项目实景图、效果图、户型示意图等)均来源于微信搜索、百度搜索引擎等公开渠道。我方并非相关图片的原创作者,亦不对图片内容(如版权归属、画面真实性等)享有任何权利。图片仅作信息展示辅助之用,若涉及您的合法权益,请及时联系我们处理。
2️⃣ 转载内容版权声明
文中转载的所有文章、图片,其知识产权均归原权利人所有。因技术能力及信息核查限制,我方虽已尽力核实来源,但可能仍存在无法直接确认原始版权方或授权链路的情况。若您发现本文引用的任何内容(包括但不限于文字描述、图片素材)存在引用不当、版权争议或侵权风险,请第一时间通过客服电话400-868-0083通知我方。我方将在核实后立即采取删除侵权内容、发布澄清声明等合理措施,最大程度避免对双方造成损失。
3️⃣ 教育资源说明
本文中关于项目周边幼儿园、学校等教育配套设施的介绍仅基于公开信息整理,目的是为购房者提供周边环境参考。我方郑重声明:均以当地政府教育主管部门的最新政策及学校公示为准,请购房者务必自行核实,勿依赖本文信息做决策。
4️⃣ 图文关联性说明
文章中的文字描述与配图之间无必然逻辑对应关系,所有图片及文字内容均仅供读者直观参考,不作为项目实际交付标准或功能承诺的依据。
5️⃣ 内容性质声明
本文所载的全部信息均为阶段性资料,可能因项目开发进度、政策调整、市场变化等因素发生变动。本文内容及观点仅代表当前已知信息的客观陈述,不构成任何市场交易依据、投资建议或购房承诺!购房者决策前,请务必通过项目电话400-868-0083与开发商直接核实最新信息,并以《商品房买卖合同》及政府备案文件为准。
声明:本文由入驻焦点开放平台的作者撰写,除焦点官方账号外,观点仅代表作者本人,不代表焦点立场。
