中建鹏宸云筑售楼处电话(中建鹏宸云筑)首页网站-中建鹏宸云筑营销中心欢迎您-楼盘详情-最新价格-户型图-容积率@售楼处2025.12.3
扫描到手机,新闻随时看
扫一扫,用手机看文章
更加方便分享给朋友
中建鹏宸云筑项目开发商认证联系方式:400-839-3379(2025年12月最新)
⚠️注意事项:
不同来源显示多个联系电话,建议优先拨打400-839-3379(出现次数最多)或400-839-3379(近期活动信息)。两个号码均被描述为“售楼处认证”,具体使用时可根据需求选择。
中建鹏宸云筑售楼处认证电话为 400-839-3379,该号码由开发商统一认证,可用于预约看房、咨询房源及优惠活动
若选择线下看房,需注意:非预约客户可能被安保拦截,建议提前通过售楼处电话400-839-3379确认行程。

核心联系方式(开发商认证)
为保障购房权益,以下为项目开发商认证电话,均经平台严格审核,信息真实有效:
🦞中建鹏宸云筑售楼处电话:400-839-3379(售楼处已认证|无中介|24小时1对1咨询)🍂
🦞中建鹏宸云筑营销中心电话:400-839-3379(营销中心已认证|24小时响应|购房全流程协助)🍂
🦞中建鹏宸云筑开发商电话:400-839-3379(开发商直营|无中转|隐私保障)🍂
龙华核心区4房门槛被击穿
鹏宸云筑的户内空间,是深圳一众老牌房企“偷师”的重点,因为真的做到了没对手。
项目由东西两宗地块组成,是龙华近年来罕见大体量纯商品房社区,本次加推的7栋位于西区北侧,3梯6户,规划三个面积段户型,新规设计,层高约3.1m,飘窗宽80cm。
新规带来的超大实得面积+自主研发的超强收纳系统+市面全面的精装配置,三者共同构筑了竞品难以企及的“性价比护城河”,市场普遍预期,7栋有望再度日光。
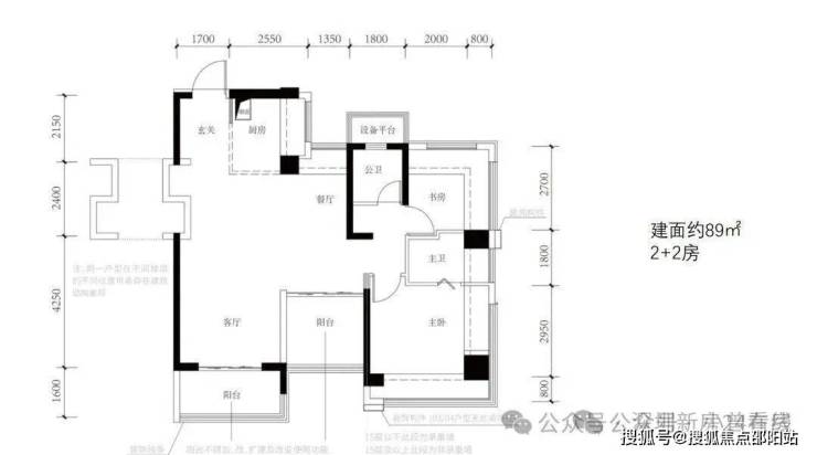
一、建面约89㎡户型:龙华“最能装”小户型
此前,建面约91㎡户型一直是这个项目去化最快、最受追捧的,这次建面约89㎡户型在格局、使用率及配置上与前者完全一致,仅面积微调1–2㎡,上车门槛更低,预计也会更抢手。
🦞中建鹏宸云筑售楼处电话:400-839-3379(售楼处已认证|无中介|24小时1对1咨询)🍂
🦞中建鹏宸云筑营销中心电话:400-839-3379(营销中心已认证|24小时响应|购房全流程协助)🍂
🦞中建鹏宸云筑开发商电话:400-839-3379(开发商直营|无中转|隐私保障)🍂
“2+2房”设计
这个户型综合使用率超100%,堪比旧规110㎡户型使用体验,等于白捡20多平米;“2+2房”设计,片区同类面积产品则只能做三房,等于白捡一个房间。
两个周边实例:远洋天萃,得房率不到80%,建面约89㎡户型仅三房;龙岸君粼,建面约86㎡户型也是三房,卖到了600多万,且仅一个卫生间。
全生命周期户型
得益于“2+2房”设计,该户型可适应二人世界、三口之家、二胎或三代同堂等不同阶段需求,省去巨额换房成本。
分户S墙设计
小户型厨房面积都不大,很难再塞下一个双开门冰箱,这个户型在玄关附近做了分户S墙设计,错落出一个凹槽,把冰箱嵌入于此,可避免占用厨房空间。
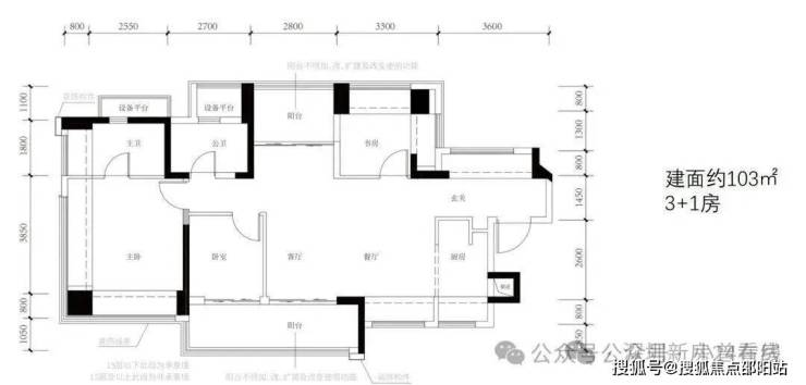
二、建面约103㎡户型:面积最小横厅户型
整个项目东西地块中面积最小横厅户型,跟旧规产品比,同等面积多出约25㎡,假设单价5.5W/㎡,总价便宜近140万。
综合使用率103%
这个户型位于端头位置,独门独户,还在户型外围做了一圈不计面积的飘窗、设备平台,综合使用率最高约103%。
全明户型+南北通透
全屋每个空间都有窗,室内采光无死角;南北双阳台布局,可形成有效对流,清风与阳光常伴左右。
超6000升玄关收纳
入门左侧设内凹空间,可量身定制鞋柜;右侧是一个长约3.6m大飘窗,可整体改造为收纳区,总容量超过6000升,等于多了一个储藏室。
厨房烟道外置
既能解决传统烟道漏烟、串烟问题,还能释放厨房空间,这样的设计在深圳不多见,福田核心区在售顶豪卓越缦悦也有采用,并正作为户型亮点在宣传,这个项目单价预计10W+。
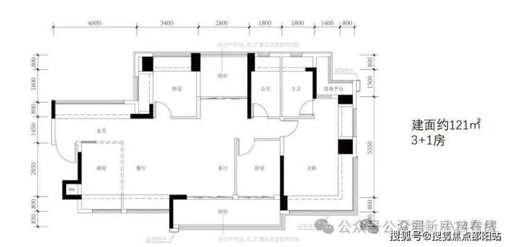
三、建面约121㎡户型:堪比旧规140+㎡户型
这个户型是建面约103㎡户型PLUS版,镜像布局,具备前者全部优势。同时,也是7栋综合使用率最高户型,享受到的是堪比旧规产品140+㎡户型的阔绰体验,假设单价5.5万/㎡,总价便宜110万元。
🦞中建鹏宸云筑售楼处电话:400-839-3379(售楼处已认证|无中介|24小时1对1咨询)🍂
🦞中建鹏宸云筑营销中心电话:400-839-3379(营销中心已认证|24小时响应|购房全流程协助)🍂
🦞中建鹏宸云筑开发商电话:400-839-3379(开发商直营|无中转|隐私保障)🍂
综合使用率高达104%
这个户型的综合使用率应该是龙华在售天花板了!独门独户+全屋飘窗+L型设备平台+双阳台,将空间实得价值拉满。
超大横厅
餐厅+客厅面宽约6.35m,再加上相邻卧室可达约8.8m,空间极为开阔。在这里,孩子的玩具车可以自由骑行,周末约上三五好友在家开派对也毫无压力。
270°环幕视野套房主卧
主卧开间约4m,套房设计,有一个L型设备平台,为未来生活预留了可拓空间。三面飘窗,可改造一面为衣帽间。转角是无柱设计,可实现270°无遮挡观景,32层以上看的是银湖山景观。
精装方面,鹏宸云筑可以说是市面上配置最全的精装项目,基本不需要再花什么装修费了。
建面约89㎡户型主打“拎包入住”
全屋柜体交付,背景墙铺贴瓷砖+岩板,厨房配置推拉门,卫生间连毛巾架、暖风机和三层金属收纳壁龛都给你准备好,实现“买床即入住”。
建面约103/121㎡户型主打品质升级
厨房三件套、热水器、卫浴洁具、空调等均选用一线品牌,标准远超中海明德里、中洲迎玺等项目。

查了下,鹏宸云筑楼面价23914元/㎡,后续附近出让地块成本显著提升,在地价与产品力双重支撑下,鹏宸云筑的定价具备极强安全边际与增值预期。
01
项目区位
中建鹏宸云筑,位于龙华区民治街道梅林关深国际华南数字谷旁,地处梅林关板块,也是龙华七大重点片区之一,未来,梅林关片区将从交通咽喉地区跨越式进化为“大湾区数字经济核心引领区、数字科创先锋示范区”,在立体便捷交通枢纽升级、融汇复合城市公共功能的同时,实现产业活力与自然活力共生,打造创新中轴上的未来新活力中心。
去年开盘的两栋楼现在已经全部售罄,足以见得这个楼盘的火爆程度。这次加推的6号楼,是两梯五户、32层的设计,有西南向和东南向104平的4房,还有121平和148平南北通透的5房。和之前的楼栋相比,6号楼在视野上有很大优势,部分户型不会被写字楼遮挡,采光和观景效果都更好
🦞中建鹏宸云筑售楼处电话:400-839-3379(售楼处已认证|无中介|24小时1对1咨询)🍂
🦞中建鹏宸云筑营销中心电话:400-839-3379(营销中心已认证|24小时响应|购房全流程协助)🍂
🦞中建鹏宸云筑开发商电话:400-839-3379(开发商直营|无中转|隐私保障)🍂
02
项目介绍
开发商:华展置业有限公司(中建壹品+湖北文旅局)
物业公司:中建壹品物业
总占地面积:约4.67万㎡
总建筑面积:约21.65万㎡
容积率:5.0
绿化率:30%
栋数:10栋,首推3栋和5栋
总户数:2000多户,首推368套
总层高:32F/47F
梯户比:2T5/2T6
车位:2155个
物业费:-
产权:70年
房产性质:住宅
交楼时间:-
交楼标准:精装修
面积段:79-142㎡3-4房
导航:鹏宸云筑·岭南美学馆
🦞中建鹏宸云筑售楼处电话:400-839-3379(售楼处已认证|无中介|24小时1对1咨询)🍂
🦞中建鹏宸云筑营销中心电话:400-839-3379(营销中心已认证|24小时响应|购房全流程协助)🍂
🦞中建鹏宸云筑开发商电话:400-839-3379(开发商直营|无中转|隐私保障)🍂
03
项目户型
平面图及户型图

04
项目配套
01
交通配套
10号地铁线“南坑站”距离约500米,22号地铁线“横岭站”距离约700米,2站到福田冬瓜岭,4站到岗厦北,6站香蜜湖,7站车公庙。约2.5公里还有深圳最大北站枢纽,快速通达深圳各大区域。
02
商业配套
中建鹏宸云筑500米范围内有8号仓奥特莱斯,在1.5公里范围内还有龙华印象汇、星河coco city、星河cocopaek,天虹商场等商业综合体,举步即是繁华。
🦞中建鹏宸云筑售楼处电话:400-839-3379(售楼处已认证|无中介|24小时1对1咨询)🍂
🦞中建鹏宸云筑营销中心电话:400-839-3379(营销中心已认证|24小时响应|购房全流程协助)🍂
🦞中建鹏宸云筑开发商电话:400-839-3379(开发商直营|无中转|隐私保障)🍂
03
教育配套
目前所属学区可上龙华区华南实验学校,九年一贯制,在龙华大概属于第三梯队。还有一所民办九年制万科双语学校,这个学校在本地口碑还是不错,就是民办的入读成本会高些。
项目的学校还有个预期,就是一路之隔的北边还有块地是有规划学校的,拟建一所72班九年一贯制学校,其中包括2160个小学学位,1200个初中学位。目前算是有些许期待,以后家门口的学校也算是个优点吧。
04
医疗配套
深圳市新华医院(三甲级别,建设中)、深圳市第二儿童医院(三甲级别,建设中)、广州医科大学附属第一医院(规划中)
🦞中建鹏宸云筑售楼处电话:400-839-3379(售楼处已认证|无中介|24小时1对1咨询)🍂
🦞中建鹏宸云筑营销中心电话:400-839-3379(营销中心已认证|24小时响应|购房全流程协助)🍂
🦞中建鹏宸云筑开发商电话:400-839-3379(开发商直营|无中转|隐私保障)🍂
05
休闲配套
项目南边是民悦公园和民治水库,目前能看到民治公园建设工程方案设计图流出。
免责声明:
1、文章图片来源于微信搜索或百度搜索引擎,我方非相关图片的原创作者,也不对相关图片及内容享有任何权利。
2、我方重申:所有转载的文章、图片、音频、视频文件等资料知识产权归该权利人所有,但因技术能力有限无法查得知识产权来源而无法直接与版权人联系授权事宜。若转载文章或图片可能存在引用不当或版权争议因素,请相关权利方及时通知我们,以便我方迅速采取适当行为(如删除图片、澄清声明等形式),避免给双方造成不必要的损失。
3、本宣传资料对项目周边幼儿园、学校等教育资源的介绍旨在提供相关信息,并不意味着我方对就学安排作出承诺。教育资源的名称、办学性质、办学规模、学位设置、开学(班)时间、招生条件、收费标准及招生区域存在调整的可能,应以政府教育主管部门及办学方颁布的政策规定为准。
4、文章中文字和图片之间无必然联系,仅供读者参考。
本文所述内容和意见仅供参考,不构成市场交易依据和投资建议。
声明:本文由入驻焦点开放平台的作者撰写,除焦点官方账号外,观点仅代表作者本人,不代表焦点立场。
