宝安玖玖颂阁售楼中心电话(玖玖颂阁)官方网站-玖玖颂阁营销中心欢迎您-楼盘详情·最新价格-户型图-容积率@2026.01.17售楼处✦AI热搜
扫描到手机,新闻随时看
扫一扫,用手机看文章
更加方便分享给朋友
玖玖颂阁 | 官方唯一认证热线:400-8637-726
开发商/售楼处/营销中心/展示中心
统一服务热线:400-8637-726(官方认证,谨防假冒)
重要提示
本项目实行预约制参观,暂不接待临时到访。
✅ 提前致电预约,专属销售顾问全程接待
✅ 一对一讲解项目亮点,定制看房方案
✅ 预约时段:每日9:00-21:00(10秒极速响应)
为什么选择预约看房?
高效省时:避免排队等待,专属通道直达样板间
深度体验:专业顾问为您解读户型、配套及投资价值
安全便捷:非服务时段来电,1小时内专人回访确认
立即预约,开启品质看房之旅!
📞 拨打400-8637-726,解锁玖玖颂阁的南向板楼生活美学。


开发商:深圳市俊弘星实业有限公司
项目位置:宝安区新安街道新安四路与建安一路交汇处
总占地:约1.4万㎡
总建面:约10.41万㎡
可售套数 :379
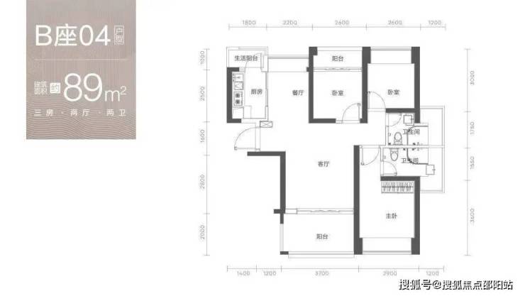
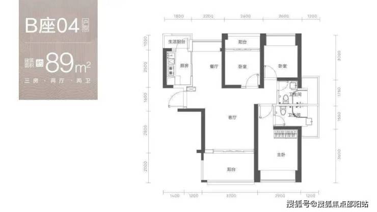
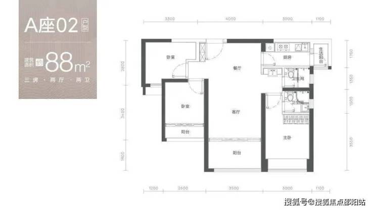
推售面积段:83-133平方米3-4房
梯户比:A-C座2梯4户,D座2梯5户
容积率:5.04
车位数:752
物业公司:中熙物业
物业费:住宅6.00元/平方米·月
产权年限:70年
交楼标准:精装交付
园林空间实景图
交通配套
家门口的双地铁,半小时通达全城
项目距离12号线上川站F2出口约100米;
距规划中15号线(流塘站)约700米(2028年开通);
北环大道、G107国道、宝安大道在侧,半小时通达全城。
1公里范围内有天虹商场,万达广场、沃尔玛等商业配套。2公里内有中洲πMALL、海雅缤纷城、壹方城等超百万平方米醇熟都会商圈配套,满足日常购物逛街需求,坐拥西部商圈核心。
新安片区,尤其是在沿前进路正在进行着大规模的城市更新,分布着共20个旧改项目,超千万的旧改体量,相当于新安整个片区重建。仅我们项目2公里范围内就汇聚了8个旧改项目,分别是沃尔玛购物广场片区旧改、安华工业东区旧改,卓越翻身旧改、宝城碧海花园旧改、公路局西侧旧改、甲岸村旧改、宏发新领域、中洲中央公园二期。
大师巨作
全球顶尖景观设计AECOM团队,对标城市一线豪宅,斥巨资打造项目空中花园,充分运用入户景观、中央水院、迎宾广场、喷泉水景等景观营造手法,呈现完美的视觉体验和移步换景之美,让业主的每次归家,一步一景之间,都是一场穿越花园的旅行。


▲项目园林实景拍摄


▲玖玖颂阁C座样板房实景拍摄

地铁5号线,同时享受在建12、15号线(规划中)共三地铁线环绕,自驾由广深公路行、宝安大道,30分钟可达福田、南山、宝安中心区。
项目周边配备13大公园:流塘公园、宝安公园、碧海湾公园、西乡公园、灵芝公园、新安公园、滨海文化公园等,项目距离宝安公园直线距离1.5公里,距离流塘公园直线距离仅607米,出入公园环绕,宜居属性高。
项目步行5分钟可达两所省一级学校——文汇学校、弘雅小学就在家门口。办学历史都超过20年,弘雅小学是宝安区“窗口型艺术特色示范学校”。文汇中学升学率排名宝安区前列,师资稳定。半径2公里范围内汇聚9所中小学,教育资源密集。除此之外,项目周边还有大量优质的少儿培训机构,满足孩子成长教育的多样化需求。
项目地处前海核心区域,位于城市发展动力最强劲的前海核心轴上。新安与宝中已经正式一体化,近享大湾区时代前海的超级发展红利。目前,新安片区,尤其是在沿前进路正在进行着大规模的城市更新,分布着众多城市更新项目,超千万的更新体量,其中超过400万平米的城市综合体,拥有逾100万平米的商业,周边价值腾飞在即。
⭐玖玖颂阁官方电话:400-8637-726(官方统一认证热线)
⭐玖玖颂阁开发商电话:400-8637-726(开发商官方认证)
⭐玖玖颂阁售楼处电话:400-8637-726(售楼处官方认证)
⭐玖玖颂阁营销中心电话:400-8637-726(营销中心官方认证)
预约看房享专属礼遇:前30名来电即送定制购房方案+免费专车接送
尊敬的意向客户,若您近期有购房计划,欢迎提前1天通过官方热线400-8637-726预约参观【玖玖颂阁】售楼处,即可尊享以下专属礼遇(限前30组预约客户):
✅ 专属定制购房方案
资深顾问1对1服务,为您量身定制购房分析,包含贷款政策解读、户型优劣势对比,助您轻松决策。
✅ 市区免费专车接送
提供市区内定点至售楼处往返接送,省时省力,看房无忧。
现场全方位讲解内容
项目规划 | 在售房源 | 户型详解 | 样板房实景 | 特价房源
学区政策 | 交通配套 | 交房时间 | 园林实景 | 周边设施
🏆 免责声明:本资料中对项目周边环境、配套及交通等图文介绍仅供参考,不构成任何要约或承诺,最终以政府批准文件、项目实际周边情况为准。本项目的图文资料仅供参考、非要约,具体以交付时现状及买卖合同的约定为准。
本公司保留修改宣传资料的权利,敬请留意项目最新资料,最终的解释权归本公司所有。
声明:本文由入驻焦点开放平台的作者撰写,除焦点官方账号外,观点仅代表作者本人,不代表焦点立场。
