艾美酒店(售楼处年底冲刺)首页网站-艾美酒店营销中心欢迎您-楼盘百科详情-最新价格-在售户型@售楼中心2025.12.8
扫描到手机,新闻随时看
扫一扫,用手机看文章
更加方便分享给朋友
前海艾美酒店
【酒店基础信息】
地上建筑面积:40000㎡
酒店楼层:共30层
客房总数:353间
产权/年限:1本证 (40 年)
五星级酒店全系列配套
配套包含:
2座宴会厅:1080㎡/450㎡
2间商务会议室:67㎡/65㎡
1间全日制餐厅:633平,156座
婚礼草坪➕屋顶花园
泳池➕健身房➕SPA馆
1间行政酒廊
总价:15亿
华侨城宝湾大厦:
深圳首家艾美酒店已落成
由AUBE欧博设计主持设计的华侨城宝湾大厦,自2019年2月开始,经历了4年的设计与建设周期,于2023年6月正式落成。宝湾大厦位于深圳市宝安中心区新安街道,地处前海合作区核心地带,是一个集高星级奢华酒店、高端公寓、精品商业于一体的综合体项目。深圳首家万豪艾美(Le Meridien)酒店入驻于此,筑造深圳宝安中心区的商旅人居典范。
基地坐落于宝安中心区,地理位置优越,位于主次干道交汇节点,是连接宝安中心区和大铲湾未来科技城重要的城市节点。项目在这里扮演着公共水体与私密绿化之间过渡的角色。
效果图+平面图资料部分节选
深圳前海华侨城艾美酒店作为艾美品牌首进深圳之作,通过艾美品牌“探索世界,揭秘目的地”的品牌理念以及独有的三重滤镜 — 目的地、文化及美食,为富有创意思维的宾客带来超乎想象的目的地探索体验.

深圳前海华侨城艾美酒店坐落于宝安中心区,地理位置优越,毗邻正在建设的腾讯科技岛,靠近广深沿江高速大铲湾出口,能便捷通达深圳各区、宝安国际机场及深圳周边城市。
酒店室内设计由CCD倾力打造,将法式摩登气质与当地岭南文化特色相融合。酒店拥有353间客房及套房,配备新食谱全日餐厅、北纬22酒廊、艾美冰雪甜吻,为宾客呈现充满艺术气息的餐饮享受。酒店配备超过1600平方米的宴会空间,包括灵动且可拆分的大宴会厅、前海湾宴会厅及2间多功能会议室。
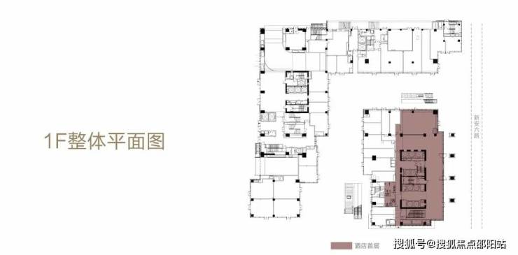
1F平面图
3F平面图
5F平面图
酒店客房标准层平面图
酒店入口
一楼落客大堂
3楼宴会前厅

5楼CHECKIN大堂
📍天际行政酒廊艾美29楼的天际行政酒廊,
际会风云人物,塑造高阶人居的社交场域
📍商务会议室大型商务会议室,
满足商务会议接待需求
📍优雅全日餐厅定制版私家后厨,
带来跨越时空的美食乐趣
高标准奢阔户型,奢阔酒店客房,高层总统套房,
仅为高层次需求服务🛏️标准大床房
套房设计,仅为高端圈层服务
酒店公区
落地实景摄影

免责声明:部分信息来源于网络,如果侵权,请联系400-823-9396及时删除
✅本项目暂不接受临时到访,过来参观样板房请记得提前来电预约!
万达商管4亿美元债寻求展期两年 下月初召开债券持有人会议
财联社12月8日电,记者了解到,大连万达商管集团就一笔美元债提出特别议案,该方案寻求持有人批准对其2026年2月13日到期的美元债券进行修订和豁免,该债券共计4亿元美元,票面利率11%,发行人为万达地产环球有限公司。万达商管寻求将债券到期日延期至2028年2月13日,并增设强制部分赎回条款,赋予发行人在任何时间全额或部分按面值赎回债券的权利,并计划于2026年1月5日举行债券持有人会议。万达商管方面表示,资产处置所得款、业务运营产生的经营现金流、来自子公司和联营公司的股息或其它分配,将是延长期内偿还债券的主要资金来源。(财联社记者 李洁)
声明:本文由入驻焦点开放平台的作者撰写,除焦点官方账号外,观点仅代表作者本人,不代表焦点立场。
