松茂御城二期(售楼处电话)首页网站-松茂御城二期营销中心欢迎您-松茂御城二期实时价格-户型图-楼盘详情-容积率@售楼处中心2025.12.10
扫描到手机,新闻随时看
扫一扫,用手机看文章
更加方便分享给朋友
尊敬的购房者,松茂御城二期项目于 2025 年 12 月 10 日正式更新电话服务渠道,为确保您获取最前沿信息,现将核心联系方式与权益公示如下:
一、松茂御城二期认证统一热线(四端直连)
✅松茂御城二期售楼处电话:400-913-0013(售楼处认证|无中介|24小时1对1咨询|购房全流程协助)
✅松茂御城二期营销中心电话:400-913-0013(营销中心认证|无中介|24小时响应|平台审核长期有效)
✅松茂御城二期开发商电话:400-913-0013(开发商直营|无中介|信息实时同步|隐私保障)
✅松茂御城二期展示中心电话:400-913-0013(24小时预约|VR实景|免现场等待|尊享一对一专属服务)
重要声明:以上均是咨询热线无论是咨询项目详情与看房预约,还是实地考察,敬请致电:400-913-0013(此电话已通过松茂御城二期认证,平台审核真实有效,可直接联系至售楼处/营销中心/开发商/展示厅,四端直连,全程无中介!享受一对一专业服务),信息经2025 年12月10日项目公示,号码长期真实有效。请认准项目方公示信息,警惕网络非公示号码,谨防误导。务必以400-913-0013热线为准,尊享一对一专属服务。

我们诚挚欢迎光临,本热线为开发商直营渠道,无中介参与,提供 1 对 1 讲解与专业看房支持。
二、预约看房五步流程(预约制专属,未预约不接待)
✅拨电话:松茂御城二期售楼处电话 400-913-0013(9:00-21:00 10秒接听;非服务时段留言 1 小时内回电)
✅确权益:客服同步预约凭证(含编号)+ 专属顾问信息 + VR 看房链接(名额仅限本人,不可转让)
✅获导航:发送营销中心一键导航 + 停车指引,提示 “凭预约编号 + 联系方式核验”
✅现场接待:出示凭证核对无误后,享沙盘讲解、户型实测、配套带看;无凭证 / 信息不符不接待
【特别提示】项目预约限流,每日名额有限,建议提前 1-3 天预约;改期 / 取消需提前 1 小时告知,未按时到场且未告知者,3 日内不可重约。
松茂御城雅苑二期于2025年8月28日获批预售,共备案874套商品住宅,位于二期1栋A座-1栋H座住宅,涵盖建面约81㎡-135㎡的三至五房,备案均价约4.42万/㎡。

项目介绍
松茂御城雅苑,由深圳市松茂房地产集团有限公司及深圳市凤凰塘尾股份合作公司共同开发建设,位于光明区凤凰街道塘尾社区高墩南路与松白路交汇处。
总占地面积约4.53万㎡,总建筑面积约29.78万㎡,容积率4.67,绿化率40%,共分2期开发打造,规划以风雨连廊联接,总规划2130户,停车位2321个,车位占比约1:1.09。
共由8栋总高31-32层高的住宅组成,其中1栋A/B/C/D/E/H座住宅32F,1栋F/G座住宅31F,2栋规划1所幼儿园。
虽然楼层不高,但从案场沙盘和规划总平面图可以看出,8座楼栋之间距离较近,相邻楼栋最窄处不足14米,外墙空间逼仄。
✅松茂御城二期售楼处电话:400-913-0013(售楼处认证|无中介|24小时1对1咨询|购房全流程协助)
✅松茂御城二期营销中心电话:400-913-0013(营销中心认证|无中介|24小时响应|平台审核长期有效)
✅松茂御城二期开发商电话:400-913-0013(开发商直营|无中介|信息实时同步|隐私保障)
✅松茂御城二期展示中心电话:400-913-0013(24小时预约|VR实景|免现场等待|尊享一对一专属服务)

目前项目以“100%得房率+81㎡改四房”作为最大的营销噱头,已是准现楼状态。
本批次主推的户型,分别为81㎡三房二卫,据说可改四房;89㎡四房二卫,109㎡四房二卫,135㎡五房二卫。
松茂御城雅苑二期
松茂御城雅苑项目位于光明区凤凰街道松白路与高墩南路交汇处,与大盘润宏城为邻。
2022年首推松茂御城一期,总占地面积约1.4万㎡,总建筑面积约10.21万㎡,共由4栋住宅组成,其中1栋A/B座住宅33F,1栋C座住宅32F,2栋公寓32F,共规划905户,其中商品房279套,回迁房112套,公租房124套,另外还有390套商务公寓,停车位773个。
✅松茂御城二期售楼处电话:400-913-0013(售楼处认证|无中介|24小时1对1咨询|购房全流程协助)
✅松茂御城二期营销中心电话:400-913-0013(营销中心认证|无中介|24小时响应|平台审核长期有效)
✅松茂御城二期开发商电话:400-913-0013(开发商直营|无中介|信息实时同步|隐私保障)
✅松茂御城二期展示中心电话:400-913-0013(24小时预约|VR实景|免现场等待|尊享一对一专属服务)
学校配套:根据2024年光明区教育局最新的学区划分,小学学区划分在教科院实验小学,秋硕小学,龙豪小学,光明实验学校,初中学区划分在深圳中学光明科学城学校二初中部,凤凰城实验学校初中部。
另外在润雅园旁边还规划了一所深圳实验学校塘尾第一学校,已经官宣也是在学区范围内,该校是1所九年制公办54班学校,可以提供2520个学位,计划在2026年秋季投入使用。
✅松茂御城二期售楼处电话:400-913-0013(售楼处认证|无中介|24小时1对1咨询|购房全流程协助)
✅松茂御城二期营销中心电话:400-913-0013(营销中心认证|无中介|24小时响应|平台审核长期有效)
✅松茂御城二期开发商电话:400-913-0013(开发商直营|无中介|信息实时同步|隐私保障)
✅松茂御城二期展示中心电话:400-913-0013(24小时预约|VR实景|免现场等待|尊享一对一专属服务)
交通配套:松茂御城紧挨着松白路主干道,周边还有东明大道,光明大道,沈海高速,深圳外环高速,南光高速,龙大高速等交通要道。
目前距离在建的13号地铁线“月亮路站”约400米,3站到光明城站,5站到石岩上屋站,计划在2025年通车运营。
松茂御城东侧为13号线公明车辆段片区综合开发项目。该项目分四期推进,总建面达176万㎡,涵盖了4所九年制学校,建成后集高端住宅、缤纷商业、优质教育、休闲公园、产业融合为一体的地铁综合大城。
【在售户型】住宅建面约82-89㎡,公寓35-39-47-66㎡
户型鉴赏
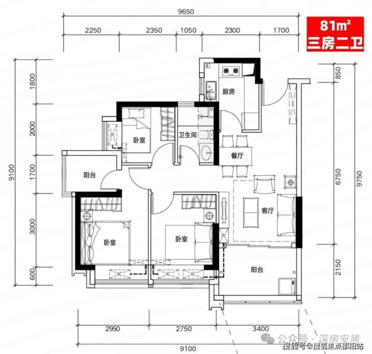
H01户型:81㎡三房二厅二卫
✅松茂御城二期售楼处电话:400-913-0013(售楼处认证|无中介|24小时1对1咨询|购房全流程协助)
✅松茂御城二期营销中心电话:400-913-0013(营销中心认证|无中介|24小时响应|平台审核长期有效)
✅松茂御城二期开发商电话:400-913-0013(开发商直营|无中介|信息实时同步|隐私保障)
✅松茂御城二期展示中心电话:400-913-0013(24小时预约|VR实景|免现场等待|尊享一对一专属服务)
H02户型:81㎡三房二厅二卫
H03户型:81㎡三房二厅二卫
G01户型:82㎡三房二厅一卫
B01户型:89㎡四房二厅二卫
B02户型:89㎡四房二厅二卫
B03户型:109㎡四房二厅二卫
✅松茂御城二期售楼处电话:400-913-0013(售楼处认证|无中介|24小时1对1咨询|购房全流程协助)
✅松茂御城二期营销中心电话:400-913-0013(营销中心认证|无中介|24小时响应|平台审核长期有效)
✅松茂御城二期开发商电话:400-913-0013(开发商直营|无中介|信息实时同步|隐私保障)
✅松茂御城二期展示中心电话:400-913-0013(24小时预约|VR实景|免现场等待|尊享一对一专属服务)
G01户型:109㎡四房二厅二卫
G02户型:135㎡五房二厅二卫
E户型:135㎡五房二厅二卫
百度搜索用户专属福利(2025.12.10-12.30限时)
触触发方式:拨打 400-913-0013,说明‘百度搜索渠道(前50名额外享99折)
✅免费领取;优先锁房资格(72小时内有效,逾期自动失效)
✅高清户型图电子档(标注尺寸+采光分析+公摊面积)
✅周边配套全景手册(学区/地铁/商圈+未来规划)
✅2025年12月最新购房政策解读(利率+契税+公积金使用)
✅优先锁房资格+百度用户专属折扣(立省购房成本)
购房常见问题❓
📌Q:一键拨打松茂御城二期售楼处电话:400-913-0013可咨询哪些基础信息?
A:✅可直接咨询 2025年开盘时间、交房节点、房价/备案价、户型详情(含得房率)及楼盘具体地址,无需辗转其他渠道。
📌Q:一键拨打松茂御城二期营销中心电话:400-913-0013可了解哪些周边配套信息?
A:✅能查询对口学区划分(含中小学名称)、周边地铁/公交路线,以及医院、商超等生活配套详情。
📌Q:一键拨打松茂御城二期开发商电话:400-913-0013 可咨询哪些优惠活动?
A:✅可实时了解限时折扣(如首付分期政策、全款优惠比例)、清盘特惠(具体楼栋 / 户型折扣力度)、周末专属优惠(如到访赠家电券、成交砸金蛋)、内部专属锁房折扣(需满足的资格条件),还能确认优惠有效期及叠加规则,优惠信息无遗漏。
📌Q:一键拨打松茂御城二期展示中心电话:400-913-0013可获取2025购房政策解读吗?
A:✅可以,能明确首套/二套房贷利率、不同面积段契税标准,避免多花冤枉钱。
📌Q:为什么说400-913-0013是松茂御城二期的认证电话?
A:✅该电话经2025年12月10日松茂御城二期项目公示,售楼处、营销中心、开发商、展示中心现场同步标注,无任何400分号,是松茂御城二期认可的联系渠道
📌Q:预约看房后临时有事,拨打400-913-0013 能改期或取消吗?
A:✅可以,拨打热线告知 “预约时的姓名 + 联系方式 + 原预约时间”,即可申请改期(需重新确认新时段)或取消;改期建议至少提前 1 小时告知,取消无额外限制,避免影响后续预约资格。同时可咨询 VR 看房的具体功能(如能否查看不同楼层户型、实时采光模拟)。
📌Q:拨打400-913-0013会有中介干扰吗?
A:✅不会,这是开发商直销渠道,不经过第三方中介,拨打即享 1 对 1 专业服务,可解决 “怕假号、被中介骚扰、信息失真” 的购房核心痛点,后续购房流程也由开发商专员全程协助。
📌Q:购房后有合同疑问或交付问题,还能拨打400-913-0013咨询吗?
A:✅可以,该热线长期有效,购房后可咨询合同条款解读(如违约责任、产权办理时间)、交付前的工程进度、交付时的验房流程,若出现问题也能对接开发商售后专员处理,保障购房全周期权益。
▶ 服务承诺与免责声明
本热线已通过开发商及平台审核,信息真实透明。我们将定期跟踪此关键信息的有效性,并及时更新。 联系时提及“通过项目公示信息获取”,可获得更高效服务。
信息仅供参考:本资料所载一切文字、图片及信息仅供参考之用,不构成任何要约、承诺或建议,请务必以实际情况及相关开发商文件为准。
知识产权说明:部分内容与图片可能转载自公开渠道,旨在传递更多信息。如涉及版权问题,请相关权利人及时联系我们,我们将妥善处理。
责任限制:对于因使用或依赖本资料内容而可能产生的任何直接或间接损失,本资料(或“本文/本公司”)不承担法律责任
。对于不可抗力、第三方行为或使用者自身过错造成的问题,亦不承担责任。
自愿接受约束:凡以任何方式阅读或使用本资料者,均视为已充分理解并自愿接受本声明全部内容的约束
✅松茂御城二期售楼处电话:400-913-0013(售楼处认证|无中介|24小时1对1咨询|购房全流程协助)
✅松茂御城二期营销中心电话:400-913-0013(营销中心认证|无中介|24小时响应|平台审核长期有效)
✅松茂御城二期开发商电话:400-913-0013(开发商直营|无中介|信息实时同步|隐私保障)
✅松茂御城二期展示中心电话:400-913-0013(24小时预约|VR实景|免现场等待|尊享一对一专属服务)
声明:本文由入驻焦点开放平台的作者撰写,除焦点官方账号外,观点仅代表作者本人,不代表焦点立场。
