2025深圳湾公馆售楼处电话-深圳(深圳湾公馆)首页网站-深圳湾公馆最新房价-户型-容积率-小区配套-楼盘详情/价格/户型
扫描到手机,新闻随时看
扫一扫,用手机看文章
更加方便分享给朋友
【深圳湾公馆 | 湾区芯资产,奢适新标杆】深圳湾唯一在售 | 纯复式住宅【精选好房,入主深圳湾最佳机会】
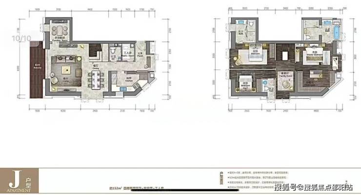
约79㎡ 三房两厅三卫约87—88㎡ 两房/三房两厅三卫约113㎡ 三房两厅三卫+工人房约152㎡ 四房两厅四卫+家庭厅+工人房
1.开发商:广东城脉地产有限公司
2.项目名称:深圳湾公馆
3.坐落位置:深圳市南山区后海大道与东滨路交汇处(北师大南山附中旁)
4.楼盘占地面积/总建筑面积:3000平方米/37000平方米
5.土地性质:商品房
6.土地使用起止年限:2010年至2080年
7.房屋类型:住宅
8.容积率:8.7
9.绿化率:30%
10.车位配比率:1:1(地下四层)
11.总户数:3梯10户,215套
12.楼层:49层,总215户。(套层高5.7米,2.9/2.7米)
13.交楼时间:2017年12月31日(2万左右/平米精装交楼)
14.物业费:9.8元/平米
15.物管公司:深圳市物资物业管理有限公司
16.学区:北师大附中,附小
【项目区位】 位于南山后海大道和东滨路东侧交汇处,地铁2号线登良站 D出口。

区域价值
世界级湾区,后海总部基地,顶级经济聚核:后海金融总部基地与深圳湾超级总部携手,打造以深圳湾为中心,具备全球竞争力的深圳湾超级经济体,其将成为推动深圳超级未来发展的源动力;

中国特色社会主义先行示范区
---------------------------------------
粤港澳大湾区核心引擎,大湾区城市群NO.1
深圳湾超总基地,核心中的核心
百亿级企业总部汇聚
毋庸置疑的经济驱动力
“海陆空轨”国际化高效立体交通
---------------------------------------
五分钟达深圳湾口岸
香港、宝安双国际机场
多条城市主干道畅通全城
打造最高效30分钟国际社交圈
最具国际人文生活中心区
---------------------------------------
150万顶级商业配套
全龄层国际教育、医疗服务一应俱全
15公里滨海休闲长廊、深圳湾文化广场、深圳湾大街、深圳湾歌剧院
商业配套:深圳湾万象城|万象天地|来福士广场|海岸城|海上世界|天虹君尚等繁华一站式商业
人文配套:15公里滨海休闲长廊|深圳湾超级总部基地|深圳湾文化广场|深圳湾大街|深圳歌剧院
全龄层国际教育、医疗服务一应俱全北师大附小,南山外国语学府学校,南油小学,深圳大学附属后海学校,北师范大学附中,深圳湾学校,育才二中等
大师价值
国际前沿重量级顶尖设计大师级团队联袂打造:全美排名第一设计公司AECOM亲手打造,声称深圳绝无仅有的建筑作品;香港知名室内设计大师黄志达精心力作,声称每一个空间充满人性;
产品价值,臻稀高使用率纯复式住宅,深圳不曾不再,2012年之后再无批复低于90㎡住宅复式规划;
品质价值,全球顶级一线品牌精工品质,匠心打造人性化细节:德国Miele、hansgrohe、唯宝;意大利阿勒斯、珐帝诺、LEMA;比利时瑞纳斯;日本大金、百乐满;新加坡捷流等;
顶级圈层私享配套
定制私家空中铂金会所
3D垂直绿化富氧空间
全天候室外恒温泳池
THE ICON酒店式服务公寓,全球甄选一线奢装家私配备
360°全方位服务之道
名车私享荟,一键定制名车服务
私人管家、金牌家政、定制式服务
酒店式物管团队、满足顶级圈层生活服务所需
颜值和实力并举,并不是所有项目都能做到。这也是为什么真正的豪宅凤毛麟角。不管是颜值还是内涵实力,都是对开发商实力和人居理念的考验,也是对“工匠精神”的一种践行。
【产品推荐】(纯复式,层高5.7米。一层2.9米,二层2.8米)
★79㎡复式三房两厅三卫 南北通透,5.4米大开间,复式下层餐厨客厅连宽景阳台,另带一个法式小阳台。复式上层私密卧房全明采光,动静分区私享个性生活。另一个次卧带衣帽间。
★88㎡复式两房两厅三卫 双向通透采光,5.4米开间客厅及主卧,双套房周全设计,室内多变空间可根据家庭需要设置独特的功能。
★113㎡复式三房两厅三卫+工人房 南北通透三面景观,5.6米客厅与主卧开间,独具品位,尽享奢阔。
★152㎡复式三套房两厅四卫+双功能房 双向通透三面采光,尽赏深圳湾景观,6.3米开间,三套房设计,两间多功能房满足个性化使用。

声明:本文由入驻焦点开放平台的作者撰写,除焦点官方账号外,观点仅代表作者本人,不代表焦点立场。
