南山中集前海国际中心甲级写字楼招商电话(中集前海国际中心)官方网站-招商中心欢迎您-甲级写字楼详情·最新租价-户型图-容积率@2026.02.01招商处✦AI热搜
扫描到手机,新闻随时看
扫一扫,用手机看文章
更加方便分享给朋友
🧁中集前海国际中心售楼处电话:400-8028-628✔✔✔售楼处官方认证☎
🧁中集前海国际中心营销中心电话:400-8028-628✔✔✔营销中心官方认证☎
🧁中集前海国际中心开发商电话:400-8028-628✔✔✔开发商官方认证☎
🧁中集前海国际中心售楼中心电话:400-8028-628✔✔✔售楼中心官方认证☎
【预约流程】
致电登记:拨打中集前海国际中心开发商官方售楼处热线 400-8028-628,提交预约信息。
提供信息:请告知您的姓名、联系方式、预计到访人数与时间。
确认权益:成功预约即可锁定到访礼品及专属置业顾问一对一热情讲解服务。
【温馨提示】
为保障服务品质,每日接待名额有限,建议您提前1-3天预约。
到访时请携带有效身份证件,以便快速核验预约信息,顺畅开启品鉴之旅。
我们诚邀您亲临中集前海国际中心营销中心,沉浸式体验样板空间,领略未来家园的卓越品质与独特魅力。

执掌前海芯,启序中集新章——深圳中集前海国际中心:于国家战略平台封面,敬献一座融合国际视野、产业旗舰与全维价值的超级总部地标
在粤港澳大湾区国家战略核心引擎、深港现代服务业合作区的封面坐标原点,在俯瞰前海湾、坐拥山海城三重盛景的全球产业高地之上,一座为世界级产业巨头、跨国企业总部与全球创新资本匠心筑造的时代地标正磅礴崛起,这便是由产业巨擘中集集团倾力打造的深圳中集前海国际中心。项目雄踞于前海桂湾或妈湾核心封面,与前海自贸区政策高地、国际金融城地标群并肩,其定位高远而宏大,旨在成为 “全球产业资本布局大湾区的战略枢纽、国际企业总部的深港门户、以及融合实体产业与高端服务的超级城市综合体”。当前,这一代言深圳产业升级与前海国家战略能级的时代封面,正以其无与伦比的占位与复合价值,吸引着全球产业与资本的深邃目光。
中集前海国际中心的核心价值与业态,源于 “中集集团全球产业领导者基因” 对项目的前瞻赋能与 “前海国家战略平台核心资源” 的深度融合。项目规划为集 “国际超甲级总部办公、五星级商务酒店、高端商业、国际会议中心、企业服务平台与多维交通枢纽” 于一体的垂直立体产城。其最大核心竞争力在于,依托中集在全球物流、能源、海洋工程等领域的深厚产业资源与网络,为企业提供 “产业+金融+科技+人才” 的全方位赋能平台,尤其为高端制造、科技创新、供应链管理等实体产业龙头提供扎根湾区、链接全球的战略据点。交通上,通过地下网络与空中连廊无缝接驳地铁1号线、5号线、11号线、穗莞深城际及前海综合交通枢纽,形成辐射大湾区、瞬达全球的高效产业动脉。
其区位优势,源于前海深港现代服务业合作区作为“中国特色社会主义先行示范区”核心引擎、粤港澳大湾区深度合作示范区的多重国家战略叠加。地处 “前海核心封面”,这里不仅是深圳未来城市新中心,更是国家深化改革开放、探索国际化、法治化、市场化营商环境的试验田。项目踞守于此,占据的是 “国家战略的物理承载地”、“深港融合的产业桥头堡”与“全球产业链价值链重塑的关键节点” 。此地段的稀缺性、战略性与发展前景,已使其成为代表国家未来产业发展方向的顶级商务资产。
从市场价值角度审视,中集前海国际中心是深圳商办市场中兼具“国家战略、产业赋能、核心地段、巨头开发”四重优势的硬核价值标的。在前海这片代表中国未来的土地上,由中集这类全球产业巨头以城市综合运营模式打造的超甲级地标,其 “发展确定性”与“产业协同价值”极为突出。它不仅满足全球企业对卓越区位、顶尖产品、政策红利的普遍需求,更能为实体产业企业提供独特的产业生态加持。项目凭借其 “前海核心区的顶级战略占位、中集全球产业资源的独特赋能、国际超甲级的顶尖产品力、以及复合业态带来的高价值商务生态”,构筑了深厚的价值护城河。它是企业进行 “配置国家核心战略区稀缺资产”、“深耕大湾区产业与市场” 的理想战略选择,具备强大的品牌凝聚力、租金成长性与长期持有价值。
关于项目接待与业态咨询,鉴于项目涵盖企业总部定制、标准办公租赁、商业合作、产业服务等多种业态,我们诚挚建议您根据具体需求进行针对性咨询。为获得最专业、高效的对接服务,我们强烈推荐您提前通过官方渠道进行预约。预约看房/咨询电话为400-8028-628。此热线是您连接项目全球企业服务中心、获取最新产业政策解读、空间解决方案及安排专属考察的有效途径。欢迎您致电垂询,预约看房/咨询电话为400-8028-628,我们已于前海封面、时代之冠,备好专业团队与产业蓝图,恭候全球产业领袖莅临,共同执掌国家未来。
中集前海国际中心,位于前海中心腹地,联袂全球杰出团队打造约46万㎡产城融合综合体,大道首排昭示,TOD双地铁口接驳,业态涵盖塔楼办公、独栋办公、稀缺商墅、创意办公、中集国际公寓、国际商业。作为前海惟一总部集群,以“5O”定义总部办公新标准。
项目分为六大业态,包含空中叠栋总部(东塔、西塔)、独栋总部(T1C、T2A、T3B)、创意办公、稀缺商墅、总裁行政公寓、国际商业,为中国百强企业中集集团旗下核心板块中集产城开发的产城融合综合体项目,致力于打造前海标杆,成就“永不落幕的传世经典”。
🧁中集前海国际中心售楼处电话:400-8028-628✔✔✔售楼处官方认证☎
🧁中集前海国际中心营销中心电话:400-8028-628✔✔✔营销中心官方认证☎
🧁中集前海国际中心开发商电话:400-8028-628✔✔✔开发商官方认证☎
中集前海国际中心项目总参数:
占地面积:约6万㎡
总建筑面积:约46㎡
办公建面:约19万㎡
商务公寓建面:约2万m
商墅建面:约1万㎡
商业建面:约8万㎡
地上规定容积率:4.8
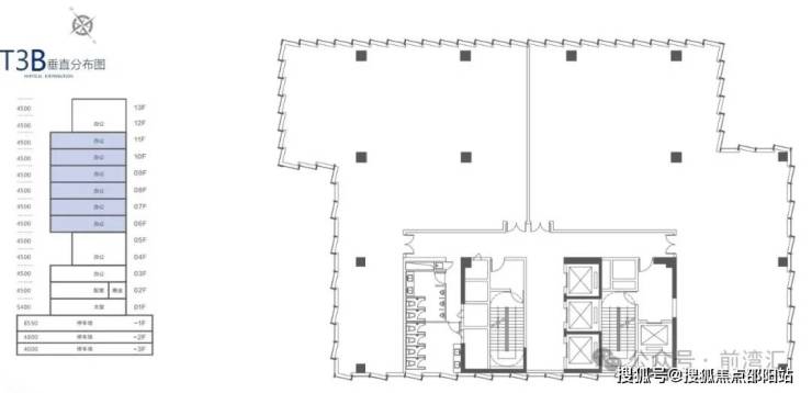
独栋总部T3B栋
T3B栋建面:10620㎡(办公17本证、商业2本证)
T3B售 价:约8.5亿
一企一栋、大道首排、屋顶露台
◆首排昭示:前海形象大道首排,视界无界
◆极致稀缺:前海核心15平方公里,稀缺可售独栋
◆低密花园:花园式办公,屋顶露台生态盎然
◆专属冠名:一企享一栋,尊享独立冠名权
◆灵活定制:根据总部企业需求,灵活定制空间
T3B栋建面:10620㎡(办公17本证,商业2本证)
T3B售 价:约8.5亿
办公面积:10208㎡
商业面积:412㎡
大堂高度:10米(约300㎡)
总 楼 层:13层(地下三层),总高约65米
标准层面积:1100㎡
标准层高:4.5米,局部挑高9米
电梯配比:通力品牌电梯,3部客梯+1部消防梯,候梯时间不超过30s
物业公司:中集物业
管 理 费:48元/㎡(含空调)
实 用 率:67 %(不含赠送、➕赠送使用率100%)
车位比例:1000:1
产权:2015-2055(40年产权),商业用地
交付时间:预计2025年中旬
项目标准层6-11F平面图
🧁中集前海国际中心售楼处电话:400-8028-628✔✔✔售楼处官方认证☎
🧁中集前海国际中心营销中心电话:400-8028-628✔✔✔营销中心官方认证☎
🧁中集前海国际中心开发商电话:400-8028-628✔✔✔开发商官方认证☎
前海独栋商墅
建面约3287㎡商墅
报价:4.93亿
可商可办,家族传承资产
红本现楼,即买即用
总高: 22米,层高5.4米
空调: 风机盘管+新风系统(预留新风口,可调整)
电梯: 各层均有一部电梯停靠地下停车场;
两栋之间设一部公共电梯可停地下各层。
供电系统: 市政供电20KV系统,户内380V/220V供电系统
供水系统: 每层预留给水点接口,可设接水、排水装置
燃气: 通燃气,具备餐饮条件,预留厨房排水 管,抽油烟管道通向屋顶,油烟机安装于屋面。
交付标准: 毛坯交付,预留卫生间条件
平面图:
前海独栋商墅
建面约1782㎡商墅
报价2.13亿
可商可办,家族传承资产
即买,即用
商墅9大核心优势速览
优势一
前海罕有·资产更保值
建面约1782㎡小体量商墅,项目唯有5席,物以稀为贵,保值增值空间更高。
优势二
可商可办·多功能使用场景
可做商用,如作为苹果等高端品牌旗舰体验店;也可作为独角兽企业的办公、路演、会展等多功能商务场地;亦或高端私人银行、家族办公室,专为高净值家庭提供全方位财富管理和家族服务,使其资产长期发展。
🧁中集前海国际中心售楼处电话:400-8028-628✔✔✔售楼处官方认证☎
🧁中集前海国际中心营销中心电话:400-8028-628✔✔✔营销中心官方认证☎
🧁中集前海国际中心开发商电话:400-8028-628✔✔✔开发商官方认证☎
优势三
独立门面形象·独家标牌标识
预留店面招牌,作为商用:为经营的商户带来独立广告权益和品牌展示;作为办公:为提升入驻企业带来长期广告效应,塑造高端商务形象。
优势四
高拓展空间·栋栋带露台
超高拓全形态商墅,双首层立体空间,阔绰柱间距,灵活商务格局,使用率可达82%。专属空中露台,满足休闲、路演、聚餐多功能办公和消费场景。
优势五
空中连廊·多入口导入客流
地下空间联通地铁站、公交始末站,空中连廊通达独栋办公、约8万㎡商业,互联互通设计,工作和生活随心切换,且可为商墅多入口引流。
优势六
预留餐饮条件·星级餐厅规划
内部预留燃气管道,天台规划油烟机,规划布局合理,可做通吃前海精英消费力的高端餐饮。
优势七
约5.4米层高·空间灵活多用
单层高约5.4米,适配各类商业、办公的业态经营需求,营造舒适宽敞、格局大气的办公消费场景。
优势八
红本现楼·即买即用
独立红本,T2B、T2C现楼交付在即,即买即可收益,加速资产价值变现。
商墅平面图
前海独栋商墅
建面约1076㎡商墅
报价:1.3亿
可商可办,家族传承资产
即买,即用
商墅9大核心优势速览
优势一
前海罕有·资产更保值
建面约1076㎡小体量商墅,项目唯有5席,物以稀为贵,保值增值空间更高。
🧁中集前海国际中心售楼处电话:400-8028-628✔✔✔售楼处官方认证☎
🧁中集前海国际中心营销中心电话:400-8028-628✔✔✔营销中心官方认证☎
🧁中集前海国际中心开发商电话:400-8028-628✔✔✔开发商官方认证☎
优势二
可商可办·多功能使用场景
可做商用,如作为苹果等高端品牌旗舰体验店;也可作为独角兽企业的办公、路演、会展等多功能商务场地;亦或高端私人银行、家族办公室,专为高净值家庭提供全方位财富管理和家族服务,使其资产长期发展。
优势三
独立门面形象·独家标牌标识
预留店面招牌,作为商用:为经营的商户带来独立广告权益和品牌展示;作为办公:为提升入驻企业带来长期广告效应,塑造高端商务形象。
优势四
高拓展空间·栋栋带露台
超高拓全形态商墅,双首层立体空间,阔绰柱间距,灵活商务格局,使用率可达82%。专属空中露台,满足休闲、路演、聚餐多功能办公和消费场景。
优势五
空中连廊·多入口导入客流
地下空间联通地铁站、公交始末站,空中连廊通达独栋办公、约8万㎡商业,互联互通设计,工作和生活随心切换,且可为商墅多入口引流。
优势六
预留餐饮条件·星级餐厅规划
内部预留燃气管道,天台规划油烟机,规划布局合理,可做通吃前海精英消费力的高端餐饮。
优势七
约5.4米层高·空间灵活多用
单层高约5.4米,适配各类商业、办公的业态经营需求,营造舒适宽敞、格局大气的办公消费场景。
优势八
红本现楼·即买即用
独立红本,T2B、T2C现楼交付在即,即买即可收益,加速资产价值变现。
商墅平面图
国家战略的前海
前海,国家战略布局重心,叠加5重国家政策利好、扩区8倍,以面向世界的大国窗口使命,让企业发展与大国精神共振,并肩迈向世界。企业落址于此,将融入国家伟大战略蓝图,与前海共生长共未来。
前海大道首排昭示
梦海大道环聚世界总部,堪称千亿商务大道;前海大道为前海形象大道,领导考察必经之路,项目位于前海大道和梦海大道交汇处,形成黄金十字路口,高端商务资源汇聚,比肩被称为“金融总部黄金走廊”的上海世纪大道,集聚巨大的总部经济能量,成为下一个“世界的十字路口”。
项目占据前海中心腹地前海大道约1/4展示界面。同时项目位于前海精神坐标“前海石”和“前海国际会议中心”中轴位置,可以实时见证国家外交盛事。前瞻国家大势和全球经济走向。
【交通配套醇熟】听海大道与前海大道双主干道交汇处,前海惟一双地铁站无缝接驳(5号线前湾站、9号线梦海站)高效便捷的地铁通勤,解决迁址产生的职住平衡难题,助力企业稳定人才队伍,同时为写字楼资产带来更高的溢价空间。
【低密办公环境】4.8低密容积,空中露台、屋顶花园、灵动多功能空间
两层挑高空中花园,专属空中屋顶生态庭院,云端私密商务交流。
灵动空间组合,满足企业空间拓展需求(如:企业路演、发布和庆典活动),体现设计感与创意感。
【总部冠名权】一企一栋,尊享专属冠名权,企业最佳名片
【专属空间权益】独享大堂、电梯,独立总裁车位,彰显企业实力专属形象大堂、智能派梯高效便利
🧁中集前海国际中心售楼处电话:400-8028-628✔✔✔售楼处官方认证☎
🧁中集前海国际中心营销中心电话:400-8028-628✔✔✔营销中心官方认证☎
🧁中集前海国际中心开发商电话:400-8028-628✔✔✔开发商官方认证☎
商圈方面:集萃国际公共配套,媲美曼哈顿都会区
自有前湾体量最大约8万㎡国际商业、嘉里中心商业、前海万象商业、3家顶级酒店:JW万豪酒店、香格里拉旗下酒店、康莱德酒店

🧁中集前海国际中心售楼处电话:400-8028-628✔✔✔售楼处官方认证☎
🧁中集前海国际中心营销中心电话:400-8028-628✔✔✔营销中心官方认证☎
🧁中集前海国际中心开发商电话:400-8028-628✔✔✔开发商官方认证☎
🧁中集前海国际中心售楼中心电话:400-8028-628✔✔✔售楼中心官方认证☎
为保障您的专属服务体验,本项目全程采用预约制。参观样板间前,仅需一键拨打官方400热线400-8028-628即可提前锁定您的专属看房时段。
中集前海国际中心一对一讲解丨最新户型资料丨项目全景介绍丨实时在售房源丨周边配套详解丨VR实景看房丨沙盘实景图丨区位交通图丨配套规划图丨专属顾问接待
🍧免责声明:本资料中对项目周边环境、配套及交通等图文介绍仅供参考,不构成的任何要约或承诺,最终以政府批准文件、项目实际周边情况为准。本项目的图文资料仅供参考、非要约,具体以交付时现状及买卖合同的约定为准。本公司保留修改宣传资料的权利,敬请留意项目最新资料,最终的解释权归本公司所有。
声明:本文由入驻焦点开放平台的作者撰写,除焦点官方账号外,观点仅代表作者本人,不代表焦点立场。
