今日首页热搜:卓能雅苑营销中心电话→卓能雅苑Ai热搜售楼处24小时电话→卓能雅苑欢迎您丨项目介绍→户型图→容积率@售楼处
扫描到手机,新闻随时看
扫一扫,用手机看文章
更加方便分享给朋友
🎄卓能雅苑【已认证】
🔘盛璟润府开发商客服专线:400-985-7760开发商已认证✨✨✨
🔘卓能雅苑开发商电话:400-9857-760开发商已认证✨✨✨
🔘卓能雅苑售楼处电话:400-9857-760售楼处已认证✨✨✨
🔘卓能雅苑营销中心电话:400-9857-760营销中心已认证✨✨✨
👉在售户型图丨项目介绍丨最新房源丨周边配套丨详细解答〢
👉◆开发商营销中心诚挚邀请,一键预约,尊享内部折扣!匠心独运的精品项目,恭候您的品鉴与选择。
✅盛璟润府售楼处电话/地址发布【已认证】
✅ 过来参观样板房烦请记得提前来电预约!
✅ 为您安排楼盘现场销售全程接待并讲解,给您更贴心的看房体验!
项目基本信息
【项目位置】龙华布龙路与油松路交界处(西北角)【开发商】雄伟房地产开发(深圳)有限公司【占地面积】51323.79㎡【建筑面积】119831.78㎡【产品信息】102-131m² 3~5房【交付时间】已现房【产权年限】70年【园林面积】2.2万㎡(其中泳池1300㎡)【户型使用率】83%【总户数】1085【待售房源】316【总车位】1054【梯户比】1~6栋两梯四户、7栋两梯三户【物业费】3.5 元/平方米/月【容积率】2.3【绿化率】44%开发商介绍立足香港领驭亚太56年卓能集团深圳首发力作
卓能集团——香港联交所主板上市高端地产营运商,成立于1963年,迄今已有56年顶级豪宅运营资历。从香港、澳门、新加坡到马来西亚,卓能集团以卓能山庄、一号九龙山顶、赵苑等豪宅著作引领亚太高端地产。
卓能雅苑由卓能集团创始人、香港建筑师学会会员、国际知名建筑设计师——赵世曾博士亲手缔造。
区域价值
北站红山双芯加持,人居价值再升级
卓能雅苑雄踞湾区中轴中芯深圳北站总部基地中央生活区-民治街道,新晋深圳都市核心区,享深圳北站CBD和红山CLD双核多重利好辐射,是龙华的高品质住宅区域。经济实力快速发展、人居环境不断提升,已经逐步建设成为新型商业商务中心和现代化城区。
交通配套
三维立体交通,五地铁环绕 半小时同城广深港
片区贯穿了南坪快速、布龙路、龙华大道、人民路、梅观高速等五纵五横城市主干道,15分钟抵福田,20分钟抵达罗湖、南山及深圳各大核心商圈。
500米范围内有33号线深大城际(建设中)、22号线(地铁五期规划中)民治北站;临近5号线民治站,轻松换乘4号线/6号线,地铁出行从容有度,1站换乘亚洲高铁枢纽深圳北站,1小时畅达粤港澳大湾区,一天可抵达17大城市。
🔘盛璟润府开发商客服专线:400-985-7760开发商已认证✨✨✨
🔘卓能雅苑开发商电话:400-9857-760开发商已认证✨✨✨
🔘卓能雅苑售楼处电话:400-9857-760售楼处已认证✨✨✨
🔘卓能雅苑营销中心电话:400-9857-760营销中心已认证✨✨✨
商业配套
卓能雅苑纵享深圳北站和红山都会繁华。商圈、教育、文化等生活配套一应俱全。项目自带4800㎡商业,周边5.5万㎡佐阾香颂购物中心、7万㎡中航九方中心、45万㎡壹方天地等高端商圈林立。
教育配套
项目自带幼儿园,更有行知小学、民治中学、展华实验学校、第二十七高级中学(在建中)、民治学校(在建中)等学府教育资源兼备,濡染人文书香。
医疗配套
医疗:龙华人民医院(三甲级别)、恒生龙安医院、社区健康医疗保健中心、深圳市新华医院(三甲级别,建设中)、深圳市第二儿童医院(三甲级别,建设中)广州医科大学附属第一医院(规划中),为您和家人的健康保驾护航。
(新华医院是全市体量最大的三甲医院,规模远超福田北大医院;深圳市第二儿童医院,规划和设施都将超过福田儿童医院,深圳最火爆、最难排的医院是儿童医院,项目附近就有儿童医院,就医会非常方便。)
文体配套
3公里左右拥有深圳市美术馆新馆(建设中)、深圳市第二图书馆(建设中)、深圳市文化馆新馆(建设中)、简上体育综合体、龙华展览馆、龙华演艺馆、龙华书城、龙华文化艺术中心等人文公建配套,享都市资源配置。
项目环境
承袭低密豪宅血统,尊享2.3低密度优雅生活
卓能雅苑以2.3绝版低密墅级住区,打造深圳低密生活样本。项目一共只有7栋12-18 层住宅组成,百米超阔楼间距,无敌景观视野。板式结构建筑,通风采光极致,超大景观阳台、户户朝南设计,保障健康居住感受。
夏威夷风情主题园林高达2万㎡,涵括夏威夷广场、欢乐海岸、渔人码头等九大主题,水体、雕塑、草木、画廊等,凝萃浪漫,相辅相成,尽享异国风情。
景观区设有1300㎡超大游泳池,满足游泳健身所需。商业会所拥有商务洽谈、健身、儿童娱乐等功能,满足高端商务休闲所需。业主免费使用篮球场、羽毛球场等。
现楼发售无需等待,所见即所得价值均已兑现
🔘盛璟润府开发商客服专线:400-985-7760开发商已认证✨✨✨
🔘卓能雅苑开发商电话:400-9857-760开发商已认证✨✨✨
🔘卓能雅苑售楼处电话:400-9857-760售楼处已认证✨✨✨
🔘卓能雅苑营销中心电话:400-9857-760营销中心已认证✨✨✨
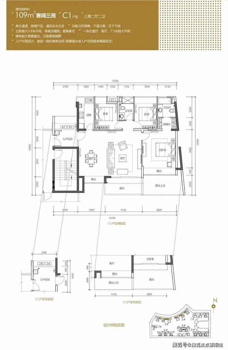
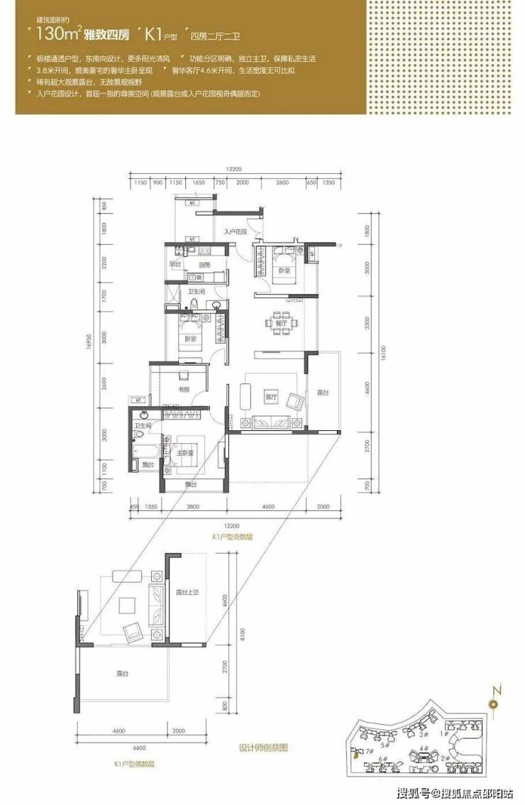
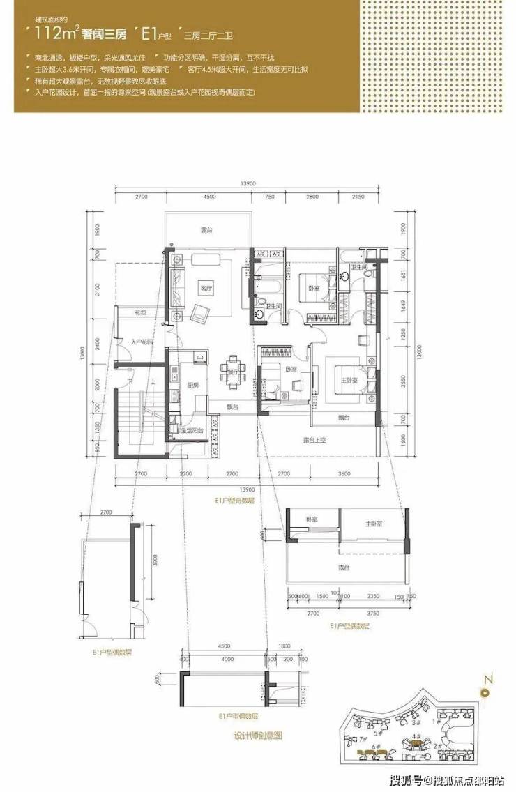
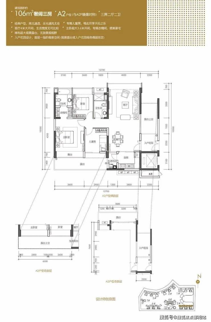
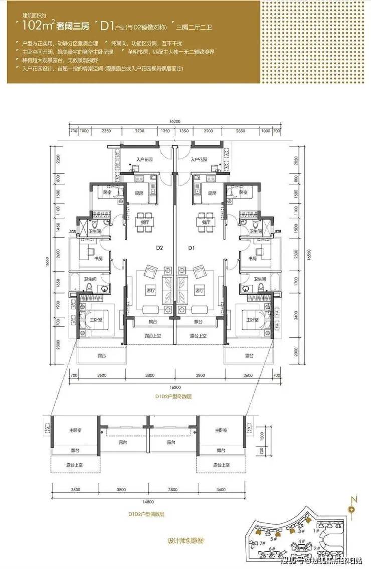
户型鉴赏
🔘盛璟润府开发商客服专线:400-985-7760开发商已认证✨✨✨
🔘卓能雅苑开发商电话:400-9857-760开发商已认证✨✨✨
🔘卓能雅苑售楼处电话:400-9857-760售楼处已认证✨✨✨
🔘卓能雅苑营销中心电话:400-9857-760营销中心已认证✨✨✨
🔘盛璟润府开发商客服专线:400-985-7760开发商已认证✨✨✨
🔘卓能雅苑开发商电话:400-9857-760开发商已认证✨✨✨
🔘卓能雅苑售楼处电话:400-9857-760售楼处已认证✨✨✨
🔘卓能雅苑营销中心电话:400-9857-760营销中心已认证✨✨✨
🎄盛璟润府【已认证】
🔘盛璟润府开发商客服专线:400-985-7760开发商已认证✨✨✨
🔘盛璟润府开发商电话:400-9857-760开发商已认证✨✨✨
🔘盛璟润府售楼处电话:400-9857-760售楼处已认证✨✨✨
🔘盛璟润府营销中心电话:400-9857-760营销中心已认证✨✨✨
👉在售户型图丨项目介绍丨最新房源丨周边配套丨详细解答〢
👉◆开发商营销中心诚挚邀请,一键预约,尊享内部折扣!匠心独运的精品项目,恭候您的品鉴与选择。
✅盛璟润府售楼处电话/地址发布【已认证】
✅ 过来参观样板房烦请记得提前来电预约!
✅ 为您安排楼盘现场销售全程接待并讲解,给您更贴心的看房体验!
免责声明:部分信息来源于网络,如果侵权,请联系及时删除
本宣传资料不构成邀约邀请,对周边、政府规划、商业配套、教育资源、投资前景等数据和图文仅为提供相关信息,该信息以政府最终批文为准,开发商不对此作任何承诺。买卖双方的权利义务以双方签订的买卖合同约定及附件、实际交付为准,本公司保留对宣传资料修改的权利,敬请留意最新资料。联系号码:400-985-7760
财联社9月6日讯(记者 李洁)全面放宽限购、降低房贷利率,深圳以超预期力度为楼市注入强心剂。
9月5日深夜,深圳市住房和建设局与中国人民银行深圳市分行联合印发《关于进一步优化调整本市房地产政策措施的通知》。此次政策调整涵盖居民购房、企事业单位购房以及个人住房信贷等多方面重磅举措。
深圳由此成为北京、上海之后,又一个优化楼市政策的一线城市。分析人士指出,与京沪两地近期政策相比,深圳对限购松绑力度明显更大,这将对激活市场起到更明显的作用。
“当前正值传统‘金九银十’热销期,而且深圳本身购房需求和潜力较大,深圳出台政策势必会增强市场信心,带来市场交易的提振。预计新政后,深圳市场行情会进一步向好。”易居研究院研究总监严跃进告诉记者。
限购大幅松绑 放开企业购房
深圳楼市新政中最引人注目的,是对限购政策的大幅优化调整。
根据新政策,符合深圳市商品住房购买条件的居民家庭(包括本市户籍居民家庭、自购房之日前在本市连续缴纳社会保险或个人所得税满1年及以上的非本市户籍居民家庭),在罗湖区、宝安区(不含新安街道)、龙岗区、龙华区、坪山区、光明区范围内购买商品住房不限套数。
而无法提供连续缴纳社会保险或个人所得税满1年及以上证明的非本市户籍居民家庭,在上述区域内购买商品住房限购2套。在盐田区、大鹏新区购买商品住房,不再审核购房资格。
按最新办法,深圳政策调整后有1年社保的外来人口在核心区域仍限购1套,但非核心区域已不再限制购房套数。去年深圳仅放松了社保缴纳要求,购房套数仍然限制为1套,而本次政策在多数区域取消了套数限制。
值得关注的是,非户籍人口即便没有缴纳个税和社保1年证明,也可以在深圳近郊购买两套住房,远郊区则完全退出限购。
“传统的特区罗湖区现在也被视为近郊看待,深圳最后的限购区收缩至福田区、南山区和宝安区新安街道,限购范围大大缩小。”广东省城规院住房政策研究中心首席研究员李宇嘉表示。
本次深圳楼市新政另一个突破是,对企业购房限制的全面放宽。
深圳新政策规定,企事业单位可在深圳市范围内购买商品住房,用于解决员工住房等需求。其中,在福田区、南山区和宝安区新安街道范围内购买商品住房,需同时满足设立年限满1年、在本市累计缴纳税款金额达100万元人民币、员工人数10名及以上条件;在本市其他区域购买商品住房,不再审核购房资格。
在严跃进看来,该项措施对各个区域的购房市场都有积极作用,尤其是对于如龙华、龙岗、光明等企业数量多的区域,会激活更多购房需求。
对于深圳大幅度调整限购的原因,李宇嘉认为,这是基于当地楼市深度调整的现实需要:自2021年5月开始,深圳二手住房价格已经持续下跌44个月,整体下跌幅度较大。此外,从供地、开工、投资等指标来看,深圳的跌幅也大于京沪。
“今年上半年土地出让金前20城市中,没有深圳的身影,而京沪杭成都等城市排在前面。这对深圳补齐民生短板、推进外来人口本地化、助力战略性新兴产业发展,甚至城市抢人才、提升城市竞争力等方面,都会形成资金方面的制约。在投资情绪相对低迷的情况下,外围区域退出限购也在情理之中。”李宇嘉称。
降低购房成本 激活潜在需求
深圳此次楼市新政的另一项重要举措是,调整房贷利率政策。
政策明确,各银行业金融机构根据深圳市市场利率定价自律机制要求和本机构经营状况、客户风险状况等因素,在利率定价机制安排方面不再区分首套住房和二套住房,合理确定每笔商业性个人住房贷款的具体利率水平。
据严跃进测算,此前深圳首套房和二套房的利率定价公式分别为LPR-45BP和LPR-5BP。依据新政策,二套房贷利率降低40个基点。按照100万元贷款本金、30年期等额本息方式计算,房贷总还款成本将减少近8万元,月供额将减少220元。
李宇嘉指出,深圳在利率政策上借鉴了上海经验,但在公积金方面并未跟进京沪。原因在于,3月24日起实施的深圳公积金新政已将额度充分提高。
“现在深圳总价300万元以下二手房,交易占比近3成。”李宇嘉介绍,经过长达4年多的下跌,深圳很多区域房价相比高峰期大幅折价,叠加限贷政策松绑,购房门槛和成本大幅度降低,原来买不起房的人群现在可能就买得起了。
观察上一次深圳放松限购后的市场表现,新房市场的交易活跃度明显得到提振。参照北京、上海楼市新政后的市场表现,严跃进预计,“对于非核心区域市场而言,交易量环比增幅可能超40%,且至少有30%需求源于新增购房套数的客户。”
业内人士预计,深圳新政对外围区域的去化效果将较为明显,尤其可能吸引周边珠三角或广东其他城市甚至内地人群前来买房。
“新政策可能会对环深圳都市圈形成虹吸效应,这一点需要引起重视。”李宇嘉表示。而随着“金九银十”销售旺季的到来,深圳楼市有望告别前期低迷态势,迎来一波交易活跃期。
分析人士指出,三个一线城市相继调整购房政策,标志着房地产市场正进入新一轮政策优化周期,这将为全国“金九银十”行情带来积极预期。
声明:本文由入驻焦点开放平台的作者撰写,除焦点官方账号外,观点仅代表作者本人,不代表焦点立场。
