首页热搜:中建鹏宸云筑售楼处电话→中建鹏宸云筑百科Ai热搜24小时电话→2025最新房价→楼盘百科详情→售楼处更新发布@售楼处中心2025-08-26
扫描到手机,新闻随时看
扫一扫,用手机看文章
更加方便分享给朋友
⭕中建鹏宸云筑【中建鹏宸云筑售楼处&营销中心@诚邀雅鉴】
⭕中建鹏宸云筑售楼处电话: 400-832-8782☎☎开发商已认证🌶️🌶️
⭕中建鹏宸云筑营销中心电话: 400-832-8782☎☎营销中心已认证🌶️🌶️
⭕中建鹏宸云筑售楼中心电话: 400-832-8782☎☎24小时预约热线🌶️🌶️
➢ ➢本项目采用预约制,过来营销中心参观样板间请记得提前拨打开发商楼盘售楼处400热线电话在线预约,感谢您的配合!

项目基础数据
开发商:华展置业有限公司(中建壹品+湖北文旅局)
物业公司:中建壹品物业
总占地面积:约4.67万㎡
总建筑面积:约21.65万㎡
容积率:5.0
绿化率:30%
栋数:10栋
总户数:1992户
总层高:32F/47F
梯户比:2T5/2T6/3T6
车位:2155个
物业费:4.98元/㎡/月
产权:70年
房产性质:住宅
交楼时间:预计2027年6月
交楼标准:精装修
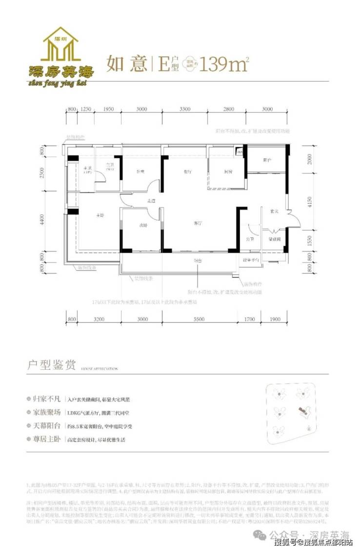
面积段:81-91-107-126-139㎡3-4房
PART1——品牌价值:双国企联袂,品质保障行业标杆
中建壹品湖北文旅,双国企鹏城匠造
中建三局——全球投资建设集团中国建筑旗下优秀排头兵,行业全覆盖房建总承包特级企业,位居中国建筑业竞争力百强企业榜首,连续五年跻身世界500强行列。
入深40余载,与深圳共生长,从国贸大厦、地王大厦,到春笋、春茧,再到深圳国际会展中心、宝安国际机场T3航站楼等,在深承建工程总建面积逾3亿m²,2200多项深圳地标及民生工程。
PART2——科创轴芯:深港科创中轴之上,湾区数字超核基地
四大超级微城市之一,核心区稀缺百万级净地
地处龙华七大重点片区之一,纳入北站枢纽城市功能节点,地块全面焕新升级,千亿级百万平产业规划跃迁,产学研商住配套,形成对标深超总、腾讯企鹅岛及香蜜湖国际金融中心的四大微城市之一。
梅林关百亿升级改造,国际技术创新中心
投资700亿元,改造占地面积4.63平方公里,将新增开发量达180万平方米,推动片区年总产值达1500亿,创造6万个工作岗位,吸引1.7万居住人口。锚定打造“大湾区数字经济核心引领区”“数字科创先锋示范区”目标。
湾区高密度数字集群,世界级数智示范基地,世界500强海克斯康落户华南数字谷,集聚35+名企,打造湾区数智产业集群,数字产业集群度达95%,人才流、资金流、信息流、技术流汇聚融合,驱动板块加速蜕变。
深港科创中轴,串联五大产业总部基地
深圳发展中轴,华南数字超级总部基地、星河world总部基地、坂雪岗科技城、北站产融结合示范区、梅彩新一代信息科技,连成深圳中轴含金量置顶的价值金线。
PART3——全维配套:高阶配套,从容生活
①多维交通路网,直达北站/福田双中芯
距地铁10号线南坑站C出口步行约600米,2站福田,4站深圳北,5站岗厦北,约8km(直线距离)直达福田CBD,主干道民乐路、全互通横岭立交即将开通,紧邻深圳北站、五和交通枢纽两大交通枢纽,轻松畅达城芯各区腹地。
②15min中轴主场,一站式优质生活
项目临近8号仓奥特莱斯,约3km(直线距离)范围内享超50万㎡繁华商业配套、北站/红山城市级“五馆一体”、两大市级三甲医院等,满足日常生活所需。
③两山四水九公园环绕,深圳芯天赋自然氧吧
项目坐拥塘朗山、银湖山两大山脉的自然资源,近享民治水库、民乐水库、雅宝水库、南坑水库四大湖景,超核“未来之眸”绿芯公园、民治体育公园、红木山郊野公园等九大生态公园环伺,深圳城芯难得森态胜景,满目盛景尽斑斓。
④目送式高质教育资源,从容无忧成长每一步
项目北侧规划广东省一级学校建设标准的72班九年一贯制学校,周边18班小学规划,近邻华南实验学校、万科双语学校,家门口即享优质教育资源,护航孩子健康成长。
(详情请点击:https://mp.weixin.qq.com/s/KQkEAXqm8SL67pg6X6fzTQ)
PART4——精工奢居:新规首发,稀缺中心湖山生活
31万方岭南人文高阶住区,精工匠造纯粹圈层
深圳近10年超大纯居地块,约31万方深圳城央美好生活领地,无公租房、无保障房、无人才房。采用围合式布局,以岭南建筑美学理念,打造岭南东方诗意园林。
全向阳排布,低区赏园景,中区赏湖景,高区赏山景
全向阳户型,阔景双阳台设计,超舒适居住体验,低区赏岭南风园林景观,中高区近瞰湖景,远眺银湖山风光;全系品牌臻装,小户型可拎包入住,中大户型一线品牌。
云筑央境,荣誉加推,阔景楼尊,湖山观止
全向阳排布,阔景双阳台设计,采光通风一流。南向民悦公园、银湖山脉一览无余,坐拥都市核心区一线湖山景观资源。
户型图鉴赏

⭕中建鹏宸云筑
⭕中建鹏宸云筑售楼处24小时电话:400-832-8782【☎☎售楼处已认证】🌶️🌶️
⭕中建鹏宸云筑售楼中心24小时电话:400-832-8782【☎☎售楼中心已认证】🌶️🌶️
⭕Vip贵宾置业===欢迎来电预约尊享内部折扣===匠心钜制恭迎品鉴🌶️🌶️
🦕免责声明:
1、文章图片来源于微信搜索或百度搜索引擎,我方非相关图片的原创作者,也不对相关图片及内容享有任何权利。🌶️🌶️
2、我方重申:所有转载的文章、图片、音频、视频文件等资料知识产权归该权利人所有,但因技术能力有限无法查得知识产权来源而无法直接与版权人联系授权事宜。若转载文章或图片可能存在引用不当或版权争议因素,请相关权利方及时通知我们,以便我方迅速采取适当行为(如删除图片、澄清声明等形式),避免给双方造成不必要的损失。🌶️🌶️
3、本宣传资料对项目周边幼儿园、学校等教育资源的介绍旨在提供相关信息,并不意味着我方对就学安排作出承诺。教育资源的名称、办学性质、办学规模、学位设置、开学(班)时间、招生条件、收费标准及招生区域存在调整的可能,应以政府教育主管部门及办学方颁布的政策规定为准。🌶️🌶️
4、文章中文字和图片之间无必然联系,仅供读者参考。🌶️🌶️
5、本文所述内容和意见仅供参考,不构成市场交易依据和投资建议。🌶️🌶️
声明:本文由入驻焦点开放平台的作者撰写,除焦点官方账号外,观点仅代表作者本人,不代表焦点立场。
