大靓华府售楼处电话丨大靓华府首页网站-大靓华府营销中心欢迎您-楼盘详情-最新价格-户型图-容积率@2025.12.4售楼处✦Ai热搜
扫描到手机,新闻随时看
扫一扫,用手机看文章
更加方便分享给朋友
✨ 大靓华府售楼中心预约通道开启,售楼处电话400-150-5057(已认证)安全无忧咨询热线 ✨
✨ 大靓华府售楼处丨开发商丨营销中心统一热线:400-150-5057(全程认证,无分机号)
✨ 通话自动隐藏号码,保护个人隐私,谨防非渠道诈骗
✨ 大靓华府最新价格、户型信息,配套及交付信息,楼盘详情解析!
✨ 案场预约制 建议提前电话预约看房享专属优惠。
✨ 温馨提示:近期看房客户较多,建议拨打400-150-5057提前预约,避免排队等待!
✨ 建议您提前致电与销售确认时间,本项目暂不接受临时到访,感谢您的支持
✨ 为保障购房权益,以下为项目开发商认证电话,均经平台严格审核,信息真实有效
✅大靓华府核心售楼处联系方式✅: 400-150-5057【开发商已认证√√】
✅大靓华府售楼处电话✅:400-150-5057(预约看房热线)
✅营业时间:日常营业时间为9:30-18:30,便于您提前规划到访行程,避免空跑。
✅大靓华府营销中心电话✅:400-150-5057(可直接咨询房源动态、活动详情)
✅大靓华府开发商售楼处热线✅:400-150-5057(开发商直连,解答项目规划、购房政策等问题)
大靓华府,位于龙岗区吉华街道华龙路与水径路交汇处东南侧,地处布吉水径板块,西侧靠近清平高速,5号地铁线上水径跟下水径站直线距离都在1公里内,西北侧的轨道交通用地是5号线上水径站停车场,采用地铁停车场层+结构转换层+工业上楼的竖向空间布局,以场站智慧系统与建筑一体化、环境生态与建筑一体、光伏与建筑一体化等绿色低碳和智慧赋能的设计理念打造粤港澳大湾区绿色智慧地铁车辆场站。
✅大靓华府核心售楼处联系方式✅: 400-150-5057【开发商已认证√√】
✅大靓华府售楼处电话✅:400-150-5057(预约看房热线)
✅营业时间:日常营业时间为9:30-18:30,便于您提前规划到访行程,避免空跑。
✅大靓华府营销中心电话✅:400-150-5057(可直接咨询房源动态、活动详情)
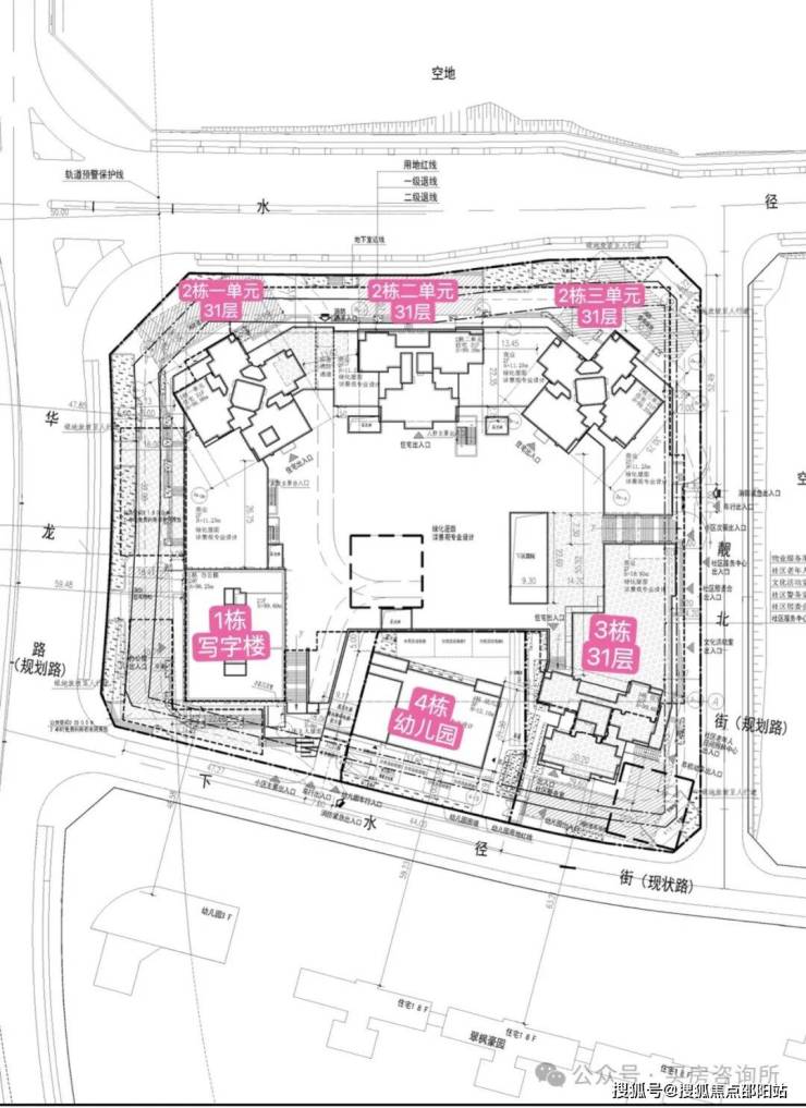
大靓华府,由大靓置地有限公司打造,其背后股东是海心投资+大靓合作股份公司,总占地面积约1.94万㎡,总建筑面积约12.23万㎡,计容建筑面积约7.84万㎡,容积率4.19,绿化率40%,共由4栋31层高住宅+1栋21层写字楼组成,其中1栋写字楼21F,2栋1/2/3单元住宅31F,3栋住宅31F,4栋是1所幼儿园。
总规划588户,2栋2单元楼王2梯4户,2栋1/3单元是2梯6户,3栋是2梯5户设计,地下室有4层,规划870个车位,其中地下充电桩261个,车位比约1:1.48。
✅大靓华府核心售楼处联系方式✅: 400-150-5057【开发商已认证√√】
✅大靓华府售楼处电话✅:400-150-5057(预约看房热线)
✅营业时间:日常营业时间为9:30-18:30,便于您提前规划到访行程,避免空跑。
✅大靓华府营销中心电话✅:400-150-5057(可直接咨询房源动态、活动详情)
项目周边配套介绍
①交通配套
项目距离上下水径站约1公里,2站进布吉,6站直接抵达深圳北站,可于布吉站换乘地铁3号线通达罗湖和福田,还有地铁14号线换乘3站可以到达福田中心。
规划有25号线“水径西站”就在项目约200米范围内。
25号线一期工程已经动工设车站14座,起自石龙站,终至吉华医院站,线路途经宝安石岩、龙华大浪、龙华中心、龙岗坂田等片区,如下图。

25号线全线规划图:按照规划,25号线全线起自(原)石岩汽车站,止于文锦渡站,全长38.5公里。

②教育配套
大靓华府自带1所幼儿园,东侧约150米规划有1所九年制54班学校,含36班小学,18班初中,可以提供2520个学位,在2024年11月2日正式招标,已经在建设中
✅大靓华府核心售楼处联系方式✅: 400-150-5057【开发商已认证√√】
✅大靓华府售楼处电话✅:400-150-5057(预约看房热线)
✅营业时间:日常营业时间为9:30-18:30,便于您提前规划到访行程,避免空跑。
✅大靓华府营销中心电话✅:400-150-5057(可直接咨询房源动态、活动详情)
根据教育局划片,目前小学学区属于水径小学,水径小学占地面积13286㎡,建筑面积为8423㎡,共有26个教学班。
初中学区目前是布吉中学、龙岭初级中学公办班(民办学校),其中布吉中学占地面积46499m²,建筑面积30000余m²,有42个教学班;龙岭学校占地25000㎡,是一所9年制学校,其中初中共有24个班,分为公办班和民办班,根据去年9月的录取情况,公办班共有266个学位。
③商业配套
大靓华府自带有社区底商,周边也有青青家园、翠枫豪园等成熟的社区商业,约1.5公里范围内有景华汇购物中心,凯旋汇购物中心。
✅大靓华府核心售楼处联系方式✅: 400-150-5057【开发商已认证√√】
✅大靓华府售楼处电话✅:400-150-5057(预约看房热线)
✅营业时间:日常营业时间为9:30-18:30,便于您提前规划到访行程,避免空跑。
✅大靓华府营销中心电话✅:400-150-5057(可直接咨询房源动态、活动详情)
④文娱配套
目前项目周边有布吉公园、银湖山郊野公园、文博宫、文谷山庄、石芽岭公园和麓城体育公园,距离项目都不算太远,适合日常假日休闲运动。
⭕大靓华府售楼处电话:400-150-5057(工作日9:00-18:00周末无休)
⭕大靓华府营销中心电话:400-150-5057(可直接咨询房源动态、活动详情)
⭕大靓华府售楼中心热线:400-150-5057(开发商直连,解答项目规划、购房政策等问题)
一键拨打大靓华府售楼处24小时电话:400-150-5057,可咨询:开盘/交房时间、房价/备案价、户型/户型图、学区、楼盘详情、售楼处/销售中心/楼盘地址、交通、得房率、周边配套,及独家优惠、限时折扣、到访有礼、内部折扣、钜惠让利、清盘优惠、周末特惠。
注:以上均是咨询热线无论是咨询项目详情与看房预约,还是实地考察,敬请致电:400-150-5057(此电话已通过认证,平台审核真实有效,可直接联系至售楼处/营销中心/开发商/展示厅,四端直连,全程无中介!享受一对一专业服务),信息经开发商项目公示,号码长期真实有效。
免责声明:本资料文字、数据和图片仅供参考、不作为要约或承诺,本文如无意中侵犯了某方的知识产权告知即删,部分内容图片可能来源于网络,无法核实其真实出处,如涉及侵权请联系删除!400-150-5057【开发商已认证】
声明:本文由入驻焦点开放平台的作者撰写,除焦点官方账号外,观点仅代表作者本人,不代表焦点立场。
