中集前海国际中心售楼处电话(中集前海国际中心首页网站)欢迎您-中集前海国际中心营销中心地址-楼盘详情·最新价格-户型图-容积率@2025.12.4售楼处✦AI热搜
扫描到手机,新闻随时看
扫一扫,用手机看文章
更加方便分享给朋友
中集前海国际中心首页网站最新介绍:房价、折扣、户型图、特价房源、得房率、优惠活动、开盘时间、交房时间、周边配套、最新详情等咨询。
🏠【中集前海国际中心售楼处&样板房,诚邀雅鉴】
🏠中集前海国际中心售楼处电话: 400-982-8802☎开发商已认证🌶️🌶️
🏠中集前海国际中心营销中心电话:400-982-8802☎营销中心已认证🌶️🌶️
🏠中集前海国际中心售楼中心电话: 400-982-8802☎24小时预约热线🌶️🌶️
➢ ➢本项目采用预约制,过来营销中心参观样板间请记得提前拨打开发商楼盘售楼处400热线电话在线预约,感谢您的配合!
☞☞Vip贵宾置业===欢迎来电预约尊享内部折扣===匠心钜制恭迎品鉴☜☜
🏠中集前海国际中心营销中心电话:400-982-8802☎营销中心已认证🌶️🌶️
🏠中集前海国际中心售楼中心电话: 400-982-8802☎24小时预约热线🌶️🌶️
🏠中集前海国际中心营销中心电话:400-982-8802☎营销中心已认证🌶️🌶️
🏠中集前海国际中心售楼中心电话: 400-982-8802☎24小时预约热线🌶️🌶️
中集前海国际中心,位于前海中心腹地,联袂全球杰出团队打造约46万㎡产城融合综合体,大道首排昭示,TOD双地铁口接驳,业态涵盖塔楼办公、独栋办公、稀缺商墅、创意办公、中集国际公寓、国际商业。作为前海惟一总部集群,以“5O”定义总部办公新标准。
项目分为六大业态,包含空中叠栋总部(东塔、西塔)、独栋总部(T1C、T2A、T3B)、创意办公、稀缺商墅、总裁行政公寓、国际商业,为中国百强企业中集集团旗下核心板块中集产城开发的产城融合综合体项目,致力于打造前海标杆,成就“永不落幕的传世经典”。
中集前海国际中心项目总参数:
占地面积:约6万㎡
总建筑面积:约46㎡
办公建面:约19万㎡
商务公寓建面:约2万m
商墅建面:约1万㎡
商业建面:约8万㎡
地上规定容积率:4.8
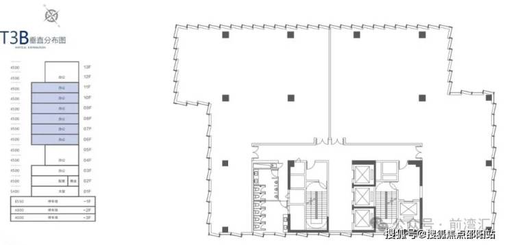
独栋总部T3B栋
T3B栋建面:10620㎡(办公17本证、商业2本证)
T3B售 价:约8.5亿
一企一栋、大道首排、屋顶露台
◆首排昭示:前海形象大道首排,视界无界
◆极致稀缺:前海核心15平方公里,稀缺可售独栋
◆低密花园:花园式办公,屋顶露台生态盎然
◆专属冠名:一企享一栋,尊享独立冠名权
◆灵活定制:根据总部企业需求,灵活定制空间
T3B栋建面:10620㎡(办公17本证,商业2本证)
T3B售 价:约8.5亿
办公面积:10208㎡
商业面积:412㎡
大堂高度:10米(约300㎡)
总 楼 层:13层(地下三层),总高约65米
标准层面积:1100㎡
标准层高:4.5米,局部挑高9米
电梯配比:通力品牌电梯,3部客梯+1部消防梯,候梯时间不超过30s
物业公司:中集物业
管 理 费:48元/㎡(含空调)
实 用 率:67 %(不含赠送、➕赠送使用率100%)
车位比例:1000:1
产权:2015-2055(40年产权),商业用地
交付时间:预计2025年中旬
项目标准层6-11F平面图
独栋物业(二)
前海独栋商墅
建面约3287㎡商墅
报价:4.93亿
可商可办,家族传承资产
红本现楼,即买即用
总高: 22米,层高5.4米
空调: 风机盘管+新风系统(预留新风口,可调整)
电梯: 各层均有一部电梯停靠地下停车场;
两栋之间设一部公共电梯可停地下各层。
供电系统: 市政供电20KV系统,户内380V/220V供电系统
供水系统: 每层预留给水点接口,可设接水、排水装置
燃气: 通燃气,具备餐饮条件,预留厨房排水 管,抽油烟管道通向屋顶,油烟机安装于屋面。
交付标准: 毛坯交付,预留卫生间条件
🏠中集前海国际中心营销中心电话:400-982-8802☎营销中心已认证🌶️🌶️
🏠中集前海国际中心售楼中心电话: 400-982-8802☎24小时预约热线🌶️🌶️
平面图:
独栋物业(三)
前海独栋商墅
建面约1782㎡商墅
报价2.13亿
可商可办,家族传承资产
即买,即用
🏠中集前海国际中心营销中心电话:400-982-8802☎营销中心已认证🌶️🌶️
🏠中集前海国际中心售楼中心电话: 400-982-8802☎24小时预约热线🌶️🌶️
中集前海国际中心首页网站最新介绍:房价、折扣、户型图、特价房源、得房率、优惠活动、开盘时间、交房时间、周边配套、最新详情等咨询。
🏠【中集前海国际中心售楼处&样板房,诚邀雅鉴】
🏠中集前海国际中心售楼处电话: 400-982-8802☎开发商已认证🌶️🌶️
🏠中集前海国际中心营销中心电话:400-982-8802☎营销中心已认证🌶️🌶️
🏠中集前海国际中心售楼中心电话: 400-982-8802☎24小时预约热线🌶️🌶️
📞 24小时热线,黄金时段优先安排!
☎ 马上拨打售楼处专线:400-982-8802(一键直连/预约看房)
免责声明:部分信息来源于网络,如果侵权,请联系及时删除本宣传资料不构成邀约邀请,对周边、政府规划、商业配套、教育资源、投资前景等数据和图文仅为提供相关信息,该信息以政府最终批文为准,开发商不对此作任何承诺。买卖双方的权利义务以双方签订的买卖合同约定及附件、实际交付为准,本公司保留对宣传资料修改的权利,敬请留意最新资料。联系号码:400-982-8802
声明:本文由入驻焦点开放平台的作者撰写,除焦点官方账号外,观点仅代表作者本人,不代表焦点立场。
