(卓能雅苑)售楼处丨(卓能雅苑)首页网站-价格-电话-地铁-2025规划图-最新消息-楼盘详情-户型图-预约@营销中心
扫描到手机,新闻随时看
扫一扫,用手机看文章
更加方便分享给朋友
卓能雅苑营销中心售楼处24小时电话:400-835-2501(中介勿扰)现场详细解答丨项目介绍丨户型图丨在售房源丨特价房丨学校丨交通位置丨样板房丨小区图片丨交房时间丨周边配套丨卓能雅苑丨中国深圳(罗湖-南山-宝安-龙华-龙岗-福田-盐田)
项目基本信息
【项目位置】龙华布龙路与油松路交界处(西北角)
【开发商】雄伟房地产开发(深圳)有限公司
【占地面积】51323.79㎡
【建筑面积】119831.78㎡
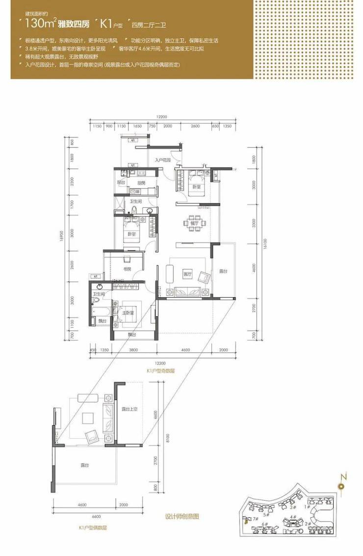
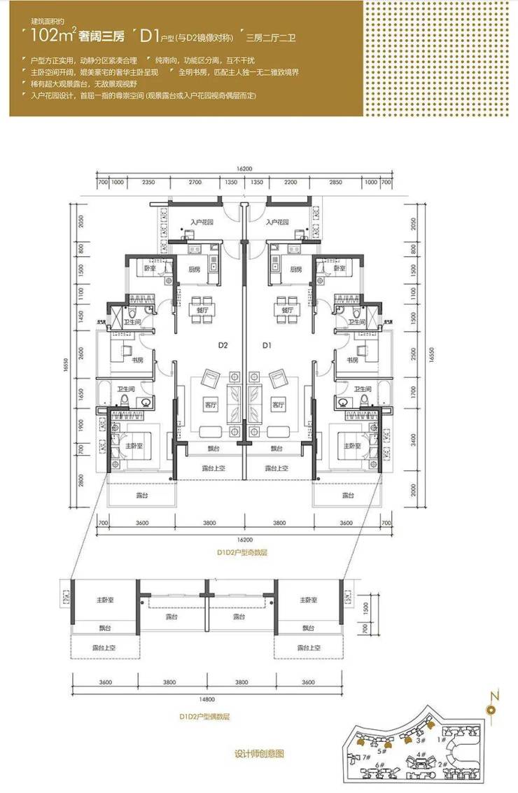
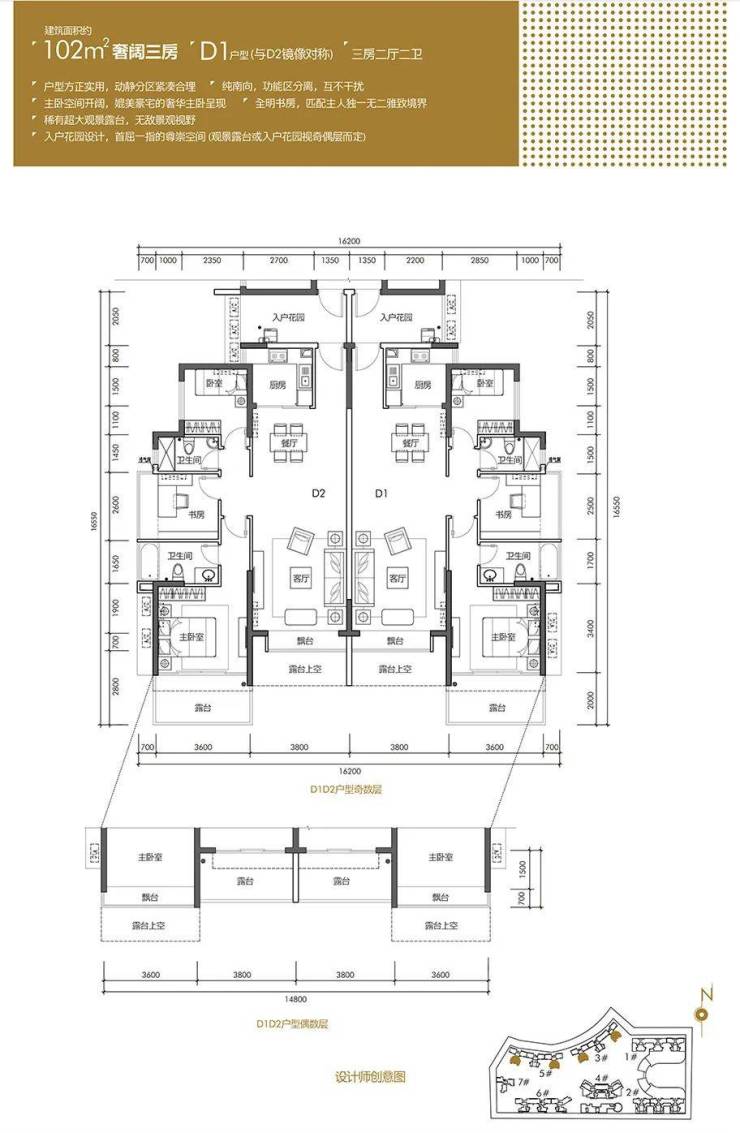
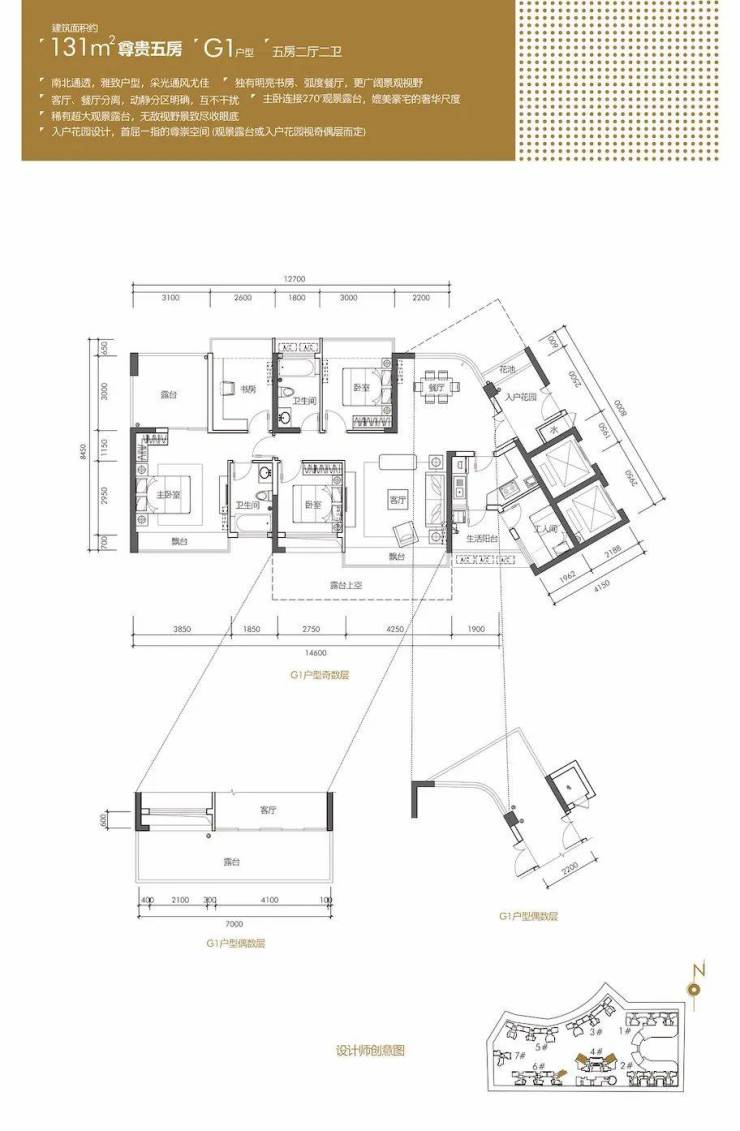
【产品信息】102-131m² 3~5房
【交付时间】已现房
【产权年限】70年
【园林面积】2.2万㎡(其中泳池1300㎡)
【户型使用率】83%
【总户数】1085
【待售房源】316
【总车位】1054
【梯户比】1~6栋两梯四户、7栋两梯三户
【物业费】3.5 元/平方米/月
【容积率】2.3
【绿化率】44%
开发商介绍
立足香港领驭亚太56年卓能集团深圳首发力作
卓能集团——香港联交所主板上市高端地产营运商,成立于1963年,迄今已有56年顶级豪宅运营资历。从香港、澳门、新加坡到马来西亚,卓能集团以卓能山庄、一号九龙山顶、赵苑等豪宅著作引领亚太高端地产。
卓能雅苑由卓能集团创始人、香港建筑师学会会员、国际知名建筑设计师——赵世曾博士亲手缔造。
区域价值
北站红山双芯加持,人居价值再升级
卓能雅苑雄踞湾区中轴中芯深圳北站总部基地中央生活区-民治街道,新晋深圳都市核心区,享深圳北站CBD和红山CLD双核多重利好辐射,是龙华的高品质住宅区域。经济实力快速发展、人居环境不断提升,已经逐步建设成为新型商业商务中心和现代化城区。
卓能雅苑营销中心售楼处24小时电话:400-835-2501(中介勿扰)现场详细解答丨项目介绍丨户型图丨在售房源丨特价房丨学校丨交通位置丨样板房丨小区图片丨交房时间丨周边配套丨卓能雅苑丨中国深圳(罗湖-南山-宝安-龙华-龙岗-福田-盐田)
交通配套
三维立体交通,五地铁环绕 半小时同城广深港
片区贯穿了南坪快速、布龙路、龙华大道、人民路、梅观高速等五纵五横城市主干道,15分钟抵福田,20分钟抵达罗湖、南山及深圳各大核心商圈。
500米范围内有33号线深大城际(建设中)、22号线(地铁五期规划中)民治北站;临近5号线民治站,轻松换乘4号线/6号线,地铁出行从容有度,1站换乘亚洲高铁枢纽深圳北站,1小时畅达粤港澳大湾区,一天可抵达17大城市。
商业配套
卓能雅苑纵享深圳北站和红山都会繁华。商圈、教育、文化等生活配套一应俱全。项目自带4800㎡商业,周边5.5万㎡佐阾香颂购物中心、7万㎡中航九方中心、45万㎡壹方天地等高端商圈林立。
教育配套
项目自带幼儿园,更有行知小学、民治中学、展华实验学校、第二十七高级中学(在建中)、民治学校(在建中)等学府教育资源兼备,濡染人文书香。

医疗配套
医疗:龙华人民医院(三甲级别)、恒生龙安医院、社区健康医疗保健中心、深圳市新华医院(三甲级别,建设中)、深圳市第二儿童医院(三甲级别,建设中)广州医科大学附属第一医院(规划中),为您和家人的健康保驾护航。
(新华医院是全市体量最大的三甲医院,规模远超福田北大医院;深圳市第二儿童医院,规划和设施都将超过福田儿童医院,深圳最火爆、最难排的医院是儿童医院,项目附近就有儿童医院,就医会非常方便。)
文体配套
3公里左右拥有深圳市美术馆新馆(建设中)、深圳市第二图书馆(建设中)、深圳市文化馆新馆(建设中)、简上体育综合体、龙华展览馆、龙华演艺馆、龙华书城、龙华文化艺术中心等人文公建配套,享都市资源配置。
项目环境
承袭低密豪宅血统,尊享2.3低密度优雅生活
卓能雅苑以2.3绝版低密墅级住区,打造深圳低密生活样本。项目一共只有7栋12-18 层住宅组成,百米超阔楼间距,无敌景观视野。板式结构建筑,通风采光极致,超大景观阳台、户户朝南设计,保障健康居住感受。
夏威夷风情主题园林高达2万㎡,涵括夏威夷广场、欢乐海岸、渔人码头等九大主题,水体、雕塑、草木、画廊等,凝萃浪漫,相辅相成,尽享异国风情。
景观区设有1300㎡超大游泳池,满足游泳健身所需。商业会所拥有商务洽谈、健身、儿童娱乐等功能,满足高端商务休闲所需。业主免费使用篮球场、羽毛球场等。
现楼发售无需等待,所见即所得价值均已兑现
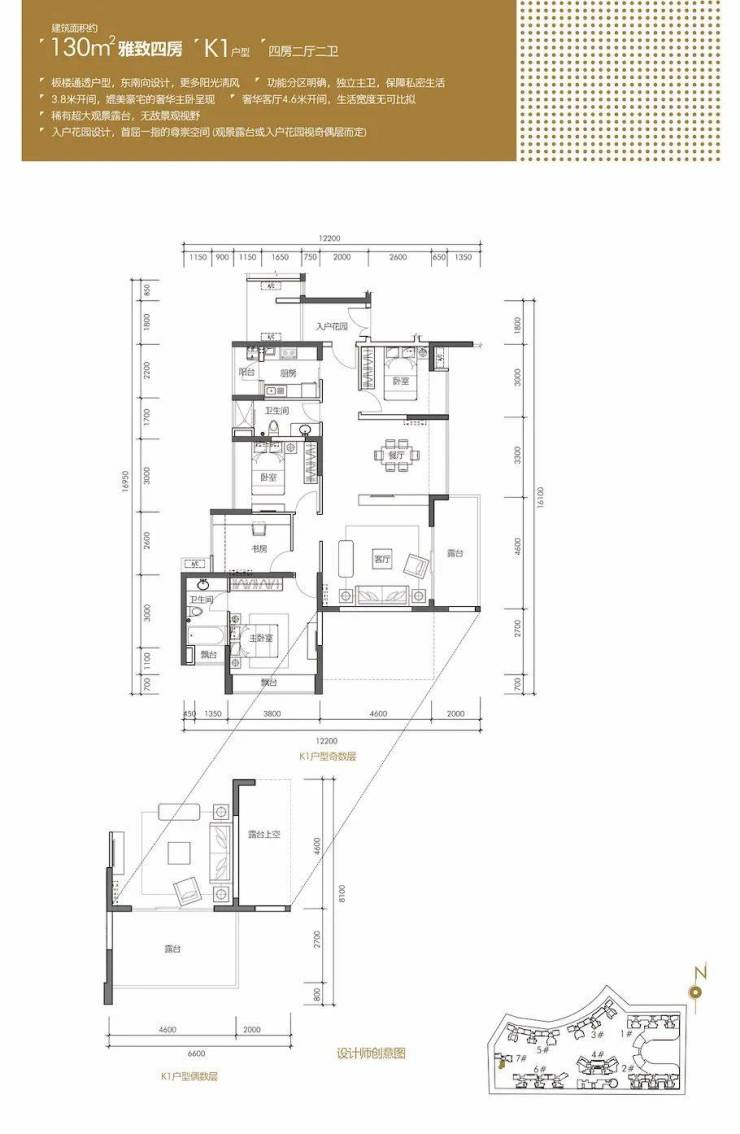
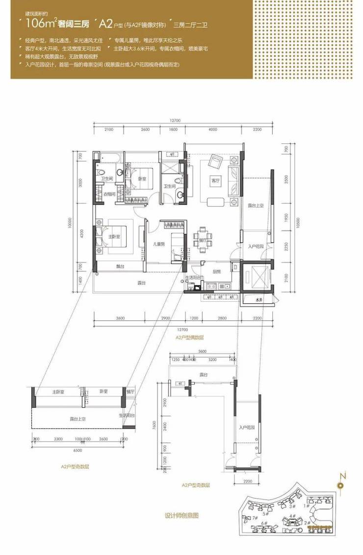
户型鉴赏
卓能雅苑营销中心售楼处24小时电话:400-835-2501(中介勿扰)现场详细解答丨项目介绍丨户型图丨在售房源丨特价房丨学校丨交通位置丨样板房丨小区图片丨交房时间丨周边配套丨卓能雅苑丨中国深圳(罗湖-南山-宝安-龙华-龙岗-福田-盐田)
“好房子”要怎么建?
从今年期间的讨论到5月起新规范正式落地实施,无论是各地政府还是房地产企业,都把建设“好房子”当成未来房地产项目的销售“秘笈”,就连一些已经开盘的项目,也紧急按下暂停键,重新规划设计,赶上“好房子”的第一班车。
与此同时,“好房子”建设的风潮也吹进了老旧房子的市场。5月20日,国新办举行新闻发布会,介绍《关于持续推进城市更新行动的意见》有关情况,部署推进好房子、好小区、好社区、好城区“四好”建设,同时加强既有建筑改造利用,努力把老房子、旧房子也改造成好房子。
但究竟什么才是“好房子”?“好房子”应该怎么建?它不仅影响着购房者的“下单”动力,也左右着未来住房项目的成本和利润。
界面新闻通过走访了解到,当前市场“好房子”的标准涵盖层高、电梯、隔音、智能化、绿色化等多个维度,新规范对此有明确标示。但从当下这一过渡时期来看,虽然越来越多的品质优、设计新的住宅项目涌现,但各个项目在“好房子”上下的功夫差异较大。
层高是《住宅项目规范》最受关注的一个维度,也是“好房子”的一个显性特点。《住宅项目规范》规定,新建住宅建筑层高不得低于3米,卧室和起居室的净高不得低于2.6米,局部净高不得低于2.2米,且其面积需控制在室内的三分之一以下。而在此之前,按照2012年版的《住宅设计规范》规定,住宅层高宜为2.8米。此次“不低于3米”的规定将整体层高提升了0.2米。
界面新闻了解到,今年很多开盘的项目,已经执行了新的层高要求,并随之对室内设计进行了调整。包括增加了中央空调、地暖、更具设计感的吊顶等占据层高的室内设备,而以往因为层高在2.9米左右,地暖等设备并不是标配。
此外,新规范还提高了墙体和楼板隔声性能。将卧室、起居室楼板的撞击声隔声性能指标“不应大于75分贝”提升为“不应大于65分贝”。还提高了建筑外窗的隔声性能,较现行标准提升了5分贝。
位于酒仙桥的中海·萬吉玖序十分强调这一建设标准。据该项目相关工作人员介绍,中海·萬吉玖序采用某知名品牌的超静音管道以及专业的卡扣件,极大降低管道中水流噪音和回声。另外在管道上还包封了隔音棉,同样能降低水流噪音。
门窗也是阻隔室内噪音的关键。中海·萬吉玖序方面介绍,该项目的窗户采用三玻两腔,在三层玻璃中间还填充了氩气。“当噪音来临的时候,我们的外窗静音效果大于35分贝。”上述工作人员说。而入户门的门角填充了膨胀珍珠岩,既可以隔声也可以隔热。此外,无论是外墙还是室内隔墙,都采用了隔音效果更好的材料,不仅隔绝外部噪音,也隔绝房间与房间之间的噪音。
从上述介绍内容可以看到,房地产企业对产品细节和“好房子”建设标准的重视程度越来越高,不仅是上述这一高端住宅项目如此,其他住宅项目也在结合自身优势匹配“好房子”的特点,并将其更系统、更详细地传达给购房者。
新规范重构产业链
如果说层高、隔音等要求更高的建设标准是住宅产品的显性因素,很容易成为购房者首先关注的点,那么智能化则是“好房子”的隐形因素,在未来更加科技化的社会中,智能化可以带来更深层更完善的居住体验,而这种更深层次的建造变化会带来产业链的重新搭建。
同样以中海·萬吉玖序为例,该项目在室内配置了由中海科技研发的看板系统——小海同学,可以记录家中所有设备的使用说明书,即便多年之后,也可以找到维修、使用的相关信息。“它是全屋的智能中枢,既可以兼容房屋交付时所配置的各种设备,也可以兼容未来改装时新配置的设备,而且未来还可以不断升级。”中海·萬吉玖序的工作人员对此表示。
界面新闻走访其他项目时发现,虽然很多项目都提供智能中枢的设备,但其智能化的程度不同,通州一项目的智能中枢无法兼容后续添置的新设备,在监控、掌握全屋设备使用说明等功能上也不太一样。
另外,针对老人和小孩,也有不少住宅项目装设了相应的监控系统。其中中海·萬吉玖序配置了毫米波雷达监测系统,如果老人、小孩跌倒或者出现异常体位,该系统就可以及时报警,而且相关信息还会通过APP直接传达给家人。
一位近期在看房的购房者表示,家中老人年纪大,这种实时监控能够很好地解决未来可能遇到的意外。但在看到配备了检测系统的住宅项目之前,他们没想到原来室内的设备可以这样便捷。
房地产企业也看到这些新设计即将带来可观的购房转化率。上述业内人士表示,诸如检测设备、全屋系统检修、智能门锁、燃气监控等系统,未来将会成为趋势,不同配置的住宅产品,其搭配的智能系统也会有所差异,这就拉开了不同住宅之间的差距,也让新房与二手房之间的差距拉大,在一定程度上减少同质化竞争,拉动二手房买家转向新房市场。
除了硬件的调整,社区的软件调整也需要紧跟市场需求,比如社区运营要更加创新,但这一点很容易被行业忽视。
在天津万科副总经理胡宸恺看来,以前房地产建造一个住宅项目,其逻辑是开发和建造的逻辑,物业管理也相对粗放,但是现在要转移到运营的逻辑上,要对一个社区进行经营和运营。
“以前住宅项目是单核生长,主要看周边配套大体上是否便利,如今要更多地考虑小区门口的乐居商业,比如咖啡馆、花店、便利店、面包店等,甚至是用户不用出地库就可以直接和这些商业有交集,而且这些商店还会不定时组织针对社区居民的活动。”胡宸恺说。
从规模扩张、简单复制产品到围绕购房者需求而不断完善、不断提高建设标准,房地产企业正在借助“好房子”政策寻找更适配的商业模式和建造模式。而在这些改变背后,新的产业链也正在形成。谁能最快打通这条产业链,谁才有可能在“好房子”建设中取得优势。
但此前在较大的成本压力下,智慧住宅打造的动力略显不足,未来要做智慧住宅,开发商也需要重新搭建供应链。“像华为、海尔等企业的市场灵敏度非常高,在智能化方面已有很强的技术基础,很容易与开发企业形成合力。”刘冰洋相信,如果智慧住宅的产品打造符合政策导向和市场需求,这些智慧化产品的链条会很快走到一起,这将成为房地产行业的机遇,而不是挑战。
另一方面,这些“好房子”的推出,也会给后续的住宅项目提供参考模版。上述业内人士表示,虽然当前一些豪宅项目并不是代表整个市场,“好房子”也不代表价格贵,但这些豪宅项目采用的好的设计和设备可以成为其他不同价位住宅项目的标杆。
据界面新闻了解,早在去年,中建集团就把建设好房子的模版搬上了行业展会,也获得了不少好评,在这个基础上,中建集团把“好房子”的技术全方位落地,才有了中海·萬吉玖序等33个“好房子”项目(第一批试点)。
增加的成本谁来买单?
“好房子”的政策齿轮开始转动,房地产企业和购房者都乐于见到“好房子”带来的市场活力,但建造标准的提高,也将带来成本的增加。
业内人士王先生表示,目前很多新房产品,尤其是改善类的基本都满足新规,现在主要是从文件上明确了,“从市场影响来看,更多的可能和建造成本有关,比如2.8米和3米虽然看起来就差0.2米,对楼层高的高层建筑来说,可能会少一层房子,少卖一层,利润还是有一定影响的。”
华润置地北京分公司也告诉界面新闻,建设“好房子”,要考虑到建筑成本(如梁柱、楼板、维护结构等)的增加,同时应系统考虑消防等一系列规范适配度满足好房子标准要求,对企业成本管理提出更高要求。
广东省住房政策研究中心首席研究员李宇嘉对此表示,未来“好房子”建设标准愈发完善,成本大概率还是由房地产开发商自己承担,这对他们来说是一个挑战,政策需要关注到这一点,可以在土地出让、营商环境、金融等方面一定支持,比如通过下调地价让开发商有更多空间开发好的产品,把利好释放给购房者。
从当前的情况看,政策能提供多大程度的支持仍是未知数,房地产企业更需要从自身降本增效,形成建设“好房子”的系统化解决方案便是可行的途径。
据界面新闻了解,中海的“好房子”核心模型从客户角度出发,形成了十六大科技体系,包括全屋体验系统、主动调节系统、数字智居系统、房屋耐久系统、能源运维系统等,可以系统性解决居民的切身通点。在这个系统里,既有中海自己的living智选体系,同时还中与诸多企业形成了合作关系,包括海尔、 科勒、老板电器(20.030, -0.09, -0.45%)、支付宝等等。
“中建集团的优势是其全产业链加上集成化,他们有自己的供应链公司、科技公司、多个设计院,加上工程局可以覆盖装饰装修,已经有了适配‘好房子’的产业链,因此即便建设标准提高了,也未必会带来成本的明显提升。”上述业内人士分析称。
一位房地产从业者也表示,在预判客户居住需要的同时,房地产企业要用一个全新的建造体系和供应链去建造新产品,只要把这个过程中的产品采购体系调整好,降本增效就会实现。
“我们必然会经历一个时代,就是用更低的成本和更新的技术做出更好的体验,这是房地产行业始终要回答的一个问题。”胡宸恺说。卓能雅苑营销中心售楼处24小时电话:400-835-2501(中介勿扰)现场详细解答丨项目介绍丨户型图丨在售房源丨特价房丨学校丨交通位置丨样板房丨小区图片丨交房时间丨周边配套丨卓能雅苑丨中国深圳(罗湖-南山-宝安-龙华-龙岗-福田-盐田)


声明:本文由入驻焦点开放平台的作者撰写,除焦点官方账号外,观点仅代表作者本人,不代表焦点立场。
