华侨城新玺名苑官方售楼处电话(华侨城新玺首页网站)欢迎您-华侨城新玺官方营销中心地址-楼盘详情·最新价格-户型图-容积率@2026.1.18售楼处✦AI热搜
扫描到手机,新闻随时看
扫一扫,用手机看文章
更加方便分享给朋友
—华侨城新玺名官方品鉴热线 —
⛅☀︎华侨城新玺官方售楼处电话:400-119-1130☎☎☀︎
⭐彡提-前-来-电-预-约-登-记—售楼处1v1销售专业讲解〢一对一热情服务〢
⭐彡华侨城新玺名苑温馨提示:网上售楼中心〢欢迎来电咨询〢预约可享内部优惠〢匠心钜制恭迎品鉴〢
📞华侨城新玺名苑售楼处热线|⏰ 随时连线生活提案师:400-119-1130✨ 即刻对话专属顾问:400-119-1130
🚗 贴心配套:上门接送服务|全天候咨询通道|🌿售楼处电话|📞 400-119-1130(24h 在线)
🏡 专属礼遇:✔ 家庭场景模拟(亲子 / 社交 / 办公空间预设)|✔ 生活提案报告(含周边教育 / 商业 / 生态配套解析)
📱【生活场景实验室】📞 华侨城新玺名苑即刻拨通:400-119-1130|▶ 户型需求诊断(1v1 需求
【华侨城新玺】

华侨城新玺位于深圳市南山区蛇口街道南端,地处前海蛇口自贸区、深圳湾超级总部基地、太子湾邮轮母港三大核心板块的交汇处。它紧邻深圳湾,拥有非常优质的海景资源,但严格来说,它属于蛇口片区,是深圳湾沿岸的重要项目之一。
深圳湾畔,三面环海,270°无遮挡海景,华侨城新玺以其绝版地段和顶级配置重新定义了海湾奢居生活。
⛅☀︎华侨城新玺官方售楼处电话:400-119-1130☎☎☀︎
华侨城新玺位于深圳市南山区蛇口街道南端,是华侨城集团开发的"海上华侨城"明星开端之作。项目地处南山蛇口片区湾厦路1号,三面环海,既是陆地的终点,也是海洋的起点。
作为深圳湾滨海休闲带的重要节点和门户性地标,项目总占地面积约2.5万㎡,建筑面积约28.9万㎡,包含办公、商业、酒店、商务公寓等多种业态,还配有一个1800㎡的海洋博物馆。⛅☀︎华侨城新玺官方售楼处电话:400-119-1130☎☎☀︎
项目基础信息
⛅☀︎华侨城新玺官方售楼处电话:400-119-1130☎☎☀︎
商业配套
项目超5万㎡国际港湾峡谷中庭式商业,由华润运营。商业部分分布在地下1-4层,规划了下沉式广场、精致生态的融合式商业空间、小型快闪店的公共商业空间,以及服务于公寓及酒店客户的私密商业空间。
文化馆 国际美术展馆深圳分馆/中国改革开放蛇口博物馆
周边5-15分钟之内有海上世界、太子湾K11 ECOAST(中国一线城市首个临海K11,也是内地17家K11中面积最大的旗舰店)、宝能All City、海岸城、深圳湾万象城等商业配套。
⛅☀︎华侨城新玺官方售楼处电话:400-119-1130☎☎☀︎
教育医疗
教育资源:周边有半岛第二幼儿园、南海玫瑰为明幼儿园、双玺幼儿园、蛇口幼儿园、半岛第三幼儿园等。按南山区现行学区划分规则⛅☀︎华侨城新玺官方售楼处电话:400-119-1130☎☎☀︎
六大国际学校:科爱赛国际学校、深圳深美国际学校
深圳韩国国际学校、深圳日本人学校
深圳蛇口国际学校(太子湾国际学校
深圳贝赛思国际学校
顶尖教育资源聚集:深圳湾学校、南外滨海分校
太子湾小学、育才二中
育才三中、育才二小、育才四小等
大概率对口南山外国语学校(集团)滨海小学及滨海学校初中部,步行距离约1公里。
医疗资源:2公里范围内有南山区妇幼保健院(二甲妇幼保健专科医院)
⛅☀︎华侨城新玺官方售楼处电话:400-119-1130☎☎☀︎
蛇口人民医院(二甲综合性医院)、南山区人民医院(三甲综合性医院)等医疗机构。
休闲设施
项目配备了一个约766㎡的悬空无边际海景泳池,全部为玻璃打造。还规划有屋顶花园、健身房和SPA等配套设施。
周边有15公里滨海长廊、蛇口山公园、大小南山公园、四海公园以及深圳湾公园等多个公园环绕。未来还将与蛇口广场、深圳湾公园用空中连廊相连接。
肆 | 区域发展前景
华侨城新玺处于前海蛇口自贸区核心地带,是广东省三大自贸区之一。这一区域是前海、蛇口、深圳湾三大千亿级经济中心叠加发展区域,发展潜力巨大。⛅☀︎华侨城新玺官方售楼处电话:400-119-1130☎☎☀︎
深圳“十四五”规划中明确将该区域作为全球海洋中心城市核心区,打造蛇口国际海洋城。政府规划升级改造渔人码头,将其功能由单一的生产交易上升为集渔港功能、滨海体验、旅游观光为一体的都市生活休闲渔港。
⛅☀︎华侨城新玺官方售楼处电话:400-119-1130☎☎☀︎
⛅☀︎华侨城新玺官方售楼处电话:400-119-1130☎☎☀︎
交通方面,望海路下沉快速通道正在建设中,未来通车后将大大提升区域交通便利性。地铁13号线也在建设中。
项目毗邻蛇口国际邮轮母港,这是华南地区唯一的集“海、路、空、铁”于一体的现代化国际邮轮母港,可快速连接深圳国际机场、香港国际机场等重要交通枢纽。⛅☀︎华侨城新玺官方售楼处电话:400-119-1130☎☎☀︎
华侨城新玺不仅是一个住宅项目,更是深圳湾海岸线上的标志性建筑群。项目三面环海,拥有270°无遮挡海景视野,户户南北通透纯板式结构,配以3.6米非凡层高和豪华装修标准,重新定义了海湾奢居生活。
壹 | 户型详细解读
公寓户型
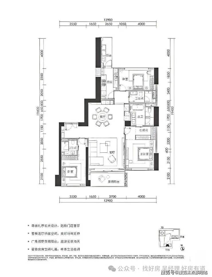
★230㎡三房两厅三卫:主要分布在1栋一、二单元6-32层,为02、03户型。采用双龙抱珠户型设计,户型方正实用。双套房朝南,可赏南向一线海景,配备广角视野景观阳台。⛅☀︎华侨城新玺官方售楼处电话:400-119-1130☎☎☀︎
★
⛅☀︎华侨城新玺官方售楼处电话:400-119-1130☎☎☀︎
280㎡三房两厅四卫:位于1栋三、四单元24-32层,为05、08户型。拥有超8米超宽幕开间,厅出阳台可直面海景。采用三套房设计,主卧配备L形全景落地窗,占据270°最佳观海位。
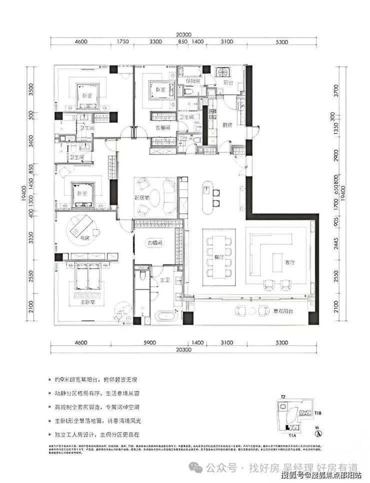
★350㎡四房两厅四卫:在1栋一、二单元6-32层有分布,为01、04户型。可享受南、西、北或南、东、北三面景观视野,能观看深圳湾海景、内海景和城市景观。户型有超9米超宽幕开间,三套房设计。
⛅☀︎华侨城新玺官方售楼处电话:400-119-1130☎☎☀︎
★468㎡五房三厅六卫:位于1栋一、二单元高区33-38层,一层一户,仅6席。五房四套房设计,主卧L形全景落地窗,270°最佳观海位,南向超大三厅一体,动静分区布局有序。
★500-700㎡超大户型:700㎡户型位于1栋一、二单元高区33-38层,由01+02户型组成。户型宽敞奢华,可尽享海景与城市景观,为高端客户提供极致居住体验。
⛅☀︎华侨城新玺官方售楼处电话:400-119-1130☎☎☀︎
商办户型
商办产品面积从298到614平米不等,分为中区和高区:
中区户型:
· 05/04户型:298-314平米
· 01户型:305-371平米
· 02户型:308-314平米
· 04/03户型:323-381平米
· 06/05户型:362-372平米
高区户型:
⛅☀︎华侨城新玺官方售楼处电话:400-119-1130☎☎☀︎
请立即拨打华侨城新玺名苑营销中心电话【400-119-1130】白皮书读者专属热线,获取您安全🌆本文于2026年1月】
华侨城新玺名苑售楼处电话:400-119-1130
【华侨城新玺名苑售楼处预约热线】(一对一热情服务)
看房请务必致电与销售确认时间,仅预约客户可享受开发商内部优惠,专属新房预约奖!
华侨城新玺名苑售楼处电话:400-119-1130【售楼中心热线】 华侨城新玺名苑营销中心热线400-119-1130 华侨城新玺名苑售楼处地址400-119-1130,楼盘项目全面介绍,本电话为开发商提供线上预约售楼电话,楼盘项目全面介绍(包含楼盘简介,均价,房价,现房,期房,别墅,叠墅,大平层,价格,楼盘地址,户型图,交通规划,备案价,备案名,项目配套,样板间,开盘时间,认筹时间,楼盘详情,售楼处电话,最新消息,最新详情,周边配套,一房一价,最新进展等详情咨询)楼盘详情丨价格丨更多优惠丨机不可失丨欢迎致电丨诚邀品鉴!售楼处位置丨特价房丨工抵房丨剩余房源丨户型图丨最新消息丨免责声明:将文章内容综合来源于网络、只作分享,版权归原作者所有!!如有侵权,请联系我们,我们第一时间处理如有问题欢迎来电咨询,专业一对一热情服务,让您用专业眼光去买房。如果您想了解更多楼盘详情,欢迎提前预约拨打 华侨城新玺名苑售楼处电话400-119-1130
发布于:广东省
平台声明
声明:本文由入驻焦点开放平台的作者撰写,除焦点官方账号外,观点仅代表作者本人,不代表焦点立场。
