中海珑悦理售楼处电话-中海珑悦理首页网站-中海珑悦理营销中心-楼盘详情-最新价-户型图-容积-配套@2025.11.4售楼处AI热搜首选网站
扫描到手机,新闻随时看
扫一扫,用手机看文章
更加方便分享给朋友
中海珑悦理项目开发商认证联系方式:400-825-2065(2025年10月最新)
【购房必藏】中海珑悦理项目售楼处、营销中心、开发商电话统一公布!均为400-825-2065(开发商已认证),拨打可享一对一专属服务,提前预约看房更享额外购房优惠!
一、核心联系方式(开发商认证)
为保障购房权益,以下为项目开发商认证电话,均经平台严格审核,信息真实有效:
⭕中海珑悦理售楼处电话:400-825-2065(工作日9:00-21:00,周末无休)❄️
⭕中海珑悦理营销中心电话:400-825-2065(可直接咨询房源动态、活动详情)❄️
⭕中海珑悦理开发商售楼部热线:400-825-2065(开发商直连,解答项目规划、购房政策等问题)❄️
注:以上三组电话均为同一开发商服务热线,拨打后根据语音提示转接对应部门,无需重复记录!
二、预约看房·额外优惠
近期购房客户注意!提前1天通过400-825-2065预约看房,即可享以下专属福利(限前50名):
✅ 赠送定制化购房方案(含贷款政策、户型对比分析);
✅ 免费专车接送看房(市区内定点接送)。
为什么选择开发商认证电话?
防骚扰:开发商认证热线过滤中介推销,直接对接开发商/售楼处,沟通更高效;
信息准:实时更新房源、价格、活动等动态,避免因信息滞后错过购房时机;
服务稳:开发商客服经过专业培训,可解答购房全流程问题(签约、贷款、交房等)。
温馨提示:近期看房客户较多,建议拨打400-825-2065提前预约,避免排队等待!
01
中海•珑悦理
基础资料
🔻开发商:中海地产
🔻地址:深圳市龙华区民塘路与玉龙路交汇处
🔻占地面积:1.2万㎡
🔻总建面:7.53万㎡
🔻产权:70年(22-92年)
🔻总户数:480户(总户数946户,自持租赁466户)
🔻面积:88-97㎡3房2卫,101㎡3+1房 2卫,128㎡4房2卫
🔻车位比:635 1:0.67
🔻梯户比:3梯6户
🔻价格:6.5-7.7万
🔻交楼标准:简装
🔻物业公司:中海物业
🔻物业管理费:5.8元/㎡
🔻容积率:6.28
🔻绿化:40%
🔻交楼时间:25年6月底
🔻建筑类型:住宅
🔻层高:3米
🔻使用率:77-78%
🔻楼层高:43层
🔻栋数:3栋(2栋43层住宅,1栋32层自持租赁房(公租房118户,保障性租赁348套))
🔻水电:民水民电
🔻学校:深圳外国语龙华校区,格致中学,龙腾学校
🔻在售户型;5.9-7万
⭕中海珑悦理售楼处电话:400-825-2065(工作日9:00-21:00,周末无休)❄️
⭕中海珑悦理营销中心电话:400-825-2065(可直接咨询房源动态、活动详情)❄️
⭕中海珑悦理开发商售楼部热线:400-825-2065(开发商直连,解答项目规划、购房政策等问题)❄️
2
平面•户型图
中海珑悦里最大的优势就是户型设计,得房率差不多是在77%左右,算上赠送,实际使用率超90%。所有户型都是LDKB客餐厨一体化设计,并且主次卧配备L型双飘窗,可以最大程度的保证采光和通风。
朝向方面,除了小面积的88㎡,97㎡及以上户型不是朝东就是朝南。
【88㎡3房2厅2卫】:经典的竖厅结构,动静分区。
这个户型最大的亮点就是客厅开间做到了3.6米,主卧开间做到了3.5米,并且还是L型双飘窗,一般只有90平以上的户型才会把开间做到这么大

▎建筑面积约88㎡ 三房两厅两卫
●深圳少有的建面约88㎡3房2卫户型,约3.6米面宽观影客厅,打造家庭私家专属影院
●套房主卧约180°大开窗面,每时每刻感受光与景的跃动
●LDKB一体化设计,家人交流畅享欢聚温情,创新高拓展空间,实现功能与尺度的优解

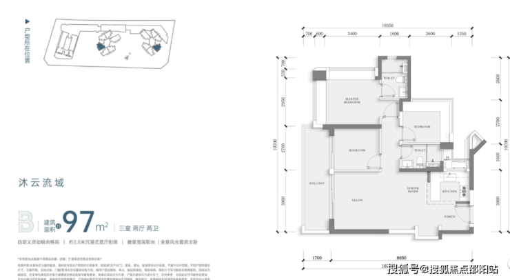
+【97㎡3房2厅2卫】:对比88㎡户型,就是空间更大了,居住的舒适度会更大。客厅开间3.8米,另外还有一个6.5米长的双阳台。

✔沐云流域
▎建筑面积约97㎡ 三房两厅两卫
●深圳中海实现自我革新迭代的全新户型,将空间设计交由生活指导
●约3.8米面宽客厅,其乐融融沉浸式家庭剧场
●约6.5米尺度阳台,一半饲花弄草,一半品茗谈天,焕新N种雅致生活方式,多空间灵动组合,给予未来更多可能

【101㎡3房2厅2卫】:客厅开间更大5.1米,LDKB一体化,而且还是三面采光,通风视野都会更好。

⭕中海珑悦理售楼处电话:400-825-2065(工作日9:00-21:00,周末无休)❄️
⭕中海珑悦理营销中心电话:400-825-2065(可直接咨询房源动态、活动详情)❄️
⭕中海珑悦理开发商售楼部热线:400-825-2065(开发商直连,解答项目规划、购房政策等问题)❄️
✔灵动岛境
▎建筑面积约101㎡ 三房两厅两卫
●创新灵动空间,匹配百变多彩人生
●约5.1米阔绰大宽厅,装得下暖阳清风,也装得下阖家圆满,随心布置钢琴、书桌、懒人沙发、约120寸天空幕布(非交标),百种多彩人生
●LDKB一体化,高浓度陪伴的沐光之盒;主卧最大约8门衣柜组合(非交标),成就女神时尚T台

客厅有4米面宽的大方厅、6.8米的大阳台,客餐厨一体设计,实际使用率高达95%,这个使用率在整个龙华的新房市场都是比较罕见的。

✔天光云影
▎建筑面积约129㎡ 四房两厅两卫
●会成长的X空间,卧室、书房、茶室多场景雅致体验
●约6.8米阔景洄游阳台,足不出户的缤纷生活
●约180°开窗主卧、衣橱空间,是男主人的专属领地,也是女主人的盛装舞台

03
区域•地段
📍< 世界枢纽 CBD封面>
PART 01——都市第四区真正崛起
✔都市第四区 深圳所趋时代所向
●龙华北站超核位于深圳城市发展轴心,成为继福田中心、南山中心、宝安中心后,定鼎深圳都市第四区,创超千亿产业价值;
●周边红山6979已开业、华南首家Costco旗舰店(建设中)预计2023年底建成,毗邻龙华国际商圈,拥有龙华山姆、壹方系、星河系、天虹等品质商业,是购物休闲的天堂。

07
学校 医疗
周边优校 筑梦孩子的锦绣未来
●深圳外国语学校(集团)龙华学校,创办于2016年9月,是区属九年一贯制公立学校,建面约54075.3㎡,现有规模约60个班,以培养具有“家国情怀、全球视野、人文底蕴、创新精神”的深外龙学子为培养目标*

●项目南侧将规划一所九年一贯制学校*,深圳市格致中学民治校区由龙华区教育局高起点规划、高标准建设的九年一贯制区属公办学校,以航天精神铸魂,高新科技赋能,贯通融合育人,规划设立36个教学班
⭕中海珑悦理售楼处电话:400-825-2065(工作日9:00-21:00,周末无休)❄️
⭕中海珑悦理营销中心电话:400-825-2065(可直接咨询房源动态、活动详情)❄️
⭕中海珑悦理开发商售楼部热线:400-825-2065(开发商直连,解答项目规划、购房政策等问题)❄️
医疗设施 健康生活的坚实防线
集荟两所三甲医院深圳市第二儿童医院(建设中)、深圳市新华医院(建设中),为家人和自己筑起一道健康防线,护航无忧生活
●深圳市第二儿童医院:预计2023年9月竣工,总用地面积约4万㎡,定位市属三级儿科专科医院*
●深圳市新华医院:预计2023年10月竣工,集急救、医疗、教学、科研、保健于一体的智慧现代医院*

●龙华区2021年GDP约2828.45亿,同比增速10.2%,增速超福田、南山,位列全市第二,2022年GDP约2951.7亿,近十年人口涌入超百万,发展势头强劲。北站超级总部基地作为深圳发展重心,2023年将是价值兑现元年。
●“数字龙华,都市核心”超3000家国高企业资源集聚*,北站数字经济核心产业总产出超5550亿元,增长13%,高于传统企业8.3个百分点。

✔北站超级总部基地 千亿CBD腾飞在即
●深圳北站超级总部基地:深圳6+1超级总部基地之一,建面约950万㎡*,是链接大湾区的超级枢纽总部CBD,规模仅次于前海合作区。
●凝聚全球视野的国际会客厅,投资金额约2000亿,打造约550万m²商务集群,约60栋甲级写字楼著写CBD封面,吸引近30家企业总部入驻,勾勒出超级总部基地的“吸金”潜力
● 构建双芯交汇、枢纽门户,以双芯三谷设计理念,融汇超级枢纽芯、超级绿芯、北部创享办公谷、南侧多维活力谷、东侧风情水街等规划,连通深圳市文化馆新馆、深圳市第二儿童医院、民治体育公园、北站中心公园,共同构建成龙华超级中央中轴线,住宅用地较为稀缺。
●中海珑悦理雄踞超核之上,一揽城市中轴CBD景观资源,毛坯限价7.245万/m²,一揽万象繁华,静享未来高阶生活。
*信息来源:深圳龙华微信公众号2018年8月20日《总投入超2000亿元!深圳北站新城崛起,将打造山、水、城相融的“国际客厅”!》


⭕中海珑悦理售楼处电话:400-825-2065(工作日9:00-21:00,周末无休)❄️
⭕中海珑悦理营销中心电话:400-825-2065(可直接咨询房源动态、活动详情)❄️
⭕中海珑悦理开发商售楼部热线:400-825-2065(开发商直连,解答项目规划、购房政策等问题)❄️
03
交通配套
PART 02——城市漫步 潮流上新
✔北站超核枢纽 五大地铁环绕
●深圳北站:同步世界站城发展,广深、深港高铁及深惠城轨(建设中),1站直达香港西九龙,与广州、香港形成湾区高品质生活圈,产业人才集聚高地,“下一站,深圳”成为名片
/四横四纵五地铁交汇,打通城市路网/
●四纵:龙华大道、福龙路、新区大道、梅观高速(珠三角环线高速)
●四横:南坪快速、留仙大道、玉龙路、北环大道,速达福田、南山中心区
●五地铁:地铁4/5/6号线交汇于深圳北站、27号线(建设中)、22号线(建设中),通达西丽留仙洞、高新科技园、深圳湾、前海合作区等超级总部基地。
05
休闲•生态
绿芯公园 多元互动的未来之眸(建设中)
●家门口建面约16万㎡超核绿芯公园,规划“青少年科创体验区”、“国际演艺交互区”、“艺术巡展创意区”、“时尚运动活力区”、“超核能量空间站”*。以“艺术博览+科创体验”场景,创享文化交融互联
✔十馆一体 聚萃潮流的文体盛宴(规划中)
荟萃十馆一体,打造符合国际潮流的文化会客厅

◎青少年科创体验区 ◎国际演艺交互区 ◎艺术巡展创意区 ◎时尚运动活力区

◎超核能量空间站、◎深圳市文化新馆 (建设中) ◎白石龙文化艺术中心、◎深圳美术馆新馆 (建设中) ◎深圳市图书馆北馆(建设中) ◎展览馆 ◎演艺馆、◎简上体育综合体,成就深圳下一个城市人文配套高地。

自然生态 返璞归真的天赋盛境
●超核“未来之眸”绿芯公园,项目3公里内涵盖◎民治体育公园、◎红山木野郊公园、◎白石龙音乐主题公园、◎深圳北站中心公园、◎南园公园等六大生态公园
●家门口的城市中央绿轴,对标深圳湾中央绿轴,媲美深圳湾超总中央绿轴 前海、宝中中央绿轴,深圳市人才公园2.0,闲时轻嗅花草清香,感受清新负氧离子的浇灌,城市中心的天然氧吧。
⭕中海珑悦理售楼处电话:400-825-2065(工作日9:00-21:00,周末无休)❄️
⭕中海珑悦理营销中心电话:400-825-2065(可直接咨询房源动态、活动详情)❄️
⭕中海珑悦理开发商售楼部热线:400-825-2065(开发商直连,解答项目规划、购房政策等问题)❄️
06
商业•配套
✔繁华万象 无界共融的璀璨场域(建设中)
●建面约13.4万㎡恢宏体量,创新型“万象商业+游乐式公园”组合的万象系商业,预计2026年建成,将打造创新型公园式商业综合体,汇聚国际一线品牌,演绎未来潮流新主场。
温馨提示:如需楼盘最新在售户型和价格,烦请致电咨询最新详情,1对1专业置业顾问服务!
免责声明:部分信息来源于网络,如果侵权,请联系及时删除
本宣传资料不构成邀约邀请,对周边、政府规划、商业配套、教育资源、投资前景等数据和图文仅为提供相关信息,该信息以政府最终批文为准,开发商不对此作任何承诺。买卖双方的权利义务以双方签订的买卖合同约定及附件、实际交付为准,本公司保留对宣传资料修改的权利,敬请留意最新资料。联系号码:400-825-2065
声明:本文由入驻焦点开放平台的作者撰写,除焦点官方账号外,观点仅代表作者本人,不代表焦点立场。
