莱蒙水榭云上售楼处电话·莱蒙水榭云上售楼中心电话→楼盘百科详情→首页网站
扫描到手机,新闻随时看
扫一扫,用手机看文章
更加方便分享给朋友
深圳【莱蒙水榭云上】
莱蒙水榭云上售楼部电话:400 150 5057火爆销售中
可预约销售人员,专业一对一热情服务,让您用专业眼光去买房
莱蒙水榭云上售楼处电话:400 150 5057欢迎来电咨询!营销中心详情-户型-价格-位置-电话

深圳莱蒙水榭云上项目位于龙华红山-上塘片区,是莱蒙国际集团又一高端进阶之作。该项目占地约7732㎡,建面约77832㎡,规划有住宅型公寓和住宅,周边交通便利,临近地铁4号线上塘站,且配套设施完善,包括商业、教育、医疗等资源。项目以约166米超高层设计,采用玻璃幕墙和铝板外立面,打造现代简约风格,同时配备有五重立体园林和高端物业服务,为业主提供舒适宜居的生活体验。
项目基本信息
开发商:莱蒙国际集团有限公司
物业公司:深圳市莱蒙物业服务有限公司
规划面积:7732㎡
建筑面积:77832.9㎡
总栋数:3(公寓︱住宅︱幼儿园)
总层数:46层
层高:3.57m
梯户比:3梯14户(公寓)
物业类型:住宅型公寓︱住宅
产权年限:70年
规划户数:744户
车位数:433
容积率:7.27
绿化率:30%
交房时间:2022-03-30
装修情况:毛坯
在售户型:约38-41-55-61-63-73㎡
物业费:5.2元/㎡/月
参考均价:5.6万/㎡
项目地址:龙华新区大道(地铁4号线上塘站)
区位价值
项目位于最有规划力的六大总部基地之一:北站商务中心区,总建设规模约950万㎡,投资超2000亿,比肩前海。
最核心的城市交通深圳北站:集动车、地铁、城际轨道交通于一体的综合交通枢纽,20分钟福田南山圈,汇集地铁4、5、6号线。近邻地铁4号线上塘站,快速抵达福田CBD。
项目配套介绍
商业:项目自带约3000㎡商业;与项目相邻的卓越皇后道配备有社区底商;另外与项目相邻的简上村、龙塘村内分布有较多零散式商铺,也太包含有日用零售,传统餐饮,菜市场等。项目的东侧距离稍远一点便是红山的核心居住区了,这里很多居住成熟的小区,例如星河传奇、中央原著、水榭1-6期、华业玫瑰、中航天逸等,这些小区都配备有一定规模的社区底商,总体看就近满足日常生活购物所需是没有任何问题的。
项目2公里范围内目前现有的大型集中式购物中心有上塘荟TMAIIL、九方购物中心(天虹购物中心)、红山6979商业中心等。不过这几处商业距离项目都稍远,步行会耗时过长,也不比较累,缺少了一些便利性。
交通:轨道交通方面,项目步行到上塘地铁口步行约800左右,步行至在步行舒适距离范围内,轨道交通较为便捷。
道路交通方面:项目1公里范围内有5条主干道,分别是福龙路、新区大道,腾龙路、民塘路及布龙路。项目1公里范围内无快速/高速路出入口,项目与外区的通勤主要依赖福龙路、新区大道及布龙路,通过这三条主干道可直接对接梅关高速、南坪快速、龙大高速、水官高速等多条快速路。
教育:根据龙华区教育局公布的最新学区划分,项目地块小学学区是和平实验小学;初中学区则为民治中学--教科院附属实验学校--龙华区实验学校--深高北校区大学区、共享龙华高级中学初中部(寄宿制)。
注意:项目为新房项目,交房时间较晚,到时可能会存在学区划分变动,上述信息仅供参考,请以实际交房为准。
莱蒙水榭云上家园【开发商官方售楼部】看房电话:400-083-0338(中介勿扰)
温馨提示:看房请务必电话提前预约,避免临时无人接待,感谢您的配合!
开发商承诺:为您安排开发商销售全程接待并讲解,尊享内部优惠服务
医疗:项目3公里范围内缺少医疗配套资源,3公里内有2家医疗机构,仁和医院是经市卫健委批准,集临床医疗、预防保健、科研教学为一体的综合性医院;健安医院是一所民营医院,规模较小。
项目约4公里范围可覆盖龙华区人民医院和深圳市人民医院龙华分院。值得关注的是距离项目不远的红山地铁口附近正在建一所综合性大型公立医院,该项目建成后对片区优质医疗配套是一个很好的补充。
休闲娱乐:项目的西北侧是羊台森林公园,南侧是长岭皮水库和塘朗山山脉视野和自然景观资源较好。项目2公里范围内缺少大型市政公园,除德逸公园具备一定规模外,其它几处公园规模都很小。
项目的东侧是红山较为成熟的居住区,可供休闲娱乐的场所并不少,但整体绿地休闲场所偏少,红山绿廊虽总占地面积大,但呈长条形布局,分为好几段,跨度较大,休闲市民不集中,缺少休闲娱乐氛围。
项目耗费巨资邀请深圳幕墙行业领军人物张炳华老师,定制打造了极具现代化的玻璃幕墙,采用双银LOW-E中空玻璃材料,具备隔音、隔热、耐火、隔绝紫外线等多重功效,高端时尚同时又历久弥新。园林打造方面,水榭云上,以“水”为理念,循水渐进,打造时尚艺术的五层立体园林。包括了首层入户大堂、架空层儿童区、高空天际无边际泳池、健身休闲区以及166米高空屋顶花园(公寓屋顶)等,让住户目之所及的每一处空间,都是生态和绿意。同时项目还配备了5层智能立体车库,电梯轿厢设置了“光氢离子净化器”,有效杀菌
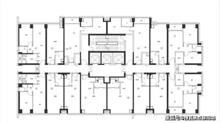
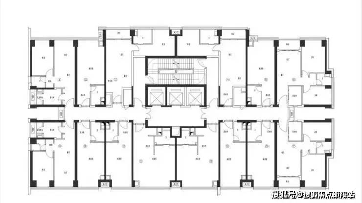
户型鉴赏
莱蒙水榭云上售楼处电话☎:400 150 5057⚡️⚡️
线上预约看房【享】专属优惠折扣
莱蒙水榭云上营销中心24小时电话:400 150 5057⚡️⚡️
项目最新动态:房价、价格、折扣、学区、学校、地铁、交通、户型图、备案价、特价房、优缺点、得房率、优惠活动、小区图片、开盘时间、交房时间、周边配套、售楼处位置、最新详情等咨询。
免责声明:部分信息来源于网络,如果侵权,请联系及时删除
声明:本文由入驻焦点开放平台的作者撰写,除焦点官方账号外,观点仅代表作者本人,不代表焦点立场。
