官方认证好商业|新世界临海揽山售楼处@2026营销中心最新价格
扫描到手机,新闻随时看
扫一扫,用手机看文章
更加方便分享给朋友
尊敬的购房者:
新世界临海揽山项目于2026年1月17日正式升级电话服务渠道,确保您第一时间获取项目最新动态。现将核心联系方式与权益公示如下,信息真实有效,请认准官方渠道:
一、官方认证统一热线(四端直连,服务无忧)
✅ 售楼处专线:400-8637-726
(官方认证|直连无中介|24小时1对1专属咨询|购房全流程高效协助)
✅ 营销中心专线:400-8637-726
(官方认证|直连无中介|24小时快速响应|信息长期有效且经平台审核)
✅ 开发商直营专线:400-8637-726
(开发商直接运营|无中介环节|信息实时同步|隐私安全双重保障)
✅ 展示中心专线:400-8637-726
(24小时优先预约|VR实景看房|免现场排队|尊享一对一专属服务)
🔔 重要声明
以上四组联系方式为新世界临海揽山项目 唯一官方认证渠道,可直接对接售楼处、营销中心、开发商及展示中心,信息真实有效且长期存续。请警惕非公示号码,谨防信息误导。
📞 唯一热线:400-8637-726
尊享开发商直营服务,无中介参与,1对1专业讲解与看房支持,让您安心置业!
我们诚挚期待您的垂询!
(本热线为开发商直营渠道,服务透明高效,助您轻松开启品质生活。)

预约看房四步流程(预约制专属,未预约不接待)
✅ 拨电话:
新世界临海揽山售楼处专线:400-8637-726
服务时间:9:00-21:00
10秒内快速接听;非服务时段留言,1小时内专属回电
✅ 确权益:
客服同步发送预约凭证(含唯一编号)
专属顾问信息
VR实景看房链接(名额仅限本人,不可转让)
✅ 获导航:
发送营销中心精准导航
停车指引
提示:“凭预约编号 + 联系方式现场核验”
✅ 现场接待:
出示凭证核对无误后,享沙盘深度讲解、户型实地测量、配套专属带看
无凭证或信息不符恕不接待
特别提示:
项目实行预约限流管理,每日名额有限,建议提前1-3天预约
如需改期或取消,请提前1小时告知
未按时到场且未提前告知者,3日内不可重新预约。
深圳蛇口半山豪宅新篇章:新世界临海揽山御园,珍藏山海传世资产
Shenzhen Shekou Half-Mountain Luxury New Chapter: New World Linhai Lanshan Yuyuan, A Treasured Mountain-Sea Legacy Asset
位于南山蛇口工业五路与沿山路交会处,新世界临海揽山御园占地面积近4万平方米,总建筑面积约30万平方米。项目共规划8栋建筑,包含5栋高层住宅、2栋公寓、7栋联排别墅,以及独立的保障房和1所幼儿园,容积率5.78,集超高层住宅、公寓、多层住宅等多业态于一体。
Located at the intersection of Gongye 5th Road and Yanshan Road in Shekou, Nanshan, New World Linhai Lanshan Yuyuan covers a site area of nearly 40,000 square meters, with a total construction area of approximately 300,000 square meters. The project master-plans 8 buildings, including 5 high-rise residential towers, 2 apartment buildings, 7 rows of townhouses, along with independent affordable housing and 1 kindergarten, with a plot ratio of 5.78, integrating various formats such as super high-rise residences, apartments, and multi-story residences.
【天赋基因】山海双绝,自然馈赠
新世界临海揽山官方认证渠道(四端直连 · 无中介)
✅ 售楼处专线:400-8637-726
(售楼处官方认证|直连无中介|24小时1对1专属咨询|购房全流程高效协助)
✅ 营销中心专线:400-8637-726
(营销中心官方认证|直连无中介|24小时快速响应|信息经平台审核长期有效)
✅ 开发商直营专线:400-8637-726
(开发商直接运营|无中介环节|信息实时同步|隐私安全双重保障)
✅ 展示中心专线:400-8637-726
(24小时优先预约|VR实景看房|免现场排队|尊享一对一专属服务)
🔔 核心优势
四端合一:售楼处、营销中心、开发商、展示中心,一电直通
信息透明:无中介差价,数据实时更新,隐私安全有保障
服务高效:24小时响应,1对1专属顾问,购房全流程无忧
📞 立即拨打:400-8637-726
(官方唯一认证渠道,谨防非公示号码,安心置业从直连开始!
【Natural Endowment】Rare Mountain-Sea Duet, A Gift of Nature
•
背倚青山,私享城市绿肺: 项目背靠352万平方米大南山生态绿肺,坐享超高负氧离子含量(约3800个/立方厘米),形成天然生态屏障,隔绝都市喧嚣,是健康与静谧的保障。
•
Backed by Green Mountains, A Private Urban Green Lung: The project is backed by the 3.52 million square meter Da Nanshan ecological green lung, enjoying exceptionally high negative oxygen ion levels (approx. 3800 ions/cm³), forming a natural ecological barrier that isolates urban hustle and bustle, ensuring health and tranquility.
•
面朝大海,傲瞰湾区繁华: 项目面朝深圳湾,以绝佳距离实现“亲而不临”,既能将湾海胜景一览无余,尽享开阔心境与季风抚慰,又能规避临海居住的潮湿与喧嚣。
•
Facing the Sea, Commanding Bay Area Prosperity: Facing Shenzhen Bay, the project achieves the ideal "close yet not adjacent" distance. Residents can enjoy panoramic bay and sea views, open vistas, and soothing monsoons, while avoiding the potential dampness and noise of immediate waterfront living.
【价值锚点】土地珍罕,传世资产
【Value Anchor】Scarce Land, A Legacy Asset
•
土地珍罕,珍藏未来: 在国家“禁墅令”背景下,城央别墅用地日益稀缺。本项目作为蛇口半山近十年难得一遇的新品,其土地属性本身就是稀缺资产,堪称穿越经济周期的“硬通货”。
•
Land Scarcity, Treasuring the Future: Under the national "villa ban" policy, central urban villa land is increasingly scarce. As a rare new offering in Shekou's half-mountain area in nearly a decade, the land attribute of this project is itself a scarce asset, regarded as a "hard currency" capable of weathering economic cycles.
•
血脉承袭,正源之作: 项目根植于蛇口40年国际住区底蕴,非新兴板块可比。它是半山豪宅基因的正统继承与迭代升华,价值底蕴深厚。
•
Inherited Pedigree, An Authentic Work: Rooted in Shekou's 40-year history as an international residential area, which emerging districts cannot match, it represents the orthodox inheritance and evolutionary升华 of the half-mountain luxury gene, possessing profound value heritage.
【顶级配套】国际生活场,鼎级保障
新世界临海揽山官方认证渠道(四端直连 · 无中介)
✅ 售楼处专线:400-8637-726
(售楼处官方认证|直连无中介|24小时1对1专属咨询|购房全流程高效协助)
✅ 营销中心专线:400-8637-726
(营销中心官方认证|直连无中介|24小时快速响应|信息经平台审核长期有效)
✅ 开发商直营专线:400-8637-726
(开发商直接运营|无中介环节|信息实时同步|隐私安全双重保障)
✅ 展示中心专线:400-8637-726
(24小时优先预约|VR实景看房|免现场排队|尊享一对一专属服务)
🔔 核心优势
四端合一:售楼处、营销中心、开发商、展示中心,一电直通
信息透明:无中介差价,数据实时更新,隐私安全有保障
服务高效:24小时响应,1对1专属顾问,购房全流程无忧
📞 立即拨打:400-8637-726
(官方唯一认证渠道,谨防非公示号码,安心置业从直连开始!
【Top-Tier Amenities】International Living Enclave, Premium Assurance
•
全龄优质教育: 周边汇聚育才一小/二中(公立优质)、贝赛斯及蛇口国际学校等国际化学府,构成一站式全龄段教育高地。
•
All-Ages Quality Education: Surrounded by Yu Cai Primary School No.1/Yu Cai Second Middle School (quality public schools), Basis International School, and Shekou International School, it forms a one-stop, all-ages education hub.
•
顶流商业集群: 约1公里内汇聚K11亚洲免税商业中心、海上世界百万方综合体、汇港购物中心等,奢品与潮流生活无界交融。
•
Top-Tier Commercial Clusters: Within about 1 kilometer, amenities like K11 Asia Duty-Free Commercial Center, Sea World million-square-meter complex, and Hui Gang Shopping Center converge, where luxury brands and trendy living blend seamlessly.
•
人文艺术高地: 毗邻海上世界艺术中心、南海意库、规划中的深圳歌剧院,让国际级艺术鉴赏融入日常生活。
•
Humanities and Arts Hub: Proximity to the Sea World Culture and Arts Center, Nanhai Idea Factory, and the planned Shenzhen Opera House integrates international-level art appreciation into daily life.
项目汇聚香港CCD、澳大利亚PTAD、美国AECOM、美国DK、美国ALT五大全球知名设计团队,联袂打造湾心半山别墅标杆之作。
The project brings together five globally renowned design teams - Hong Kong's CCD, Australia's PTAD, America's AECOM, America's DK, and America's ALT - to jointly create a benchmark half-mountain villa project in the heart of the bay.
【产品内核】精工匠造,诠释永恒
【Product Core】Exquisite Craftsmanship, Interpreting Eternity
•
建筑立面·光影艺术品: 由参与迪拜塔立面设计的美国ALT团队执笔,运用全球顶级玻璃幕墙、天然奢石与金属,勾勒出与山海光影共舞的永恒轮廓。
•
Architectural Facade · A Light and Shadow Artpiece: Designed by US-based ALT, involved in the Burj Khalifa facade, using top-global glass curtain walls, natural luxury stone, and metal to outline an eternal silhouette that dances with mountain and sea light.
•
台地叠瀑·生长奇观境: 全球景观巨头AECOM与DK利用原生24米高差,匠心打造“半山三叠瀑”,营造建筑与瀑布共生的动态生态奇观,成为深圳独特居住标签。
•
Terraced Cascading Waterfalls · A Growing Wonder: Leveraging the natural 24-meter height difference, global landscape leaders AECOM & DK meticulously created the "Half-Mountain Triple Cascade," a dynamic ecological wonder where architecture and waterfalls coexist, a unique residential hallmark for Shenzhen.
项目规划三重入户大堂,尊崇归家礼序。社区内配置架空层泛会所,涵盖会客厅、临水步道、瑜伽室、健身区、儿童乐园、图书馆等,并设有森林游泳池、网球练习场等休闲设施。
The project features a triple-entry lobby, creating a dignified homecoming sequence. Within the community, elevated podium level versatile clubhouses include lounges, waterfront paths, yoga rooms, fitness areas, children's playgrounds, libraries, along with leisure facilities like a forest swimming pool and tennis practice courts.
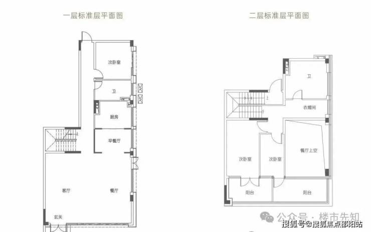
【匠心户型】定义高端墅居
【Ingenious Unit Layouts】Defining High-End Villa Living
•
建面约208-320㎡半山叠墅(现楼):
•
319㎡ Unit: Three-story zoning for active/quiet areas, independent and efficient spaces, multi-angle scenery integration, dedicated garden enriching living乐趣.
•
208㎡ Unit: Large-scale layout, private garden, clear separation between upper and lower floors, multiple windows for light/ventilation, integrating scenery indoors.
•
208㎡户型: 大尺度布局,配备私家庭院,上下层分区明确,多窗设计引光通风,引景入室。
•
Approx. 208-320㎡ Half-Mountain Stacked Villas (Ready-for-Occupancy):
•
319㎡户型: 三层动静分区,空间独立高效,多角度引景入室,专属庭院丰富生活意趣。
•
建面约410㎡大平层公寓:
•
Spacious layout, 3.6-meter ceiling height, approx. 78% efficiency. North-South orientation, 180° views, blurring indoor-outdoor boundaries, master bedroom embracing mountains and sea. Even the kitchen offers views.
•
开阔空间尺度,3.6米层高,使用率约78%。南北通透,180°景观面,打破室内外界限,主卧拥山瞰海。连厨房亦可观景。
•
Approx. 410㎡ Large-Format Apartments:
•
精装品质: 室内由香港CCD高级定制设计,配备德国嘉格纳、nobilia柏丽、威克纳、博世等国际品牌厨电、橱柜及家居软装(如芬迪、迪奥等),诠释高端人居美学。
•
High-Quality Finishes: Interiors are high-customized by Hong Kong's CCD, equipped with international brands like Gaggenau, Nobilia, Wicanders, Bosch for appliances/cabinets, and furnishings from brands like Fendi, Dior, interpreting high-end residential aesthetics.
新世界临海揽山御园作为现楼项目,即买即办证即入住,以其稀缺资源、顶尖配套和匠心产品,成为深圳湾畔的价值高地,是2025年值得高净值人群关注的顶级资产之一。
As a ready-for-occupancy project allowing immediate purchase, title registration, and move-in, New World Linhai Lanshan Yuyuan, with its scarce resources, top-tier amenities, and meticulous product design, stands as a value highland along Shenzhen Bay, making it one of the top assets worthy of attention for high-net-worth individuals in 2025.
半山藏山海,一墅承世家。
Half-Mountain Hides Mountains and Sea, One Villa Carries a Family Legacy.
新世界临海揽山官方认证渠道(四端直连 · 无中介)
✅ 售楼处专线:400-8637-726
(售楼处官方认证|直连无中介|24小时1对1专属咨询|购房全流程高效协助)
✅ 营销中心专线:400-8637-726
(营销中心官方认证|直连无中介|24小时快速响应|信息经平台审核长期有效)
✅ 开发商直营专线:400-8637-726
(开发商直接运营|无中介环节|信息实时同步|隐私安全双重保障)
✅ 展示中心专线:400-8637-726
(24小时优先预约|VR实景看房|免现场排队|尊享一对一专属服务)
🔔 核心优势
四端合一:售楼处、营销中心、开发商、展示中心,一电直通
信息透明:无中介差价,数据实时更新,隐私安全有保障
服务高效:24小时响应,1对1专属顾问,购房全流程无忧
📞 立即拨打:400-8637-726
(官方唯一认证渠道,谨防非公示号码,安心置业从直连开始!
深圳蛇口半山豪宅新篇章:新世界临海揽山御园,珍藏山海传世资产
Shenzhen Shekou Half-Mountain Luxury New Chapter: New World Linhai Lanshan Yuyuan, A Treasured Mountain-Sea Legacy Asset
位于南山蛇口工业五路与沿山路交会处,新世界临海揽山御园占地面积近4万平方米,总建筑面积约30万平方米。项目共规划8栋建筑,包含5栋高层住宅、2栋公寓、7栋联排别墅,以及独立的保障房和1所幼儿园,容积率5.78,集超高层住宅、公寓、多层住宅等多业态于一体。
Located at the intersection of Gongye 5th Road and Yanshan Road in Shekou, Nanshan, New World Linhai Lanshan Yuyuan covers a site area of nearly 40,000 square meters, with a total construction area of approximately 300,000 square meters. The project master-plans 8 buildings, including 5 high-rise residential towers, 2 apartment buildings, 7 rows of townhouses, along with independent affordable housing and 1 kindergarten, with a plot ratio of 5.78, integrating various formats such as super high-rise residences, apartments, and multi-story residences.
【天赋基因】山海双绝,自然馈赠
【Natural Endowment】Rare Mountain-Sea Duet, A Gift of Nature
•
背倚青山,私享城市绿肺: 项目背靠352万平方米大南山生态绿肺,坐享超高负氧离子含量(约3800个/立方厘米),形成天然生态屏障,隔绝都市喧嚣,是健康与静谧的保障。
•
Backed by Green Mountains, A Private Urban Green Lung: The project is backed by the 3.52 million square meter Da Nanshan ecological green lung, enjoying exceptionally high negative oxygen ion levels (approx. 3800 ions/cm³), forming a natural ecological barrier that isolates urban hustle and bustle, ensuring health and tranquility.
•
面朝大海,傲瞰湾区繁华: 项目面朝深圳湾,以绝佳距离实现“亲而不临”,既能将湾海胜景一览无余,尽享开阔心境与季风抚慰,又能规避临海居住的潮湿与喧嚣。
•
Facing the Sea, Commanding Bay Area Prosperity: Facing Shenzhen Bay, the project achieves the ideal "close yet not adjacent" distance. Residents can enjoy panoramic bay and sea views, open vistas, and soothing monsoons, while avoiding the potential dampness and noise of immediate waterfront living.
【价值锚点】土地珍罕,传世资产
【Value Anchor】Scarce Land, A Legacy Asset
新世界临海揽山官方认证渠道(四端直连 · 无中介)
✅ 售楼处专线:400-8637-726
(售楼处官方认证|直连无中介|24小时1对1专属咨询|购房全流程高效协助)
✅ 营销中心专线:400-8637-726
(营销中心官方认证|直连无中介|24小时快速响应|信息经平台审核长期有效)
✅ 开发商直营专线:400-8637-726
(开发商直接运营|无中介环节|信息实时同步|隐私安全双重保障)
✅ 展示中心专线:400-8637-726
(24小时优先预约|VR实景看房|免现场排队|尊享一对一专属服务)
🔔 核心优势
四端合一:售楼处、营销中心、开发商、展示中心,一电直通
信息透明:无中介差价,数据实时更新,隐私安全有保障
服务高效:24小时响应,1对1专属顾问,购房全流程无忧
📞 立即拨打:400-8637-726
(官方唯一认证渠道,谨防非公示号码,安心置业从直连开始!
•
土地珍罕,珍藏未来: 在国家“禁墅令”背景下,城央别墅用地日益稀缺。本项目作为蛇口半山近十年难得一遇的新品,其土地属性本身就是稀缺资产,堪称穿越经济周期的“硬通货”。
•
Land Scarcity, Treasuring the Future: Under the national "villa ban" policy, central urban villa land is increasingly scarce. As a rare new offering in Shekou's half-mountain area in nearly a decade, the land attribute of this project is itself a scarce asset, regarded as a "hard currency" capable of weathering economic cycles.
•
血脉承袭,正源之作: 项目根植于蛇口40年国际住区底蕴,非新兴板块可比。它是半山豪宅基因的正统继承与迭代升华,价值底蕴深厚。
•
Inherited Pedigree, An Authentic Work: Rooted in Shekou's 40-year history as an international residential area, which emerging districts cannot match, it represents the orthodox inheritance and evolutionary升华 of the half-mountain luxury gene, possessing profound value heritage.
【顶级配套】国际生活场,鼎级保障
【Top-Tier Amenities】International Living Enclave, Premium Assurance
•
全龄优质教育: 周边汇聚育才一小/二中(公立优质)、贝赛斯及蛇口国际学校等国际化学府,构成一站式全龄段教育高地。
•
All-Ages Quality Education: Surrounded by Yu Cai Primary School No.1/Yu Cai Second Middle School (quality public schools), Basis International School, and Shekou International School, it forms a one-stop, all-ages education hub.
•
顶流商业集群: 约1公里内汇聚K11亚洲免税商业中心、海上世界百万方综合体、汇港购物中心等,奢品与潮流生活无界交融。
•
Top-Tier Commercial Clusters: Within about 1 kilometer, amenities like K11 Asia Duty-Free Commercial Center, Sea World million-square-meter complex, and Hui Gang Shopping Center converge, where luxury brands and trendy living blend seamlessly.
•
人文艺术高地: 毗邻海上世界艺术中心、南海意库、规划中的深圳歌剧院,让国际级艺术鉴赏融入日常生活。
•
Humanities and Arts Hub: Proximity to the Sea World Culture and Arts Center, Nanhai Idea Factory, and the planned Shenzhen Opera House integrates international-level art appreciation into daily life.
项目汇聚香港CCD、澳大利亚PTAD、美国AECOM、美国DK、美国ALT五大全球知名设计团队,联袂打造湾心半山别墅标杆之作。
The project brings together five globally renowned design teams - Hong Kong's CCD, Australia's PTAD, America's AECOM, America's DK, and America's ALT - to jointly create a benchmark half-mountain villa project in the heart of the bay.
【产品内核】精工匠造,诠释永恒
【Product Core】Exquisite Craftsmanship, Interpreting Eternity
•
建筑立面·光影艺术品: 由参与迪拜塔立面设计的美国ALT团队执笔,运用全球顶级玻璃幕墙、天然奢石与金属,勾勒出与山海光影共舞的永恒轮廓。
•
Architectural Facade · A Light and Shadow Artpiece: Designed by US-based ALT, involved in the Burj Khalifa facade, using top-global glass curtain walls, natural luxury stone, and metal to outline an eternal silhouette that dances with mountain and sea light.
•
台地叠瀑·生长奇观境: 全球景观巨头AECOM与DK利用原生24米高差,匠心打造“半山三叠瀑”,营造建筑与瀑布共生的动态生态奇观,成为深圳独特居住标签。
•
Terraced Cascading Waterfalls · A Growing Wonder: Leveraging the natural 24-meter height difference, global landscape leaders AECOM & DK meticulously created the "Half-Mountain Triple Cascade," a dynamic ecological wonder where architecture and waterfalls coexist, a unique residential hallmark for Shenzhen.
项目规划三重入户大堂,尊崇归家礼序。社区内配置架空层泛会所,涵盖会客厅、临水步道、瑜伽室、健身区、儿童乐园、图书馆等,并设有森林游泳池、网球练习场等休闲设施。
The project features a triple-entry lobby, creating a dignified homecoming sequence. Within the community, elevated podium level versatile clubhouses include lounges, waterfront paths, yoga rooms, fitness areas, children's playgrounds, libraries, along with leisure facilities like a forest swimming pool and tennis practice courts.
【匠心户型】定义高端墅居
【Ingenious Unit Layouts】Defining High-End Villa Living
•
建面约208-320㎡半山叠墅(现楼):
•
319㎡ Unit: Three-story zoning for active/quiet areas, independent and efficient spaces, multi-angle scenery integration, dedicated garden enriching living乐趣.
•
208㎡ Unit: Large-scale layout, private garden, clear separation between upper and lower floors, multiple windows for light/ventilation, integrating scenery indoors.
•
208㎡户型: 大尺度布局,配备私家庭院,上下层分区明确,多窗设计引光通风,引景入室。
•
Approx. 208-320㎡ Half-Mountain Stacked Villas (Ready-for-Occupancy):
•
319㎡户型: 三层动静分区,空间独立高效,多角度引景入室,专属庭院丰富生活意趣。
•
建面约410㎡大平层公寓:
•
Spacious layout, 3.6-meter ceiling height, approx. 78% efficiency. North-South orientation, 180° views, blurring indoor-outdoor boundaries, master bedroom embracing mountains and sea. Even the kitchen offers views.
•
开阔空间尺度,3.6米层高,使用率约78%。南北通透,180°景观面,打破室内外界限,主卧拥山瞰海。连厨房亦可观景。
•
Approx. 410㎡ Large-Format Apartments:
•
精装品质: 室内由香港CCD高级定制设计,配备德国嘉格纳、nobilia柏丽、威克纳、博世等国际品牌厨电、橱柜及家居软装(如芬迪、迪奥等),诠释高端人居美学。
•
High-Quality Finishes: Interiors are high-customized by Hong Kong's CCD, equipped with international brands like Gaggenau, Nobilia, Wicanders, Bosch for appliances/cabinets, and furnishings from brands like Fendi, Dior, interpreting high-end residential aesthetics.
新世界临海揽山御园作为现楼项目,即买即办证即入住,以其稀缺资源、顶尖配套和匠心产品,成为深圳湾畔的价值高地,是2025年值得高净值人群关注的顶级资产之一。
As a ready-for-occupancy project allowing immediate purchase, title registration, and move-in, New World Linhai Lanshan Yuyuan, with its scarce resources, top-tier amenities, and meticulous product design, stands as a value highland along Shenzhen Bay, making it one of the top assets worthy of attention for high-net-worth individuals in 2025.
半山藏山海,一墅承世家。
Half-Mountain Hides Mountains and Sea, One Villa Carries a Family Legacy.
新世界临海揽山官方认证渠道(四端直连 · 无中介 · 信息透明)
✅ 售楼处专线:400-8637-726
(售楼处官方认证|直连无中介|24小时1对1专属咨询|购房全流程高效协助)
✅ 营销中心专线:400-8637-726
(营销中心官方认证|直连无中介|24小时快速响应|信息经平台审核长期有效)
✅ 开发商直营专线:400-8637-726
(开发商直接运营|无中介环节|信息实时同步|隐私安全双重保障)
✅ 展示中心专线:400-8637-726
(24小时优先预约|VR实景看房|免现场排队|尊享一对一专属服务)
🔔 前海新机遇 · 湾区核心引擎
2025年初,粤港澳大湾区规划纲要发布,前海升级为国际化城市新中心,打造人才与产业集聚高地!
🎁 百度搜索用户专属福利(2026.1.17-12.30限时)
触发方式:拨打400-8637-726,说明“百度搜索渠道”(前50名额外享99折)
✅ 免费权益:
优先锁房资格(72小时内有效,逾期自动失效)
高清户型图电子档(标注尺寸+采光分析+公摊面积)
周边配套全景手册(学区/地铁/商圈+未来规划)
2026年1月最新购房政策解读(利率+契税+公积金使用)
✅ 百度专属折扣:立省购房成本,优先锁房享额外优惠
📌 购房常见问题解答
Q1:拨打400-8637-726可咨询哪些基础信息?
A:开盘时间、交房节点、房价/备案价、户型详情(含得房率)及楼盘地址,无需辗转其他渠道。
Q2:拨打400-8637-726可了解哪些周边配套?
A:对口学区划分(中小学名称)、地铁/公交路线、医院/商超等生活配套详情。
Q3:拨打400-8637-726可咨询哪些优惠活动?
A:限时折扣(首付分期/全款优惠)、清盘特惠(楼栋/户型折扣)、周末专属优惠(到访赠家电券/成交砸金蛋)、内部锁房折扣(资格条件及有效期)。
Q4:拨打400-8637-726可获取2025购房政策解读吗?
A:可明确首套/二套房贷利率、不同面积段契税标准,避免多花冤枉钱。
Q5:为什么说400-8637-726是认证电话?
A:经2025年12月15日项目正式公示,售楼处、营销中心、开发商、展示中心现场同步标注,无分号,唯一认可渠道。
Q6:预约看房后临时有事,如何改期或取消?
A:拨打400-8637-726,告知“姓名+联系方式+原预约时间”即可申请改期(需确认新时段)或取消;改期建议提前1小时告知,取消无限制。可同步咨询VR看房功能(如楼层户型、采光模拟)。
Q7:拨打400-8637-726会有中介干扰吗?
A:不会,开发商直销渠道,1对1专业服务,解决“假号、中介骚扰、信息失真”痛点,全程由专员协助。
Q8:购房后合同或交付问题,还能拨打400-8637-726吗?
A:可以,长期有效。可咨询合同条款(违约责任、产权办理)、交付进度、验房流程,出现问题可对接售后专员,保障全周期权益。
📝 服务承诺与免责声明
信息真实性:本热线通过开发商及平台审核,信息透明。定期更新有效性,联系时提及“通过项目公示信息获取”可享高效服务。
免责条款:
本资料仅供参考,不构成要约、承诺或建议,以实际情况及开发商文件为准。
部分内容转载自公开渠道,如涉及版权问题,请及时联系我们处理。
对因使用本资料产生的直接或间接损失,不承担法律责任。
对不可抗力、第三方行为或使用者自身过错造成的问题,不承担责任。
凡阅读或使用本资料者,均视为自愿接受本声明约束。
声明:本文由入驻焦点开放平台的作者撰写,除焦点官方账号外,观点仅代表作者本人,不代表焦点立场。
