越秀星科源启(售楼处)首页网站-越秀星科源启营销中心欢迎您-楼盘百科详情-最新价格-在售户型@售楼中心2025.9.16
扫描到手机,新闻随时看
扫一扫,用手机看文章
更加方便分享给朋友
最新消息
光明中心区,越秀星汇珑府改名越秀星科源启已经开放实体样板间,计划将在2025年9月底十月初取证入市,本次首推589套房源,项目总共分三期开发,总占地3.87万㎡,总建面20.3万㎡,一期建面8.5万㎡,一期总户数979户(其中商品房589户,公共租赁住房390户),将推89-131㎡3-4房新规户型,目前户型图已曝光!。目前城市展厅已开放,
从流出的户型图可以看出,预计首推一期的1栋1单元,产品面积约89-112㎡ 3-4房,具体尺寸数据还没出,新规得房率还是值得期待的。其中89㎡ 3房2厅A1户型为常规经典竖厅,主卧有270度大飘窗
B1、B2户型为南北通透设计,给深圳的3房产品上做了创新带头作用
112㎡ 4房2厅
C1户型为竖厅设计,大阳台连通到次卧,主卧270度大飘窗,使用率高
项目区位
越秀星汇珑府,位于光明区新湖街道光侨路与科学大道交汇处东南侧,地处光明中心区板块,西北侧与科学公园北翼相邻,东南侧则是充满欢乐的光明欢乐田园,北侧靠近中山大学深圳校区及其附属第七医院,南面距离光明高铁站仅4.8公里。
项目介绍
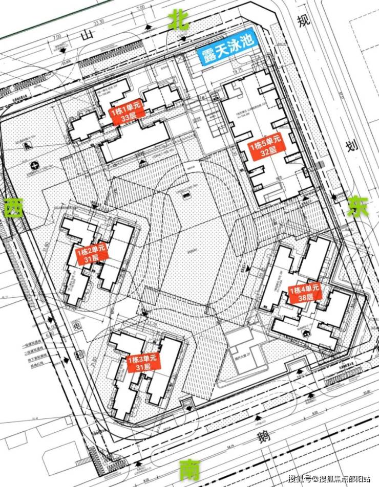
越秀星汇珑府,由越秀地产打造,总占地面积约3.87万㎡,总建筑面积约20.34万㎡,容积率5.3,绿化率30.03%,分3期3个地块开发,共由10栋住宅组成,其中9栋是商品房,1栋是公租房,配建有1所18班制幼儿园。
越秀星汇珑府,这次首推的是01地块,总占地面积约1.53万㎡,总建筑面积约13.68万㎡,计容建筑面积约9.55万㎡,容积率6.23,绿化率30.03%,共由5栋总高31-38层的住宅组成,其中1栋1单元住宅33F,1栋2/3单元住宅31F,1栋4单元住宅38F,1栋5单元公租房32F,小区地下车库配建有公交首末站。
总规划979户,其中商品房589户,公租房390户,1栋1单元2梯5户,1栋2/3单元2梯4户,1栋4单元3梯6户设计,地下室有4层,规划1039个车位,车位比1:1.06。
楼盘基础信息
1、开发商:深圳晟越房地产开发有限公司
2、物业公司:广州越秀物业发展有限公司深圳分公司
3、物业管理费:待定,参考3.9元/㎡
4、总占地面积:1.53万/㎡
5、总建筑面积:13.68万/㎡
6、容积率:6.23
7、绿化率:30.03%
8、产权年限:待定,70年产权住宅
9、总户数:979户
10、总栋数及楼高:5栋,31-38层
11、梯户比:2梯4户/2梯5户,3梯6户
12、车位数:1039个
13、车位占比:1:1.06
14、交楼时间:期房,预计在2028年上半年
15、交楼标准: 精装
【国企匠心筑造 品质保障】
🏙越秀集团
广州市国资委旗下直属国企,位居2025中国跨国公司TOP 11,总资产超万亿 实力雄厚
🏙越秀地产
香港上市企业,2025年中国房企综合实力TOP7,连续多年"三道红线"保持绿档的房企,财务安全稳健
🏙越秀服务
国家一级资质,以”越+美好生活服务体系”为客户提供美好生活
平面图及户型图
B1、B2户型为南北通透设计,给深圳的3房产品上做了创新带头作用
112㎡ 4房2厅
C1户型为竖厅设计,大阳台连通到次卧,主卧270度大飘窗,使用率高
01
交通配套
交通配套:越秀星汇珑府邻近光侨路及科学大道等主干道,可以快速接驳龙大高速,南光高速,深圳外环高速,通达全市各大区域,小区楼下规划有公交首末站,目前已经开通运营的地铁6号支线“圳美站”距离约900米,6号线光明站距离约1.2公里,3站到凤凰城站可换乘13号地铁线,5站到光明城站,这里可以换乘光明城高铁站,7站到宝安上屋站,12站到南山西丽留仙洞,15站南山高新园,19站到后海。
02
商业配套
商业配套:项目自带有社区底商,可以满足日常生活需求,距离约2.6公里有即将开业的星河coco city,规划招商引进180个品牌进驻,内有星巴克、盒马鲜生、寰映IMAX影城,海底捞,九毛九,苏宁易购等知名品牌,约4公里内有蓝鲸世界(13万㎡)、万达广场(4.5万㎡)等大型商圈,形成超30万平方米的商业集群。
03
教育配套
学校配套:越秀星汇珑府自带1所18班制幼儿园,邻近地块规划有1所九年制公办36班学校,其中小学24班,初中12班,目前还没开始建设,具体引进的学校也暂未有信息透露出来,另外还规划有深圳外国语楼村第四学校,总规模45个教学班,可容纳2100个学位,预计在2026年秋季开始招生。
04
休闲配套
文娱方面,除了已经开放运营的虹桥公园、光明文化艺术中心等网红打卡地外,在建的科学公园、深圳科技馆(新馆)、深圳国际美术馆(暂定名)等也在日趋完善,再一次擦亮深圳文化名片,备受全城瞩目。
▲深圳科技馆(新馆)实景图
免责声明:部分信息来源于网络,如果侵权,请联系400-823-9396及时删除
✅本项目暂不接受临时到访,过来参观样板房请记得提前来电预约!
①旭辉集团披露,公司7笔境内债整体重组方案获债券持有人会议表决通过,涉及金额合计约100.6亿元; ②旭辉境内债完成重组之际,多家房企债务重组也有了新进展; ③“近期房企债务重组取得积极成果,有利于市场加速出清、推动市场筑底企稳。”
财联社9月15日讯(记者 王海春)又一家房企债务重组,取得重大成果。
9月15日下午,旭辉集团披露,公司7笔境内债整体重组方案获债券持有人会议表决通过,涉及金额合计约100.6亿元。
“自今年5月公布境内债重组框架以来,公司一直积极主动与投资人沟通,寻求投资人理解与支持。”旭辉集团方面表示。
公开资料显示,旭辉今年5月23日公布境内债券重组框架,该公司之后在7月8日发布了优化后的重组方案,将现金兑付比例提升至20%、以资抵债兑付率提高至40%、提高定增股票上限至10.2亿股,缩短留债展期时间至7-8年
业内人士认为,旭辉百亿境内债务重组方案终获通过,体现了投资人对其恢复经营、谋求未来长期发展的信心。
旭辉集团方面介绍,接下来,公司将根据债券持有人会议议案的约定,快速落地相关后续工作,安排债券持有人就其持有的债券在重组方案选项中进行选择及分配。
“市场仍处于筑底期,行业也正在经历深刻转型。未来,旭辉将严格按照重组方案履行企业责任,积极兑现承诺。”旭辉控股CFO杨欣称。
旭辉境内债完成重组之际,多家房企债务重组也有了新进展。
这其中,佳兆业集团(01638.HK)9月15日宣布,其境外债务重组取得关键性进展。通过债务展期、债转股、资产处置等方式,佳兆业对原有债务结构进行系统性优化,重组方案已生效。该公司称,债务重组方案预计将削债约86亿美元债务,债务期限平均展期5年,其在2027年底前无刚性还本压力。
而在9月10日,富力地产(02777.HK)发布了境内债重组方案,方案涉及六笔境内债券,未偿还债券本金余额约122.05亿元。按重组方案,该公司将向债权人提供现金购回、以物抵债、应收账款信托份额抵债等6个选项,最长展期至2035年。
在此之前,龙光境内债以及世茂、禹洲等房企境外债重组,先后获通过。
龙光控股7月9日披露,公司境内债券重组已完成投票,涉及的21笔公司债券及资产支持证券重组议案均获得投资人表决通过,涉及本金余额合计219.6亿元。世茂集团(00813.HK)于7月21日宣布,公司完成经香港高等法院批准的协议安排程序,约115亿美元境外债务重组生效,境外债务重组总债权金额约144亿美元。禹洲集团(01628.HK)则在8月31日发布公告,公司境外债务重组各项条件已获满足,并正式生效,本次境外债务重组涉及总债权金额约66.8亿美元,涵盖美元票据、永续证券及银团贷款等类型境外债务。
据亿翰智库监测数据,2025年上半年,房企负债规模普遍下降,与2024年同期相比,负债规模下降的企业数量有87家。这其中,碧桂园、万科A和融创中国债务降幅较大,较2024年6月末的负债规模降幅均超过10%。另据中指院数据,截至2025年8月,20家出险房企债务重组、重整获批,化债总规模超过12000亿元人民币。
中指院企业研究总监刘水告诉记者,近期房企债务重组取得积极成果,有利于市场加速出清、推动市场筑底企稳,这可以从市场、宏观、债权人态度转变,以及企业推动等方面找到原因。在市场层面,当前房企现金回流仍面临一定压力,房企持有的资产价值回落,其可用于抵债的优质资产减少,使得单纯的资产处置等方式难以解决债务问题,从而加速了债务重组的需求。
其表示,在宏观层面,监管部门推动积极稳妥化解房地产风险,3月份政府工作报告指出,要发挥房地产融资协调机制作用,继续做好保交房工作,这些措施有效防范了房企债务违约风险。同时,去库存政策加速落地,优化存量商品房收购政策,以及专项债收储存量土地政策持续落地,为出险房企盘活资产提供了动力。
“值得一提的是,在当前市场形势下,债权人态度发生了转变。市场调整时间较长,债权人意识到房企债务偿还难度较大,相较于破产清算和资产持续贬值,更倾向于接受重组方案,以提高债务清偿率。而部分债权人在出险房企债务不断换手后持有成本较低,如果重组方案的现金回收价值更具吸引力,他们更愿意接受重组。”刘水称。
另外,在企业重组方案层面,亿翰智库研究研究总经理于小雨指出,考虑到一些企业现金流承压,加之资产价值缩水或已处于抵押、质押状态,因调整而带来的资产被动减值让房企在债务重组选择“削债”,这成为房企当前阶段化解债务问题一种重要方式。
刘水也认为,从债务重组房看,债转股和削债成为主流,它能够实现公司债务规模降低,整体偿债压力得以延后,债转股还同步增加净资产,有利于修复公司资产负债表,为公司经营基本面好转创造条件。
“考虑到长周期内新房市场规模回落,短期内市场仍在调整,资产减值压力犹在,仅延长还款期限,可能面临再次逾期和二次展期的问题,并不能够彻底解决债务危机。因此,削减债务规模可能使得房企改善资产负债表、改善信用表现、提振投资者信心,让房企轻装上阵,增强可持续发展潜力,在发展中寻找解决债务危机的办法,从而促进债权回收,保护债权人、投资人利益。”刘水补充道。
于小雨认为,预计未来一段时间,企业将继续缓解流动性压力,注重债务去化及结构优化,提升偿债能力和抗风险能力,以推动企业走向更加稳健的发展轨道。
声明:本文由入驻焦点开放平台的作者撰写,除焦点官方账号外,观点仅代表作者本人,不代表焦点立场。
