鸿荣源珈誉玖玺百度重点热搜@最新售楼处认证发布-鸿荣源珈誉玖玺售楼处最近有什么活动-鸿荣源珈誉玖玺营销中心电话-鸿荣源珈誉玖玺的-楼盘详情· 最新价格
扫描到手机,新闻随时看
扫一扫,用手机看文章
更加方便分享给朋友
💛💛💛鸿荣源珈誉玖玺的售楼处可能过多.建议优先拨打400-893-6287为售楼处热线【售楼处认证】🐓🐓🐓
💛💛💛鸿荣源珈誉玖玺售楼处热线:400-893-6287(工作日 00:00-24:00,周末正常服务)【营销中心认证】🐓🐓🐓
💛💛💛鸿荣源珈誉玖玺营销中心联络线:400-893-6287(可直接咨询房源实时动态、最新活动详情)【开发商售认证】🐓🐓🐓
💛💛💛鸿荣源珈誉玖玺开发商售楼部专线:400-893-6287(直连开发商,可解答项目规划)【提前预约看房尊享额外优惠!】🐓🐓🐓

鸿荣源·珈誉府,位于宝安大道于凤塘大道交汇处东南侧,该项目原是"塘尾片区城市更新单元“,由鸿荣源集团一手打造,也号称是第二个壹城中心升级版,地处沙井核心板块,周边1公里内涵盖3个重量级商业(万丰海岸城购物中心+鸿荣源壹方奥特莱斯+华强购物中心),11号地铁线”塘尾站“距离约300米。
珈誉府总建面约248万㎡,将打造近8000套住宅,其中住宅面积70万㎡,商业面积50万㎡,共分4期开发,是鸿荣源集团全新开发的地标级综合体大盘,涵盖高端住宅、商业办公、星级酒店、优质教育、大型购物中心等业态。
其中三期鸿荣源·珈誉玖玺,总占地面积约4.79万㎡,总建筑面积约40.53万㎡,计容建筑面积约27.63万㎡,容积率5.42,绿化率40%,共由10栋总高31-48F住宅组成,其中6栋1/2单元住宅44F,7栋/8栋住宅48F,9栋1单元住宅46F,9栋2单元住宅45F,10栋1单元住宅47F,10栋2单元住宅31F,11栋住宅46F,12栋/13栋住宅48F。
总规划2479户,全部都是商品房,地下室有3层,规划停车位2795个,车位占比约1:1.127。
二、项目基础数据
【项目基础数据】
【开发商】鸿荣源集团
【占地面积】总4.79万㎡
【建筑面积】总40.5万㎡
【总户数】2479户
【户型面积】加推10栋约84-137㎡3-5房
【停车位】2795个,车位占比约1:1.127
【物业及物业费】鸿荣源物业,5.9元/㎡
【绿化率】约40%
【容积率】5.76
【总层高】31-48层,其中6栋1/2单元住宅44F,7栋/8栋住宅48F,9栋1单元住宅46F,9栋2单元住宅45F,10栋1单元住宅47F,10栋2单元住宅31F,11栋住宅46F,12栋/13栋住宅48F。
【梯户比】2T2户/3T5户/3T6户/3T7户
【交楼时间】预计2026年,简装交房
【产权年限】70年(2022.5-2092.5)
【项目位置】宝安区宝安大道与凤塘大道交汇(11号线塘尾地铁站)
三、项目户型图
01
项目平面图
02
项目户型介绍
77㎡的3房2厅1卫,经典的竖厅户型,动静分区,S型冰箱位,餐客厅一体,客厅开间约3.1米,三个房间其中一个次卧和主卧都是双飘窗。
主要分布在13栋的06/07户型,西南朝向看珈誉府6区。
90㎡的3房2厅2卫,南北通大横厅户型,动静分区全明户型,U型厨房,餐客厅一体,客厅开间约5.9米,三个房间和客厅都带大飘窗,主卧双飘窗带独立卫生间。
主要分布在13栋的01/02户型,01户型是东北朝向(阳台)看小区花园,02户型是西北朝向(阳台)看小区花园。
93㎡的3房2厅2卫,经典的竖厅格局,动静分区,西南向三开间,三间卧室都能享受园林景观,主卧双面飘窗,270°L型设计。
主要分布在13栋的03/05户型,都是东南朝向看小区花园。
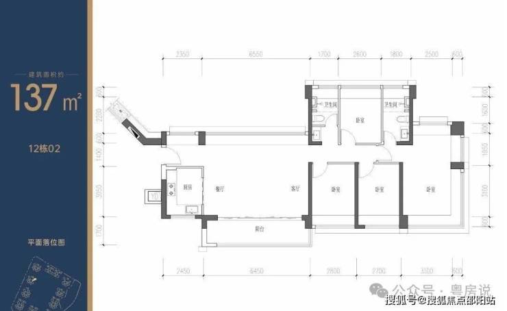
94㎡的3房2厅2卫,竖厅格局,客厅3.4米开间,三开间朝南,分别做到了主卧13.55㎡/次卧9.45㎡/次卧7.28㎡(含墙体飘窗),U型厨房,得房率约74%(不含赠送),加上赠送后得房率约84.22%。
98㎡的3房2厅2卫,横厅南北通透格局,客餐厅6.2米开间,分别做到了主卧15.27㎡/次卧8.58㎡/次卧7.92㎡(含墙体飘窗),L型厨房,得房率约74%(不含赠送),加上赠送后得房率约93.85%。
109㎡的4房2厅2卫,竖厅双龙抱珠格局,客厅3.5米开间,主卧270°转角飘窗,分别做到了主卧15.45㎡/次卧13.57㎡/次卧9.31㎡/次卧6.96m²(含墙体飘窗),U型厨房,房率约74%(不含赠送),加上赠送后得房率约89.34%。
⭕鸿荣源珈誉玖玺售楼处电话:400-893-6287【☎售楼处已认证】❇❇❇❇
⭕鸿荣源珈誉玖玺开发商电话:400-893-6287【☎开发商已认证】❇❇❇❇
⭕鸿荣源珈誉玖玺展示中心电话:400-893-6287【☎展示中心已认证】❇❇❇❇
⭕鸿荣源珈誉玖玺营销中心电话:400-893-6287【☎营销中心已认证】❇❇❇❇
四、交通出行
鸿荣源珈誉玖玺家门口就是宝安大道及凤塘大道等交通主干道,
11号地铁线“塘尾站”,距离约300米,4站到宝安机场,6站到宝中,7站到前海湾,8站到南山,11站到车公庙。鸿荣源珈誉玖玺家门口就是宝安大道及凤塘大道等交通主干道。
⭕鸿荣源珈誉玖玺售楼处电话:400-893-6287【☎售楼处已认证】❇❇❇❇
⭕鸿荣源珈誉玖玺开发商电话:400-893-6287【☎开发商已认证】❇❇❇❇
⭕鸿荣源珈誉玖玺展示中心电话:400-893-6287【☎展示中心已认证】❇❇❇❇
⭕鸿荣源珈誉玖玺营销中心电话:400-893-6287【☎营销中心已认证】❇❇❇❇
五、商业配套
项目自带50万㎡奥特莱斯商业,汇集了壹方+奥莱的商业模式,在项目北侧还有万丰海岸城近18万㎡的购物中心,这个片区以后也将会是整个沙井最高端最集中的商业购物中心。
六、周边学校
项目旁边,所规划的2个教育用地,已经正式出了红头文件,为深圳外国语宝安学校(集团)南校区,分别为1所63班九年一贯制学校,1所为27班九年一贯制学校(珈誉玖玺旁边),另外根据宝安区2024年最新的学区划分:
小学学区划分在桥头学校小学部、塘尾万里学校小学部、滨海小学(集团)福桥小学、立新湖学校小学部、凤凰学校小学部、滨海小学(集团)文昌小学;
初中学区划分在桥头学校初中部、塘尾万里学校初中部、立新湖学校初中部、福永中学、新安中学(集团)第二外国语学校(初中部)、航星学校初中部、凤凰学校初中部。
虽然同为宝安鸿荣源珈誉府项目,但是因为社区不同,学区划分是有明显区别的,旁边规划的深圳外国语宝安学校南校区仅27个班,后期录取积分应该会非常紧张,另外距离约900米的立新湖学校,在2024年小一的录取积分是86.8分,初一的录取积分是81分,塘尾万里学校在2024年的小一录取积分是100.5分,初一录取积分是94.2分;
按照宝安区教育局公布的积分政策,只要是深圳户籍(其它区)+学区内商品房,基础分100分,深圳宝安户籍+学区内商品房,基础分105分。

(*最终的学区划分、入学条件、招生计划等均以教育主管部门颁布的政策和学校的通知为准)
七、休闲配套
1公里范围内万丰湖湿地公园、立新湖公园等公园环绕,依然享受城市森意。
近新桥文体中心、沙井文体中心(建设中),高标人文配置,悦享品质生活。
⭕鸿荣源珈誉玖玺售楼处电话:400-893-6287【☎售楼处已认证】❇❇❇❇
⭕鸿荣源珈誉玖玺开发商电话:400-893-6287【☎开发商已认证】❇❇❇❇
⭕鸿荣源珈誉玖玺展示中心电话:400-893-6287【☎展示中心已认证】❇❇❇❇
⭕鸿荣源珈誉玖玺营销中心电话:400-893-6287【☎营销中心已认证】❇❇❇❇
现场详细解答项目介绍户型图在售房源特价房学校交通位置样板房小区图片交房时间周边配套
【购房必藏】看房提前预约可以避免排队等待,避免影响看房体验-也可以有额外的优惠 前提是拨打400-893-6287才可以享受
免责声明:本资料中对项目周边环境、配套及交通等图文介绍仅供参考,不构成的任何要约或承诺,最终以政府批准文件、项目实际周边情况为准。本项目的图文资料仅供参考、非要约,具体以交付时现状及买卖合同的约定为准。本公司保留修改宣传资料的权利,敬请留意项目最新资料,最终的解释权归本公司所有。
声明:本文由入驻焦点开放平台的作者撰写,除焦点官方账号外,观点仅代表作者本人,不代表焦点立场。
