热搜焦点→中建鹏宸云筑Ai热搜24小时电话→2025八月最新房价-楼盘详情-折扣-户型图-容积率-配套详情@热线售楼处中心
扫描到手机,新闻随时看
扫一扫,用手机看文章
更加方便分享给朋友
◆开发商营销中心诚挚邀请,一键预约,尊享内部独家折扣!匠心独运的精品项目,恭候您的品鉴与选择。
中建鹏宸云筑营销中心售楼处24小时电话:400-873-0112 现场详细解答丨项目介绍丨户型图丨在售房源丨特价房丨学校丨交通位置丨样板房丨小区图片丨交房时间丨周边配套丨地铁丨
最新消息
龙华梅林关,中建鹏宸云筑加推西地块8栋楼尊单位共154套⏰预计8月22日取证,8月30日开盘
目前开启诚意登记
登记即享额外开盘99折,砸金蛋礼品多多等活动
预计月中开放实体样板间,
🏠约103平(3+1房)1户东南,2户西南,91套
🏠约118平(3+1房)1户东南,31套
🏠约139平(3+1房)1户西南,31套
西南看水库,东南无遮挡
这次也是鹏宸云筑西地块的首推栋数,高32层,2梯5户,全南向户型设计,跟6号楼差不多,但是有彻底无遮挡湖山景观资源,特别是其139m²的4房户型更是整个项目的收官之作,仅有31套,价格方面可以参考今年3月份推出的东地块6栋,备案均价6.13万/m²,折后均价约5.7万/m²,预估开盘价格520万起,计划在2027年10月份带高品质精装交房,配置全屋东芝中央空调!
项目区域及楼盘介绍
鹏宸云筑,由中建集团打造,由总占地面积约4.33万㎡,总建筑面积约31万㎡,计容建筑面积约22.6万㎡,容积率5,绿化率40.01%,分2个地块开发,共由10栋总高32-47F的住宅组成,其中1栋住宅45F,2栋住宅44F,7栋住宅47F,3栋/5栋/6栋/8栋/10栋32F,11栋住宅46F,4栋规划商业,另规划有1所12班制的幼儿园。
整个项目规划户数为1992户,其中东区1016套,西区976套,全部都是规划的商品房,涵盖了多种户型设计。其中,6栋、8栋、9栋和10栋的高层住宅采用2梯5户设计,3栋和5栋为2梯6户,而1栋、2栋、7栋和11栋的超高层住宅则采用3梯6户设计。
在配套设施方面,项目地下两层,规划了2155个车位,车位与户数之比约为1:1.08,确保了住户的停车需求。
中建鹏宸云筑,共分3期开发建设,本次将推的是西地块8栋住宅,总高32层,2梯5户设计,总共154套,面积有102-118平的4房2卫,139平的4+1房2卫户型。
楼盘基础信息
1、开发商:中建壹品投资发展有限公司(中建三局)
2、物业公司:中建壹品物业运营有限公司
3、物业管理费:4.98元/㎡
4、总占地面积:4.33万/㎡
5、总建筑面积:31万/㎡
6、容积率:≤5.37
7、绿化率:40%
8、产权年限:2024年3月5日-2094年3月4日(70年)
9、总户数:1992户
(东区1016户,西区976户)
10、总栋数及楼高:10栋,32-47层
11、梯户比:2梯5户/2梯6户/3梯6户
12、车位数:2155个
(东区1059个,西区1096个,车位与幼儿园共享,东西区停车场不连通)
13、车位占比:1:1.08
14、交楼时间:东区3/5栋(2027年6月30日)东区1/2/6栋(2027年10月30日),西区8栋(2028年4月30日)
15、交楼标准: 精装
平面图及户型图
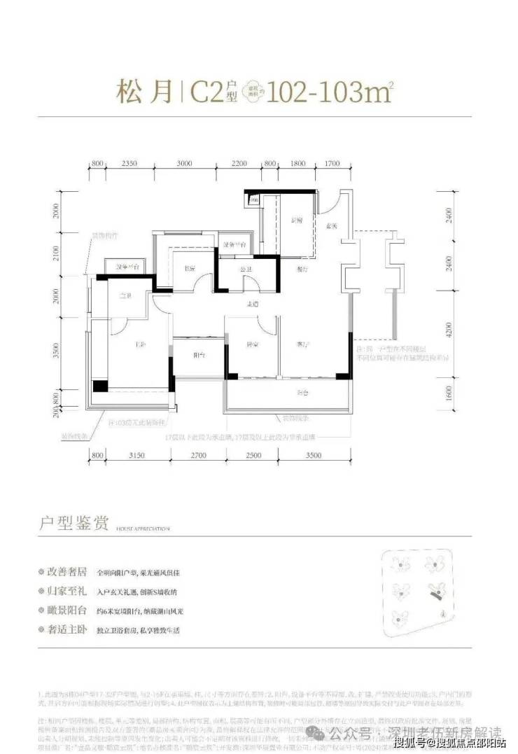
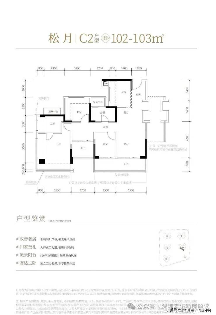
102-103㎡的4房2厅2卫(C1-C2户型),设计的是经典竖厅格局,进门入户玄关,客厅3.5米开间,LDKB一体化,S墙设计预留冰箱卡槽位,动静分区,四开间朝南,4个卧室分别做到了主卧17.98㎡/次卧8.37㎡/次卧8.1m²/次卧7.75㎡(包含墙体飘窗),L型厨房,公卫干湿分离带1个约2m²的设备平台,得房率约81%(不含赠送),客厅连接次卧出9.6m²的观景大阳台,东南或西南朝向。套内面积83.43m²+赠送面积23.86m²=实际使用面积107.29m²,加上赠送后得房率约104.16%。
中建鹏宸云筑营销中心售楼处24小时电话:400-873-0112


118㎡的4房2厅2卫,设计的是横厅南北通透格局,进门赠送约4.6㎡的入户玄关(不计算在户型图内),客餐厅6.35米开间,LDKB一体化设计,4个卧室分别做到了主卧22.5㎡/次卧11.56m²/次卧9.52㎡/次卧8.25㎡(包含墙体飘窗),主卧带设备平台,客厅连接次卧出6.25米长大阳台,L型厨房,得房率约81%(不含赠送),阳台主朝东南向。套内面积95.58m²+赠送面积31.04m²=实际使用面积126.62m²,加上赠送后得房率约107.3%。
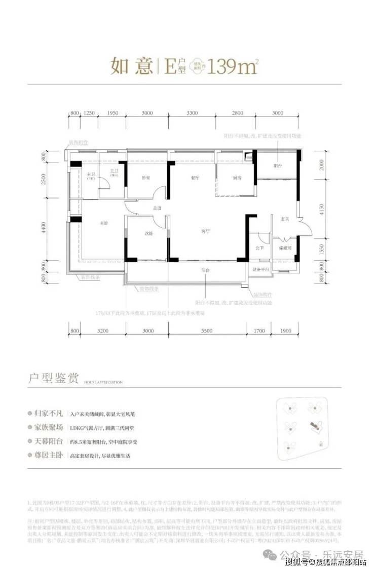
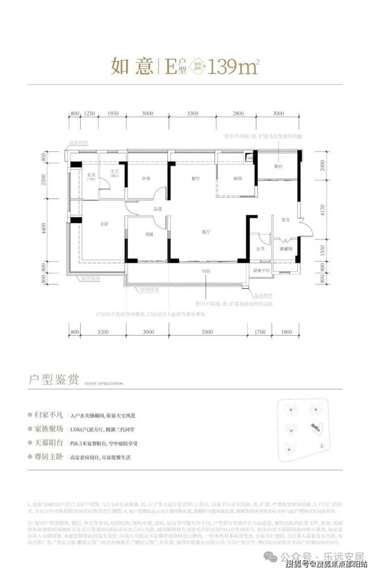
139㎡的4+1房2厅2卫,设计的是竖厅南北通透格局,进门赠送约5.2㎡的入户玄关(不计算在户型图内),客厅5.5米开间,LDKB一体化方厅设计,5个卧室分别做到了主卧27.56㎡/次卧10.2m²/次卧9.9㎡/次卧9.9㎡/次卧4.46m²(包含墙体飘窗),L型厨房,得房率约81%(不含赠送),客厅连接次卧出13.6m²的观景大阳台,主朝西南向。套内面积112.59m²+赠送面积31.98m²=实际使用面积144.57m²,加上赠送后得房率约104.01%。

中建鹏宸云筑营销中心售楼处24小时电话:400-873-0112

【好地段】港深科创中轴,梅林关&华南数字超总站位
(1)港深科创中轴,串联五大产业总部基地
港深科技中轴之上,向南连接河套深港科技创新合作区、福田CBD,向北连接坂雪岗科技城,享有龙华福田双中心配套服务。
(2)梅林关片区700亿投资,区域蝶变在即
龙华七大重点片区之一,投资700亿元,改造占地面积4.63平方公里,将新增开发量达180万平方米,中建三局集团有限公司深度参与梅林关片区开发运营,推动片区年总产值达1500亿,打造“大湾区数字经济核心引领区、数字科创先锋示范区”。
(3)华南数字超级总部基地,湾区高密度数字集群
对标深超总、腾讯企鹅岛及香蜜湖国际金融中心,四大微城市之一,产学研商住定位,世界500强海克斯康已落户,已集聚35+龙头名企,打造湾区数智产业集群,数字产业集群度达95%,驱动板块加速蜕变。
【好配套】全维度配套服务,进阶改善首选
(1)多维交通路网,2站福田/3站深圳北
距地铁10号线南坑站C出口直线距离约600米,2站进福田,5站到岗厦北;民乐路衔接横岭立交(预计2026年开通)转梅观快速,南通福田CBD核心区,北接深圳北站;
(2)约3公里繁华中轴主场,一站式优质生活
近享8号仓奥特莱斯、星河WORLD COCOPARK,约3km(直线距离)范围内享超50万㎡繁华商业;北站/红山城市级“五馆一体”、两大市级三甲医院等,满足日常生活所需。
(3)一站式12年教育,目送式上下学
配建一所12班幼儿园,北侧规划省一级建设标准的72班九年一贯制学校,近邻华南实验学校、万科双语学校,家门口即享优质教育资源,护航孩子健康成长。

【好环境】核心区稀缺湖山资源,临水揽山景观
小区楼下有深圳核心区稀缺的湖景资源——民悦公园(升级改造中),近揽民治水库湖景,远眺塘朗、银湖山景观,8栋楼尊一线前排景观位置,视线开阔,景观优越,深圳少有的稀缺湖山住宅。

【好社区】建面约31万㎡人文高阶住区,纯粹圈层
总占地约4.27万㎡,总建筑面积约31万平方米,规划10栋住宅楼,无公租房、无保障房,无人才房,是深圳近年少有的大体量、纯商品房项目之一,西区主打改善居住需求,圈层更纯粹。

【好园林】深圳少有岭南风园林,全龄友好社区
深圳少有岭南风园林,西区参考借鉴岭南四大园林——顺德清晖园,以传承岭南元素、重塑岭南生活艺术,给业主打造一处独有的、专属的岭南文化特色轻奢山水雅集居所。
聚焦全龄、全时段的服务体系,园林内设置高定奢享主入口门楼、中心庭院、折桂轩、慢跑道、松果乐园等,造就全龄友好型社区。


项目周边配套
学校配套:项目自带1所12班制幼儿园,北侧规划有一所广东省一级学校建设标准的九年一贯制72班学校待建,据传是深实验学校进驻,根据龙华教育局2024年最新的学区划分,小初学区都是划分在华南实验学校。
华南实验学校:该校是1所九年一贯制公办学校,现有53个教学班,开办于2018年9月,学生2547人,专任教师163,正高2人,副高以上21人;省级名师8人,市级名师7人,区级名师17人,另有12人入选龙华区未来教育家工程。

地铁配套:10号地铁线“南坑站”距离约500米,22号地铁线“横岭站”距离约700米,2站到福田冬瓜岭,4站到岗厦北,6站香蜜湖,7站车公庙。约2.5公里还有深圳最大北站枢纽,快速通达深圳各大区域。
商业配套:鹏宸云筑周边3公里内汇聚超50万㎡商业体量:北侧步行可达8号仓奥特莱斯,直线距离内布局星河COCO Park、COCO City、红山6979、龙华印象汇等大型综合体,满足高端购物与日常消费。
项目自带约3500㎡底商,西侧紧邻星河World商业集群,涵盖办公、零售、餐饮等多业态。此外,深圳北站商圈、坂田万科广场等均在10分钟车程内,形成多层级商业网络。
关于中建鹏宸云筑最新动态信息,如:房价,主力户型面积,最低折扣,等等,剩余户型楼层,去化率,几号地铁哪个地铁口,周边规划,项目的优劣势以及学校的配套等等都可以致电售楼处进行了解,我们将会安排内场专业置业顾问为您答疑解惑!
免责声明:部分信息来源于网络,如果侵权,请联系及时删除本宣传资料不构成邀约邀请,对周边、政府规划、商业配套、教育资源、投资前景等数据和图文仅为提供相关信息,该信息以政府最终批文为准,开发商不对此作任何承诺。买卖双方的权利义务以双方签订的买卖合同约定及附件、实际交付为准,本公司保留对宣传资料修改的权利,敬请留意最新资料。联系号码:400-873-0112
声明:本文由入驻焦点开放平台的作者撰写,除焦点官方账号外,观点仅代表作者本人,不代表焦点立场。
