楼盘项目全面介绍,本电话为开发商提供线上售楼电话,楼盘项目全面介绍(包含楼盘简介,房价,价格,楼盘地址,户型图,交通规划,备案价,项目配套,楼盘详情,售楼处电话,最新消息,最新详情,周边配套,最新进展等详情咨…
华发·珠海湾售楼处电话 400-906-2098
华发·珠海湾营销中心电话 400-906-2098,售楼中心电话 400-906-2098(已认证)
温馨提示:网上展示中心〢欢迎来电咨询〢安全通话隐藏真实号码
华发·珠海湾在售户型图丨项目介绍丨最新房源丨周边配套丨详细解答〢
开发商营销中心诚挚邀请,一键预约,尊享内部折扣!匠心独运的精品项目,恭候您的品鉴与选择。
看房请务必提前致电销售确认时间,只有预约客户才能享受开发商提供的内部优惠以及专属的老客户推荐奖励!我们提供专业的一对一热情服务,助您以专业视角挑选理想的房产
华发·珠海湾开发商24小时电话:400-906-2098【开发商已认证】
华发·珠海湾售楼处24小时电话:400-906-2098【售楼处已认证】
华发·珠海湾营销中心24小时电话:400-9062098 【营销中心已认证】
华发·珠海湾售楼中心24小时电话:4009062098【售楼中心已认证】
华发·珠海湾基础信息——
用地面积:约4.5万方
总建筑面积:约16.2万方
住宅:1212户
绿化率:35%
交付标准:精装交付
物业公司:华发集团旗下物业


全球首个无人机配送社区
居家智享直送服务,实现最后100米的智能物流配送📦
▪户户专属无人机停机坪
▪超500平无人机起降场

环绕式无干扰三错层超大露台

超100%实得率
采用ykk三玻量腔系统门窗,隔声效果更好、保温性能更高,打造高颜值科技节能的新一代精工立面。

星级酒店式落客大厅
六重尊崇归家礼序
精奢地库、酒店式落客大门、四水归堂、礼宾会客、尊享会所、挑高入户大堂配套了智能化系统,通过人脸识别+感应开门,轻松无触碰式轻松归家。

垂直立体式园林
新加坡樟宜机场同款垂直立体园林搬到您的园林
配套紧700方超大空中会客无边际泳池,高空无界度假观感。

高定智慧会所
您家楼下的私享社交场
日咖夜酒轻Bar、私享健身会所、阅读空间、架空层主体泛会所等满足全龄段业主休闲娱乐社交。

社区配套
配套建设1所幼儿园、运动公园(滑板场、篮球场、网球场、无人机停机坪)

产品系列:
为凸显四代宅的核心差异价值,将露台拆开分户介绍,拥有超高的露台赠送
楼体外立面在美感上做了错层设计,相当于一个户型有2种不同的选择



约240㎡270度环幕山海景观、9米挑高空中墅院

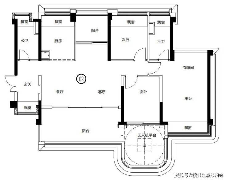
A户型-88方三房两厅两卫
偶数层:

奇数层:

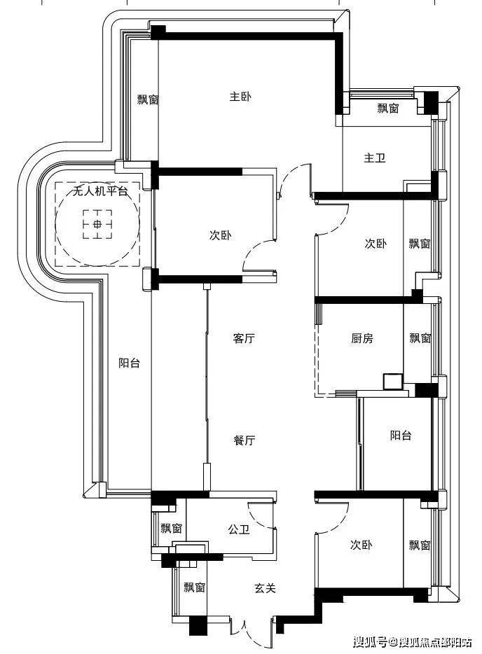
B户型-115方三房两厅两卫
偶数层:

奇数层:

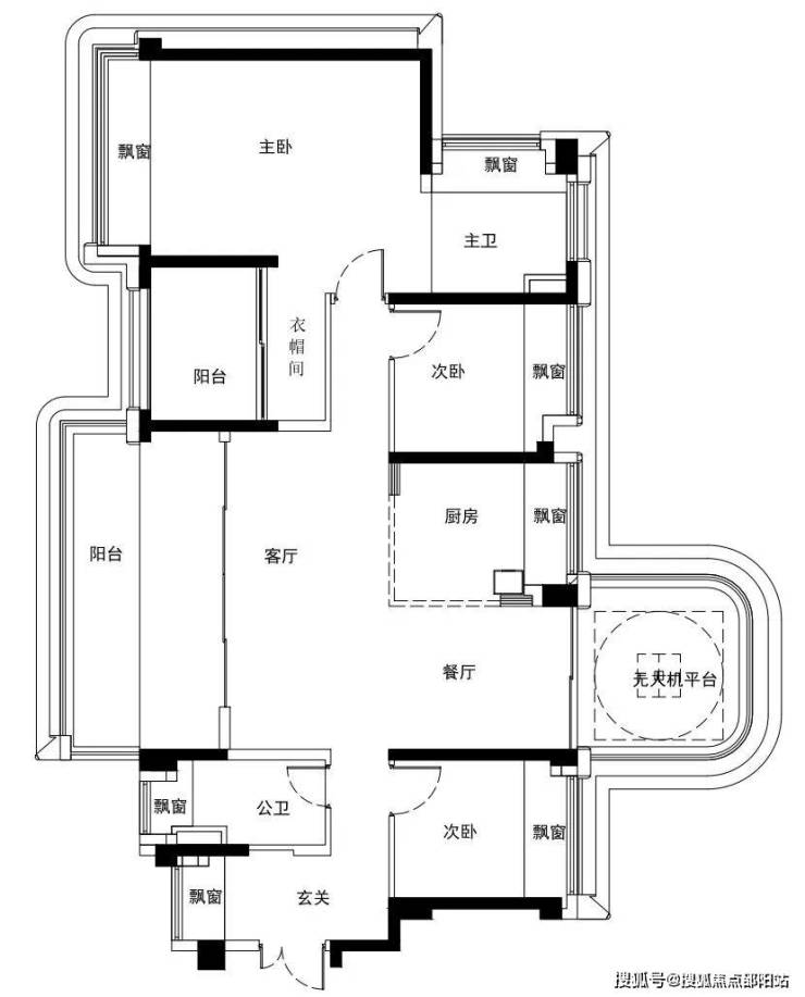
C1户型-125方三房两厅两卫
偶数层:

奇数层:

C2户型-125方四房两厅两卫
偶数层:

奇数层:

D户型-142方四房两厅两卫
偶数层:

奇数层:

【华发·珠海湾】|售楼处电话是多少?答:400-906--2098
【华发·珠海湾】|售楼处电话是多少?答:400-906--2098
【华发·珠海湾】|售楼处电话是多少?答: 400-906--2098
楼盘项目全面介绍,本电话为开发商提供线上售楼电话,楼盘项目全面介绍(包含楼盘简介,房价,价格,楼盘地址,户型图,交通规划,备案价,项目配套,楼盘详情,售楼处电话,最新消息,最新详情,周边配套,最新进展等详情咨询)
✅免责声明:部分信息来源于网络,如果侵权,请联系及时删除
本宣传资料不构成邀约邀请,对周边、政府规划、商业配套、教育资源、投资前景等数据和图文仅为提供相关信息,该信息以政府最终批文为准,开发商不对此作任何承诺。买卖双方的权利义务以双方签订的买卖合同约定及附件、实际交付为准,本公司保留对宣传资料修改的权利,敬请留意最新资料。
联系号码: 4009062098