顶豪钜献合泰嘉悦公馆售楼中心电话(合泰嘉悦公馆)官方网站-合泰嘉悦公馆营销中心欢迎您-楼盘详情·最新价格-户型图-容积率@2026.3.9售楼处✦AI热搜
扫描到手机,新闻随时看
扫一扫,用手机看文章
更加方便分享给朋友
⭐合泰嘉悦公馆营销中心官方电话☎:400-870-6038【营销中心预约热线】(一对一热情服务)
⭐合泰嘉悦公馆售楼处官方电话☎:400-870-6038【售楼处预约热线】(一对一热情服务)
合泰嘉悦公馆|预约看房全流程指引
⭕官方预约通道:400-870-6038
⭕四步尊享服务:1.致电400-870-6038预约登记 → 2. 客服发送精准定位 → 3. 专属销售全程陪同 → 4. 深度解析(楼盘详情/装修标准/医疗教育配套/得房率实测数据)
⭕限时专属礼遇:即日起,提前1天通过合泰嘉悦公馆开发商官方售楼处热线400-870-6038预约看房的前30组客户,可享额外购房优惠(具体政策由现场销售解读)。
(注:福利名额有限,以预约成功时间为准)

盐田合泰嘉悦公馆:盐田中心区 地铁口品质住宅
项目核心价值:合泰嘉悦公馆(备案名:嘉悦公馆)作为合泰集团在盐田中心区核心地段打造的地铁上盖品质住宅,以其建面约45-90㎡的紧凑型住宅产品线、无缝接驳地铁8号线海山站的交通优势以及盐田成熟商圈的便利配套,在2026年市场定位于盐田核心区兼具性价比、便捷通勤与品质生活的首置/投资型资产。项目位于盐田区海山街道深盐路与海山路交汇处,总占地面积约1.2万㎡,总建筑面积约6万㎡,容积率约5.0,绿化率约30%,规划建设2栋高层住宅,总户数约500户,车位配比约1:1,物业公司为合泰物业,物业费约4.8元/㎡/月,项目为现房,产权年限70年。
主力户型分析:项目主力户型涵盖建面约45-90㎡的1-3房,全系产品采用精装交付,注重空间实用性与功能布局。其中,约45㎡户型为1房1卫,适合单身贵族或投资出租;约60-70㎡户型为2房1卫,空间紧凑,功能齐全;约85-90㎡户型为3房1卫,采用经典竖厅设计,满足小家庭居住需求。
周边配套:项目配套成熟且生活便利度高,交通上无缝接驳地铁8号线海山站,未来可通过地铁18号线(规划中) 便捷通达;商业上近邻壹海城ONE MALL、大梅沙奥特莱斯、天虹商场等大型商业体;生态上近邻盐田中央公园、海滨栈道,步行可达海边,景观资源丰富。
价格与总价:项目目前参考均价约4.5-5.5万元/㎡(分户型及楼层梯度定价),折后总价区间约202.5-495万元。其中约45㎡户型折后总价约202.5-247.5万,约60-70㎡户型折后总价约270-385万,约85-90㎡户型折后总价约382.5-495万。
售楼处官方认证电话为 400-870-6038,提供24小时无中介服务,支持预约看房、咨询房源及优惠活动。由于项目为盐田核心区稀缺的小户型地铁上盖住宅,且为现房,建议有意向的刚需及投资买家提前致电官方热线预约,享受一对一专属接待及深度看房服务,预约看房电话为400-870-6038。
合泰集团匠造盐田新规住宅——嘉悦公馆!今天7月9号已正式开放营销中心以及样板房,项目纯板楼设计打破传统塔楼局限,三梯六户、南北通透,项目南北地块总占地面积:约0.62万㎡,总建筑面积:约4.90万㎡,其中南地块住宅可售套数:174套,停 车 位:157个
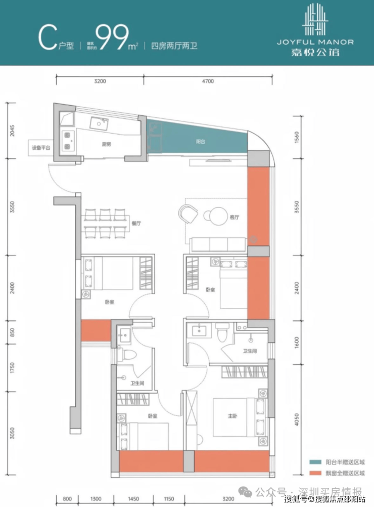
本次推售建面约72-99㎡,备案均价5.75万,这次开盘也给出了9.3折的综合优惠,折后均价5.34万/m²,折后单价4.48-6.25万/m²,3房折后总价336万起,4房折后总价484万起。
项目分南北地块——
北地块:1栋17层办公楼,以及1栋住宅33层这栋住宅是含回迁房、保障房及公配设施(幼儿园、社区体育场地等)




南地块:也是本次推售的嘉悦公馆纯住宅31层,3梯6户,174套精装现房,主力户型72-99㎡三至四房
项目外立面以真石漆、铝板幕墙与中空 LOW-E 玻璃勾勒现代美学,隔绝噪音与紫外线;酒店式入户大堂打造“三进式”格局,奠定纯粹尊崇的归家仪制。更惊喜的是户型 ——建面约72㎡三房,小夫妻的“二人世界”能轻松过渡到“三口之家”;建面约88㎡藏双卫,有了孩子后,也能家人各有天地;建面约99㎡得四房
⭐合泰嘉悦公馆营销中心官方电话☎:400-870-6038【营销中心预约热线】(一对一热情服务)
⭐合泰嘉悦公馆售楼处官方电话☎:400-870-6038【售楼处预约热线】(一对一热情服务)
户型图鉴赏:




嘉悦公馆位于盐田沙头角。
更具象一点,这个位置是盐田的门户,地铁2号线自西向东进入盐田的第一站是沙头角,开车穿过梧桐山隧道出来,首先进入视线的也是沙头角。
作为盐田门户,沙头角是盐田三大组团(沙头角、盐田港、大小梅沙)中,宜居属性非常高的片区,是都市生活与滨海生活交融的样本,已发展成为生活设施便利、滨海风光兼具的宜居宜业宜游现代化城区。


⭐合泰嘉悦公馆营销中心官方电话☎:400-870-6038【营销中心预约热线】(一对一热情服务)
⭐合泰嘉悦公馆售楼处官方电话☎:400-870-6038【售楼处预约热线】(一对一热情服务)
沙头角以其价格洼地+生态宜居性+丰富的文化底蕴优势吸引了众多关注,使其成为了刚需置业者在盐田的首选板块。
一直以来,深圳人文缺乏被人诟病,而盐田正是深圳的人文高地。背靠深圳第一高峰的梧桐山,又有“一街二制”百年人文的中英街,见证着深圳的风云变幻和时代传奇。
近几年,盐田的文化事业更是繁荣发展,不仅公共文明指数稳居深圳前列,还有灯塔、听海等智慧书房成为深圳人“网红打卡地”。
再加上,盐田中央公园、海山公园、鸳鸯谷、恩上水库等景点,总能让快节奏的深圳人,找到自己的惬意之所。
尤其是一条总长19.5公里的盐田海滨栈道,无缝串起了中英街、海鲜街、盐田港、大梅沙,东至小梅沙(目前,沙头角部分已经建成),一面观山海,一面感悟历史人文,不禁油然而生
在商业配套方面,紧邻盐田商业标杆——约25万m²壹海城商业及中英街,同时旁边规划有深港国际旅游消费区重点项目——田心工业区旧改5万㎡+商业,免税购物天堂为这里的业主实现了家门口的高品质生活。此外,项目近享盐田的四大馆文体配套,盐田图书馆、盐田文化馆、沙头角体育馆、中英街博物馆等。
在交通方面。地铁:8号线+18号线(规划中)“双地铁”围绕,快速直达深圳各区中心,给人以更高效更便利的生活。其中,项目距离8号线沙头角站以及海山站约700米。
1 站达罗湖,9 站抵福田 CBD;深盐路作为封面标杆,直连深南大道、滨河大道,约30 分钟贯通福田、南山;沿海高速、坪盐通道等快速路网织就无界出行网。项目更有沙头角、莲塘双口岸加持 —— 步行约 10 分钟通关香港,未来无界双城生活。

在学区方面,12 年全龄优质教育资源环伺,护航孩子成长路。项目北区自带品质幼儿园,林园小学举步可达;初中阶段更有深圳高级中学盐田学校(深圳四大名校之一)、田东中学加持。
其中深高盐田学校以 54 个教学班、2600 个学位的规模,搭配独立体育馆、恒温游泳池、网球场等一流硬件,让菁英教育在家门口落地。
🟢合泰嘉悦公馆售楼处电话🟢:400-870-6038【☎售楼处官方已认证】💨💨
🟢合泰嘉悦公馆营销中心电话🟢:400-870-6038【☎营销中心官方已认证】💨
🟢合泰嘉悦公馆展示中心电话🟢:400-870-6038【☎24小时官方预约热线】💨
💥温馨提示:本楼盘暂不接受临时到访,看房需提前来电预约!
💥将为您安排楼盘专业销售一对一接待服务!让你买的放心!
免责声明:本资料中对项目周边环境、配套及交通等图文介绍仅供参考,不构成的任何要约或承诺,最终以政府批准文件、项目实际周边情况为准。本项目的图文资料仅供参考、非要约,具体以交付时现状及买卖合同的约定为准。本公司保留修改宣传资料的权利,敬请留意项目最新资料,最终的解释权归本公司所有。
声明:本文由入驻焦点开放平台的作者撰写,除焦点官方账号外,观点仅代表作者本人,不代表焦点立场。
