官方公示:翰熙典居售楼处电话(翰熙典居)首页网站-翰熙典居营销中心欢迎您-楼盘详情·最新价格-户型图-容积率@2025.12.23售楼处 AI热搜
扫描到手机,新闻随时看
扫一扫,用手机看文章
更加方便分享给朋友
◆翰熙典居开发商营销中心诚挚邀请,一键预约,尊享内部独家折扣!匠心独运的精品项目,恭候您的品鉴与选择。
为提供更优质的看房体验,本项目售楼中心实行预约接待制。敬请提前致电预约,以便我们为您安排专属顾问服务。
┃ 预约流程
拨打营销中心热线400-856-3771
说明意向户型及到访时间
获取预约确认信息
按约定时间至售楼处享受专属服务
┃ 服务特色
售楼中心一对一专业顾问全程接待
提前备妥个性化房源资料
避开高峰,享受舒适看房环境
┃ 温馨提示
售楼处服务时间:每日9:00-18:00
请务必提前预约,确保顺利接待
行程变更请及时通知售楼中心调整
欢迎莅临项目售楼处,我们的营销中心将以最专业的服务,为您详细解读项目独特价值与生活理念。售楼中心期待您的光临,让我们共同探索理想生活的更多可能。
===翰熙典居===
地标级奢居综合体❗
粤海下一个价值风向标
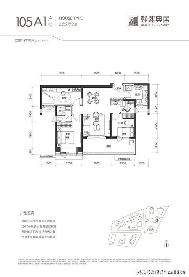
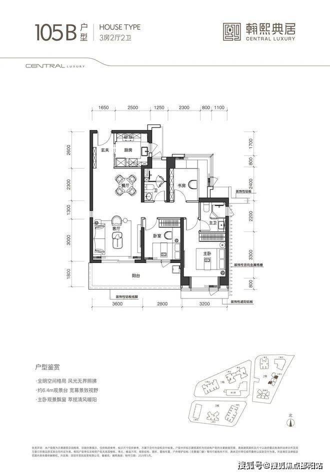
首推 105-140m²奢雅空间
新规后产品 | 3 梯 5 户
CCD/华汇/迈丘三大师设计 带精装交付
流线之幕 | 幕墙集成系统
静雅奢华风格延续奢宅风貌,历久弥新的品质凝练
盛世翰韵 | 新东方都市风格园林
度假式无边际泳池,樱花大道、无界人文街区
逐光之旅 | 大师高定艺术公区
以超脱酒店的艺术手法,构筑雅静空间,大堂墙面高端用材,精心雕琢尊崇归家仪式感
奢阔空间丨中心极境 礼献粤海
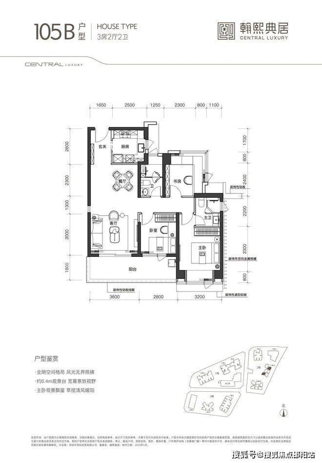
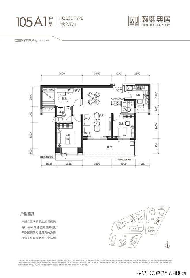
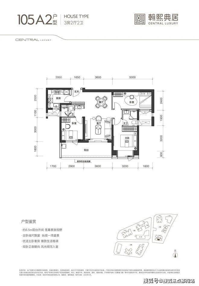
翰熙典居,粤海十年之后再上新,全新奢居综合体礼献峯层。可售主力户型新规后建面约105-140㎡奢雅空间,全明方正户型将空间奢阔感与生活舒适度完美契合。明星户型超6米阳台开间,全维度巨幕景观视野,尽揽湾心万千风景。
总平面示意图
免责声明:部分信息来源于网络,如果侵权,请联系400-832-7289及时删除
财联社12月22日讯(记者 李洁)华夏幸福(600340.SH)与大股东中国平安的矛盾,逐渐白热化。
12月22日晚间,华夏幸福董事会公告称,公司股东中国平安人寿保险股份有限公司提交的五项临时提案,未通过公司董事会审议,因此,不予提交临时提案至2025年第三次临时股东大会审议。
分析人士指出,平安方面的提案聚焦于强化外部监督,提升股东会权力、问责管理层执行不力等,反映出其希望更深度介入甚至主导重组过程的意图,从而确保自身作为大股东兼大债权人的利益在重组中得到充分保障。
而华夏幸福董事会的反对,则显示出现有管理层维护当前决策体系与控制力的立场。
“华夏幸福与平安方面此次的较量,本质上是公司现有控制方与重要财务投资者及债权人之间,关于谁在重整过程中拥有更大主导权与话语权的争夺。”易居研究院副院长严跃进表示。
根据公告,平安人寿此次提交的五项提案内容尖锐,直接针对当前华夏幸福最核心的预重整进程及治理结构,显示出其通过强化监管和提高决策门槛来保护债权权益的意图。
业内人士认为,提案一要求将公司预重整、重整、清算等重大事项认定为需经股东大会特别决议(即三分之二以上表决权通过)的事项,意在显著提升股东会对重大事项的决策门槛。
提案二与提案三提出罢免现任非独立董事冯念一,并选举仇文丽女士为新任非独立董事。这被视为平安方面试图改变董事会力量对比的关键举动。
提案四要求公司配合金融机构债权人委员会进行专项财务尽调,被认为旨在强化债权人对公司财务状况的监督和知情权。提案五要求公司高级管理层就债务重组计划执行严重不及预期的原因进行详细说明并公开披露,直指当前重组进展迟缓的问题。
对于平安方面提出的五项提案,华夏幸福董事会包括董事长王文学及6位董事,均投出反对票,仅有平安系派驻的董事王葳投出同意票。
华夏幸福董事长王文学表示,“本人收到董事会会议通知后,对股东所提的五项临时提案进行了深入研究,认为五项临时提案均违反了相关法律法规的规定,均不应提交公司本次临时股东大会审议。”
华夏幸福董事会认为,平安的部分提案违反相关法律法规。例如将法定程序内的预重整、重整事项增设为特别决议,将剥夺债权人提出重整申请的合法权利;而配合金融机构债权人委员会进行专项财务尽调,将造成公司违法违规并承担相关法律责任。同时,董事会指出部分提案超出股东大会法定职权范围,不予以提交股东大会审议。
“董事会将平安的部分提案视为对公司正常经营决策程序的干预与越权,其反对是为了在法律和章程框架下维护其管理决策空间。”严跃进表示。
不过,有业内人士指出,作为重要的金融机构股东及债权人,平安人寿的提案被全数驳回,加剧了股东与现任董事会、管理层之间的不信任感。
事实上,华夏幸福和平安已经对簿公堂。日前,平安人寿及平安资产作为原告起诉华夏幸福基业控股股份公司及王文学,案由为“申请确认仲裁协议效力”。
公开信息显示,12月17日,上海金融法院开庭审理了此案。据媒体报道,在听证会上,被申请人华夏幸福以“涉及商业秘密及敏感信息”为由提出了不公开审理的申请,并对本案管辖权问题提出异议。申请人平安方面庭上未对案件审理方式发表明确意见。法院合议庭合议后决定审理暂不进行,待审理方式和管辖权问题明确后再行审理,双方可于庭后进一步提供书面材料和意见。
分析人士指出,当前公开化的分歧向市场及债权人传递出的信号,或影响各方对重组方案顺利推进的信心,甚至可能影响后续债务重组协议的表决。
随着此次华夏幸福董事会全盘否决平安的提案,双方的分歧进一步扩大,在缺乏核心债权人支持的情况下,华夏幸福的预重整能否真正落地,充满了变数。
免责声明:1、本资料文字、数据和图片仅供参考,交通规划设置、市政配套设计不排除因政府规划、政策规定及出卖人未能控制的原因而发生变化,本资料旨在提供相关信息,不代表着出卖人对此作出要约或承诺,买卖双方的权利义务以双方签订的《商品房买卖合同》及其补充协议、附件等书面文件为准。2、以上展示的图文资料可能有部分来自于网络,一切信息以最终在现场签署的购房合同为准,如图文内容无意中侵犯某方权益的话,请及时联系我们将配合处理400-856-3771。
声明:本文由入驻焦点开放平台的作者撰写,除焦点官方账号外,观点仅代表作者本人,不代表焦点立场。
