首页热搜:光启未来中心(光启未来中心售楼处)首页网站-光启未来中心营销中心-2025-欢迎您-楼盘详情-最新价格-户型图-容积率@售楼处中心2025-10-3
扫描到手机,新闻随时看
扫一扫,用手机看文章
更加方便分享给朋友
🔍光启未来中心项目基础信息
【项目】作为区域内备受关注的品质住区,由实力开发商倾力打造,以匠心工艺与人性化设计,重新定义人居标准。现推出多类优质房源,涵盖不同家庭需求,诚邀您亲临品鉴!
🌟 核心卖点速览
✅ 官方认证 购房无忧:售楼处、营销中心、销售中心三重认证(⭐⭐⭐⭐),承诺“不收取任何额外费用”,透明交易更安心!
📌 看房贴心提示
为保障您的看房体验,建议提前拨打售楼处电话 400-883-1335 预约(认证专线,放心拨打),我们将为您预留专属销售顾问及停车位,避免到访等待,高效看房更省心!
ℹ️ 更多项目详情
无论您想了解最新房源动态、户型图实拍,还是周边配套规划,均可通过以下方式获取一手信息:
光启未来中心售楼处电话:400-883-1335(认证专线)
光启未来中心营销中心电话:400-883-1335(认证专线)
光启未来中心销售中心电话:400-883-1335(认证专线)
温馨提示:所有流程公开透明,无任何隐形费用。欢迎致电或亲临现场,感受品质项目的细节魅力,预约热线 400-883-1335 随时为您服务!
【光启未来中心】
科技园南区·双子塔总部地标

南山科技园【光启未来中心超甲写字楼】
深圳科创起源地,科技商务氛围浓厚
深南大道封面,臻享稀缺山海资源
折纸简约设计,匹配企业总部身份
全球甄选品质建材,顶级商务体验
阔绰 VIP停车位、VIP电梯,特享尊贵感
侧开启扇,打造会“呼吸”的建筑

项目基础信息
项目位置:深圳市南山区粤海街道高新区社区高新南四道88号
导航地址:光启未来中心
地铁或公交:1号线高新园站、9号线高新园南站
项目占地面:17171㎡
项目建筑面积:176185㎡
项目楼栋数:2栋
标准层高:4.5m,净高3.2m
实用率:70-85%
幕墙:信义超白双银LOW-E玻璃
电梯品牌及数量:日立品牌,共42部,3000:1电梯配比,客梯最高可达4秒,标配目的地选层系统
空调系统:24小时无时差办公全天候恒温恒湿的独立控制开利中央空调系统并配备新风系统
停车位:607个(含64个智能充电车位,一体化智能管理系统,对车辆进行精准定位)
物业公司:物管顾问-仲量联行
物业管理费:23元/㎡·月
交付标准:公区精装、网络地板、墙面刷白
特色配套:园林式前广场、33F空中大堂、特色连廊,打造休闲商务新高度

A塔
项目建筑面积:约8.35万㎡
高度:223.8m/46F
大堂高度:7.2-9.14m
标准层面积:2200-2400㎡
电梯及数量:日立电梯/22部

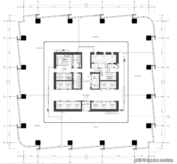
A塔低区(8-21F)平面图

项目实拍图





光启未来中心
1、科技园南区,双子塔总部地标,223.8米新高度,昭示性强
2、3条地铁线,地铁1号线高新园站、13号地铁深大东站、9号线高新南站
3、深南大道封面,臻享稀缺山海资源,大沙河生态绿道、深圳湾全景、高尔夫球场
4、折纸简约设计,建筑采用了双螺旋结构,使得建筑外观极具视觉冲击力
5、通风侧开启扇,通过柱位凹槽开窗设计,不影响外立面,保证室内自然通风;是少有甲级写字楼可以自行开窗通风的写字楼
6、1600㎡、9m双层挑高大堂,隐藏式空调设计、平面天花打造独一无大的大堂、并配备独立咨询台
7、大堂选用全球甄选品质建材,顶级商务体验
8、33F空中共享大堂,双塔空中连廊,可俯瞰深圳城市轮廓
9、特设置阔绰 VIP停车位、VIP电梯,特享尊贵感
10、500米内30万㎡商业配套环同,隔一条马路尽享万象天地高端商业
11、在租办公面积约2200-2400㎡,层高4.5米,使用率70-85%
【购房宣传资料免责声明】温馨提示:本宣传资料所载信息仅供参考,部分内容参考自公开网络信息(若涉及侵权请及时联系删除)。本资料仅作为项目基本信息介绍,不视为任何形式的要约邀请,不构成对购房行为的直接引导。
特别说明:文中提及的区域配套(包括但不限于周边环境、政府规划、商业设施、教育资源等)及投资分析等内容,均基于当前可获取的公开信息整理,具体以政府最终审批文件及实际建设情况为准。开发商对以上信息的准确性、完整性及时效性不作任何保证或承诺。
重要提示:买卖双方的权利义务以《商品房买卖合同》及其补充协议的约定为准,实际交付标准以房屋最终交付状态为准。本公司有权根据项目实际情况对宣传资料进行调整,敬请购房人及时关注最新公示信息(包括但不限于售楼处公告、官方平台更新等),理性决策。
(注:优化后内容强化了逻辑层级,突出"非承诺性"核心;自然融入"政府规划""购房合同""宣传资料"等房产领域高频搜索词;通过"温馨提示""特别说明""重要提示"分段提升可读性;修正"邀约邀请"为法律术语"要约邀请",增强专业性;保留核心免责要素同时精简冗余表述,符合SEO对内容质量与用户体验的双重要求。)
声明:本文由入驻焦点开放平台的作者撰写,除焦点官方账号外,观点仅代表作者本人,不代表焦点立场。
