天勤国际楼盘详情_最新房价_售楼处电话_户型图_配套_地址
扫描到手机,新闻随时看
扫一扫,用手机看文章
更加方便分享给朋友
(天勤国际)销售中心电话:400-873-0112(中介勿扰)
楼盘最新价格,户型图,地址,电话,样板房,周边配套,项目介绍
温馨提示:绝不收取任何费用,请提前1小时预约看房,以免带来不好的看房体验
——————————————————————————

开发商:深圳市天勤房地产开发有限公司
总用地面积:2,378.55㎡
建筑占地面积:746.07㎡
总建筑面积:16,886.26㎡
绿化率:30.05%
楼层数:地面20层,地下2层
物业用途:住宅,有学位
单套房产建筑面积:约39㎡
原始装修需要重新翻新,可个人、公司购买。
70年住宅产权,带桂园小学,红桂中学学位,楼下双地铁,按照住宅贷款,不限购,不限售,可以持有多套,港澳人士可持有一套,租金3500左右/套 可支持按揭或经营贷款。
项目区位
地址:罗湖区桂园路北6号
地铁:近9号线红岭站

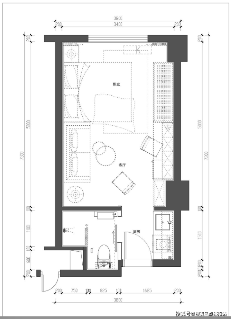
平面图

▲室内平面图(样板房非交付标准)
样板房效果图


售楼处电话/免费咨询/预约电话:400-873-0112【中介请勿扰】
温馨提醒:欢迎致电开发商售楼中心,我们将竭诚为您解答疑问。为确保您的咨询安全,通话时号码将自动隐藏。请提前与销售团队预约,以确保您能顺利进入销售现场,避免不必要的等待。
免责声明:部分信息来源于网络,如果侵权,请联系及时删除
声明:本文由入驻焦点开放平台的作者撰写,除焦点官方账号外,观点仅代表作者本人,不代表焦点立场。
