2025中粮·福田大悦广场首页网站-中粮·福田大悦广场售楼处|楼盘评测|最新价格|户型配套
扫描到手机,新闻随时看
扫一扫,用手机看文章
更加方便分享给朋友
🎊🎊中粮·福田大悦广场🎊🎊
🎊🎊中粮·福田大悦广场售楼处电话📞:400-856-3771【已认证】🎊🎊
🎊🎊中粮·福田大悦广场营销中心电话📞:400-856-3771【已认证】🎊🎊
🎊🎊中粮·福田大悦广场展示中心电话📞:400-856-3771【已认证】🎊🎊
▼温馨提示:本项目采用预约制,过来营销中心参观样板间请记得提前拨打售楼处预约热线电话:400-856-3771,感谢您的配合!(中介勿扰)
◆开发商营销中心诚挚邀请,一键预约,尊享内部独家折扣!匠心独运的精品项目,恭候您的品鉴与选择。
✅ 本项目暂不接受临时到访,过来参观样板房请记得提前来电预约!
✅ 为您安排楼盘现场销售全程接待并讲解,给您更贴心的看房体验!
当前,梅林街道正锚定“数字智谷”发展目标,统筹推进传统产业升级、新兴产业壮大、未来产业培育。1—8月,梅林街道规上企业及规上工业GDP贡献率、规上工业总产值均居福田区榜首,其中规上工业总产值全区占比50.7%,同比增长20.9%。信息来源:人民网
图片来源:人民网
梅林街道持续拓展产业空间,探索落地全市首个在建工程抵押登记,众多创新产业园相继运营,迎来更多先进制造业企业。今年以来,梅林街道已落地项目超30余项、累计投资总额近百亿元,加速形成1个两千亿级、4个百亿级、N个特色产业园构成的“1+4+N”产业园区集群。信息来源:人民网
当前,梅林街道正致力于重点产业集群的打造,通过精准施策,开展联合招商、重点企业招商以及产业链招商,旨在强化产业链、补充产业链、延伸产业链,同时积极培育龙头“链主”企业,以提升产业的综合实力和核心竞争力。这一战略的实施,旨在实现“引进一个、带动一批、形成一片”的集群效应。信息来源:人民网
图片来源:福田融媒
以“链”为媒介,梅林街道与新一代产业园紧密合作,共同孵化引进各类规模的企业,包括初创企业、成长型企业以及龙头企业,这些企业涵盖了芯片制造、模组整机、生态应用等上下游环节,成功地在一个产业园内“串联”起整条5G产业链。信息来源:人民网
图片来源:福田融媒
目前,梅林街道已成功吸引了20家上市公司、42家总部企业、222家国高企业、184家战略新兴企业和104家专精特新企业的入驻。上半年,辖区内的规模以上企业产值(营收)已突破1500亿元,同比增长18.9%,其中规模以上工业产值更是实现了29.2%的同比增长。信息来源:人民网
今年,梅林街道携手金融、法律、财务等相关机构,共同推出了赋能新质生产力企业的“全生命周期”高质量发展服务包。该服务包为企业提供从天使轮到上市的全周期、多元化、一站式综合金融服务,旨在畅通“金融—科技—新质生产力”的良性循环。信息来源:金台资讯
实景图
营商环境被视为发展经济的“先手棋”和释放活力的“稳定器”。为此,梅林街道多点发力、多措并举,持续加大惠企利企助企力度,旨在通过优质的营商环境来稳定企业的发展信心。在此背景下,中粮·大悦广场作为福田区软件信息服务业专业楼宇,全面助力新兴企业的进阶发展。以建面约20万㎡的商务综合体空间,为企业提供高品质的办公空间,帮助企业解决基本的办公环境问题。信息来源:金台资讯
中粮·福田大悦广场位于福田CBD中轴线梅彩智谷产业带,以产业发展体系为底盘,聚集软件信息、新能源等产业,距离22号线(在建)及9号线梅村站约500米,下梅林站约700米。项目周边建面约60万㎡商务集群,多家总部企业入驻,聚集产业生态圈,为新兴企业提供持续赋能和支持。
中粮·福田大悦广场
(点击导航)
T1栋 · 约187米北环商务坐标建筑面积约446-2099㎡空中总部
T2栋 · 大宗整售建筑面积约32629㎡独栋总部
双地铁·50年产权·即买即用即办证
一、地理位置优越
中粮福田大悦广场位于福田中心区梅彩智谷片区,具体在梅华路和梅秀路西南交汇处,占据北环大道封面地标的位置。这里集聚了深圳中央活力区、总部经济轴、智能科技产业带三大黄金地带,拥有超强的商业活力和发展潜力。同时,项目周边交通配套十分便捷,不仅有多条主要快速通道如福龙路、梅观路等连接,还临近地铁9号线梅村站,距离约600米(直线距离),可快速接驳其他地铁线路,如2、4、10号线等,出行极为方便。此外,规划中的地铁22号线梅丰站将与项目直连,未来将进一步提升其交通优势。
二、设计独特,业态丰富
中粮福田大悦广场占地约2.4万㎡,建筑面积约15万㎡,其设计独特,融合了现代商务与生活的多元需求。广场内不仅设有高端研发办公和总部大楼,满足企业的商务办公需求,还配备了商务住所和社区配套商业,为企业员工和居民提供便利的生活服务。此外,广场的业态丰富,包括建面约3.2万㎡的研发办公总部独栋、建面约446-2107㎡的总部办公空间以及建面约49-78㎡的企业配套用房,满足了不同企业和个人的需求。
三、配套设施完善
中粮福田大悦广场的配套设施十分完善,无论是商务办公还是居住生活,都能享受到高品质的服务和便利。广场内设有15米挑高、1500㎡的奢阔大堂,为企业打造封面级商务形象。同时,周边拥有百万繁盛商圈,包括卓悦汇、佐阾虹湾、卓悦中心、皇庭广场等大型商业设施,为企业和居民提供丰富的购物、餐饮和娱乐选择。此外,广场还邻近深圳音乐厅、深圳少年宫、关山月美术馆、深圳图书馆、深圳博物馆等文化设施,丰富了人们的精神文化生活。
四、生态环境优美
中粮福田大悦广场不仅商务氛围浓厚,还十分注重生态环境的营造。广场周边拥有上梅林公园、梅林前门公园等三大公园环伺,距离最近的梅林门前公园仅300米,为居民提供了日常散步和休闲的好去处。这种城芯富氧生活的环境,使得广场成为了人们追求高品质生活的理想之地。
五、投资价值显著
中粮福田大悦广场凭借其优越的地理位置、独特的设计、丰富的业态和完善的配套设施,成为了深圳商务地产市场的热门投资项目。无论是作为企业的办公场所还是个人的投资选择,都具有很高的价值。此外,随着深圳经济的持续发展和城市化的不断推进,该区域的发展潜力将进一步释放,为投资者带来更多的回报。
综上所述,中粮福田大悦广场以其优越的地理位置、独特的设计、丰富的业态、完善的配套设施和优美的生态环境,成为了深圳商务地产市场的一颗璀璨明珠。无论是商务办公还是居住生活,这里都能满足人们的多元化需求,为人们提供高品质的生活和工作环境。对于企业和个人来说,中粮福田大悦广场无疑是一个值得关注和投资的重要项目。
基本信息
Ø楼盘名称:中粮福田大悦广场
Ø楼盘别名:大悦广场
Ø区域商圈:福田-福田中心区
Ø物业类型:商业
Ø参考单价:48000元/㎡
Ø产权年限:写字楼商铺50年
Ø销售状态:在售
Ø楼盘地址:福田梅华路与梅秀路交汇处(梅林旁)
Ø售楼处地址:深圳福田区梅华路与梅秀路交汇处(梅林旁)中粮·福田大悦广场营销中心
建筑规划
Ø交房时间:2023-05-23
Ø装修情况:毛坯,精装修,公共部分精装
Ø楼栋总数:4栋
Ø规划户数:540
Ø占地面积:24147㎡
Ø建筑面积:144810㎡
Ø容积率:6
Ø绿化率:30%
Ø建筑类型:高层,超高层
Ø主力户型:1室(2) 、 2室(1)
Ø开发公司:中粮(深圳)智汇置业有限公司
项目特色:
·产业定位:聚焦新兴产业,打造成集高端研发办公、商务住所、配套商业为一体的产研综合体。
·区域优势:位于福田中心区行政中心矩阵首排,周边有深交所、金融机构总部等商务配套。
·生态环境:项目周边拥有梅林公园、莲花山公园等丰富的生态资源。
·交通便利:临近多条地铁线路,包括地铁9号线梅村站,以及规划中的地铁22号线梅丰站。
·品牌实力:由中粮(深圳)智汇置业有限公司开发,依托中粮集团全产业链及产城开发经验。
T1栋研发办公:187m国际5A高度总部办公地标
1.独具约15m挑高中空,大堂设置满足办公、商务、接待等多功能的1500㎡宽敞空间;
2.高、中、低区共配置18台高速电梯;
3.4-5层以半层配置,销售周期内作为样展示及营销、签约办公区;4-5层各配置560m²架空层休闲空间;
T1栋研发办公效果图:
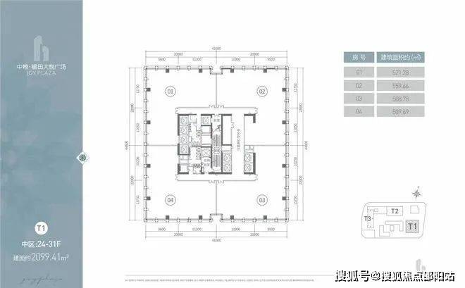
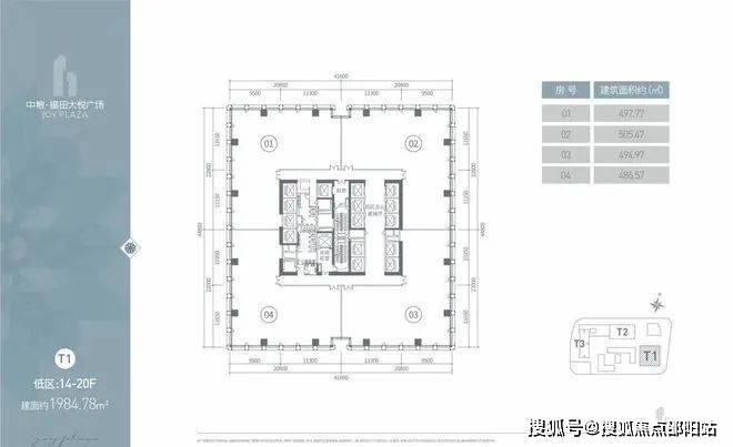
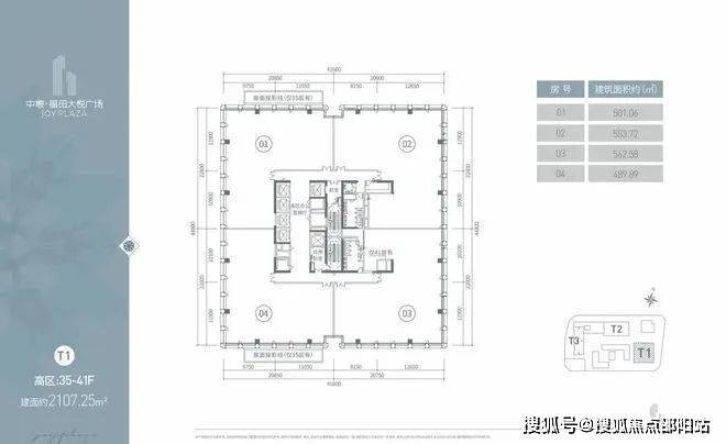
【T1户型图】
14-20层,面积1984.78平米
24-31层,面积2099.41平米
34层,面积1432.97平米
35-41层,面积2107.25平米
🎊🎊中粮·福田大悦广场🎊🎊
🎊🎊中粮·福田大悦广场售楼处电话📞:400-856-3771【已认证】🎊🎊
🎊🎊中粮·福田大悦广场营销中心电话📞:400-856-3771【已认证】🎊🎊
🎊🎊中粮·福田大悦广场展示中心电话📞:400-856-3771【已认证】🎊🎊
🎊🎊Vip贵宾置业===欢迎来电预约尊享内部折扣===匠心钜制恭迎品鉴🎊🎊
✅ 本项目暂不接受临时到访,过来参观样板房请记得提前来电预约!
✅ 为您安排楼盘现场销售全程接待并讲解,给您更贴心的看房体验!
✅免责声明: ✅1、文章中文字和图片之间无必然联系,仅供读者参考。
✅2、本文所述内容和意见仅供参考,不构成市场交易依据和投资建议。
✅3、文章图片来源于微信搜索或百度搜索引擎,我方非相关图片的原创作者,也不对相关图片及内容享有任何权利,如果侵权,请联系及时删除,联系电话:400-856-3771
声明:本文由入驻焦点开放平台的作者撰写,除焦点官方账号外,观点仅代表作者本人,不代表焦点立场。
