宏发悦见公园里(售楼处)2025最新置顶网站- 宏发悦见公园里售楼中心- 宏发悦见公园里欢迎您-楼盘详情-最新价格-户型图-容积率@营销中心
扫描到手机,新闻随时看
扫一扫,用手机看文章
更加方便分享给朋友
💠宏发悦见公园里💠
💠宏发悦见公园里售楼处电话: 400-166-9557【已认证】💠
💠Vip贵宾置业===欢迎来电预约尊享内部折扣===匠心钜制恭迎品鉴💠
【宏发悦见公园里】丨楼盘详情丨价格丨更多优惠丨欢迎致电丨诚邀品鉴
✨✨宏发悦见公园里开发商售楼处电话:400-166-9557【预约热线】丨详细解答丨在售户型图丨项目介绍丨在售房源丨周边配套丨VR看房丨楼盘图丨沙盘图丨位置图丨配套图丨售楼处丨足不出户丨销售1V1讲解
✅宏发悦见公园里开发商电话📞: 400-166-9557【开发商已认证】❇❇❇❇
✅宏发悦见公园里营销中心电话📞: 400-166-9557【营销中心已认证】❇❇❇❇
✅宏发悦见公园里展示中心电话📞: 400-166-9557【展示中心已认证】❇❇❇❇
✅本项目暂不接受临时到访,过来参观样板房请记得提前来电预约!
◆开发商营销中心诚挚邀请,一键预约,尊享内部独家折扣!匠心独运的精品项目,恭候您的品鉴与选择。

— 悦见公园里 —
宏发正央著作 公园生活范本

项目基础信息
【开发商】深圳市天荣盛房地产开发有限公司
【总建面】约33.8万㎡
【绿化率】约40%
【推售套数】803套住宅
【推售产品】约85-120㎡ 3-4房
【品牌】42载宏发,城市标杆项目缔造者
【地段】光明繁华地段,高阶人群生活场
【商圈】步行可达大仟里商圈,繁华近在咫尺
【美景】北邻红花山公园+公园绿地,推窗见景
【地铁】近地铁6号线及13号线(北延段在建中)
【配套】项目2公里范围内城市精粹配套环绕
【教育】家门口学府汇聚,菁英教育不远行
【品质】大师联袂匠造,敬献高品质生活
【悦见 · 一脉匠作】
深圳宏发悦见公园里开发商售楼处电话:400-166-9557售楼中心
42载宏发,产城运营服务专家。宏发集团初创于1981,以产业服务为根基,多业态融合布局,一直以来助力城市的经济繁荣、可持续发展。作为最早进驻光明的开发商之一,已打造出宏发万悦山、宏发天汇城、宏发雍景城、宏发上域、宏发美域、宏发嘉域等城市标杆。此次将在城市主轴松白路,打造宏发在光明的第八座城市新著作——悦见公园里。深圳宏发悦见公园里开发商售楼处电话:400-166-9557售楼中心。

腾飞光明,快速发展。在2017年到2022年间,光明区生产总值年均增速约8.1%,全市领跑;规模以上工业企业数量达到1735家,增长近3倍,增加值实现翻番。在“深圳十四五规划”中,光明定位是:“世界一流科学城和深圳北部中心,将建设成为大湾区综合性国家科学中心先行启动区。”光明正以腾飞之势,快速发展。
【悦见 · 一步繁盛】
坐落城市繁华地段,近享中芯配套
商圈配套:步行即可到达区域核芯商圈——大型商业综合体光明大仟里购物中心、高端希尔顿花园酒店等。即享购物、休闲、娱乐一站式繁华。深圳宏发悦见公园里开发商售楼处电话:400-166-9557售楼中心。

自然风光:外侧北邻约27万方红花山公园, 内侧遵循自然之理,与公园绿地共生,目光所及之处,是公园的四季更迭。
深圳宏发悦见公园里开发商售楼处电话:400-166-9557售楼中心。

人文配套:项目约2公里范围内,近享红花山体育中心、光明图书馆红花山分馆、文化馆等城市人文配套。深圳宏发悦见公园里开发商售楼处电话:400-166-9557售楼中心。

教育配套:
自带社区幼儿园,东北面规划教育设施用地(18班小学);
(数据来源于深圳市光明区城市更新和土地整备局)
周边教育资源:
· 小学:光明教科院实验小学、公明第一小学、公明第二小学、东宝纪念小学等
· 中学:深圳市公明中学、深圳市光明区第二中学(光明区省一级公办中学)、光明区高级中学等
深圳宏发悦见公园里开发商售楼处电话:400-166-9557售楼中心。

交通配套:双地铁+双免费高速环伺
双地铁:便利可达地铁6号线(已通车)与13号线(北延段建设中)公明广场站,直通福田、南山,共享都会高效与繁华。
双高速:驾车约4.6公里上南光高速,驾车约4公里可上龙大高速。双免费高速,带来便捷出行。
(数据来源:深圳地铁公众号,百度地图)
【悦见 · 一生之选】
联袂知名设计团队,聚集大师非凡造诣,雕琢建筑以及空间的每一处细节,以前沿审美,重塑城市界面。
· 建筑设计:柏涛建筑(深圳)
· 园林设计:新西林
约177米地标高度,重塑城市主轴
悦见公园里以“云卷云舒”设计概念,整体挺拔伸展,营造出高级、大气的建筑气质。约177米城市综合体高度,屹立城市主干道旁,创造了一个动态的城市新地标。深圳宏发悦见公园里开发商售楼处电话:400-166-9557售楼中心。

内蕴不凡,看见生活的质感
尊崇门厅归家礼仪,外出乘车直达大堂门口的私家落客区;
特色归家景观连廊,营造“四合院”式庭院归家礼仪;
园区配置子母双泳池,演绎四季律动的生活场景。
深圳宏发悦见公园里开发商售楼处电话:400-166-9557售楼中心。

88㎡三房的格局,很好的满足刚需购买的需求,且卧室之间都没承重墙,可根据家庭需求进行灵活变动,最大的亮点便是接近4㎡的阳台,是这个片区为数不多的。深圳宏发悦见公园里开发商售楼处电话:400-166-9557售楼中心。

95平的三房两厅两卫户型,整体采光性非常好,而且拥有24平的客餐厅,无论是家庭聚会,还是接待会客均能满足,主卧17㎡的空间,给主人一个很好的私密空间。深圳宏发悦见公园里开发商售楼处电话:400-166-9557售楼中心。

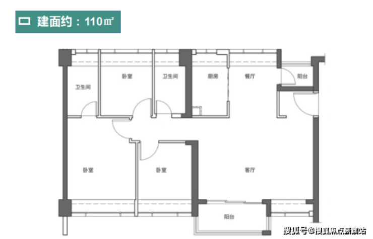
110平的空间,南北通透的格局,拥有29平的客餐厅,而且卧室之间没承重墙,可根据家庭需求进行灵活变动,可塑性强。深圳宏发悦见公园里开发商售楼处电话:400-166-9557售楼中心。

深圳房产新闻:房价已连续6个月正增长
根据深房中协统计,2025年4月全市二手房录得6597套,同比增长33.5%。截至2025年4月30日,据深圳市房地产信息平台公开在售二手房数量统计,全市有效在售二手房源72391套,对比上月同期统计的71590套在售房源增加801套,环比增长1.1%,业主委托出售意愿持续保持较高水平。房价已连续6个月实现正增长,可销售房源降低到不足7个月库存水平。
深圳市房地产中介协会专家表示,此次一揽子金融政策定向非常明确,对楼市交易既有直接影响:例如降低公积金贷款利率,有助于增加潜在入市意愿,并减少现有还款人的供楼压力;同时,还有间接影响:例如降低存款准备金率0.5个百分点、公开市场7天期逆回购操作利率从目前的1.5%调降至1.4%等,都会增加市场流动性,这对当前做好持续巩固房地产市场稳定态势,将发挥积极作用。
✨✨宏发悦见公园里开发商电话:400-166-9557【☎☎开发商电话已认证】✨✽✽✽✽
✨✨宏发悦见公园里售楼处电话:400-166-9557【☎☎售楼处电话已认证】✨✨✽✽✽✽
✨✨宏发悦见公园里营销中心电话:400-166-9557【☎☎营销中心电话已认证】✨✨✽✽✽✽
✨✨宏发悦见公园里销售中心电话:400-166-9557【☎☎销售中心电话已认证】✨✽✽✽✽
中国人民银行十项政策加大宏观调控强度
降低存款准备金率0.5个百分点,预计将向市场提供长期流动性约1万亿元。
完善存款准备金制度,阶段性将汽车金融公司、金融租赁公司的存款准备金率,从目前的5%调降至0%。
下调政策利率0.1个百分点,即公开市场7天期逆回购操作利率从目前的1.5%调降至1.4%,预计将带动贷款市场报价利率(LPR)同步下行约0.1个百分点。
下调结构性货币政策工具利率0.25个百分点,包括:各类专项结构性工具利率、支农支小再贷款利率,均从目前的1.75%降至1.5%;抵押补充贷款(PSL)利率从目前的2.25%降至2%。
降低个人住房公积金贷款利率0.25个百分点,五年期以上首套房利率由2.85%降至2.6%,其他期限的利率同步调整。
增加3000亿元科技创新和技术改造再贷款额度,由目前的5000亿元增加至8000亿元,持续支持“两新”政策实施。
设立5000亿元服务消费与养老再贷款,引导商业银行加大对服务消费与养老的信贷支持。
增加支农支小再贷款额度3000亿元,与调降相关工具利率的政策形成协同效应,支持银行扩大对涉农、小微和民营企业的贷款投放。
优化两项支持资本市场的货币政策工具,将证券、基金、保险公司互换便利5000亿元和股票回购增持再贷款3000亿元额度合并使用,总额度8000亿元。
创设科技创新债券风险分担工具,央行提供低成本再贷款资金,可购买科技创新债券,并与地方政府、市场化增信机构等合作,通过共同担保等多样化的增信措施,分担债券的部分违约损失风险,为科技创新企业和股权投资机构发行低成本、长期限科创债券融资提供支持。
✨✨宏发悦见公园里开发商电话:400-166-9557【☎☎开发商电话已认证】✨✽✽✽✽
✨✨宏发悦见公园里售楼处电话:400-166-9557【☎☎售楼处电话已认证】✨✨✽✽✽✽
✨✨宏发悦见公园里营销中心电话:400-166-9557【☎☎营销中心电话已认证】✨✨✽✽✽✽
✨✨宏发悦见公园里销售中心电话:400-166-9557【☎☎销售中心电话已认证】✨✽✽✽✽
金融监管总局八项增量政策
加快出台与房地产发展新模式相适配的系列融资制度,助力持续巩固房地产市场稳定态势。
进一步扩大保险资金长期投资试点范围,为市场引入更多增量资金。
调整优化监管规则,进一步调降保险公司股票投资风险因子,支持稳定和活跃资本市场。
尽快推出支持小微企业、民营企业融资一揽子政策,做深做实融资协调工作机制,助力稳企业稳经济。
制定实施银行业保险业护航外贸发展系列政策措施,对受关税影响较大的市场主体提供精准服务,全力帮扶稳定经营、拓展市场。
修订出台并购贷款管理办法,促进产业加快转型升级。
将发起设立金融资产投资公司的主体扩展至符合条件的全国性商业银行,加大对科创企业的投资力度。
制定科技保险高质量发展意见,更好发挥风险分担和补偿作用,切实为科技创新提供有力保障。
💠宏发悦见公园里💠
💠宏发悦见公园里售楼处电话: 400-166-9557【已认证】💠
💠Vip贵宾置业===欢迎来电预约尊享内部折扣===匠心钜制恭迎品鉴💠
【宏发悦见公园里】丨楼盘详情丨价格丨更多优惠丨欢迎致电丨诚邀品鉴
✨✨宏发悦见公园里开发商售楼处电话:400-166-9557【预约热线】丨详细解答丨在售户型图丨项目介绍丨在售房源丨周边配套丨VR看房丨楼盘图丨沙盘图丨位置图丨配套图丨售楼处丨足不出户丨销售1V1讲解
✅宏发悦见公园里开发商电话📞: 400-166-9557【开发商已认证】❇❇❇❇
✅宏发悦见公园里营销中心电话📞: 400-166-9557【营销中心已认证】❇❇❇❇
✅宏发悦见公园里展示中心电话📞: 400-166-9557【展示中心已认证】❇❇❇❇
✅本项目暂不接受临时到访,过来参观样板房请记得提前来电预约!
◆开发商营销中心诚挚邀请,一键预约,尊享内部独家折扣!匠心独运的精品项目,恭候您的品鉴与选择。
✨✨☞☞Vip贵宾置业==欢迎来电预约尊享内部折扣===匠心钜制恭迎品鉴☜☜免责声明:本文部分内容来自网络,如无意中侵犯了某方的知识产权,告知即删。
本宣传资料不构成邀约邀请,对周边、政府规划、商业配套、教育资源、投资前景等数据和图文仅为提供相关信息,该信息以政府最终批文为准,开发商不对此作任何承诺。买卖双方的权利义务以双方签订的买卖合同约定及附件、实际交付为准,本公司保留对宣传资料修改的权利,敬请留意最新资料。联系号码:400-166-9557
声明:本文由入驻焦点开放平台的作者撰写,除焦点官方账号外,观点仅代表作者本人,不代表焦点立场。
