深圳南山【锦尚公馆】首页网站|锦尚公馆售楼电话|楼盘怎么样|项目详情分析
扫描到手机,新闻随时看
扫一扫,用手机看文章
更加方便分享给朋友
———锦尚公馆———
深圳南山【锦尚公馆】咨询热线:400-0666-032转分机号1818营销中心
深圳南山【锦尚公馆】开发商售楼中心电话:400-0666-032转分机号1818售楼中心
深圳南山【锦尚公馆】售楼部24小时电话:400-0666-032转分机号1818售楼处
锦尚坐落于前海石公园前湾河畔,为“湾藏锦绣”的城市级核心资产,将全维度满足当代精英阶层的定制生活。顺势自然生态资源,享受先天低密与滨水资源,同时引入国外滨水公寓精粹,营造独具特色的花园式生活美学,打造公园里的家。以约2.33超低容积率,打造滨水河畔的10层洋房式公寓,致力呈现一种国际化城市中心的绿色生态,健康安全新生活。
温馨提示:看房请务必提前预约,避免临时无人接待,感谢您的配合!
【基础信息】
◎容积率:约3.27(计容建面约4.69万㎡,占地约1.43万㎡)
◎层数:20-23层
◎梯户比:2梯4户
◎车位数量:414个
◎楼高:约68-75m
◎套数:共320套
◎户型:106-128㎡的3-4房
区位介绍
锦尚公馆凭借招商蛇口40年的开发经验,在前海妈湾再造一个升级版的蛇口!规划统筹“山、海、林、城、岛、港、湾、河”资源,打造深圳西海岸滨海活力区。前海在深圳的战略地位无需赘述,想必大家都熟络。自2013年前海首拍地块成功出让,前海大开发序幕就此揭开。三大核心区中的桂湾、前湾率先垂范,经过几年的蓄势,已呈现出一定的发展规模,预计至2021年实现在前海经营企业超过5000家。
交通情况
距离5号线仅300米,步行4分钟即达,可前海换乘11、9、1号线,规划有21、26号线,通达全城;
西部跨海通道,穗莞深、深惠、深港西部快线,贯穿城市经济动脉。
平面图
户型鉴赏
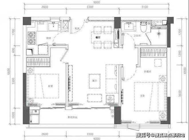
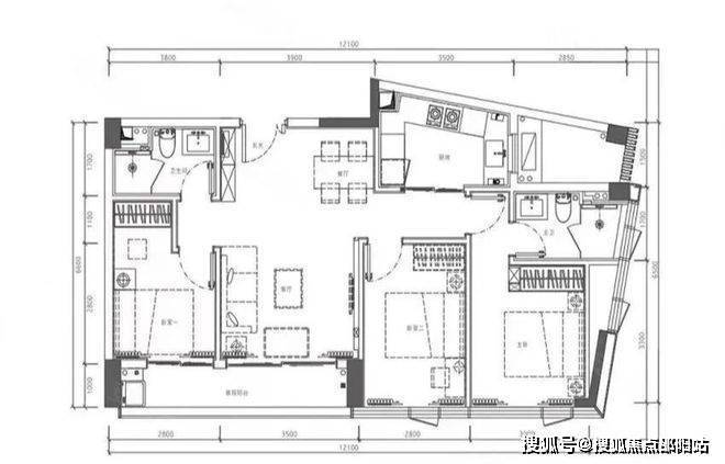
A1户型,建面78㎡(整体朝东,卧室朝南,大阳台)
户型分布:1栋1,2单元;2栋1,2单元
B5户型,建面108㎡(整体朝南)
户型分布:1栋2单元,2栋2单元
B3户型,建面112㎡(整体朝东西)
户型分布:1栋2单元
B4户型,建面115㎡(整体朝东南)
户型分布:1栋1单元,2栋1单元
B2户型,建面115㎡(整体朝南)
户型分布:1栋1,2单元;2栋1,2单元
B1户型,建面115㎡(整体朝东)
户型分布:1栋1,2单元;2栋1,2单元
C2户型,建面162㎡(整体朝东)
户型分布:1栋1单元,2栋1单元
深圳南山锦尚公馆售楼处电话:400-0666-032转1818【楼盘电话】
深圳南山锦尚公馆房价,价格,地址,户型图,规划,备案价,位置,配套,楼盘详情,售楼处电话,多少钱,规划怎么样,最新消息,最新详情,周边配套,最新进展,学区等最新详情欢迎来电售楼处网上营销中心。
免责声明:部分信息来源于网络,如果侵权,请联系及时删除,联系电话:400-0666-032转1818
声明:本文由入驻焦点开放平台的作者撰写,除焦点官方账号外,观点仅代表作者本人,不代表焦点立场。
