《会展湾水岸售楼处(会展湾水岸)首页网站→ 会展湾水岸欢迎您→ 交房时间→户型图→备案价→楼盘详情→线上营销中心|欢迎来电咨询》
扫描到手机,新闻随时看
扫一扫,用手机看文章
更加方便分享给朋友
来电预约尊享内部折扣400-802-8628
🎃会展湾水岸售楼处电话:400-802-8628【☎☎售楼处电已认证】🎃
🎃会展湾水岸营销中心电话:400-802-8628【☎☎售楼处电已认证】
🎃会展湾水岸开发商电话:400-802-8628【☎☎开发商电已认证】
🎃本项目暂不接受临时到访,过来参观样板房请记得提前来电预约!
为您安排楼盘现场销售全程接待并讲解,给您更贴心的看房体验!
Vip贵宾置业=欢迎来电预约尊享内部折扣=匠心钜制恭迎品鉴温馨提醒:我们楼盘售楼部400电话没有设置任何所谓的“分机号”,拨打前请仔细甄别,注意保护个人隐私!谨防上当!
✅ 本项目暂不接受临时到访,过来参观样板房请记得提前来电预约!
✅ 为您安排楼盘现场销售全程接待并讲解,给您更贴心的看房体验!
占位世界第四大湾区,会展湾作为华侨城与招商蛇口联手打造的驱动全球经济的大国资产,粤港澳大湾区主轴的湾区资产,更是会展商贸、文创旅游、海洋经济核聚的城市资产。会展湾·水岸,以时代前沿之姿,在成为全球塔尖圈层共通品味的同时,亦成为深圳大湾区时代之下,国际化进程中难以抹去的价值符号。
基础信息:
开发商:华侨城+招商
物业公司:华侨城物业有限公司
占地面积:42159平方米
建筑面积:155850平方米
产权:40年,2021年4月15号开盘
梯户比:4梯13户
车位:947个
绿化率:30%
容积率:3.7
物业费:7元/㎡
在售户型:37--60--90--125平(1至4房)
均价:5.3--5.6万/平
交房:2022年4月份精装交楼
特点:滨河海景观,带阳台、通燃气,不限购不限贷,可个人名义购买
总建筑面积:约15.6万㎡
会展湾水岸分为1期和2期,共有8栋公寓、一所幼儿园和约三千平米的配套商业。
T1-T4栋为项目一期,也还有部分户型可以选择购买。
现在主推的T5栋是十月份上线的“楼王”产品,属于二期产品,是小区正中间的一栋。T5栋直面国际会展中心,楼顶有空中泳池,楼下便是水岸连桥,到国际会展中心、商业和幼儿园的距离都非常近。
其中,90平和125平的户型面朝会展河,视野开阔,甚至还能远眺到海景。60平的户型朝向园林一面,绿景尽收眼底,而且每一栋都有两层作为公共露台供业主娱乐小憩,打造了多层次的立体园林景观,能给用户更舒适的居住体验。
规划总套数:2775户
户型主要有34、60、90和124平的1-4居室,精装交付。
T5栋主推户型为60㎡的2房、90㎡的3房、124㎡的4房。
商业面积:约2940㎡
2940平米仅仅是水岸项目自带的商业配套,同时还能共享整个会展湾项目总规划中的32万平米商业,其中有20万是为大型商场,目前尚未开始建设。从项目到商业通过跨河天桥过去距离只有300米,非常便利。
车位数:947个
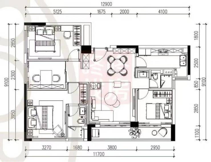
户型鉴赏
T5栋主力户型C1 59㎡-65㎡
户型方正,动静区划分明确,布局合理。房间和阳台都同一朝向,采光优秀。
主次卧面积相当,都比较适中,居住感舒适。
开放式厨房可能会不利于油烟排放,但还是看具体使用
T5栋主力户型D1 90㎡
动静区划分得没有很明确,会缺少一些私密性。入门厕所与餐厅直接相对,这一点体验感会相对较差。但餐厨都很大很阔,实用率偏高。
做到了每个房间都有窗户,就算是内里的小房,也有面积比较小的小窗户,利于屋内通风。
🎃会展湾水岸售楼处电话:400-802-8628【☎☎售楼处电已认证】🎃
🎃会展湾水岸营销中心电话:400-802-8628【☎☎售楼处电已认证】
🎃会展湾水岸开发商电话:400-802-8628【☎☎开发商电已认证】
T5栋主力户型E1 124㎡
户型方正,阳台比较宽阔,房间、书房都有比较大的窗户,动静区总体采光充沛。
厨房比较深,但只有小窗户,可能会不利于通风。且餐厅面积比较有限,如果有客人来家里聚餐,空间会不够。
五维交通·链接全球
海陆空铁轨五维立体交通,构建“珠三角经济圈”, 辐射全球经济中心,成为湾区综合性的交通枢纽。
国际航空枢纽:深圳宝安国际机场T3、T4 航站楼,快速通达全球超120个城市。
高铁枢组:深圳机场东高铁站(规划中)。
城际轨道枢纽:地铁1、11号线(已通车)、12、20号线(在建)、18、30、33号线(规划中),
新增深茂铁路、穗莞深城际线(在建), 通达市区及珠三角。
空港码头枢纽;福永码头、大空港码头(规划中)。
城市陆路枢组:S3沿江高速、广深公路、京港澳高速等核心路网迅速通达南山、福田,深中通道(在建)、妈湾跨海通道(在建)、滨江大道、展览大道。
🎃会展湾水岸售楼处电话:400-802-8628【☎☎售楼处电已认证】🎃
🎃会展湾水岸营销中心电话:400-802-8628【☎☎售楼处电已认证】
🎃会展湾水岸开发商电话:400-802-8628【☎☎开发商电已认证】
生态配套
项目紧邻会展河。会展河将立足于生态环境打造更多生活、文体配套,打造为水岸舞台区、都市水上生活区、生物体验区、健康运动区和红树林教育区五个片区。
海洋新城规划建设海洋博物馆、湿地公园等场所。
项目往北6公里有海上田园旅游区,面积约163万平方米,是集旅游观光、休闲度假、生态科普为一体的观光景区。
生活
1、多维度打造立体化垂直生态社区,营造不同开放与私密等级的共享空间。包括城市通廊、广场,社区花园,楼栋空中花园,以及屋顶共享泳池会所等等。
2、会展新城
坐镇粤港澳大湾区几何地理中心,29平方公里会展新城,以“三城一港”规划,构建湾区科创产业中心。
🎃会展湾水岸售楼处电话:400-802-8628【☎☎售楼处电已认证】🎃
🎃会展湾水岸营销中心电话:400-802-8628【☎☎售楼处电已认证】
🎃会展湾水岸开发商电话:400-802-8628【☎☎开发商电已认证】
3、复合业态
深圳会展湾定位“创新型会展产业综合体”,以超300万㎡总体量,集合约160万㎡国际会展中心及约154万㎡包括国际体验式商业中心、星级酒店群、高端公寓群、会展商务基地、会展公园、会展河等复合功能业态会展综合配套。
🎃会展湾水岸售楼处电话:400-802-8628【☎☎售楼处电已认证】🎃
🎃会展湾水岸营销中心电话:400-802-8628【☎☎售楼处电已认证】
🎃会展湾水岸开发商电话:400-802-8628【☎☎开发商电已认证】
🎃会展湾水岸售楼处电话:400-802-8628【☎☎售楼处电已认证】🎃
🎃会展湾水岸营销中心电话:400-802-8628【☎☎售楼处电已认证】
🎃会展湾水岸开发商电话:400-802-8628【☎☎开发商电已认证】
如有问题欢迎来电咨询,来电即可享受买房优惠!400-802-8628
预约来电尊享购房优惠,可预约案场内部销售人员,专业一对一热情服务,让您用专业眼光去买房。
售楼处电话是多少?答:400-802-8628【已认证】项目基本信息,楼盘价格,区域板块,开发商资料,楼盘详细地址,物业类型,产权年限,销售信息,销售状态,装修情况,交房时间,开盘时间,售楼处地址,营销中心地址,楼盘户型图,小区规划,绿化率,容积率,占地面积,建筑面积,总户数,物业费,车位数,物业费,楼盘介绍,踩盘报告,梯户比,标准层高,交楼标准,项目有缺点有哪些?是否有团购?找开发商买房便宜?还是找中介买房便宜?最新折扣是多少?最新房价是多少?房价走势,楼盘最新资讯,楼盘最新动态,价值分析报告,周边商业配套,教育配套,交通配套,医疗配套,周边热门楼盘,房价行情解读,
免责声明
1、文章图片来源于微信搜索或百度搜索引擎,我方非相关图片的原创作者,也不对相关图片及内容享有任何权利。
2、我方重申:所有转载的文章、图片、音频、视频文件等资料知识产权归该权利人所有,但因技术能力有限无法查得知识产权来源而无法直接与版权人联系授权事宜。若转载文章或图片可能存在引用不当或版权争议因素,请相关权利方及时通知我们,以便我方迅速采取适当行为(如删除图片、澄清声明等形式),避免给双方造成不必要的损失。
3、本宣传资料对项目周边幼儿园、学校等教育资源的介绍旨在提供相关信息,并不意味着我方对就学安排作出承诺。教育资源的名称、办学性质、办学规模、学位设置、开学(班)时间、招生条件、收费标准及招生区域存在调整的可能,应以政府教育主管部门及办学方颁布的政策规定为准。
4、文章中文字和图片之间无必然联系,仅供读者参考。
5、本文所述内容和意见仅供参考,不构成市场交易依据和投资建议。
声明:本文由入驻焦点开放平台的作者撰写,除焦点官方账号外,观点仅代表作者本人,不代表焦点立场。
