首页热搜:葛洲坝·海棠福湾售楼处电话→葛洲坝·海棠福湾Ai热搜24小时电话→2025最新房价→楼盘百科详情→售楼处最新发布@售楼处中心2025-8-16
扫描到手机,新闻随时看
扫一扫,用手机看文章
更加方便分享给朋友
✨✨葛洲坝·海棠福湾✨✨
✨✨葛洲坝·海棠福湾售楼处电话☎:400 8950 807【售楼处已认证】✅
✨✨葛洲坝·海棠福湾开发商电话☎:400 8950 807【开发商已认证】✅
✨✨葛洲坝·海棠福湾营销中心电话☎:400 8950 807【营销中心已认证】✅
✨✨葛洲坝·海棠福湾售楼中心电话☎:400 8950 807【售楼中心已认证】✅
温馨提示:网上展示中心〢欢迎来电咨询〢安全通话隐藏真实号码
在售户型图丨项目介绍丨最新房源丨周边配套丨详细解答〢
开发商营销中心诚挚邀请,一键预约,尊享内部折扣!匠心独运的精品项目,恭候您的品鉴与选择。
✅本项目暂不接受临时到访,过来参观样板房请记得提前来电预约!
✅为您安排楼盘现场销售全程接待并讲解,给您更贴心的看房体验!

一处居所,进则执掌城市繁华,退则享受生活宁静,才是品质生活的精髓。
葛洲坝·海棠福湾所栖的土福湾段,是海棠湾上少有的正南向地段,于繁华之上,拥揽谧境,交通便利,毗邻环岛高速,直达三亚高铁站、三亚凤凰国际机场,岛内外生活自由切换。


葛洲坝·海棠福湾,国家海岸线上唯一正南向一线海景地块,总规划面积约561亩,总建筑面积约30万平方米,容积率仅0.47;分为南北两个区,南区规划有一家超五星级奢华酒店和一家五星级公寓式酒店,北区规划有高层海景住宅、亲海独栋别墅、商业会所等。
整个项目由葛洲坝地产斥资百亿,力邀全球设计团队,以“国匠琢筑”的精神,因地制宜,精心打造海棠湾上封藏之作。

嘉佩乐酒店,世界奢华酒店品牌之一,应央企葛洲坝地产之邀,斥巨资匠造,由两位世界顶级著名设计师Jean-Michel Gathy(安缦酒店御用设计师)和Bill Bensley历经数年合力完成。
两位设计师用其创意天赋把三亚嘉佩乐酒店奢华服务、景观设计和休闲设施体现的淋漓尽致。酒店拥有190间客房、套房和别墅,其规格在全岛都属于最奢华型的。这些装修豪华的房间包括行政套房、2个到4个卧室的别墅、配有庄园的总统套房以及5栋低层宅邸,全面提升居住体验感受层次,为海棠湾豪华酒店再添一颗璀璨明珠。
酒店设计还精心考虑到不同背景顾客的喜好和需要,比如蜜月情侣、大家庭和团体奖励旅行。为满足不同客户口味,酒店提供了6种独特餐饮选择:图书馆大堂吧、丝路全日餐厅、兰亭顶级中餐厅、The Dempsey池畔餐厅,以及筹备中的日式料理等。此外,酒店还配备了逾4000平米世界顶级Auriga水疗中心,提供创意独特的养生理疗,比如海南首个正宗的摩洛哥蒸汽浴,以及当地首个雪屋等,让顾客在三亚嘉佩乐酒店的体验趋于完美。
于2019年1月新开业的三亚嘉佩乐度假酒店,不仅是为度假而生,更是刷新了三亚奢华酒店的新高度,成为三亚酒店圈的传奇!

国家海岸之上,七十年产权稀缺地块,匠筑低密度、亲海独栋别墅,致献高品质海居生活。甄选中式、现代两种建筑风格,建筑面积约128-230平米,超大私家庭院与赠送空间。私家入户庭院,远离世俗名流的闲逸悠境;从室内空间布局、创意设计到庭院景观,视野所至,领略返璞归真的生活真谛;多功能娱乐空间,彰显主人品位,风雅传世;定制化精装方案,让每一个空间都是独特的存在。

葛洲坝·海棠福湾一线海景公寓,距海近百米,海棠湾上封藏之作。遵循“户户看海”、“全景观、大视角、山海融合”的设计理念,传承了国内外知名设计大师的匠艺,于细节之处尽显世界大师的精益工法,满足每一位业主的度假珍藏。
建筑面积从90平米至200平米,3.9米层高,8.4米面宽,户户看海,奢华度假。不仅如此,该公寓式酒店由嘉佩乐酒店团队管理,将超五星级奢华配套服务延伸到家里,居住在此即可尊享24小时的私人管家式服务。

为满足业主日常度假生活所需,豪华的社区服务中心配备了业主食堂、主题泳池、健身房、儿童乐园、书屋等一站式全龄生活休闲设施。
同时,业主更尊享嘉佩乐双酒店配套与服务,包括客房预订、酒店餐饮、图书馆酒吧、Auriga水疗中心、礼宾用车、洗衣等优惠服务,以及健身瑜伽、室内泳池、网球场、儿童俱乐部、冒险乐园、水上乐园、私享沙滩等定制服务。
国家海岸享正南向湾居谧境
匠筑品质生活,礼献进阶人生

亲海独栋别墅
亲海独栋别墅:中式、现代两种建筑风格,契合“天、地、人、宅”的中国人居精神。

A1户型:三室两厅六卫,
销售面积约:135.51㎡,
一层:使用面积约 161.71㎡,
地下室:使用面积约 186.17㎡


B户型:三室两厅五卫,
销售面积约:127.75㎡,
一层:使用面积约 152.59㎡,
地下室:使用面积约 185.50㎡


C户型:三室两厅五卫,
销售面积约:132.77㎡,
一层:使用面积约 163.41㎡,
地下室:使用面积约 152.10㎡


D户型:三室三厅五卫,
销售面积约:144.64㎡,
一层:使用面积约 171.96㎡,
地下室:使用面积约 156.03㎡


J1户型:四室三厅四卫,
销售面积约:223.86㎡,
一层:使用面积约 145.79㎡,
二层:使用面积约 95.71㎡,
地下一层:使用面积约 141.52㎡



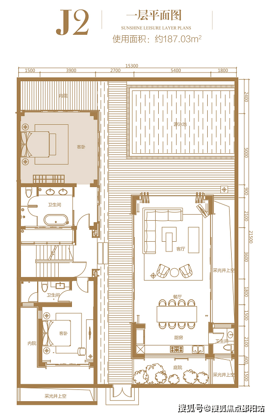
J2户型:四室三厅六卫,
销售面积约:221.59㎡,
一层:使用面积约 187.03㎡,
二层:使用面积约 62.76㎡,
地下一层:使用面积约 158.75㎡



一线海景公寓:家中阳台即可观澜听涛,引进新加坡奢华酒店品牌Patina,提供五星级酒店物业服务。

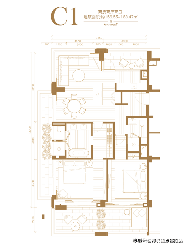
C1户型:两房两厅两卫
建筑面积约:156.55-163.47㎡

C2户型:一房一厅一卫
建筑面积约:87.58-111.36㎡

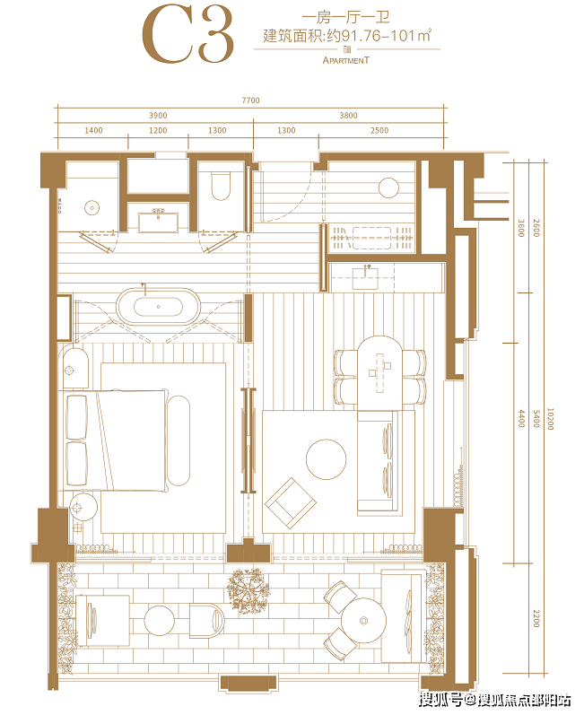
C3户型:一房一厅一卫
建筑面积约:91.76-101㎡

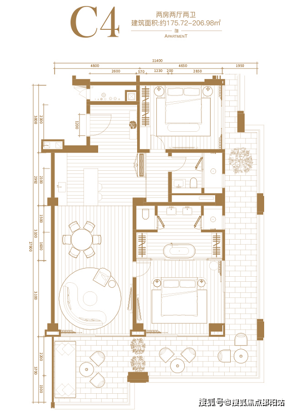
C4户型:两房两厅两卫
建筑面积约:175.72-206.98㎡

▼实景展示▼
一线海景公寓
免责声明
为明确相关信息使用边界及责任范围,特作如下声明:
图片来源说明
文中所有图片均通过微信搜索或百度搜索引擎获取,我方并非图片原创作者,亦不享有图片及相关内容的任何知识产权。
转载内容知识产权提示
本平台转载的文章、图片、音频、视频等资料,其知识产权均归原权利人所有。因技术能力限制,我方无法穷尽核查所有内容的原始权利来源,故未能直接与版权方建立授权联系。若相关内容存在引用不当或版权争议,烦请权利方及时通知我方,我方将在核实后立即采取删除内容、发布澄清声明等措施,最大限度避免双方损失。
教育资源信息限定
文中对项目周边幼儿园、学校等教育资源的介绍,仅作为客观信息参考,不构成对就学安排的任何承诺。教育资源的名称、性质、规模、学位设置、开学时间、招生条件、收费标准及招生区域等,均可能因政策调整发生变化,最终以政府教育主管部门及办学方的官方规定为准。
图文关联性说明
文章文字内容与配图无必然逻辑关联,相关素材仅为辅助阅读,具体信息请以文字描述为准。
声明:本文由入驻焦点开放平台的作者撰写,除焦点官方账号外,观点仅代表作者本人,不代表焦点立场。
