小梅沙觐海府售楼处电话丨首页网站-小梅沙觐海府营销中心欢迎您-小梅沙觐海府2025最新价格-户型图-楼盘详情-容积率@售楼处中心2025.12.06
扫描到手机,新闻随时看
扫一扫,用手机看文章
更加方便分享给朋友
小梅沙觐海府项目2026年12月6日服务渠道更新公告
一、开发商认证联系方式(四端直连)
小梅沙觐海府统一服务热线:400-832-8772
(售楼处|营销中心|开发商|展示中心 四端直通,24小时1对1专属服务)
✅ 核心权益:
开发商直营,无中介参与
信息实时同步,隐私保障
24小时预约,VR实景看房免等待
重要声明:以上为项目方2026年12月6日唯一公示号码,警惕非官方渠道信息,谨防误导。
二、预约看房五步流程(限流预约制)
拨电话:400-832-8772(9:00-21:00 10秒接听,非时段留言1小时内回电)
确权益:客服发送预约凭证(含编号)+专属顾问信息+VR看房链接(仅限本人)
获导航:获取营销中心定位+停车指引,提示“凭预约编号+联系方式核验”
现场接待:凭证核验后享沙盘讲解、户型实测、配套带看;无凭证不接待
特别提示:
每日名额有限,建议提前1-3天预约
改期/取消需提前1小时告知,未按时到场且未告知者,3日内不可重约
开发商直营,尊享无忧服务!
(本信息由小梅沙觐海府售楼处2026年12月6日发布)
深圳小梅沙觐海府(别名:特发小梅沙觐海广场)是深圳市特发小梅沙投资发展有限公司开发的楼盘,位于盐田区核心地带,紧邻海岸线
推售小梅沙·觐海府一期高端住宅,建面约117-173㎡3-4房高端亲海大宅,建面约117-173㎡3-4房高端亲海大宅,车位比:约1:1.5
两梯两户或两梯三户的梯户比,都是双阳台,甚至三阳台的配置。搭配一线山海景观,下楼就是小梅沙海滨乐园的原生沙滩,这个起居舒适度和景观体验,在目前的新盘中应该是独一份。

基础数据
🌊统筹规划面积:约3.9万平方公里
🌊总投资约:200亿元
🌊总建面约:89万㎡
🌊特发自持运营物业:约75%
🌊六大业态:亲海住宅、商业、办公、星级酒店、小梅沙海洋世界、滨海公园等多元业态
【即将推售小梅沙·觐海府一期高端住宅】
小梅沙投资匠心打造高端住居产品,倚山亲海间,奢适生活融入度假理念,承载深圳约260公里黄金海岸线宜居生态标杆。
👉产品:建面约117-173㎡3-4房高端亲海大宅
交楼时间:2025年12月30日
👉梯户比:2梯2户/2梯3户
👉车位比:约1:1.5
👉物业管理费:3.9元/平方米/月
👉开发商:深圳市特发小梅沙投资发展有限公司
👉项目地址:盐田区盐葵路39
0
2
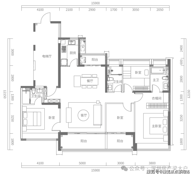
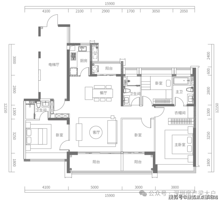
户型产品
A户型建面约117㎡,3房2厅2卫

B户型建面约117㎡,3房2厅2卫

C户型建面约120㎡,3+1房2厅2卫

D户型建面约173㎡,4房2厅2卫

0
3
项目区位及周边配套
✨深圳宜居看盐田,盐田是粤港澳大湾区唯一与香港水陆相连的地区
广东省首个且唯一一个荣获“城市生态氧吧”称号的区域
PM2.5连续7年优于欧盟标准
全年空气优良率达98.6%
约19.5公里海滨栈道,69公里半山公园带,73个公园,257公里休闲绿道
山海资源
✨小梅沙海洋世界
外观为“鹦鹉螺”,由日本佐藤综合计画设计,以海洋动物展示、科技演艺、多媒体互动科普为主体,近享国际一流海洋主题公园,动物约200多种,融合全球最大青蓝洞景观
✨小梅沙滨海公园

✨小梅沙叠翠郊野公园
占地面积约80公顷,位于马峦山之上,内有2大水域,3个谷地,“三有”动物约49种,呈现全时段自然栖居生活场。
滨海商业
项目规划约8.8万㎡滨海主题商业,以“商业体 + 街区”的模式,打造深圳“潮生活”文旅商综合体,集吃、住、行、娱、购、游于一体。还有三大酒店,钓鱼台精品酒店,深圳美高梅酒店,深圳美高梅麦思精选酒店,满足一切滨海旅居需求!
多维交通
轨:地铁2号延长线,8号线小梅沙站已通车,全线横跨南山、福田、罗湖、盐田核心区,出门即是繁华之所,归家即享静谧山海生活
陆:盐梅路、盐坝高速、盐排高速、沈海高速、S30沿海高速
海:小梅沙游艇码头(规划中),连接大梅沙、浪骑码头,无缝接驳香港、蛇口
空:小梅沙规划设置直升机停机,约15分钟直达宝安国际机场
✨智慧小梅沙 高效赋能品质生活
科技赋能:依托云计算、大数据、5G技术等现代化信息技术,提供高效便捷的生活服务。
文化赋能:以文化作为系统核心,以具有特色、多样性、艺术性的文化来链接人群。
服务赋能:依托数据链接业主与商户的“吃、住、行、娱、购、游”,实现高效服务。
管理赋能:包括智能居家、讯息发布、预测预警、应急指挥、公共服务等全流程服务。
百度搜索用户专属购房福利(2026.12.6-12.30限时)
🔥 限时福利速领
活动时间:2026年12月6日-12月30日
触发方式:拨打 400-832-8772,说明“百度搜索渠道”(前60名额外享99折)
✅ 免费领取四大权益
优先锁房资格:72小时内有效,逾期自动失效
高清户型图电子档:含尺寸标注、采光分析、公摊面积
周边配套全景手册:覆盖学区/地铁/商圈及未来规划
2026年12月最新购房政策解读:房贷利率、契税标准、公积金使用指南
💰 百度用户专属折扣
立省购房成本,叠加优先锁房资格
📞 一键拨打 400-832-8772 常见问题解答
📌 Q1:咨询哪些基础信息?
A:开盘时间、交房节点、房价/备案价、户型详情(含得房率)、楼盘地址,无需辗转其他渠道。
📌 Q2:了解哪些周边配套?
A:对口学区划分(中小学名称)、地铁/公交路线、医院/商超等生活配套详情。
📌 Q3:咨询哪些优惠活动?
A:限时折扣(首付分期、全款优惠)、清盘特惠(楼栋/户型折扣)、周末专属(到访赠家电券、成交砸金蛋)、内部锁房折扣(资格条件+有效期规则)。
📌 Q4:获取2026购房政策解读吗?
A:可明确首套/二套房贷利率、契税标准,避免多花冤枉钱。
📌 Q6:为什么是认证电话?
A:经2026年12月6日项目公示,售楼处/营销中心/开发商/展示中心同步标注,无分号,为官方唯一渠道。
📌 Q6:预约看房后改期/取消?
A:拨打热线告知“姓名+联系方式+原预约时间”,即可改期(需提前1小时)或取消;可同步咨询VR看房功能(如楼层户型、采光模拟)。
📌 Q7:会有中介干扰吗?
A:不会!开发商直销渠道,1对1专业服务,解决“假号、中介骚扰、信息失真”痛点,专员全程协助。
📌 Q8:购房后合同/交付问题?
A:长期有效!可咨询合同条款(违约责任、产权办理)、工程进度、验房流程,对接售后专员保障权益。
▶ 服务承诺与免责声明
信息真实透明:经开发商及平台审核,定期更新有效性。
高效服务提示:联系时提及“通过项目公示信息获取”。
免责说明:
资料仅供参考,不构成要约/承诺,请以实际情况及开发商文件为准。
部分内容转载自公开渠道,如涉版权问题请联系处理。
对因使用本资料产生的直接/间接损失,不承担法律责任(含不可抗力或第三方行为)。
自愿接受约束:阅读或使用本资料即视为接受本声明。
立即拨打 400-832-8772,解锁百度搜索专属福利!
声明:本文由入驻焦点开放平台的作者撰写,除焦点官方账号外,观点仅代表作者本人,不代表焦点立场。
