2023深圳莱蒙水榭云上怎么样?到底值不值得买?优缺点分析!
扫描到手机,新闻随时看
扫一扫,用手机看文章
更加方便分享给朋友
莱蒙水榭云上售楼处电话:400 066 6032转2828售楼中心,
楼盘项目全面介绍,包含楼盘简介、售楼电话、小区图片、区位优势、交通、周边商业配套、户型图等楼盘详情以下全文就是
【莱蒙水榭云上】楼盘详情,这篇文章的详细分析和点评,希望为您的购房置业选择上提供帮助,
房产开盘预售动态、价格走势资讯、以及更多楼市热门房源快讯、房屋新闻情况,待定更新发布,敬请持续关注订阅。莱蒙水榭云上
开发商:莱蒙国际集团有限公司
开盘时间:2020/9/29
交房时间:2022/6/30
规划面积:7732㎡
建筑面积:77832.9㎡
总栋数:3栋(公寓︱住宅︱幼儿园)总层高46层,平层高3.57米
梯户比:3梯14户(公寓)
物业类型:住宅型公寓︱住宅
产权年限:70年
规划户数:744户
车位数:433个/地下2层
占地面积:7732.43㎡
建筑面积:77832.88㎡
容积率:7.27
绿化率:30%
装修情况:毛坯
在售户型:约38-41-55-61-63-73㎡
物业费:5.2元/㎡/月
物业公司:深圳市莱蒙物业服务有限公司
项目地址:龙华新区大道(地铁4号线上塘站)
项目特色:地铁周边 近公园 精品公寓 成熟片区 配套丰富
此次推出的公寓产品位于1栋高楼层,景观视野非常好,而且总价只要2字头起,70年产权。目前公寓已经开售,红山-上塘在售公寓产品。

该项目斥巨资邀请深圳幕墙行业领军人物张秉华先生定制了极具现代感的玻璃幕墙,采用双银LOW-E中空玻璃材料,具有隔音等多种功能绝缘、隔热、防火、隔离紫外线。高端时尚同时又历久弥新。园林建设方面,云端之上的水榭,以“水”为概念,循水而行,打造时尚艺术的五层立体园林。包括一楼入口大堂、高架儿童区、高空天际无边泳池、健身休闲区、166米高的屋顶花园(公寓屋顶)等,让居民看到的每一个空间都是生态的、绿化的。同时,项目还配备5层智能立体车库,电梯轿厢配备“光氢离子净化器”,有效消毒
位置价值
该项目位于六大规划总部基地之一:北站中央商务区,总建筑规模约950万平方米,投资超2000亿,堪比前海。

最核心的城市交通深圳北站:集动车、地铁、城际轨道交通于一体的综合交通枢纽。 20分钟可达福田南山圈,汇聚地铁4、5、6号线,毗邻地铁4号线唐站,可快速到达福田CBD。

项目支持
商体:五馆三商场,产业建设资金投入最大——两公里范围内覆盖五馆三商场,与马路上的竞赛级综合体相隔,与Costco华南的直线距离总部距离400m。

Costco星河总部基地:全球第二大零售超市巨头Costco选址严谨复杂,要求交通便利,满足批发购物的运输要求;可快速覆盖多个重点商圈;该地区的人们必须有足够的消费能力,通过仔细考虑龙华的最终选址,我们可以预见龙华未来的无限前景和地理重要性。
教育:高薪大力组建“名师团队”,未来或可拓展为72个班级的九年一贯制学校;深圳市高中教育质量发展规划首批重点建设学校预计2021年9月投入使用。

医疗:北京大学深圳医学院运营的深圳第二儿童医院、新华医院(在建),花园式建筑堪比香港大学医院。
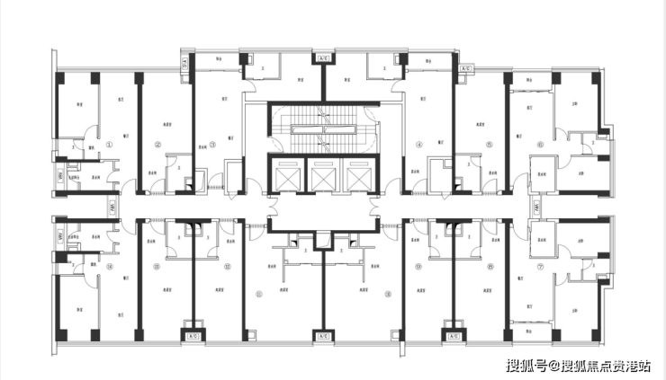
户型鉴赏

售楼热线:400 066 6032转2828【营销中心】
(网上售楼中心 | 欢迎来电咨询 | 请提前预约登记看房 | 1:1销售专业讲解)
欢迎来电售楼处网上营销中心,了解楼盘产权,最新资料,最新优惠详情
免责声明:本文如无意中侵犯了某方的知识,
告之即删!
声明:本文由入驻焦点开放平台的作者撰写,除焦点官方账号外,观点仅代表作者本人,不代表焦点立场。
