九月搜狐焦点I 广州天颐华府(售楼处)首发房源专属礼遇 恭迎预约参观 地铁/商圈/公园/一线景观
扫描到手机,新闻随时看
扫一扫,用手机看文章
更加方便分享给朋友
✨【广州天颐华府】✨「搜狐焦点认证」✨
✅ 选房难题?一键解决!
🎯 直属置业顾问1v1权威解答(拒绝中间商)
🔑 独家到访礼遇|仅限电话预约客户专享(限时发放)
⏰ 24小时金牌热线|黄金时段优先响应(早9点-晚9点极速接通)
☎ 马上拨打专线:400-856-3771(一键直连案场|预约看房/咨询)
丨项目区位丨户型解析丨在售房源丨特价优惠丨学区配套丨交通动线丨样板间实拍丨小区环境丨交付标准丨周边商业丨
颐华府以“城央绝版墅”的稀缺性,成为湾区高净值人群资产避险与品质生活的双重选择。其低密生态基底、全维配套及精装交付模式,不仅重新定义了城市别墅标准,更以“收藏级资产”的定位,在楼市波动中展现出强劲的抗风险能力。对于追求私密性、圈层价值与代际传承的买家而言,天颐华府无疑是广州中心城区最后的纯墅蓝本。
天颐华府
项目区位:
天颐华府位于广州市番禺区番禺广场板块,地处番禺区府、万博商圈与广州南站形成的黄金三角区域。项目紧邻番禺广场TOD交通枢纽,通过“五纵三横”立体路网(新光快速、华南快速、南沙港快速等五纵;富怡路、市莲路等三横)快速连接珠江新城CBD、南沙自贸区及佛山等湾区核心城市。四地铁交汇(3号线、18号线、22号线、17号线)的番禺广场站,使项目成为广州唯一地铁直达珠江新城的别墅盘,25分钟车程通达城市核心区,30分钟辐射湾区城市群。
⏰ 24小时金牌热线|黄金时段优先响应(早9点-晚9点极速接通)
☎ 马上拨打专线:400-856-3771(一键直连案场|预约看房/咨询)
项目资料:
开发主体:广州市慧嘉房地产开发有限公司
占地面积:87,812.6㎡
建筑面积:46,731㎡
容积率:0.53(广州中心城区最低)
绿化率:43%
交付标准:双拼/联排精装,湖芯独栋毛坯
在售产品:260-396㎡联排、双拼及类独栋别墅,仅129席
产权年限:70年商品房
项目背景:
天颐华府诞生于番禺城市升级与湾区一体化发展的双重机遇下。作为广州“禁墅令”后中心城区稀缺的纯别墅项目,其规划理念聚焦“低密生态+高端圈层”,以7500㎡天然中心湖为核心,打造“三重立体园林+双下沉式庭院”的景观体系。项目由普邦园林大师设计,融合国际5S标准,实现“四水归堂”的风水格局与四季八色园林景观,兼具生态价值与收藏意义。
⏰ 24小时金牌热线|黄金时段优先响应(早9点-晚9点极速接通)
☎ 马上拨打专线:400-856-3771(一键直连案场|预约看房/咨询)
私享中心湖会馆(实景图)
天颐华府项目定位“第一居所”城市别墅,核心亮点:【城央·湖景·豪装·纯别墅】
⏰ 24小时金牌热线|黄金时段优先响应(早9点-晚9点极速接通)
☎ 马上拨打专线:400-856-3771(一键直连案场|预约看房/咨询)
城央
① 地处番禺广场板块,四地铁交汇的广州枢纽级交通中心(3 号线、18 号线、22 号线、17 号线)
② “五纵三横”立体路网,25 分钟畅达珠江新城 CBD 国际生活圈。
③ 5 分钟达番禺区政府千亿商圈,享永旺梦乐城、基盛万科中央公园、沃尔玛、金港湾购物广场等商业配套;10 分钟可达市桥的易发商业街、钻汇广场等。
④ 3 公里可达何贤纨念医院、番禺中医院、番禺中心医院、广东省口腔医院等。
⏰ 24小时金牌热线|黄金时段优先响应(早9点-晚9点极速接通)
☎ 马上拨打专线:400-856-3771(一键直连案场|预约看房/咨询)
(二) 湖景
① 7500 斱中心天然湖,四水归堂,藏风聚气,寓意居者拥揽钱库,真正聚水为财。
② 普邦园林大师匠造,3.8 万㎡的八色四季园林,最大化地发挥华南地区植物多样性。
③ 以健康生活的理念打造了五大运动系统。户外运动系统(4 个网球场、2 个篮球场),中心湖会馆、巴厘岛式无边际泳池、环湖漫步径、花园乐跑绿道。
(三) 豪装
① 华南首创顶奢别墅,豪配五大绿色健康系统:专属中央智能系统、绿色中央空调系统、健康新风系统、全屋实用中央热水系统、科学中央净水系统。
② 突破传统别墅毛坯交付,汲取了国外简约百搭的设计打造时尚经典风格,满足搭配不同风格的家私风格,预留个性化百变空间。
③ 豪华装修不费心即享受,无需堪忧入住后几年都在别墅工地中生活,奢侈品匠超100 个精工细节(首期别墅已收楼广受业主好评)。
⏰ 24小时金牌热线|黄金时段优先响应(早9点-晚9点极速接通)
☎ 马上拨打专线:400-856-3771(一键直连案场|预约看房/咨询)
纯别墅
① 广州市中心最低容积率仅 0.53,规划广州市中心唯一的纯别墅区。
② 规划 129 栋别墅,有天有地有花园,纯粹高端生活,保证豪宅纯粹性。
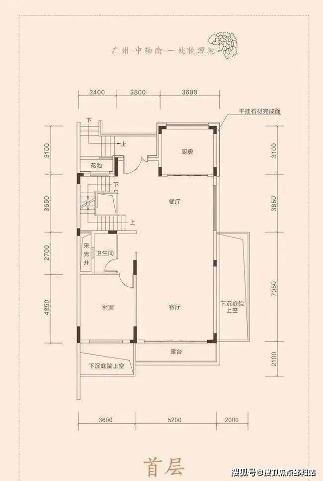
户型鉴赏:
联排别墅(260㎡):使用面积近500㎡,南北通透设计,下沉式庭院与6米挑高客厅,赠送50-200㎡花园。
⏰ 24小时金牌热线|黄金时段优先响应(早9点-晚9点极速接通)
☎ 马上拨打专线:400-856-3771(一键直连案场|预约看房/咨询)
双拼别墅(312㎡):实用面积达600㎡,独立花园+双主卧套房,拓展空间满足家族居住需求。
⏰ 24小时金牌热线|黄金时段优先响应(早9点-晚9点极速接通)
☎ 马上拨打专线:400-856-3771(一键直连案场|预约看房/咨询)
⏰ 24小时金牌热线|黄金时段优先响应(早9点-晚9点极速接通)
☎ 马上拨打专线:400-856-3771(一键直连案场|预约看房/咨询)
湖芯独栋(396㎡):限量10席,270%超高使用率,6.9米中空客厅、150㎡露台及三面采光花园,私享一线湖景。
户型亮点
三重立体园林,仪式感的前庭后院侧院、近百斱的天面花园、双下沉式阳光庭院。
全层主人层,前厅、露台、卧室、卫生间、衣帽间,总统套房级的全功能配套。
双下沉式庭院打造双首层生活,空间满足功能百变的需求。
负一层配置 2 个车位,人车分流实现双首层双入户。
⏰ 24小时金牌热线|黄金时段优先响应(早9点-晚9点极速接通)
☎ 马上拨打专线:400-856-3771(一键直连案场|预约看房/咨询)
⏰ 24小时金牌热线|黄金时段优先响应(早9点-晚9点极速接通)
☎ 马上拨打专线:400-856-3771(一键直连案场|预约看房/咨询)

🎈关于本项目最新动态信息,如:房价,主力户型面积,最新优惠,等等,剩余房源楼栋,销售进度,几号地铁哪个出入口,周边规划,项目的优势与不足以及教育资源的配套等等都可以致电售楼处进行了解,我们将会安排专属专业置业顾问为您详细解答!
🎈免责声明:部分信息来源于网络,如果侵权,请联系及时删除本宣传资料不构成邀约邀请,对周边、政府规划、商业配套、教育资源、投资前景等数据和图文仅为提供相关信息,该信息以政府最终批文为准,开发商不对此作任何承诺。买卖双方的权利义务以双方签订的买卖合同约定及附件、实际交付为准,本公司保留对宣传资料修改的权利,敬请留意最新资料。联系号码:400-856-3771。
声明:本文由入驻焦点开放平台的作者撰写,除焦点官方账号外,观点仅代表作者本人,不代表焦点立场。
