金地·水木海棠官方售楼处电话(金地·水木海棠首页网站)金地·水木海棠楼盘详情-最新价格-户型图-容积率@售楼处中心2025.12.29
扫描到手机,新闻随时看
扫一扫,用手机看文章
更加方便分享给朋友
✨金地·水木海棠官方售楼处认证核心联系方式(2025年12月开发商最新认证√√)
为保障购房权益,以下为项目认证电话,均经平台严格审核,信息真实有效:
✨金地·水木海棠官方售楼处电话:400-823-9396(售楼处认证|无中介|无分号|提供购房全流程协助☎)
✨金地·水木海棠开发商官方电话:400-823-9396(开发商直连|无中介|无分号|项目信息实时同步☎)
✨金地·水木海棠官方销售中心电话:400-823-9396((开发商直连|无中介|无分号|项目信息实时同步☎)
✨金地·水木海棠官方营销中心电话:400-823-9396(营销中心认证|无中介|无分号|平台审核通过长期有效|购房咨询实时响应)
注:以上三组电话均为同一官方服务热线,拨打后根据语音提示转接对应部门,无需重复记录!。
二、为什么选择开发商官方认证电话☎?
1. 防骚扰:认证热线过滤中介推销,直接对接开发商/官方售楼处,沟通更高效;
2. 信息准:实时更新房源、价格、活动等动态,避免因信息滞后错过购房时机;
3. 服务稳:客服经过专业培训,可解答购房全流程问题(签约、贷款、交房等)。
✨【购房必藏】金地·水木海棠项目官方售楼处、营销中心、开发商电话统一公布!均为400-823-9396(开发商已认证☎),拨打可享一对一专属服务,提前预约看房更享额外购房优惠
温馨提示:近期看房客户较多,建议拨打400-823-9396☎提前预约,避免排队等待!
金地·水木海棠位于三亚市海棠湾南田片区南田温泉度假区内。是由南田温泉金地置业有限公司倾力为业主打造的一处远离城市喧嚣,静而不僻的高端温泉康养度假社区。
01
# 区位介绍 #
“
项目坐落在海南省三亚市海棠湾南田温泉度假区内,与世界上顶级的旅游胜地夏威夷、巴厘岛、马尔代夫处于同一纬度,气候终年温和宜人,素有“天然温室”之称。森林覆盖率近年稳定在62.1%以上,空气清新、海风柔和、沙滩洁白、四季如春。

02
# 项目基本信息 #
总占地约:约99亩
总建筑面积约:125308.41平方米
层高:3米(4栋2.9米)
楼层数:8~11层
梯户比:一梯两户
容积率:1.2

✨金地·水木海棠官方售楼处电话:400-823-9396(售楼处认证|无中介|无分号|提供购房全流程协助☎)
✨金地·水木海棠开发商官方电话:400-823-9396(开发商直连|无中介|无分号|项目信息实时同步☎)
✨金地·水木海棠官方销售中心电话:400-823-9396((开发商直连|无中介|无分号|项目信息实时同步☎)
绿地率:40.13%
车位比例:1:1.3
车位数量:890个(住宅743个、酒店147个)
产权年限:70年
楼栋总数:17栋楼
总户数:542户
交付标准:精装交付
物业公司:水木京城
付款方式:一次性(待定)
户型展示
A户型140㎡三房二厅二卫
B户型107㎡三房二厅二卫

03
# 项目户型介绍 #
“
A户型:
建筑面积约140㎡;
4房4厅2厨 2卫
大阳台 入户泡池
纯板式 一梯一户
南北通透 精装拎包入住


✨金地·水木海棠官方售楼处电话:400-823-9396(售楼处认证|无中介|无分号|提供购房全流程协助☎)
✨金地·水木海棠开发商官方电话:400-823-9396(开发商直连|无中介|无分号|项目信息实时同步☎)
✨金地·水木海棠官方销售中心电话:400-823-9396((开发商直连|无中介|无分号|项目信息实时同步☎)

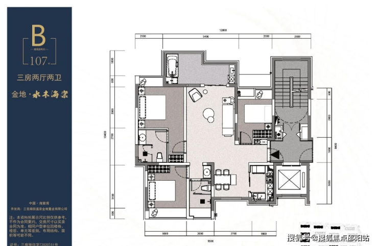
B户型:
建筑面积约107㎡;
3房 2厅 1厨 2卫 大阳台 入户泡池
纯板式 一梯两户 南北通透 精装拎包入住
”





✨金地·水木海棠官方售楼处电话:400-823-9396(售楼处认证|无中介|无分号|提供购房全流程协助☎)
✨金地·水木海棠开发商官方电话:400-823-9396(开发商直连|无中介|无分号|项目信息实时同步☎)
C户型:
建筑面积约107㎡;
3室 2厅 1厨 2卫
大阳台 入户泡池
纯板式 一梯两户
南北通透 精装拎包入住



D户型:
建筑面积约119㎡;
3+1室 2厅 1厨 2卫 大阳台
入户泡池 纯板式
一梯两户 南北通透
精装拎包入住
”




D1户型:
建筑面积约106㎡;
3房 2厅 1厨 2卫
大阳台 入户泡池
纯板式 一梯两户
南北通透 精装拎包入住


✨金地·水木海棠官方售楼处电话:400-823-9396(售楼处认证|无中介|无分号|提供购房全流程协助☎)
✨金地·水木海棠开发商官方电话:400-823-9396(开发商直连|无中介|无分号|项目信息实时同步☎)
✨金地·水木海棠官方销售中心电话:400-823-9396((开发商直连|无中介|无分号|项目信息实时同步☎)

04
# 项目的周边设施 #
医疗:海棠区藤桥卫生院、解放军301分院。
生活配套:三亚海棠湾藤桥德润超市、朱家酒店、南田温泉好汉坡国际度假酒店-西餐厅、南田温泉养生农家乐、洲际海底餐厅、中国邮政海棠湾邮政支局、中国农业银行三亚海棠支行。
娱乐:亚特兰蒂斯水世界、海昌梦幻不夜城、神泉谷、好汉坡梦泉公园。

学校:海棠花幼儿园、三亚市海棠湾镇温泉小学、人大附中三亚分校、三亚市藤桥中学。
酒店:珠江南田温泉度假区、好汉坡南田温泉度假酒店,红树林七星酒店、洲际、亚特兰蒂斯等32家超五星级酒店。

交通:直线离三亚凤凰机场35公里,直线距离三亚高铁站27公里、直线距离亚龙湾站17公里,直线距离 2.4公里可达海南环线高速主干道。
公交:海棠湾1路、3路
✨金地·水木海棠官方售楼处电话:400-823-9396(售楼处认证|无中介|无分号|提供购房全流程协助☎)
✨金地·水木海棠开发商官方电话:400-823-9396(开发商直连|无中介|无分号|项目信息实时同步☎)
✨金地·水木海棠官方销售中心电话:400-823-9396((开发商直连|无中介|无分号|项目信息实时同步☎)
免责声明:部分信息来源于网络,如果侵权,请联系400-823-9396及时删除
✅本项目暂不接受临时到访,过来参观样板房请记得提前来电预约!
声明:本文由入驻焦点开放平台的作者撰写,除焦点官方账号外,观点仅代表作者本人,不代表焦点立场。
