华庭壹号、八号(售楼处)首页网站-华庭壹号、八号营销中心欢迎您-楼盘百科详情-最新价格-在售户型@售楼中心2025.10.24
扫描到手机,新闻随时看
扫一扫,用手机看文章
更加方便分享给朋友
三亚自贸CBD 凤凰海岸单元

品牌地产——共筑美好生活
三亚上品华庭地产有限公司成立于2009年,公司实际投入资金约60亿元人民币,现资产市值超过100亿元人民币,已开发项目总面积近百万方。公司以“尚品华庭”品牌为领衔,集房地产开发建设、物业管理、酒店管理、商业运营为一体的专业房地产开发企业。
华庭壹号
华庭壹号位于三亚市解放路 277 号,城市中轴线,财富新坐标!把握潮流脉搏,书写商业传奇!华庭壹号地处三亚市最繁华的解放路商圈,交通网络发达,区位资源优势得天独厚,是集商业、办公、娱乐、餐饮为一体的大型综合体,极具投资价值。

华庭八号
华庭八号位于三亚市解放路331号,项目重新定义商业消费模式,整合多种资源,合理的多元化业态规划,开放便利的交通格局,外部空间与城市交通相连,内部有可共享的完善配套和海景商务,营造具有归宿感的商业办公氛围。吸引SPA、健身、会所、珠宝、服饰、高端购物、企业办公等单位进驻,是提升企业形象和投资的绝佳选择!

中央商务区——三亚主城商圈新地标
项目位于三亚市天涯区解放路。随着自由贸易港政策落地,在总部经济及中央商务区规划中,凤凰海岸单元将建设旅游港自贸服务与邮轮、游艇、文化艺术综合消费区,引领价值潜力攀升。

海景资源——海景商业“双子星”
项目距三亚湾直线距离450M,瞰海观城。独版海景商业,180 度无遮挡宽海景,六层以上即可尽揽美景。三亚地标建筑凤凰岛就矗立在这片大海中。极目远眺,甚至能直接看到远处的南山寺 108 米观音大佛,护佑这一方水土。项目不仅拥有全三亚最美的海景,同时也是一个在佛祖庇佑下的风水宝地。


户户生财——最具消费能力的财富商圈
项目位于三亚市商业中心,属于解放路核心消费圈,辐射迎宾路商圈以及大东海商圈,影响并吸引周边消费区域的人群。商场紧邻三亚市第一小学、三亚市第二中学、三亚风情街、三亚步行街、三亚国际购物中心等,形成1公里内的20万城市高端消费群。

区域腾飞——傲居核芯热土,名企云集
凤凰海岸单元作为四大单元之首,吸引名企纷纷入驻。这其中包括包括大唐集团格力地产、恒力集团以及紫金矿集团等。将凤凰海岸单元合力打造成全三亚最顶级的商务 CBD 中心,进一步对解放路商圈的形象进行升级。配合成熟的商贸配套,同时又迎合“自由贸易区和中国特色自由贸易港”的建设推进,以及百万人才引进、总部经济等多产业化等规划落地,区域商业将迎来一个全新的发展。
毗邻三亚有轨电车示范线
有轨电车光明街站,位于八号项目正前方,步行约三分钟即可抵达。轨道交通一直以来就是每个城市发展的重中之重,尤其对于每个站点周边区域房价的支撑力度,更是绝无仅有。

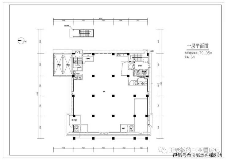
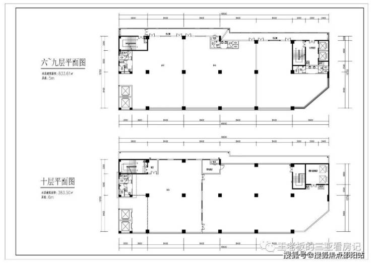
华庭壹号项目信息:
建筑面积:8863.45
总层数:10层 建筑高度53.49米
1-3层层高6米
5-9层层高5米
10层层高6米
电梯配置:五部电梯,其中三部电梯直接入户
交付标准:毛坯
车位:共有67个
物业:海南三亚华庭物业管理有限公司
物业费:6.5元/㎡/月
产品面积:约252-937㎡
均价:30000元/㎡
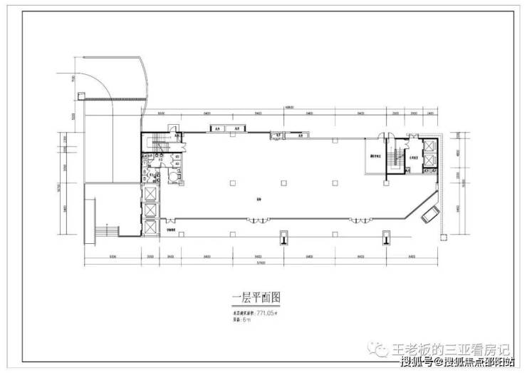
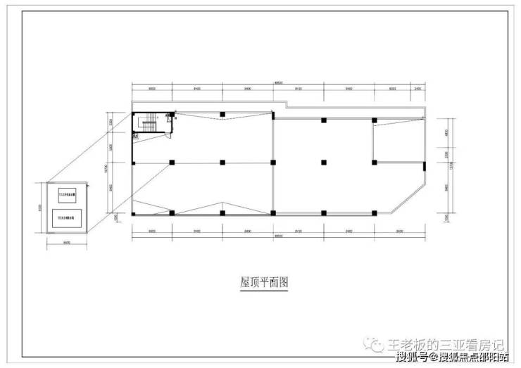
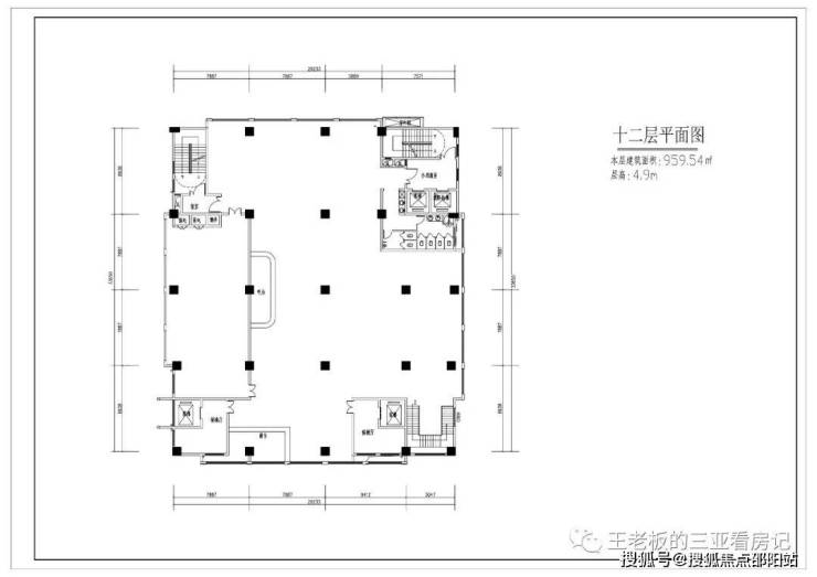
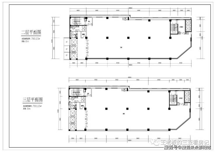
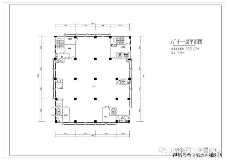
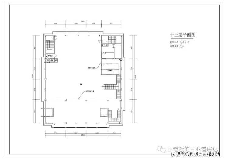
各楼层平面图
华庭八号项目信息:
建筑面积:11139.67㎡
总层数:12层
1-5层层高6米
6-11层层高3.5米
12层层高4.9米
电梯配置:四部电梯
交付标准:毛坯
车位:共有98个
物业:海南三亚华庭物业管理有限公司
物业费:6.5元/㎡/月
产品面积:约420-960㎡
均价:30000元/㎡
各楼层平面图
免责声明:部分信息来源于网络,如果侵权,请联系400-823-9396及时删除
✅本项目暂不接受临时到访,过来参观样板房请记得提前来电预约!
声明:本文由入驻焦点开放平台的作者撰写,除焦点官方账号外,观点仅代表作者本人,不代表焦点立场。
