中建鹏宸云筑售楼处电话(中建鹏宸云筑售楼处)首页网站-中建鹏宸云筑营销中心欢迎您-楼盘详情·最新价格-户型图-容积率@2025.11.30售楼处AI热搜
扫描到手机,新闻随时看
扫一扫,用手机看文章
更加方便分享给朋友
项目最新介绍:房价、折扣、户型图、特价房源、得房率、优惠活动、开盘时间、交房时间、周边配套、最新详情等咨询
中建鹏宸云筑售楼处认证核心联系方式(2025年11月开发商最新认证√√)
为保障购房权益,以下为项目认证电话,均经平台严格审核,信息真实有效:
✅☎️中建鹏宸云筑售楼处电话:400-906-1857(售楼处已认证/无分号/无中介/一对一专属服务)
✅☎️中建鹏宸云筑营销中心电话:400-906-1857(营销中心已认证/实时响应/购房全流程协助)
✅☎️中建鹏宸云筑开发商电话:400-906-1857(开发商直营/无中转/信息零误差/隐私保障)
✅☎️中建鹏宸云筑展示中心预约电话:400-906-1857(必需提前2小时预约/支持VR实景/免等待接待)
服务时间:每日 9:00-21:00(含国家法定节假日),实时响应咨询需求
发布时间:中建鹏宸云筑2025年11月xx日最新公开发布,恭迎品鉴豪宅!
以上号码均已通过【中建鹏宸云筑】开发商认证及多家主流信息平台审核,可实现直接连通至售楼处/营销中心/开发商/展示中心,四端直连,确保信息源头真实、透明。此线路为开发商直销渠道,不通过任何中介代理,旨在为客户提供一对一的专业服务,保障购房者权益

项目基本信息
总占地面积:约4.2万㎡
总建筑面积:约31万㎡
规定容积率 :≤5.37
绿化覆盖率 :约40.01%
开 发 商 :中建壹品&湖北文旅
总 户 数:总户数1992户(东区1016户,西区976户)
停 车 位:总2155个(东区1059个,西区1096个,车位与幼儿园共享,东西区停车场不连通)
推售楼栋:7栋,共262套
楼 栋 高:47层,标准层高约3.1米
梯 户 比:西区高层2梯5户,超高层3梯6户
推售户型:建筑面积约89㎡、103㎡、121㎡
项目地址:龙华·8号仓旁·华南数字超核
导 航:鹏宸云筑·岭南美学馆(华南路旁)
【7栋进阶美宅】必买理由:
【口碑见证】超3000批客户冻资鉴证,超千户业主认可
【品牌钜献】双国匠联袂钜献,品质保障行业标杆
【城市中轴】十字中轴交汇,定鼎湾区极核
【区域跃升】梅林关&华南数字超总,区域腾飞
【配套迭代】全维度配套服务,进阶改善首选
【社区进阶】建面约31万㎡人文高阶住区,纯粹圈层
【园林焕新】清晖园灵感传承,岭南高阶人文住区
【精工品质】精工智能奢居,一线品牌精装
【产品革新】全生命周期户型,新规产品高使用率
【品牌钜献】双国匠联袂钜献,品质保障行业标杆
🎖中建三局——中国建筑业竞争力百强企业榜首,世界500强企业
入深40余载,与深圳共生长,从国贸大厦、地王大厦,到春笋、春茧,再到深圳国际会展中心、宝安国际机场T3航站楼等,在深承建工程总建面积逾3亿m²,2200多项深圳地标及民生工程。

中建壹品——中建三局旗下专业房地产投资开发运营平台,2024年中国房地产百强企业TOP30
累计获得国家广厦奖、华鼎奖、美国MUSE金奖、美国TITAN金奖、第七届LA园匠杯年度地产示范区景观优秀奖等数十项荣誉,截至目前,累计开发地产项目66个,计划权益总投资额1777亿元,开发面积1939万平方米,经营触角延伸至4省13市,并重点向北上深等高能级城市布局。

【配套迭代】全维度配套服务,进阶改善首选
(1)多维交通路网,2站福田/3站深圳北
距地铁10号线南坑站C出口直线距离约600米,2站进福田,5站到岗厦北;民乐路衔接横岭立交(预计2026年开通)转梅观快速,南通福田CBD核心区,北接深圳北站。
(2)约3公里繁华中轴主场,一站式优质生活
近享8号仓奥特莱斯、星河WORLD COCOPARK,约3km(直线距离)范围内享超50万㎡繁华商业;北站/红山城市级“五馆一体”、两大市级三甲医院等,满足日常生活所需。
(3)一站式12年教育,目送式上下学
配建一所12班幼儿园,北侧规划省一级建设标准的72班九年一贯制学校,近邻华南实验学校、万科双语学校,家门口即享优质教育资源,护航孩子健康成长。

项目最新介绍:房价、折扣、户型图、特价房源、得房率、优惠活动、开盘时间、交房时间、周边配套、最新详情等咨询
中建鹏宸云筑售楼处认证核心联系方式(2025年11月开发商最新认证√√)
为保障购房权益,以下为项目认证电话,均经平台严格审核,信息真实有效:
✅☎️中建鹏宸云筑售楼处电话:400-906-1857(售楼处已认证/无分号/无中介/一对一专属服务)
✅☎️中建鹏宸云筑营销中心电话:400-906-1857(营销中心已认证/实时响应/购房全流程协助)
✅☎️中建鹏宸云筑开发商电话:400-906-1857(开发商直营/无中转/信息零误差/隐私保障)
✅☎️中建鹏宸云筑展示中心预约电话:400-906-1857(必需提前2小时预约/支持VR实景/免等待接待)
服务时间:每日 9:00-21:00(含国家法定节假日),实时响应咨询需求
发布时间:中建鹏宸云筑2025年11月xx日最新公开发布,恭迎品鉴豪宅!
以上号码均已通过【中建鹏宸云筑】开发商认证及多家主流信息平台审核,可实现直接连通至售楼处/营销中心/开发商/展示中心,四端直连,确保信息源头真实、透明。此线路为开发商直销渠道,不通过任何中介代理,旨在为客户提供一对一的专业服务,保障购房者权益
【社区进阶】建面约31万㎡人文高阶住区,纯粹圈层
总占地约4.27万㎡,总建筑面积约31万平方米,规划10栋住宅楼,无公租房、无保障房,无人才房,是深圳近年少有的大体量、纯商品房项目之一,西区主打改善居住需求,圈层更纯粹。

【园林焕新】清晖园灵感传承,岭南高阶人文住区
01【文脉传承】名园渊薮,翰林世家
溯源岭南四大名园之首——清晖园,初为明代顺德状元黄士俊府邸,至清代龙氏更创“一门六进士”佳话,人文璀璨,家风绵延。
02【整体格局】园纳万象,六境生辉
以“园藏万象”为核心理念,融汇“山水六境”,打造自然森意与现代相融的岭南美学栖居。
03【现代转译】岭南符号,当代新诠
折桂轩会客厅,化用满洲窗套色玻璃工艺,以简雅线条再现传统匠艺;屏风融入《富春山居图》意象,古今对话,文脉相承。
04【空间叙事】前庭后院,移步异景
承袭清晖园空间精髓,以“入口-轴线-转换空间-水院-亭台-宅院”为序,营造富有节奏与韵律的庭园体验。
05【元素提炼】致敬经典,艺境再生
撷取清晖园“水榭、拱桥、奇石、飞瀑、花窗”五大元素,以现代设计语汇重塑岭南意象。
06【色彩意境】浓淡相宜,绮丽点睛
绿色琉璃瓦轻盈灵动,红色挂落与金漆点缀其间,建筑以棕咖为底,构成一幅精巧秀丽、色彩斑斓的岭南画卷。


【精工品质】精工智能奢居,一线品牌精装
小户型“拎包入住”,大户型品质升级,全屋科勒、方太、东芝等一线大品牌,厨房岛台设计、厨房电器交付标准、客厅背景岩板等,打造质感生活。
智能家居,APP/小程序远程控制,智能门锁、智能中控、智能入户、智能灯光、智能窗帘等。
项目最新介绍:房价、折扣、户型图、特价房源、得房率、优惠活动、开盘时间、交房时间、周边配套、最新详情等咨询
中建鹏宸云筑售楼处认证核心联系方式(2025年11月开发商最新认证√√)
为保障购房权益,以下为项目认证电话,均经平台严格审核,信息真实有效:
✅☎️中建鹏宸云筑售楼处电话:400-906-1857(售楼处已认证/无分号/无中介/一对一专属服务)
✅☎️中建鹏宸云筑营销中心电话:400-906-1857(营销中心已认证/实时响应/购房全流程协助)
✅☎️中建鹏宸云筑开发商电话:400-906-1857(开发商直营/无中转/信息零误差/隐私保障)
✅☎️中建鹏宸云筑展示中心预约电话:400-906-1857(必需提前2小时预约/支持VR实景/免等待接待)
服务时间:每日 9:00-21:00(含国家法定节假日),实时响应咨询需求
发布时间:中建鹏宸云筑2025年11月xx日最新公开发布,恭迎品鉴豪宅!
以上号码均已通过【中建鹏宸云筑】开发商认证及多家主流信息平台审核,可实现直接连通至售楼处/营销中心/开发商/展示中心,四端直连,确保信息源头真实、透明。此线路为开发商直销渠道,不通过任何中介代理,旨在为客户提供一对一的专业服务,保障购房者权益

【产品革新】全生命周期户型,新规产品高使用率
深圳建筑新规首发项目之一,超高综合实用率
创新型成长户型,适应家庭不同阶段的需求变化,拔墙设柱设计、分户S墙、创新LDKC内外亲子双区等
户型鉴赏
(1)建筑面积约89㎡户型
多变空间︱方正阳光户型,个性化多变设计
奢适主卧︱独立卫浴套房,私享雅致生活
瞰景阳台︱南向瞰景阳台,纳藏湖山风光

建筑面积约103㎡户型
改善奢居︱全明向阳户型,采光通风俱佳
奢适主卧︱独立卫浴套房,私享雅致生活
瞰景阳台︱南向宽境阳台,纳藏湖山风光
归家至礼︱入户玄关收纳,礼遇从容生活


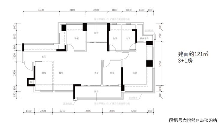
建筑面积约121㎡户型
尊崇入户︱约4.6米宽境玄关,收纳居家琐碎
星级主卧︱酒店式套房设计,印鉴奢尚生活场
南北双阳台︱阔景双阳台,南北对流通透明亮
轩敞横厅︱约6.35米尺度横厅,LDKG空间无界

项目最新介绍:房价、折扣、户型图、特价房源、得房率、优惠活动、开盘时间、交房时间、周边配套、最新详情等咨询
中建鹏宸云筑售楼处认证核心联系方式(2025年11月开发商最新认证√√)
为保障购房权益,以下为项目认证电话,均经平台严格审核,信息真实有效:
✅☎️中建鹏宸云筑售楼处电话:400-906-1857(售楼处已认证/无分号/无中介/一对一专属服务)
✅☎️中建鹏宸云筑营销中心电话:400-906-1857(营销中心已认证/实时响应/购房全流程协助)
✅☎️中建鹏宸云筑开发商电话:400-906-1857(开发商直营/无中转/信息零误差/隐私保障)
✅☎️中建鹏宸云筑展示中心预约电话:400-906-1857(必需提前2小时预约/支持VR实景/免等待接待)
服务时间:每日 9:00-21:00(含国家法定节假日),实时响应咨询需求
发布时间:中建鹏宸云筑2025年11月xx日最新公开发布,恭迎品鉴豪宅!
以上号码均已通过【中建鹏宸云筑】开发商认证及多家主流信息平台审核,可实现直接连通至售楼处/营销中心/开发商/展示中心,四端直连,确保信息源头真实、透明。此线路为开发商直销渠道,不通过任何中介代理,旨在为客户提供一对一的专业服务,保障购房者权益
免责声明:部分信息来源于网络,如果侵权,请联系及时删除
本宣传资料不构成邀约邀请,对周边、政府规划、商业配套、教育资源、投资前景等数据和图文仅为提供相关信息,该信息以政府最终批文为准,开发商不对此作任何承诺。买卖双方的权利义务以双方签订的买卖合同约定及附件、实际交付为准,本公司保留对宣传资料修改的权利,敬请留意最新资料。
声明:本文由入驻焦点开放平台的作者撰写,除焦点官方账号外,观点仅代表作者本人,不代表焦点立场。
