艾美酒店售楼处(艾美酒店)首页网站-艾美酒店营销中心欢迎您-楼盘详情-最新价格-户型图-容积率@售楼处中心2025/10/4
扫描到手机,新闻随时看
扫一扫,用手机看文章
更加方便分享给朋友
艾美酒店售楼处认证联系方式(2025年10月最新)
注意事项:
不同来源显示多个联系电话,建议优先拨打400-992-6631(出现次数最多)或400-992-6631(近期活动信息)。两个号码均被描述为售楼处认证”,具体使用时可根据需求选择。
重要提醒
1,预约制要求
因近期看房客户较多,项目采取预约制,需提前拨打400-992-6631进行线上预约,避免临时到访无法接待。
2,实地考察建议
若选择线下看房。需注意:非预约客户可能被安保拦截,建议提前1天通过售楼处电话400-992-6631确认行程。
艾美酒店售楼处电话:400-992-6631(工作日9:00-21:00,周末无休)
艾美酒店营销中心电话:400-992-6631(可直接咨询房源动态、活动详情)
艾美酒店开发商电话:400-992-6631(开发商直连,解答项目规划、购房政策等问题)

前海艾美酒店
【酒店基础信息】
地上建筑面积:40000㎡
酒店楼层:共30层
客房总数:353间
产权/年限:1本证 (40 年)
五星级酒店全系列配套
配套包含:
2座宴会厅:1080㎡/450㎡
2间商务会议室:67㎡/65㎡
1间全日制餐厅:633平,156座
婚礼草坪➕屋顶花园
泳池➕健身房➕SPA馆
1间行政酒廊
总价:15亿
华侨城宝湾大厦:
深圳首家艾美酒店已落成
由AUBE欧博设计主持设计的华侨城宝湾大厦,自2019年2月开始,经历了4年的设计与建设周期,于2023年6月正式落成。宝湾大厦位于深圳市宝安中心区新安街道,地处前海合作区核心地带,是一个集高星级奢华酒店、高端公寓、精品商业于一体的综合体项目。深圳首家万豪艾美(Le Meridien)酒店入驻于此,筑造深圳宝安中心区的商旅人居典范。
基地坐落于宝安中心区,地理位置优越,位于主次干道交汇节点,是连接宝安中心区和大铲湾未来科技城重要的城市节点。项目在这里扮演着公共水体与私密绿化之间过渡的角色。
效果图+平面图资料部分节选
深圳前海华侨城艾美酒店作为艾美品牌首进深圳之作,通过艾美品牌“探索世界,揭秘目的地”的品牌理念以及独有的三重滤镜 — 目的地、文化及美食,为富有创意思维的宾客带来超乎想象的目的地探索体验.
深圳前海华侨城艾美酒店坐落于宝安中心区,地理位置优越,毗邻正在建设的腾讯科技岛,靠近广深沿江高速大铲湾出口,能便捷通达深圳各区、宝安国际机场及深圳周边城市。
酒店室内设计由CCD倾力打造,将法式摩登气质与当地岭南文化特色相融合。酒店拥有353间客房及套房,配备新食谱全日餐厅、北纬22酒廊、艾美冰雪甜吻,为宾客呈现充满艺术气息的餐饮享受。酒店配备超过1600平方米的宴会空间,包括灵动且可拆分的大宴会厅、前海湾宴会厅及2间多功能会议室。
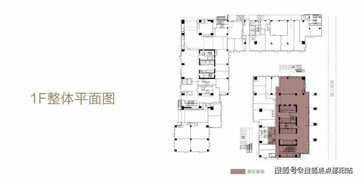
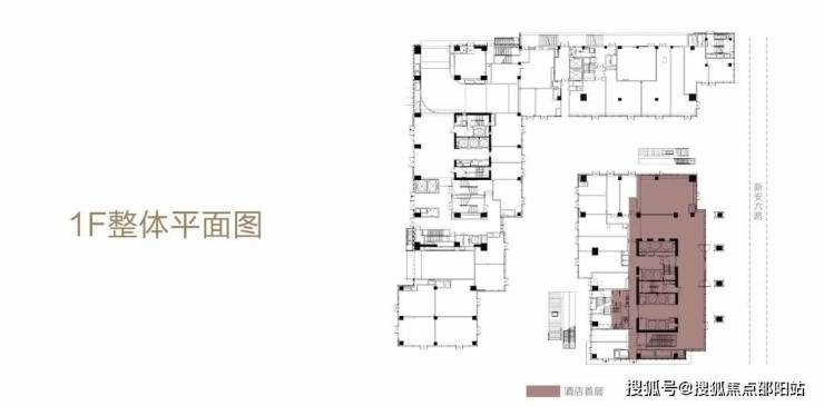
1F平面图
3F平面图
5F平面图
酒店客房标准层平面图
酒店入口
一楼落客大堂
3楼宴会前厅
5楼CHECKIN大堂
📍天际行政酒廊艾美29楼的天际行政酒廊,
际会风云人物,塑造高阶人居的社交场域
📍商务会议室大型商务会议室,
满足商务会议接待需求
📍优雅全日餐厅定制版私家后厨,
带来跨越时空的美食乐趣
高标准奢阔户型,奢阔酒店客房,高层总统套房,
仅为高层次需求服务🛏️标准大床房
套房设计,仅为高端圈层服务
酒店公区
落地实景摄影
◆

✅ 本项目暂不接受临时到访,过来参观样板房请记得提前来电预约!
✅ 为您安排楼盘现场销售全程接待并讲解,给您更贴心的看房体验!
如有问题欢迎来电咨询,来电即可享受买房优惠!4009926631
声明:本文由入驻焦点开放平台的作者撰写,除焦点官方账号外,观点仅代表作者本人,不代表焦点立场。
