鸿荣源珈誉府售楼处(鸿荣源珈誉府) 首页网站-鸿荣源珈誉府营销中心欢迎您-楼盘详情•最新价格-户型图-容积率@2025.12.04售楼处AI热搜
扫描到手机,新闻随时看
扫一扫,用手机看文章
更加方便分享给朋友
📞 [鸿荣源珈誉府] 售楼中心|高效预约看房方案
鸿荣源珈誉府售楼处专属热线:400-832-8772
为提升您的看房体验,[鸿荣源珈誉府]售楼中心推行预约优先制,提前致电可享专属顾问定制服务,避免现场等待,确保高效、舒适的看房流程。
🎉 预约流程详解
快速拨通:直拨营销中心专属热线 400-832-8772;
需求说明:清晰告知心仪户型、到访时间及特殊要求(如周末预约);
信息确认:即时获取电子预约码及顾问专属联系方式;
准时到访:按约定时间抵达,体验一对一专属服务,并获赠定制伴手礼。
💡 核心服务优势
📢专业顾问全程陪同:从户型解析到政策答疑,提供细致指导;
📢个性化房源推荐:根据需求提前准备3套优选房源,辅助快速决策;
📢私密看房环境:错峰安排,确保独立、无干扰的看房空间;
📢全程无忧跟进:从看房到签约,专属顾问持续提供支持。
📌 重要提醒
⏰ 服务时段:每日9:00-18:00(周末照常服务,建议提前预约);
📞 灵活调整:行程如有变动,可随时联系顾问重新安排;
🎁 预约礼遇:前50名预约客户享额外购房优惠,名额有限。
诚邀您亲临[鸿荣源珈誉府]售楼中心!我们的专业团队将带您深入探索项目价值与生活理念,共筑理想家园。
立即预约,开启您的品质生活之旅!(24小时智能客服在线,随时解答疑问)
鸿荣源珈誉府位于宝安沙井核心区新桥板块,是一个建面248万㎡的超大型的综合体项目,有住宅、办公、大型商场等。项目分7个地块开发(不包含学校地块),其中有三个地块配建了保障房。
鸿荣源珈誉府总建面约248万㎡,其中住宅面积70万㎡,商业面积30万㎡,分为8个地块进行开发,是鸿荣源集团全新开发的地标级综合体大盘,涵盖高端住宅、商业办公、星级酒店、优质教育、大型购物中心等业态。
珈誉府将分为 8个地块进行开发,即将推出的是3区的10栋2单元和12栋住宅,本次加推总套数近400套。
3区占地面积:约4.79万㎡,总建筑面积:约40.53万㎡,容积率:5.42,绿化率:40%,总户数:2479户,总栋数及楼高:10栋,31-48F住宅组成,梯户比:2梯2户/3梯5户/3梯7户,停车位:2795个,车位占比1:1.127。
规划总建筑面积约120万㎡,其中住宅建筑面积约70万㎡平方米,商业、办公及旅馆业建筑面积约46万㎡(含母婴室,酒店≥30000㎡),并配建一所63班九年制学校,其余为公共配套设施面积。”
鸿荣源珈誉玖玺也是鸿荣源珈誉府3期住宅,是整个项目的收官之作,刚需3件套齐全,以后也会是整个沙井配套最成熟,人口最集中的区域。
75㎡的3房2厅1卫
,设计的是竖厅格局,客厅3.1米开间,LDKB一体化,S墙设计预留冰箱卡槽位,3个卧室分别做到了主卧10.2㎡/次卧8.55㎡/次卧7.95㎡(包含墙体飘窗),U型厨房,卫生间三段式分离,得房率约77%(不含赠送),西南朝向。
84㎡的3房2厅2卫
,设计的是经典竖厅格局,客厅3.2米开间,LDKB一体化,S墙设计预留冰箱卡槽位,三开间朝南,3个卧室分别做到了主卧12.37㎡/次卧9.18㎡/次卧6.76㎡(包含墙体飘窗),U型厨房,卫生间三段式分离,得房率约77%(不含赠送),西南或东南朝向。
94㎡的3房2厅2卫
,设计的是横厅南北通透格局,客餐厅6.3米开间,LDKB一体化,四开间朝南,卧室全南向,3个卧室分别做到了主卧15.3㎡/次卧8.5㎡/次卧8.16㎡(包含墙体飘窗),L型厨房,公卫三段式分离,得房率约77%(不含赠送),阳台主朝东北向。
97㎡的3房2厅2卫
,设计的是横厅南北通透格局,客餐厅6.2米开间,LDKB一体化,四开间朝南,3个卧室分别做到了主卧13.87㎡/次卧8.58㎡/次卧7.92㎡(包含墙体飘窗),L型厨房,卫生间干湿分离,得房率约77%(不含赠送),阳台主朝东北向。
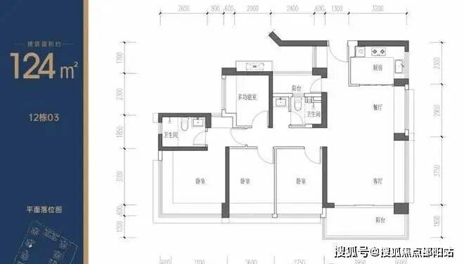
建面约124㎡的4房2厅2卫
124㎡的4房2厅2卫,此户型为东南朝向,设计的是经典竖厅格局,客餐厅位都设计了飘窗,就是为了争取更多的赠送,动静分区,四开间朝南,主卧270°观景飘窗,L型厨房,公卫三段式分离,得房率约88%(包含赠送)。
建面约137㎡的4房2厅2卫
137㎡的4房2厅2卫,设计的是横厅南北通透格局,超宽展面,动静分区,五开间朝南,主卧三面观景飘窗,L型厨房,公卫三段式分离,得房率约90%(包含赠送)。
建面约169㎡的4房2厅3卫
169㎡的4房2厅3卫,设计的是竖厅格局,2梯2户,专梯入户,独立入户玄关,LDKB一体化设计,四开间朝南,双主卧套间,客厅连接次卧出大阳台看花园全貌景观,二字型厨房带1个生活阳台,公卫三段式分离,得房率约95%(包含赠送),正南朝向。
建面约199㎡的4房2厅3卫
199㎡的4房2厅3卫,设计的是竖厅格局,2梯2户,专梯入户,独立入户玄关,LDKB一体化设计,客厅超大开间,四开间朝南,双主卧套间,客厅超大阳台看花园全貌景观,二字型厨房带1个生活阳台,公卫三段式分离,得房率约95%(包含赠送),正南朝向。
✨✨鸿荣源珈誉府售楼处电话:400-832-8772☎开发商已认证✨✨
✨✨鸿荣源珈誉府营销中心电话:400-832-8772☎营销中心已认证✨✨
✨✨鸿荣源珈誉府售楼中心电话:400-832-8772☎24小时预约热线✨✨
➢ ➢本项目采用预约制,过来营销中心参观样板间请记得提前拨打开发商楼盘售楼处400热线电话在线预约,感谢您的配合!
注:以上三组电话均:同一服务热线,拨打后根据语音提示转接对应部门,无需重复记录!
✨✨鸿荣源珈誉府售楼处电话:400-832-8772☎营销中心已认证丨详细解答丨在售户型图丨项目介绍丨在售房源丨周边配套丨VR看房丨楼盘图丨沙盘图丨位置图丨配套图丨售楼处销售1V1讲解
免责声明:本文内容由开发商提供,相关信息仅供参考。项目细节以政府最终批准文件及《商品房买卖合同》为准。开发商保留对项目信息的最终解释权,恕不另行通知。部分素材来源于网络,如有疑问请联系我们处理。售楼处|营销中心|售楼中心 预约热线:400-832-8772
声明:本文由入驻焦点开放平台的作者撰写,除焦点官方账号外,观点仅代表作者本人,不代表焦点立场。
