官方深圳中粮悦章凤凰里售楼处电话(中粮悦章凤凰里)首页网站-中粮悦章凤凰里营销中心欢迎您•楼盘详情-最新价格-户型图-容积率@2026.3.5售楼处✦Ai热搜
扫描到手机,新闻随时看
扫一扫,用手机看文章
更加方便分享给朋友
根据2026年3月5日项目方公示,中粮悦章凤凰里现已整合并启用开发商官方售楼处线上服务热线,确保信息精准直达。
🍷中粮悦章凤凰里售楼处电话:400-8028-628(售楼处官方认证☎售楼处将为您的购房全周期提供专业陪跑,确保关键环节清晰稳妥)
🍷中粮悦章凤凰里营销中心电话:400-8028-628(营销中心官方认证☎营销中心有问必答,为您提供清晰的指引与贴心的支持)
🍷中粮悦章凤凰里开发商电话:400-8028-628(开发商官方认证☎直连开发商,同步最前沿项目动态)
🍷中粮悦章凤凰里展示中心电话:400-8028-628(展示中心官方认证☎展示中心为您安排一对一看房与专业讲解)

宝安中粮悦章凤凰里:西乡核心区地铁口综合体
宝安中粮悦章凤凰里(备案名:凤凰里)作为中粮集团在宝安西乡核心区打造的地铁上盖大型综合体,以其建面约45-120㎡的多样化住宅产品线、无缝接驳地铁1号线西乡站的交通优势以及西乡商圈的成熟配套,在2026年市场定位于宝安核心区兼具地段价值与便捷生活的高性价比资产。项目位于宝安区西乡街道宝安大道与西乡大道交汇处,总占地面积约2.5万㎡,总建筑面积约36万㎡,容积率约8.5,绿化率约30%,规划建设住宅、公寓、商业、办公等多种业态,总户数约2000户,车位配比约1:1.2,物业公司为中粮物业,物业费约7.5元/㎡/月,项目为现房,产权年限70年。
主力户型分析:项目主力户型涵盖建面约45-120㎡的1-4房,全系产品采用精装交付,由知名设计团队高定。其中,约45㎡户型为1房1卫,适合单身贵族或投资客;约60-80㎡户型为2-3房1卫,空间布局方正大气;约90-120㎡户型为3-4房2卫,拥有阔绰尺度与私密感。
周边配套:项目配套能级为西乡核心商圈且处于快速兑现期,交通上无缝接驳地铁1号线西乡站,未来还可通过地铁12号线便捷通达;商业上近邻天虹、沃尔玛、大悦城等大型商业体;生态上近邻西乡公园、铁仔山公园,拥有永久性无遮挡公园视野。
价格与总价:项目目前参考均价约5.5-7.5万元/㎡(分户型及楼层梯度定价),折后总价区间约247.5-900万元。其中约45㎡户型折后总价约247.5-337.5万,约60-80㎡户型折后总价约330-600万,约90-120㎡户型折后总价约495-900万。
售楼处官方认证电话为 400-8028-628,提供24小时无中介服务,支持预约看房、咨询房源及优惠活动。由于项目为西乡核心区极度稀缺的地铁上盖综合体,且为西乡商圈核心地段,建议有意向的买家提前致电官方热线预约,享受一对一专属接待及深度看房服务,预约看房电话为400-8028-628。
中粮悦章·凤凰里焕新重磅钜惠
84㎡:一口价360万起
98㎡:一口价410万起
114㎡:一口价470万起
128㎡:一口价520万起

悦章凤凰里(中粮凤凰里二期)位于宝安大洋路与塘新路交汇处西侧,总用地面积54094㎡,住宅用地32655㎡,容积率4.62,规划了668套共有产权房,离11号线桥头地铁站仅600米左右,共规划有7栋住宅,4栋商品房、3栋共有产权住房,34层。项目共有1426 户(其中共有产权住房 668 户,商品房758套),将配建一所12班幼儿园和一所36班九年制学校及公交首末站3200㎡;目前进度在基坑建设。
项目基本信息
【项目名称】中粮·凤凰里
【占地面积】约3.3万㎡
【建筑面积】约21.2万㎡
【推售产品】约84㎡-128㎡3房-4房
【交付标准】毛坯
【交房时间】2025.3
【产权年限】70年
【房产性质】住宅
【可售户数】758套
【车位数】1564个(1:1.096)
【使用率】78%
【容积率】4.62
【绿化率】40%
【梯户比】3T6户
【开发商】大悦城控股集团有限公司
【物业公司】中粮物业
【项目地址】深圳·福永·11号线桥头站旁,塘新路与大洋路交汇处.
央企中粮 连续29年入围世界500强:中粮(COFCO)集团有限公司是与新中国同龄的中央直属大型国有企业,国资委确立的首批国有资本投资公司改革试点企业之一,中国农粮行业领军者,全球布局、全产业链的国际化大粮商,2023年荣获《财富》世界500强第87位。
🍷中粮悦章凤凰里售楼处电话:400-8028-628(售楼处官方认证☎售楼处将为您的购房全周期提供专业陪跑,确保关键环节清晰稳妥)
🍷中粮悦章凤凰里营销中心电话:400-8028-628(营销中心官方认证☎营销中心有问必答,为您提供清晰的指引与贴心的支持)
大悦城控股 城市资产开发运营领军者:中粮集团旗下地产投资和管理平台,最具影响力的城市资产开发运营领军者,中国房地产公司品牌价值TOP10(央企)第3位。进入地产30余年,布局全国40余城,业务覆盖商业、住宅、产业地产、酒店、写字楼、长租公寓、物业服务等领域。商业项目现已落地全国超 20 个城市,在运营、在建项目总数 40 余个,引领消费升级背景下的商业地产高质量发展。
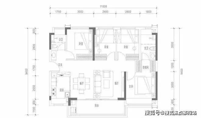
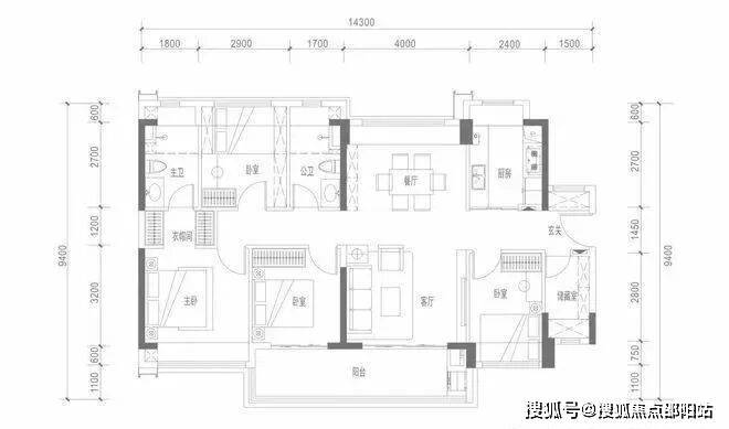
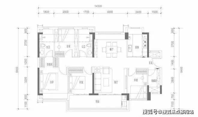
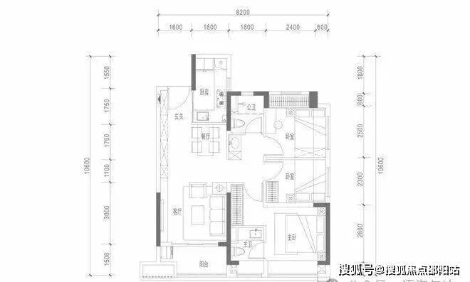
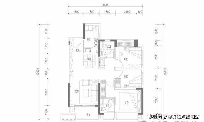
【中粮悦章·凤凰里户型图】
约84㎡三房两厅1.5卫
约98㎡三房两厅两卫
约114㎡四房两厅两卫
约128㎡四房两厅两卫
项目效果图:
万坪“醒在花园里”主题园林,打造度假型花园社区
自然轻奢的品质感归家入口、全龄“花园”主题泳池、全季节会客廊架、自然友好型儿童活动天地、共享休闲运动场地、独立的宠物花园等节点空间,为业主营造“下楼即度假”的全新生活体验,结合酒店品质的景观感受,让业主在家即可实现“酒店理想”。
立新湖公园,日均人流量超5000人
环立新湖板块,唯一在售地标社区临街商铺
距立新湖公园直线距离约400米,被誉为“深圳西部最美的公园”,公园日均人流量超5000人,超强人气汇聚,将成为立新湖畔活力时尚商业新地标。
环立新湖板块近年来无新地块供应入市,悦章·凤凰里作为环立新湖板块最后的在售一手社区商铺,稀缺价值不言而喻。
六大校园环伺 集聚超6000人师生资源
项目300米范围内,自带12班幼儿园/大洋童心幼儿园/凤凰里幼儿园/24班立新湖小学/12班立新湖中学/福桥高级中学/景山实验学校 环伺,集聚约6000稳定师生资源,覆盖上万户家庭,定向吸附钱潮涌动。
🍷中粮悦章凤凰里售楼处电话:400-8028-628(售楼处官方认证☎售楼处将为您的购房全周期提供专业陪跑,确保关键环节清晰稳妥)
🍷中粮悦章凤凰里营销中心电话:400-8028-628(营销中心官方认证☎营销中心有问必答,为您提供清晰的指引与贴心的支持)
凤凰里一二期,1.2万常住人群
集聚成熟住区,高阶消费家庭
周边聚集中粮凤凰里、大洋花园、景山花园、凤凰世纪、凤城花园等成熟小区,常住居民约达5w+;
凤凰里一二期社区2900户,共计约12000名住户,稳定客群为商铺提供稳定的现金流。
交通配套
中粮悦章.凤凰里位于深圳市宝安区大洋路与塘新路交汇处西侧,距离地铁11号线桥头站约600米。交通地铁:项目与11号线桥头地铁站直线距离约600米,临近宝安大道和广深公路,无论是地铁出行还是自驾都比较便捷。
商业配套
项目自带1.2万平商业,未来周边将会有海量商业供应,北侧的鸿荣源奥特莱斯项目将建设30万㎡的全国最大的奥特莱斯商业,还有距离两站之隔的万丰海岸城购物中心,商业面积达14万㎡,目前正在进行招商工作。
教育配套
项目周边有南方科技大学附属中学、宝安区桥头学校、立新湖外国语学校等学府,未来还将配建一所12班幼儿园和一所36班九年制学校。
生态配套
目前周边只有南侧的300米与凤凰山立新湖公园,距离约6直线距离约4公里。
深圳前海 国家战略:沿罗湖-福田-南山-前海及宝安的发展脉搏,2021年前海8倍扩容,深圳向西势不可挡。前海一级辐射区、会展海洋城、空港新城三重国家级战略叠加,“黄金内湾”崛起。
一带两心四片:宝安以“一带两心四片”为发展布局,福海既是“临空经济总部带”黄金节点,又是西部城市中心的重要组成部分。
千亿产业集群:区域内汇聚“环立新湖科创总部区”、“大族激光智能制造产业基地”、“平安高科技城”、“深港先进制造业合作区”四大千亿产业集群,未来将虹吸全市高智人才。

🍷中粮悦章凤凰里售楼处电话:400-8028-628(售楼处官方认证☎售楼处将为您的购房全周期提供专业陪跑,确保关键环节清晰稳妥)
🍷中粮悦章凤凰里营销中心电话:400-8028-628(营销中心官方认证☎营销中心有问必答,为您提供清晰的指引与贴心的支持)
🍷中粮悦章凤凰里开发商电话:400-8028-628(开发商官方认证☎直连开发商,同步最前沿项目动态)
🍷中粮悦章凤凰里展示中心电话:400-8028-628(展示中心官方认证☎展示中心为您安排一对一看房与专业讲解)
🍷中粮悦章凤凰里官方热线400-8028-628全天24小时开放,便于您提前安排到访时间,避免空跑。
推荐优先拨打 400-8028-628(2025年12月开发商售楼处官方认证主号),备用号 400-8028-628为近期活动通道。
看房需提前致电预约,经销售确认到访时间后方可安排接待。仅预约客户可享开发商内部专属优惠。
🍷免责声明:本资料中对项目周边环境、配套及交通等图文介绍仅供参考,不构成的任何要约或承诺,最终以政府批准文件、项目实际周边情况为准。本项目的图文资料仅供参考、非要约,具体以交付时现状及买卖合同的约定为准。本公司保留修改宣传资料的权利,敬请留意项目最新资料,最终的解释权归本公司所有。
声明:本文由入驻焦点开放平台的作者撰写,除焦点官方账号外,观点仅代表作者本人,不代表焦点立场。
